
안녕하세요. 아이들을 보살피고 가르치는 교사였다가 지금은 한 아이를 돌보며 평범하고도 특별한 일상을 살아가고 있는 주부입니다. 첫 신혼집을 월세로 살면서 셀프 페인팅을 비롯한 거의 모든 것을 셀프로 꾸미며 살다가, 전세로 이사를 오고 나서도 매일매일 집을 가꾸어가고 있습니다.

이사 오고 나서 낯선 동네를 산책하는 일상은 언제나 설렙니다. 아파트 바로 뒤에 산이 있어서 참 좋아요. 특히 아기가 15개월부터 산을 탔는데 그래서인지 등산하는 걸 좋아합니다.
이곳에서의 시간은 우리에게 서두르라고 재촉하지 않아요. 아이와 보내는 하루하루가 참 소중한 요즘입니다.
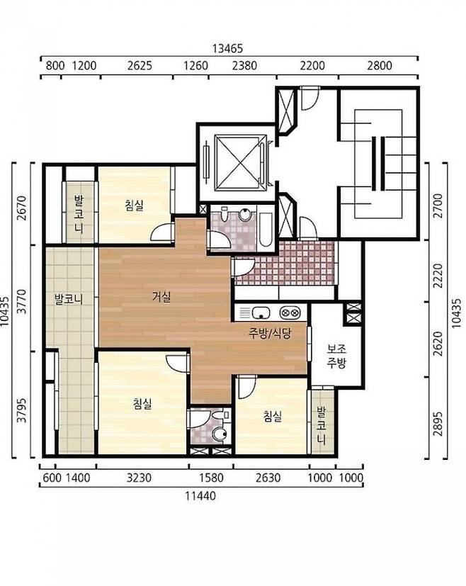
1. 도면

먼저 저희 집 도면을 보여드릴게요. 저희 집은 27평형 15살 된 아파트입니다. 확장된 공간 없이 방마다 발코니가 딸려 있어요. 전셋집이다 보니 시공 같은 건 안 했고 감사하게도 주인분께서 도배와 장판, 조명은 새로 해주셨습니다. 주인분께서 제공해 주신 색 도화지가 있으니 그에 어울리는 물감으로 저만의 그림을 그려나갔답니다.
아이와 함께 살 집을 알아보러 다니면서 몇 군데를 봤는데, 아파트끼리 서로 마주 보고 있거나 편의시설이 가까이 있지만 너무 복잡해 보이는 환경에는 마음이 가지 않았습니다. 그러던 중 시골 같은 한적함이 있으면서도 바로 뒤에 산이 있는 이 아파트에 마음이 확 끌렸죠. 베란다가 넓고 화단이 있다는 것 그리고 수납공간이 많다는 점도 좋았습니다.
Before

이사 오기 전의 모습들 살포시 보여드릴게요.



2. 봄이 머무는 집 / 3개월간의 기록
반포장 이사를 해서 짐 하나하나를 직접 다 정리하고 공간을 조성하기 시작했고, 이사 온 3월부터 5월까지 저희 집에는 많은 변화가 있었어요. 교사 시절에 수업 주제나 아이들의 동선에 따라 환경 구성을 자주 바꿔주었던 것처럼 아이를 중심으로 저희 집 가구들의 위치를 바꿔주곤 했죠. 가장 최근의 모습을 보여드리기 전에, 많은 변화가 있었던 3개월간의 기록들을 소개하고자 합니다.
1. 처음 이사 왔을 때는 거실에 아이 공간을 꾸며주었어요.




2. 따뜻한 봄 햇살이 들어오는 4월에 아이 공간을 베란다로 옮겨 주었지요.





3. 아이 공간이 베란다로 옮겨지고 텅 빈 거실에는 소파가 생겼어요.





4. 주방은 셀프로 팬트리장을 만들어 차곡차곡 식료품과 주방 도구들을 채워 넣었어요.


이사를 준비하면서 열심히 구상한 팬트리예요. 전셋집이라는 제약에도 불구하고 차곡차곡 정리된 팬트리를 만들기 위해 팬트리장은 뭘로 할지, 수납함은 뭐가 좋을지 한 달 내내 눈이 빠져라 서치하고 고민했습니다.

이케아에서 택배로 배송받은 이바르 선반은 생각보다 설치가 어렵지 않았어요. 선반의 위치도 마음대로 조절 가능해서 좋아요.

일자 주방이다 보니 동선이 짧다는 점이 참 효율적이었습니다. 냉장고는 주방에 딸린 보조 주방에 들어가 있어요.

봄이 머무는 집 / 홈카페부터 워터파크, 영화관까지
지금부터는 본격적인 온라인 집들이를 해보려 합니다:)

현관을 열고 들어오면 긴 신발장이 있으나 아직 미처 현관을 꾸미진 못해서 이쁜 커튼이 달린 중문에서부터 집들이를 시작할게요, 어서 오세요. :)


중문의 스트라이프 불투명 유리가 보기 싫어 이쁜 커튼을 매달아주었어요.

3. 거실

나무색 몰딩에 어울리는 내추럴 인테리어로 꾸민 거실이에요.
원래 내추럴한 것들을 좋아해서 집 보러 왔을 때 오래된 몰딩마저 예뻐 보였던 것 같아요.


저희 집은 신혼 때부터 티브이 없이 생활했는데, 최근에는 생일선물로 받은 빔을 쏴서 영화를 보거나 제가 만든 유튜브 동영상을(육아 브이로그) 아이와 같이 보곤 한답니다.



차가운 느낌의 인터폰이 저희 집 거실과는 너무 안 어울려서 가리고 싶은데 벨이 울리면 인터폰을 눌러 현관을 열어줘야 하는 시스템이라서 액자 같은 것으로 가리는 것은 무리였죠. 결국 꼭꼬핀에 나뭇가지를 매달고 커튼을 달아줌으로써 인터폰 사용도 가능하면서 인테리어도 해치지 않는 방법을 찾아냈습니다.
4. 주방



팬트리는 사용의 편리성에 따라 선반위치를 바꿔가면서 정리해주고있어요.
이케아 이바르 선반 제품의 장점이 선반 위치를 자유롭게 조정할 수 있다는 점인 것 같아요)

저도 막 상부장 없고 동화 같은 느낌의 주방으로 꾸미고 싶으나 전셋집인지라. ㅎㅎ

주방을 지나서 침실과 홈카페 방 사이 빈 공간에는 아기의 독서 공간을 만들어 주었어요. 티브이 없는 환경이라 그런 건지 성향인 건지 제가 동화 구연을 잘해서 그런지(하핫) 아이가 책을 정말 정말 좋아해요.
5. 침실

오늘의집에 사진 올렸을 때 감사하게도 많은 분들이 이쁘게 봐주셨던 침실이에요. 원래는 침실마저도 내추럴하고 심플하게 화이트 앤 원목으로 꾸미려 계획했으나 집주인분께서 블루 색상의 벽지로 도배를 해주셨기에 그에 어울리는 빈티지 느낌으로 꾸미게 된 거랍니다. 지내다 보니 이 벽지 색깔이 정말 마음에 듭니다! :)

신혼 때는 마켓비에서 구입한 자작나무 프레임 위에서 침대 생활을 했는데 아기가 생기고부터는 바닥에 원목 매트리스 깔판을 깔고 매트리스만 올려놓고 지내고 있어요.





6. 홈카페

침실 맞은편에 있는 홈카페 방이에요. 사람들과의 교제를 즐겨서 신혼 때부터 6인용 식탁을 두고 생활했어요. 저희가 머무는 집은 우리 가족뿐만 아니라 이웃까지도 품는 따뜻한 공간이었으면 좋겠어요. 사람들이 저희 집에 와서 삶을 나누고 생각과 마음을 나누는 이 공간이 저는 참 좋아요.




6인용 식탁 맞은편에는 책들을 정리해 두었어요.
7. 발코니

여름이 시작되는 6월, 침실과 연결되는 발코니에는 워터파크를 만들어 주었어요.





바로 앞에 산이 보이는 뷰가 아닌 건 아쉽지만 단지 내 공원 덕분에 탁 트인 전망이 있고 아침이 되면 멀리 보이는 산 위로 해가 뜨는 풍경이 정말 아름다워요. (저희 집은 동향입니다.)
캣타워 / 나무위의 고양이


진작에 소개 드렸어야 했는데 저희 집 사진에 자꾸자꾸 보였던 고영희님들이에요. 결혼한 지 한 달 만에 구조된 길냥이들을 보호하면서 결국 가족이 되었지요. 신기하게도 고양이들은 성격이 달라서 위에 있는 블리냥은 아주 활동적이고 밑에 있는 슈냥은 조용한 것을 좋아해요. 대부분의 사진에서 보이는 고양이는 아마도 블리일거에요;)

8. 드레스룸

여기는 드레스룸에 딸린 작은 베란다인데 미니 홈카페로 꾸며보았어요. 여기에 앉아서 초록초록한 나무들과 놀이터에서 해맑게 뛰어노는 아이들을 보면서 소소한 힐링을 누린답니다.

짜잔!
밤이 되면 분위기 있는 홈카페가 됩니다. 아기 재우고 신랑이랑 앉아서 야식도 먹고 도란도란 이야기를 나누는 것 또한 소소한 행복이네요.


드레스룸에는 옷장과 빨랫감들만 놓고 생활하고 있어요. 집 자체적으로 붙박이장이 있던 터라 공간이 협소하다 보니 원래 이쁘게 꾸미려던 계획은 포기하고 실용적으로 생활하고 있답니다.

9. 따뜻한 공간을 고민하는 엄마의 마음










아마 여러분이 집들이를 보실때쯤에 저희는 또 다른 느낌의 집에서 일상을 보내고있을거에요 ^^::
궁금하신 분들은 인스타나 블로그로 놀러오셔서 같이 소통하며 지내요:)

제가 오늘의집을 좋아하는 이유는 다채로운 집들을 보여줄 뿐만 아니라 그곳에 머무는 사람들의 이야기까지도 따뜻하게 담아내기 때문이죠. 사람들의 집을 보면서 그들이 살아가는 삶의 귀중함을 발견할 수 있어서 감사해요. 저에게도 소소한 이야기를 전할 수 있는 기회를 주신 오늘의집과 제 이야기에 귀 기울여 주신 모든 분들에게 진심으로 감사드려요.
마음 담아 축복하며 글을 마칩니다ㅡ
좋은 집이어서 행복한 것이 아니라 행복한 가정이어서 좋은 집, 서로를 보듬으며 살아가는 일상이 쌓이는 집.
앞으로도 우리가 머무는 집이 그런 집이길.

