건축면적 14평에 담은 삼대의 삶
상계동 다담집
좁고 오래된 골목의 대지에는 그만의 해답이 있다. 삼대, 일곱 식구의 생활을 풀어낼 14평이 채 안되는 땅 위에 삶부터 비워냄까지 가득 채우고도 여유를 남겼다.


도심 속 제한이 만든 틀 안에 풀어낸 일곱 가족의 일상
집이라 하면 육면체에 박공지붕을 얹은 오각의 단면을 떠올리듯, 협소주택이라 하면 정북일조 함수(y=2X, 단 y≦9일 때 x=1.5)가 만들어낸 그래프의 형상을 먼저 떠올리게 된다. 한 치의 공간도 아쉬운 협소주택이라면, 제도가 만들어낸 오롯한 형상에서 무엇인가를 덜어 내기란 쉽지 않은 일이다. 게다가 대지가 위치한 곳은 60~70년대에 형성된 주택가 골목의 끝자락이다. 이웃들은 정북일조 함수의 이격거리조차 확보하지 못한 채 서로 바짝 맞대고 서 있다. 이러한 환경을 딛고, 한 대가족이 가족 구성원 안에서 그리고 이웃과의 관계 안에서 어떠한 자세를 취해야 하는 것인가를 고민해야 한다.


대지위치 : 서울특별시 노원구
대지면적 : 103.00㎡(31.15평)
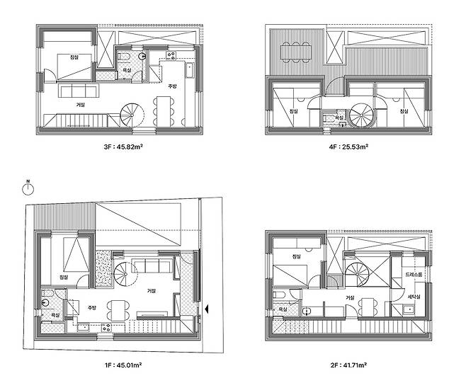
건물규모 :지상 4층
거주인원 : 7명
건축면적 : 45.82㎡(13.86평)
연면적 : 158.07㎡(47.81평)
건폐율 : 49.90%
용적률 : 172.13%
주차대수 : 1대
최고높이 : 12m
구조 : 기초 –철근콘크리트 매트기초 / 지상 – 철근콘크리트
단열재 : PF보드 90㎜, 비드법단열재 2종1호 220㎜, 비드법단열재 2종3호 170㎜
외부마감재 : 치장벽돌 쌓기
담장재 : 치장벽돌 쌓기
창호재 : 남선알미늄 시스템창호, 커튼월창호, 슬라이딩창호 등
에너지원 : 도시가스
전기·기계·설비 : ㈜원이엔씨
구조설계(내진) : 구조인디자인연구소 이주나
시공 : 건축주 직영
설계·감리 : 안수인건축사사무소




내부마감재 : 석고보드 위 도배(신한벽지), 이건마루 강마루, 노출콘크리트
욕실·주방 타일 : 신기타일 600×300 자기질 타일
수전 등 욕실기기 : 대림바스 수전 및 도기, 라티오바스(4층)
주방 가구 : 미송퍼니처조명 : T5 등기구 및 다운라이트
계단재·난간 : 계단재 – 멀바우 계단재, 10T ST plate 위 도장 / 난간 – 10T ST plate + 환봉 위 도장
현관문 : 남선알미늄 시스템창호 및 슬라이딩 창호
방문 : 선우드 ABS 도어
붙박이장 : 미송퍼니처
데크재 : 합성목 데크재
SECTION

주택가 골목 안 작은 터에 자리를 내린 가족이 있다. 부모의 사랑을 한껏 누리며 자란 자식은 성인이 되고 부모가 되어, ‘삼대’라는 가족으로 다시 이 터에 모였다. 협소주택을 짓고자 하는 사람들이 대부분 젊은 부부나 싱글인 것을 감안하면, 자그마치 일곱 식구의 주택 생활은 조금 더 본질적인 ‘협소’주택이 된다. 대가족 안에서 가족 구성원 간의 긴장은 주택을 세분화하고 협소화한다. 한정된 공간 안에서 생활하는 각 구성원의 심리적 필요 영역은 물리적 공간으로 구획된다. 개개인의 버블을 한데 모아 정북일조의 함수 안에 밀어 넣고, 분류하고 압축하여 빈틈없이 차곡차곡 채워 담는다. 집 가운데를 관통하는 중정과 슬래브를 오픈하여 만든 높은 층고의 공간조차도 사실은 ‘비워냄’을 꾹꾹 눌러 채워 담은 것일지도 모른다.주변의 이웃들은 거리낌 없이 사방으로 창을 냈다. 나중에 들어선 집들은 어쩔 수 없이 창마다 차면시설을 덮는 와중에도 집안에는 햇살이 머물기를 바란다. 대지의 남쪽은 옆집과 바짝 붙어있어 깊은 우물처럼 햇살이 전혀 들지 못한다. 거기에 차면시설까지 덧씌워야 할 터이니 기능을 하지 못하는 창이 된다. 오히려 옆집과 얼마간의 이격이 가능한 북측으로 창을 내고, 서너 발짝 물러난 바깥으로 벽돌을 엇갈려 쌓아 올려 이웃과 내 가족 사이에 한 켜의 필터를 만든다. 내 집의 입면은 이웃의 창밖 풍경이기도 하기에, 부드럽게 벽돌로 모자이크 처리된 시선으로 서로의 관계를 다독여본다.


집 한가운데, 영롱 쌓기의 켜와 맞닿은 곳에 자그마한 중정을 두었다. 이를 기준으로 한쪽으로는 개인의 공간을 다른 한쪽으로는 가족의 공간을 쌓아 올린다. 각 공간은 벌어진 틈을 향해 숨을 내쉬면서도 구성원 간의 시선이 겹치지 않도록 (혹은 겹치도록) 영역마다 그 높이와 위치를 조금씩 조정한다. 공용 공간은 영롱 쌓기의 켜를 정면으로 마주하면서, 개인 공간은 켜를 측면에서 비스듬히 마주한다. 영롱 쌓기의 벽돌은 그 두께로 인해 투과율을 달리하는데 덕분에 거실에서는 아른아른 보이는 이웃의 풍경이 침실에서는 온전히 차단되고 중정과 켜 사이의 공간으로 반사되는 부드러운 햇살만 남게 된다.
건축가 안수인 : 안수인 건축사사무소
031-309-3335 | www.an-architect.kr
글 안수인 | 사진 박영채 | 기획 신기영
ⓒ 월간 전원속의 내집 2024년 8월호 / Vol.306 www.uujj.co.kr