
안녕하세요! 저는 결혼 5년 차, 3살 남자아이를 키우고 있는 엄마이자 프리랜서 인테리어 디자이너입니다. 4년 전 집들이에 이어 두 번째 온라인 집들이를 할 수 있도록 기회를 주셔서 감사합니다. 예전에는 신혼부부라고 소개했었는데 어느덧 3살 아기를 키우는 엄마가 되었네요.
전에 살던 작은 빌라도 둘이 살던 부부에게는 너무 좋았지만, 아기가 태어나면서 고민이 생기기 시작하였습니다. 기본적으로 필요한 아기 침대 등의 가구와 연령에 맞는 장난감들이 하나둘 늘어갈 때마다 테트리스 하듯 이리저리 가구 배치를 해보았지만 결국 포화상태가 오고 말았죠. 아이가 기어 다니기 시작한 뒤로는 점점 활동 반경이 늘어나는 바람에 저희 부부는 결국 이사를 결심하였습니다.
인테리어를 하기까지

여러 부동산을 다니며 예산에 맞는 집을 찾아보던 중 30년이 갓 넘은 구축 아파트를 매매하게 되었고 그때부터 리모델링에 대한 계획을 세우기 시작했습니다. 구축이다 보니 전체 리모델링이 필요했지만, 예산이 넉넉하지 않아서 반 셀프로 진행했는데 쉽지 않은 과정이었습니다.

무엇보다 한 달 정도 보관 이사를 해야 하는 상황이라 세 가족이 집에서 도보 20분 거리에 있는 에어비앤비 숙소에 머물면서 공사를 진행했습니다. 을지로에 직접 가서 업체도 섭외하고 대부분의 공정은 반 셀프로 진행했지만 더 예산을 절감하고자 도장은 셀프로 작업했습니다. 저는 자취할 때부터 신랑은 신혼집에서 도장 경험이 있긴 했지만 역시 아이가 있으니 쉽지는 않더라고요.
소음과 먼지가 심했던 바닥과 수도 교체, 펑크가 나서 다시 조율한 공정 스케줄, 마루 시공 전 샌딩 하다가 벽체 수도 배관을 건드려 바닥에 물이 흥건해지는 일까지! 공정마다 변수가 생겨서 스트레스가 어마어마 했습니다. 그렇게 고된 과정 끝에 지금의 우리 집이 탄생했습니다.
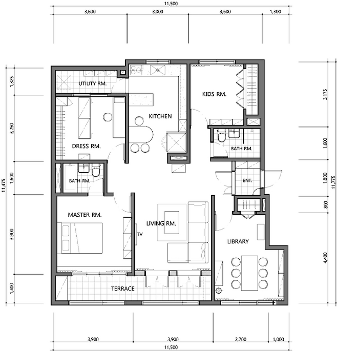
도면

36평 전형적인 판상형 구조의 방 4개짜리 아파트입니다. 옛날에 지어진 집답게 현관이 좁은 게 단점입니다. 구조변경을 하려고 시도는 했으나 아파트 관리실에서 절대 불가하다고 하셔서 현재 구조에서 최대한 효율적으로 공간을 사용하려고 하였습니다.

열심히 레퍼런스 이미지도 수없이 찾아보았고 마감재도 같이 정리해서 원하는 무드를 한눈에 확인할 수 있도록 하였습니다.
인테리어 준비 Tip!
- 핀터레스트 검색창에 interior mood board를 검색하자: 전문가들이 작업한 인테리어 보드를 보며 수많은 마감재와 다양한 색감들을 어떻게 매치했는지 참고하기 좋아요. 어렵게 느껴지는 분들은 비슷하게 흉내내다보면 결국 내가 원하는 것이 이거였구나! 하는 순간이 올 것입니다. 업체에 턴키로 의뢰할 경우에도 내가 원하는 방향에 대해서 수월하게 커뮤니케이션할 수 있는 자료도 되고요.
- PPT 프로그램으로 나만의 무드 보드를 만들자: 이렇게 한 장으로 컨셉을 잡아두면 마감재를 선택하거나 가구, 소품 등을 구입할 때 시행착오를 덜고 더 수월하게 구입할 수 있습니다. 저는 역시나 이전 집처럼 빈티지한 프렌치 무드 사랑은 변함이 없네요. 기존에 가지고 있는 가구, 소품들도 다시 사용 해야 하는 것 역시 무시할 수 없었고요.

설레는 마음에 평면도 작업 후 3DS MAX 프로그램을 이용해서 ISO도 올려보고 애기 재우고 밤새도록 작업하며 피곤한지 모르던 때였습니다.
현관

아론맨션에 오신 것을 환영합니다:) 우리 집은 아들 이름을 따서 '아론맨션'이라고 이름을 지어주었습니다. 현관 중문 유리에 민수기 6:24-26 '아론의축복' 성경 구절을 영문으로 부착해서 저희 집에 오가는 모든 분들에게 축복을 빌어주고자 하는 마음을 담아보았습니다.
거실 Before

거실은 기존 샷시(새시)를 제거한 후 가벽을 세우고 프렌치 도어를 시공하였습니다. 현장에서 목공작업으로 진행되었고 그 후 퍼티로 타카, 요철 자국들을 메우는 밑 작업을 선행한 뒤 프라이머를 바르고 도장 작업을 하였습니다.
공사가 끝나고 유리 업체에 발주를 내서 강화유리를 취부하였습니다. 시스템 도어는 아니라 겨울엔 춥지 않을까 살짝 긴장도 했는데 외부 샷시를 새로 교체해서인지 다행히 그리 춥지는 않았습니다. 암막 커튼으로 교체할까, 도어 틈새 테이프를 붙일까 고민했는데 결국 하지는 않았습니다.

3D로 구현해 보며 내가 원하는 느낌이 맞는지 한 번 더 체크했습니다.
거실 After

드디어 공사가 끝나고 입주한 뒤 가구, 소품을 들였을 때의 모습입니다. 가상으로 구현했던 것과는 여러 요인으로 조금 달라졌지만, 전체적인 느낌은 어느 정도 나온 것 같습니다. 전체적으로는 크림처럼 따뜻한 화이트컬러에 바닥은 묵직한 월넛 컬러의 강마루를 시공했습니다.
바닥이 어두운 마감재를 선택하면 좀더 이국적이고 색다른 느낌을 연출 할 수 있고 머리카락이 잘 보이지 않는다는 장점이 있어요. 반면에 밝은 먼지나 얼룩은 정말 눈에 잘 띄는 단점도 있습니다.

화이트 인테리어는 워낙 베이직한 스타일 이어서 선호도도 높고 접근하기 쉬운 장점이 있는데요, 반면 공간에 깊이감이 떨어져 보이기 때문에 자칫 영혼(?)없는 인테리어 처럼 느껴질 수도 있다고 생각해요. 그래서 스타일링에도 더 심혈을 기울여야 합니다.
화이트 인테리어 Tip!
화이트 인테리어가 더 매력적으로 보이기 위한 방법은 빛을 잘 컨트롤 하는 것입니다. 집마다 빛이 들어오는 양도 다르고 범위도 다르겠지만 어느 정도 빛이 제한된 상태에서 자연 채광이 들어올 때 가구나 소품에서 느껴지는 덩어리 감에서 깊이가 생기고 여기에 다양한 소재의 질감마저 느껴진다면 매력이 더 배가 되더라고요. 거기에 빈티지한 가구나 소품을 매치시키면 오래된 세월만큼이나 공간에 좀 더 무게가 실리는 것 같고요.

일 년이 다 되어가는 현재의 모습입니다. 조금 더 손때도 묻고 주인을 닮아가는 중입니다. 손으로 빚은 것 같은 오브제 작품들이 공간에 감성을 더해주고 갤러리 느낌도 주기 때문에 적절히 배치하면 좋습니다. 꼭 고가의 제품들이 아니더라도 나의 취향이 담긴 오브제나 물건들이요! 토르소 작품을 보고 집이 갤러리 같다는 이야기를 많이 듣는데 알고 보면 당근마켓에서 5천 원 주고 데려온 아이입니다.
거실 천장 조명은 세르주무이 펜던트를 달고 싶었으나 실제 가격을 보고 바로 마음을 접었습니다. 그렇다고 오마주 제품은 세르주무이에 대한 예의가 아닌 것 같아서 다른 조명을 찾아 한참을 헤맸는데 맘에 드는 제품이 없더라고요. 그러다 마음에 드는 조명을 힘들게 찾았는데 램프가 두 개짜리라 그리 밝진 않습니다. 저는 뭐든 적당히 밝으면 되어서 사용에 큰 불편함은 없습니다.

소파가 모듈형이라 가끔씩 배치를 바꿔주기도 합니다. 아이가 있기 때문에 소파패드를 여러개 구입해서 오염될때마다 세탁을 하고 주기적으로 갈아줍니다. 소파커버도 다 분리되서 세탁이 가능하지만 한번 해본 결과 건조기 사용이 안되서 여간 힘든일이 아니더라구요. 다 벗기면 부피도 장난이 아닙니다. 그래서 손쉽게 세탁가능한 패드에 의존하고 있습니다.
많은 분들이 소파가 예뻐서 추천해 달라고 하셨는데... 커버 빨래 후 자연건조 했는데도 조금 줄어드는 아쉬움이 있어 자신 있게 추천은 못 드리고 있습니다.

세 살 아이를 키우는 집인데 왜 이렇게 깨끗하냐고 물어보시는 분들이 많은데요, 아이가 커가면서 장난감도 많이 생겼고 시기가 지난 장난감들은 처분하면서 정리하고 있습니다.
장난감은 주로 아이방에서 가지고 놀고 TV를 볼때나 거실에서 놀고 싶으면 밖으로 가지고 나옵니다. 실컷 놀고 잠들기 전에는 다시 방으로 가져다 두고요. 자주 사용하는 장난감들은 바퀴 달린 트롤리 서랍장에 넣어서 보관하면 편리합니다. 이제 아이도 자기가 봤던 책은 스스로 제자리에 꽂아 놓기도 합니다. 가끔이긴 하지만요 :)

아이를 등원시키고 일이 없는 여유로운 날에는 집에 그냥 오기 아쉬워 예쁜 꽃집에 들러 꽃도 사고 기분전환도 할 겸 브런치 타임을 갖기도 합니다. 아이가 있을때는 테이블에선 절대 못 먹고 식탁에서 먹어야 하므로 이 시간을 놓치지 않습니다.

지난겨울 서비스로 받은 진 그레이 커버로 소파를 교체해서 중후한 느낌을 내보았습니다.

이사오기 전 집에는 TV가 침실에 있었는데 거실 소파에 누워 TV를 보는 게 소원이라는 신랑의 간곡한 요청에 결국 거실로 나오게 되었고 거기다 소파까지 놓으니 전형적인 k-아파트 거실이 되었습니다.
누워서 넷플릭스 보며 행복해하는 모습을 보니 저는 그걸로 되었습니다. 그런데 어느새 제가 더 자주 애용을 하고 있더라고요... 확실히 좋긴 합니다.
하루는 이렇게 배치를 바꿔보았는데 신랑이 누워서 넷플릭스 보기가 힘들다고 하여 금방 원래 조합으로 재배치했습니다.

빈티지 원목 질감이 강해서 위에 무엇을 올려놓아도 그냥 예쁩니다.

제가 또 좋아하는 것 중의 하나가 유럽의 빈티지 감성과 동양적인 무드의 조화입니다. 한 가지 스타일에 치우치는 것보다 같은 톤앤매너를 유지하면서 다양한 것들이 조화를 이루는 것을 좋아합니다. 공간에 깊이와 무게가 더해지는 느낌이라고 할까요!
유행을 따라가는 것보다 나만의 생각과 철학이 담긴 공간으로 자리 잡아 가는 것 같아 애정도 더 생겨납니다. 그래서 이렇게 집안 곳곳에 동양적인 무드의 소품을 배치해 두었답니다.

입구에서 제일 잘 보이는 벽에 '르꼬르뷔지에'의 '빌라사보아' 포스터 액자를 걸어두었습니다. 3년 전 파리에서 빌라사보아를 방문했었는데 그 전율이 잊혀지지 않네요. 현대건축의 아버지 르꼬르뷔지에 대한 존경심도 크게 작용하지만, 실내건축을 처음 공부하던 시절의 낭만을 떠올리게도 하는 건축물이기도 합니다.

빈티지 도어 사랑은 이 집에서도 계속 됩니다. 족히 30년이 넘은 문인데요, 전에 거주하시던 분이 어설픈 멤브레인 재질의 도어로 바꾸지 않아서 너무 감사했습니다. 파리에는 정말 다양한 디자인의 도어가 많았는데 도어들이 그 자체로 건축물의 근사한 파사드가 되는 것이 인상 깊었습니다.
유심히 보니 오래된 세월만큼 정말 많이 찍히고 까지고 그 위에 페인팅을 몇 번이나 반복해서 칠했는지 떡이 되어있었습니다. 저는 이런 것들에 매력을 느끼는 사람인지라 집의 낡은 도어를 꼭 살리고 싶었습니다. 여닫을 때 원목이 오래되어서 조금 뻑뻑한 불편함은 있지만 이마저도 좋습니다.
한창 공사할 때 작업하시는 분들마다 왜 문틀과 도어를 철거하지 않았냐며 엄청 의아해 하셨습니다. 도장만 새로 하는 바람에 공사비 절감도 되었고 볼 때마다 잘했다고 생각합니다.
주방

거실에서 바라본 주방쪽 입니다. 앞에 액자 포스터가 달린 벽은 넓은 PIT벽이고 그 뒤에 냉장고가 있습니다. 최근에는 오리엔탈 수납장을 옮기고 톤암체어와 작은 원형 테이블을 배치해 보았습니다. 오다가다 잠깐씩 앉아서 아무생각 없이 앉아있을 때도 있고 아이가 노는 것을 바라보기도 합니다.

가구 중에서 '의자'를 제일 좋아합니다. 패션으로 비유했을 때 인테리어가 '옷'이라면 의자는 '가방'이 아닐까 라는 생각이 듭니다. 전체적인 분위기에 맞춰서 가장 잘 어울리는 의자를 매치했을 때 그 공간이나 사람을 더 매력적으로 느껴지게 하는 것 같습니다.
20세기 유명 건축가들이 디자인한 명품 체어들을 정말 좋아하지만 너무 고가 이기 때문에 차선으로 선택한 것은 개성이 있는 의자 입니다. 최근에 의자가 더 필요해서 알아보던 중 이케아 제품의 새로운 체어를 발견하고 바로 다음 날 매장에서 실제로 확인하고 구입하였습니다. 원래는 야외용 의자인데 이국적인 느낌에 핸드메이드 짜임패턴의 디자인이 독특하더라고요. 묵직하고 탄성이 있어서 편하기까지 하네요.
조명은 엔트레디션 코펜하겐 펜던트 조명입니다. 코펜하겐의 부둣가에서 영감을 받아 디자인했다고 하는데 플라워팟 조명이 워낙 유명해서 이 제품은 생소할 듯합니다. 철강에 옻칠로 마감했다고 하네요. 단점은 빛이 아래로만 떨어져서 다소 어둡습니다. 불을 켰는데 불을 켜달라고 하는 분들이 가끔 있습니다. 특히 저희 부모님이요!

주방이 세로로 길고 가로가 짧은 구조라 배치를 많이 고민했습니다. 싱크대를 제작할 때 오른쪽 부분은 깊이를 400으로 짧게, 길이는 길게 제작해서 수납에 비중을 두었어요. 정면은 일반적인 650 깊이로 제작 하였고 대신 상부장은 두지 않았습니다.
의자 뒤에 아일랜드 테이블은 신혼집에서 썼던 제품인데 새로 시공한 싱크대랑 통일감을 주려고 상판만 같은 인조 대리석으로 교체하였습니다. 뒷면에는 밥솥, 전자레인지가 수납되어 있습니다.

주방 창문을 지나갈때마다 옆 동에서 내가 보이는건 아닐까 혼자 신경이 쓰여 고민하던 중, 최근에 이케아 쇼핑을 하다가 패브릭 원단을 따로 구입해서 커튼을 달아 주었습니다. 바느질없이 가위로만 잘라서 집게 링에 고정한 뒤 커튼봉에 걸어만 주었습니다. (이케아 홍보대사 아닙니다 ㅜㅜ)
환기를 시키거나 햇빛이 필요할 때는 커튼을 옆으로 거두어 놓기도 합니다.

주방은 최대한 힘을 빼고 단순한 스타일로 쾌적함을 유지하고 싶어서 싱크대 인조대리석 상판도 얄상하게 올리고 손잡이도 히든 타입으로 시공하였습니다.

냉장고는 기둥 벽 뒤에 숨어서 거실에서는 보이지 않습니다. 보여도 상관은 없지만요!

얼마 전 인사동에서 구입한 항아리 모양 마그넷입니다. 동양적인 소품이나 가구는 간결하면서도 모던한 형태가 좋더라고요.
서재

서재는 제가 주로 시간을 보내는 곳인데 6인 테이블을 중앙에 배치해서 노트북을 올려놓고 작업을 하거나, 책을 읽을 때 주로 사용합니다. 저의 소중한 1인 오피스 공간 이자 손님들이 식사도 하고 차를 마시기도 하는 카페 같은 공간입니다.

책장부터 시작해 테이블, 의자, 수납장 모두 신혼집에서 쓰던 가구들이라 이전 집들이에서 이미 보셨던 분들도 있겠네요. 이전 집에서는 거대하게 느껴졌던 테이블이 이제는 너무 작게 느껴져요.

이사 오면서 책장을 새로 들일까 고민을 많이 했는데 예산의 압박으로 다음을 기약했습니다.

책장 맞은편에는 주방에서 사용하던 수납장을 두고 위에 벽 선반을 설치해서 책, 소품들로 디피하였습니다. 그러고 보니 이전 집에서는 선반을 많이 설치했는데 지금 집에는 여기 하나밖에 없네요. 수납장 옆에 검정색 미니 냉장고를 두어서 간단한 음료들을 꺼내 먹을 수 있게 하였습니다.

서재 한쪽에는 이렇게 코지한 공간도 있습니다. 당근마켓에서 구입한 콘솔인데 딥 그린 컬러와 골드의 조화가 신선해서 업어오게 되었어요. 그 후 저도 모르게 골드 소품들을 이곳에 자꾸 올려두게 되더라고요.
침실

다음은 부부침실입니다. 이 투시도는 머릿속으로 상상했던 침실의 모습입니다. 창문 하부에 목공으로 긴 선반을 시공했고 위에 멋있는 소품들을 디피하려고 하였습니다.
지금의 현실적인 침실입니다. 거대한 아기침대 가드를 간과하였습니다. 아기가 뒤집기 시작하면서 한번 떨어진 적이 있어서 침대가드를 바로 설치했어요. 안전해서 너무 좋지만, 아쉬운 점은 높은 침대에 가드도 너무 높아서 보기에는 다소 답답함이 느껴집니다. 사진을 찍기 위해 기둥을 제외한 부분은 밑으로 내려놓았지만, 평소에는 다 올려놓고 사용합니다.
침대는 신혼집에서 쓰던 이케아 브림네스 수납 침대인데 서랍이 깊고 커서 이불을 수납하기 좋습니다. 수납공간이 아쉬운 분들께 추천해 드리고 싶습니다. 단점이라면 하부 수납공간 때문에 침대가 다소 높아서 저처럼 키가 작으신 분들은 조금 불편할 수도 있습니다. 또 고려해야 할 점은 양쪽 모두 서랍이 열리기 때문에 중앙에 배치해야 합니다.

창문에 커튼을 설치하려고 했으나, 신혼집에서 사용하던 우드 블라인드를 재사용하였습니다. 저도 재사용 하는 것을 좋아하는 편인데 남편은 저보다 몇 배나 더 좋아합니다. 덕분에 신혼집 분위기와 크게 다르지 않습니다.

혹시 르코르뷔지에가 화가이기도 했다는 걸 알고 계시나요? 저는 르코르뷔지에의 드로잉 너무 좋아합니다. 침대 머리맡에 두었습니다.

침대 맞은편에는 키 큰 수납장을 여러 개 배치해서 요긴하게 사용하고 있습니다. 수납장 옆에는 미니 냉장고가 있는데 자리가 마땅치 않아서 어쩌다 보니 여기에 자리잡게 되었습니다. 어쩌다 보니 냉장고가 너무 많아져서 하나는 처분할 예정입니다.
드레스룸

드레스룸은 그냥 가볍게 봐주셨으면 합니다. 기존에 사용하던 이케아 팍스 옷장을 가운데 세우고 한쪽은 드레스룸, 한쪽은 남편의 홈 오피스(?)로 사용하고 있습니다.
드레스룸 벽 쪽으로는 이케아 보악셀 선반, 행거를 쭈욱 시공해서 옷을 최대한 수납할 수 있도록 하였고 구석에는 에어드레서를 놓았습니다. 정리를 못 해서 사진으로는 남기지 못하였습니다.

여기는 남편이 집에서 제일 애정하는 공간입니다. 듀얼 모니터를 두고 재택근무를 하거나, 온라인 게임을 주로 하면서 스트레스를 푸는 곳입니다. 책상 위는 남편의 영역이라 따로 건들지는 않고 있습니다. 어디서 들었는지 기억은 안 나지만 작더라도 부부가 각자 자기만의 공간을 가지고 있어야 좋다고 하네요!
아이 방

아이 방은 아이가 좀 더 크면 안방을 아이에게 내어주고 이 방에는 침대만 두어서 저희 부부가 사용할 예정이라 크게 손을 대지는 않았습니다. 여기서는 주로 놀고 잠은 저희 부부와 함께 안방에서 같이 자고 있습니다.
바닥에는 여느 아이 방처럼 안전과 층간소음 방지를 위해서 쿠션 매트를 깔아주었습니다.

문 옆에는 제가 자취하던 시절부터 사용하던 책장 선반을 재활용해서 아이의 책, 장난감을 수납하였고, 미끄럼틀이나 부피가 큰 장난감들은 베란다에 두어서 방을 좀 더 넓게 사용할 수 있도록 하였습니다.

방 한쪽엔 엄청나게 긴 붙박이장이 자리하고 있습니다. 기존 도어, 손잡이에 도장만 새로 하였습니다. 드로잉페이퍼에서 사은품으로 받은 드로잉엽서를 옷장 문에 붙여서 재미나게 구성해보았습니다.
처음에는 붙박이장을 철거하고 방을 좀 더 넓게 쓰려고 하다가 팬트리가 따로 없는 집이라 수납을 택했습니다. 안에는 드레스룸처럼 이케아 보악셀 선반, 행거를 풀로 설치해서 옷, 아기 용품 등을 요긴하게 수납하고 있습니다. 아이는 이 안에 들락날락하는 걸 엄청 좋아합니다.
욕실

마지막으로 욕실입니다. 욕실은 정말 긴축해서 기본스타일로 진행했기 때문에 크게 보여드릴 것이 없네요! 거실 욕실은 샤워부스, 안방 욕실은 욕조를 설치했고 마감재는 동일하게 시공하였습니다.
집들이를 마치며...

뒤돌아보면 예정에 없었던 바닥, 수도배관 공사를 하면서 예산, 공사기간이 늘어나는 바람에 인테리어 적인 부분에서 좀더 힘을 빼야 했고 중간에 공사일정도 다시 조율하는 헤프닝도 있었습니다. 거기다 보관이사, 에어비앤비 숙소 일정도 연장해야 했구요. 아기까지 있어서 쉬운 일은 아니었지만 입주하고 1년이 다 되어가는 요즘은 고생한만큼 뿌듯하긴 합니다.
온라인 집들이를 통해서 다시 한번 정리하며 기록할 수 있는 계기가 되어서 감사하네요! 누군가에겐 조금이나마 도움이 될 수 있진 않을까 하는 마음에 주저리주저리 글을 써 내려갔는데 좋은 마음으로 봐주시면 감사할 것 같아요. 저 또한 오늘의집에서 많은 사례를 보며 많이 배우고 자극을 받을 때가 많습니다. 저마다의 취향과 이야깃거리가 있는 집들이를 보면서 저도 다른 시각으로 집에 대해 한번 더 생각해 보기도 합니다. 개인적으로는 오래된 구옥 공사를 할 때 기존에 집이 가지고 있던, 낡았지만 아름다운 것들을 매력적인 존재로 재탄생 시키는 사례들을 제일 눈여겨보곤합니다.

어떠한 형태이든 집이란 공간에 나와 가족들의 취향, 감성적인 부분들을 잘 녹여내고 있는지가 중요한 것 같습니다. 물론 하루아침에 되진 않지만, 집에 애정을 가지고 가꾸어 나가면 세월이 감에 따라 나를 닮은 공간이 오롯이 나오지 않을까 합니다. 멋들어지게 찍은 업체의 준공 사진보다 세월을 같이하며 점점 내가 묻어 나오는 일상이 담긴 집의 사진에서 더 큰 감동이 느껴지는 것처럼요!
가장 한국적인 것이 세계적이라고들 하는데 가장 나다운 집이 최고의 집 아닐까 합니다. 아론맨션 집들이는 여기서 마칩니다. 긴 글 읽어주셔서 감사합니다. 다음에 기회가 된다면 또 인사드릴게요!

