ARCHITECTURE CORNER

불편하신 어머니를 위한 집을 짓기 위해 건축주가 연락을 주셨다. 그런 만큼 집짓기 계획은 어머니를 위한 공간을 만드는 부분에 중점을 뒀다. 그중 제일 중요한 조건은 집에 설치할 수 있을 엘리베이터와 편안하고 여유 있는 목욕 공간이었다. 더불어 이런 조건을 중목구조에 적용해야 하는 상황 등 해결해야 할 과제가 많았다.
진행 남두진 기자│글 자료 박민용 건축사│사진 이남선 작가
DATA
위치 경기 용인시 수지구
건축구조 철근콘크리트조, 중목구조
대지면적 329.00㎡(99.52평)
건축면적 75.64㎡(22.88평)
연면적 136.38㎡(41.25평)
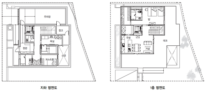
지하 164.26㎡(49.68평)
1층 75.67㎡(22.89평)
2층 60.71㎡(18.36평)
건폐율 22.99%
용적률 41.45%
설계기간 2020년 2월 ~ 7월
시공기간 2020년 8월 ~ 2021년 2월
설계 박민용 010-3423-6573
시공 단감건축
MATERIAL
외부마감
지붕 - 컬러강판
외벽 - 세라스킨, 탄화목, 노출콘크리트
내부마감
천장 - 페인트도장
내벽 - 페인트도장
바닥 - 강마루
단열
지붕 - 글라스울
외벽 - 글라스울, THK135 가등급 단열재
계단
디딤판 - 원목
난간 - 제작, 원목 손스침
창호 알파칸
도어 현관-YKK도어
주방가구 우림
위생기구 토토

도로를 등지고 자연을 끌어안은 배치
대지는 자연 환경이 주변을 둘러싼 작은 동네의 끝자락에 위치한다. 이곳을 건축주가 선택한 이유는 자연 환경을 충분히 느끼면서 무엇보다 어머니의 편안한 휴식을 위함이었다. 대지는 약간 경사진 도로에 면했기에 지하 주차장을 만들 수 있었다. 그 부분을 기단으로 계획하고 위에는 집을 계획할 수 있었다.



대지는 옆에 흐르는 천을 따라 사다리꼴로 자리했다. 주택은 최대한 도로에 인접해 등진 모습으로 배치했다. 이로써 테라스를 넓게 이용하도록 배치해 날씨가 좋을 때는 밖에서 자연을 만끽할 수 있는 등 뒤편의 자연 경관을 충분히 즐길 수 있도록 했다.

입면은 총 세 가지 다른 자재를 사용해 포인트를 주면서 주변과 어울리도록 계획했다. 지하층의 노출되는 벽면은 노출콘크리트를 사용해 바닥의 견고함을 나타냈고, 1층의 탄화목은 주변 자연 요소와의 고려를 위해 활용됐다. 2층은 주변 건물들의 조화를 고려해 흰색 세라스킨으로 마감했다.



환기와 채광이 함께하는 쾌적한 공간
현관은 지하층에 주차한 후에 마주한다. 실내에 들어오면 간병인이 지낼 수 있는 방과 크게 제작한 매립 욕조가 있는 화장실이 나온다. 빛을 내부로 잘 끌어들일 수 있도록 선큰도 계획했다. 지하층이지만 화장실과 방에서의 원활한 환기와 풍부한 채광이 함께해 쾌적함을 유지한다.



1층에는 주방·거실을 배치하고 자연이 바라보이는 곳을 향해 큰 창을 냈다. 안방 역시 같은 자연 환경을 바라볼 수 있도록 배치했다. 2층에는 아버지가 단독으로 사용할 수 있는 방과 작은 간이 주방을 계획함으로써 가족 구성원의 서로 다른 라이프스타일에도 간섭 없이 생활할 수 있는 공간이 완성됐다.


한편, 집에서 제일 중요한 공간은 큰 매립 욕조가 있는 화장실이다. 어머니의 전용 공간으로서 큰 면적으로 설계됐고 지하에 위치하지만 채광과 환기가 반드시 동반돼야 했다. 그만큼 건축주와도 이곳에 대해 많은 부분을 이야기했으며 충분히 만족할 수 있도록 신경을 썼다. 단순히 목욕만 하는 공간이 아닌 앉아서 휴식도 충분히 취할 수 있는 파우더룸도 함께 계획이 이뤄졌다.


연세가 많은 어르신을 위해 모서리 마감에 특히 신경을 썼다. 미끄럽지 않은 자재 선정부터 단차를 최대한 줄이는 계획 그리고 벽면 손잡이까지 많은 부분에 세심한 디테일을 더했다. 지하에서부터 이어지는 지상 1층과 지상 2층까지 최대한 편하게 이용할 수 있는 동선 계획 또한 놓치지 않았다.


무엇보다 목조 주택에 주택용 엘리베이터를 설치하는 것이 관건이었다. 설치 사례도 매우 적을뿐더러 업체도 한정적이기 때문에 해결에 많은 고민이 따랐다. 다행히 시간을 들인 끝에 설계와 시공에 적합한 업체를 섭외할 수 있었고 목구조에 철골조를 추가로 설치함으로써 안전하고 편리한 엘리베이터까지 설치할 수 있었다.
2011년 단국대학교에서 건축학을 전공했고 2012년부터 이손건축에서 실무 경력을 쌓았다. 2015년에 밀라노 공대(Politecnico di Milano)에서 건축학 석사학위를 받았으며 2017년 이탈리아 건축사 자격증을 취득했다. 2018년 이후 Naoi+Partners 소장으로서 많은 주택을 설계했으며, 현재 한국 건축사와 이탈리아 건축사 자격으로 다양한 작품 활동을 하고 있다.