
안녕하세요. 화성시에 '온유재'(따뜻하고 재미있는 집)를 지어 20개월 아기와 함께 살고 있는 주택살이 2 년 차 신혼부부입니다:) 오늘의 집에 저희가 지은 주택을 일찍이 소개하고 싶었었는데, 아이를 키우느라 바쁘게 살다 보니 어느새 저희가 지은 주택에 2년째 살고 있네요~! 아이가 있는 집은 알록달록 촌스러울 거라는 편견을 깨뜨리고 싶어서 이렇게 온라인 집들이를 작성하게 되었습니다.
따뜻하고 재미있는 집을 짓기 위해 저와 신랑은 남편 회사 사택에 거주하며 예산 계획을 세우고 땅을 보러 다녔어요. 처음에는 타운하우스도 생각했지만, 온전히 저희가 원하는 스타일 대로 짓기 위해서는 설계부터 시공까지 우리가 직접 업체를 고르고 진행하는 편이 낫겠다 생각하여 땅을 구매하고 집을 짓게 되었답니다. 그 사이 예쁜 아가가 생겼고, 시공 중에 세 식구가 되어 같이 이사하게 되었어요!
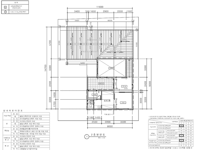
도면

먼저 1층 설계 도면부터 보여드릴게요. 처음 집 설계를 할 때 가장 중요하게 생각한 부분은 주차장과 주방 통창, 그리고 프라이버시 확보였어요. 그 결과 주차장을 주 출입구 옆에 배치하고 주차장으로 안마당을 가릴 수 있게 했어요.
안마당에는 주방 통창 뷰를 확보하여 집 안에서는 주방을 통해 마당의 초록 초록한 조경을 볼 수 있지만 도로에서는 저희 집 마당을 볼 수 없도록 설계했답니다! 또 독서를 좋아하는 신랑의 의견을 반영하여 거실의 뒤편에는 서재를 배치했습니다. 1층의 방들은 아기방들로 꾸몄고, 욕실은 세면대를 따로 분리하여 건식 세면대로 활용 중이에요.

2층은 온전한 부부 휴식의 공간으로 꾸몄어요. 그래서 안방이지만 침대만 배치할 수 있도록 넓지 않게 설계하였고, 욕실에는 큰 조적 욕조를 설계했습니다. 2층도 마찬가지로 샤워 시설은 따로 분리하여 세면대와 변기는 건식으로 사용 중이랍니다:) 그 외에 드레스룸과 작은 테라스 하나를 만들었고, 좁지만 높은 층고를 활용하기 위해 다락방을 두었어요!
외관

오른쪽 우드 주차장 자동문 보이시나요? 현관 포치의 우드 톤과 맞추기 위해 일부러 우드로 주문 제작했어요. 자칫 심심할 수 있는 화이트 톤 온유재에 우드가 포인트가 되어주는 것 같아요.

드론으로 찍은 온유재 전경입니다. 왼쪽에는 대형 유치원, 오른쪽에는 초등학교가 있어요. 나중에 우리 아가가 다니게 될 곳이겠죠?
거실

거실을 설계할 때 앞서 말씀드렸듯 한편에 신랑의 서재를 두기로 했어요. 거실이 조금 좁아졌지만 공간 분리를 통해 더 깔끔한 거실을 만들 수 있었습니다. 모듈 소파를 배치해서 구조가 지겨워질 때마다 바꿔가며 사용 중이랍니다.

거실 한편에는 벽등을 달았어요. 저녁에 벽등만 켜두면 무드 있는 거실을 완성할 수 있어요!

거실 끝에서 바라본 전경입니다. 주방을 일자로 배치해서 넓지 않은 공간을 넓어 보이게 설계했어요. 6인용 큰 식탁을 배치했는데도 공간이 좁아 보이지 않아요 :) 주방의 높은 층고도 한몫한 것 같아요!

거실 벽 조명 너무 예쁘지 않나요? 거실 창으로 바라본 서재예요. 서재에는 시공할 때 긴 책상과 책장을 주문 제작했어요. 부족한 책들을 꽂아두기 위해 블랙 책장을 구매했는데, 서재 분위기와 잘 어울리는 것 같아서 너무 만족스러워요. (단점은 프리 오더 제품이라 제품 받는 데 꽤 오래 걸렸네요...)

서재의 작은 창으로 바라본 풍경이에요. 서재의 서쪽 작은 창은 노을이 질 때 너무 예쁘답니다. 마치 그림 같아요.
거실 속 베이비 룸


처음 입주할 때는 아이가 어려서 아이 물건이 많이 없었는데, 돌이 지나니 아이 교구와 책들을 둘 공간이 필요해지더라구요. 온유재 방향성이 화이트와 우드이기에 아이 가구 역시 화이트 우드로 맞춰서 구매했습니다. 통일성을 위해 아이 가구는 다 같은 브랜드에서 구매하였고, 앞으로도 그럴 예정이에요!

베이비룸 크기를 큰 것으로 구매할까 고민도 많았지만 오래 사용하지 않을 것 같아서 작은 사이즈(10p)로 구매했어요. 큰 것을 구매했다면 거실의 너무 많은 공간을 사용해야 해서 답답해 보였을 텐데, 작은 사이즈의 베이비룸 한편으로 모듈 쇼파를 ㄱ자로 배치하니 딱 맞더라구요!

베이비룸을 처음 들였을 땐 너무 편하고 좋았지만, 아이가 크니 너무 좁다는 생각이 들어 안전 문을 들였어요. 현재는 사진처럼 베이비룸을 빼고 모듈 소파를 다시 일자로 배치한 뒤 거실 전체를 아이에게 내줬습니다. 아이가 있어도 집이 깨끗해 보이는 이유는 우드와 화이트라는 큰 틀을 깨지 않고 유지하고 있기 때문은 아닐까 싶어요:-)

베이비룸에서 저의 가족의 모습이에요 :)
주방

온유재 주방의 매력 포인트는 통창과 높은 층고입니다. 설계 때 넓지 않은 집을 넓어 보이게 사용하고 싶다고 요청드렸고, 주방은 오픈 천장으로 시공하게 되었어요. 우드와 화이트의 조합이 균형감 있게 디자인된 저희 주방은 바닥을 화이트 타일 마감을 한 대신 아일랜드 장과 싱크대 하단부를 우드로 맞췄습니다. 빌트인 냉장고 위쪽과 옆쪽의 남는 공간에는 붙박이장을 제작해서 수납을 확보했습니다.

2층에서 보면 주방의 높은 층고를 실감하실 수 있어요. 1층이 30평 정도로 넓지 않은데도 불구하고 개방감이 좋아서 그보다 훨씬 집이 커 보이는 장점이 있어요.

아무리 수납이 많아도 요리를 하다 보면 어쩔 수 없이 이 정도는 주방이 지저분해지는 것 같아요^^
보조 주방


주방 한편 히든 도어 안쪽 가려진 공간은 보조 주방 겸 세탁실입니다. 문 왼쪽에는 붙박이장을 짜고 콘센트를 넣어서 에어프라이어와 전자레인지를 숨겼고, 그 아래 붙박이장에는 세탁물을 보관하고 있어요. 사진에는 보이지 않지만, 세탁기 왼편에는 가스레인지가 숨어있답니다.
1층 욕실

1층 화장실의 세면대는 샤워 부스와 분리하여 건식으로 사용하고 있어요. 처음에는 세수할 때 물이 튀어 마루가 상하면 어쩌나 걱정이 많았는데 생각보다 장점이 더 많고 잘 사용하고 있어요~

욕실 옆 복도 공간이에요. 온유재가 따뜻하고 재미있는 집이라는 뜻을 가지고 있다고 말씀드렸는데, 그 이유 중 하나가 바로 이 단차예요. 건축가께서 저희 집 터 자체가 경사진 곳에 있어서 평평하게 집을 지을 경우 토목공사 비용이 만만치 않을 것이라는 이야기를 하셨어요. 비용도 비용이지만 이러한 단점을 장점으로 극복하고 싶었고, 처음 집 설계를 할 때 터 돋움을 하지 않고 집에 단차를 두기로 했답니다.
그 결과 이렇게 재미난 구조가 탄생했어요. 이곳에서는 집 안의 공간 흐름이 한눈에 들어와서 너무 좋아요. 그리고 마당 쪽은 윈도우 시트로 계획하고 시공했어요. 윈도우시트에 앉아서 마당을 보고 있으면 마음이 편안 해져서 저희 가족의 쉼 공간이 되어준답니다.

가끔 야외에서 바비큐를 할 때 저랑 아이는 얄밉게 윈도우 시트에 앉아 땀 흘리고 있는 신랑을 바라보곤 한답니다. 가끔 화분을 올려 두기도 하고 여러모로 활용도 좋은 창문이에요.
아이 방

1층 아이 방이에요. 한쪽에 낮은 장을 주문 제작했는데, 지금은 그 위에 책장을 두고 아기 독서 공간으로 활용 중이랍니다. 침대는 컬러감이 있는 범퍼 침대를 놓아 심심할 수 있는 아기방에 생동감이 생겼어요~

책장도 화이트 & 우드로 통일감을 줬습니다. 아기 장난감들은 아래 장에 넣어 보관 중이에요. 수납이 많으니 집이 깔끔하고 아기 물건 정돈도 잘 되어서 너무 좋아요.

지금은 아이가 많이 커서 혼자 저곳에 올라가 읽고 싶은 책을 골라 오기도 해요~

아기방 옆 작은방에는 작은 침대를 뒀어요. 지금은 아기를 재우고 저는 이곳에서 잘 때가 많지만, 아기가 조금 더 크면 범퍼 침대 대신 이 데이베드 침대의 가드 부분이 반대로 오게 돌려서 아기 침대로 사용할 예정입니다. 침구는 차렵이불이라 세탁이 편한 상품 중에 박음 부분이 티가 많이 나지 않는 제품으로 고르고 골라 구매했어요^_^

반대편에는 창문 없는 쪽은 붙박이장을 설치하여 아이 옷을 넣어 보관 중이고, 창문 쪽은 책상을 제작했어요. 전체적으로 이 방도 우드와 화이트로 통일감을 줬고, 아기 옷들이 전부 붙박이장에 들어가 있다 보니 깔끔해 보이는 것 같아요~
2층 가족실

2층으로 올라오면 가족실이 있어요. 이 공간을 어떻게 해야 하나 정말 고민을 많이 했었어요. 다락에 계단을 두면 공간을 너무 많이 차지하는데 좋은 방법이 없을까 고민하다가 사다리를 두기로 했답니다.

다락은 사실 층고가 굉장히 낮아서 키가 작은 제가 올라가도 허리를 숙여야 해요! 아래에서 보면 깔끔해 보이지만 사실 위쪽은 실내 창고이기 때문에 사용하지 않는 아기 용품과 저희 잡동사니들로 가득 차 있어요...

민망해서 공개하고 싶지 않았던 다락 공간이에요~ 보시다시피 지저분한 물건들을 마구마구 쌓아두고 있답니다. 겨울에 사용했던 트리도 이곳에 보관 중이에요 :-) 그때그때 기분에 따라 액자를 바꿔 걸어두는데 사용하지 않는 저희 가족 액자도 이곳에 보관 중이랍니다~ 지붕 모양 그대로 만들어진 공간이라 가구를 둘 공간은 없지만 창고로 유용하게 사용 중입니다!


다락에 계단 대신 사다리를 놓은 덕에 가족실이 넓어져서 좁은 공간이지만 나름 차를 마실 수 있는 미니 바로 이용할 수 있게 되었어요. 이사 오기 전 신혼집에서 사용하던 작은 레트로 냉장고는 2층 홈바 한편에 두고 음료 냉장고로 사용 중입니다.

최대한 넓어 보이기 위해 탁자와 의자 모두 작고 투명한 아크릴로 주문했어요. 계단 옆 공간도 통유리로 제작하여 넓어 보이는 효과가 2배가 되었답니다.

홈바에는 그때그때 꽃을 사서 꽂아 두고 있어요. 심심할 수 있는 공간인데 작은 타일을 깔아 포인트를 주었어요.

가끔 아기와 함께 간식을 먹으며 휴식 시간을 즐기기도 했네요.

크리스마스에는 트리도 꾸며보았어요. 겨울 인테리어의 완성은 트리 장식 아니겠어요? :-)


크리스마스에 가족실을 꾸며서 옷을 맞춰 입고 가족사진도 한 장 찰칵했어요~! 저희 아가 너무 귀엽지 않나요! 정말 루돌프 같았답니다 :-)
2층 부부 침실

이제 2층으로 올라가면, 온유재는 안방이 나온답니다. 안방은 가장 좁게 설계했어요. 온전히 부부의 쉼 공간이고 싶어서 이곳에는 딱 침대 하나만 뒀습니다. 침실 문은 아치형으로 제작했어요. 심심할 수 있는 공간에 재미가 더해졌네요.

봄에는 밝은 톤의 침구로 변신도 시켜줬네요. 침실에서 무엇보다 중요한 건 충분한 수면을 취하는 것 같아요. 그래서 가능한 소품을 줄이고 침대만으로 스타일링의 힘을 주고 싶었어요. 원목으로 된 침대 헤드는 무게감이 느껴지면서도 내추럴한 느낌이라, 침구만 바꿔줘도 분위기를 확 바꿔줄 수 있어요!
드레스 룸

침실 옆의 드레스룸이에요. 설계 때 가방을 수납할 수 있는 공간을 만들었으면 좋겠다고 요청드려서 이렇게 작은 가방 수납공간도 만들었고 조명도 설치해서 고급스러움을 살렸어요. 드레스룸 역시 화이트로 꾸몄고, 손잡이 없이 푸시 서랍장으로 제작하여 깔끔함을 살렸답니다.

가방 수납공간을 만드니 이곳에 들어올 때마다 백화점에 놀러 온 것 같은 기분이 들어 항상 행복해요.
2층 욕실

2층 욕실이에요. 호텔처럼 꾸미고 싶다고 시공 전 말씀드렸고, 타일은 가장 큰 타일로 골라 고급스러움을 살렸어요. 세면대의 거울에는 간접조명을 달아 무드 있는 욕실을 완성시켜주네요.

2층 욕실 세면대와 변기도 샤워 공간과 분리하여 건식으로 사용하고 있어요. 수납공간 역시 1층 주방 아일랜드 식탁에 사용했던 무늬와 같은 우드 톤으로 제작해서 통일감을 살렸어요.

샤워기는 매립형으로 골라 깔끔함을 살렸어요. 한편에는 니켈 무광 샤워 선반을 시공해 샤워에 필요한 샴푸 린스 등을 놓고 사용 중이에요. 욕실에는 통창을 만들었는데 저희 집 마당 뷰이고 지붕이 가려줘서 도로에서는 잘 보이지 않으나 아무래도 욕실이다 보니 프라이버시 확보가 중요하다고 생각되어 알루미늄 블라인드를 설치했어요.


블라인드를 올렸을 때 욕실 뷰예요. 욕조는 큼직하게 조적 욕조로 제작하였고, 욕조에서 목욕을 즐기며 안마당을 감상할 수 있어서 이곳은 저희 가족 힐링 공간이랍니다. 욕조는 아이가 수영을 할 수 있을 정도로 넓어요~ 다시 1층으로 내려가 볼게요!
현관 & 주차장

이곳은 온유재 현관입니다. 신발장 수납장 아래 간접조명을 설치해 은은한 분위기를 연출했고, 오른쪽에는 큰 거울과 벤치를 만들어 넣어 외출 전 옷매무새를 체크할 수 있게 했어요. 그리고 이곳은 오른 편에 비밀의 문이 있어요. 정면의 창문 오른편 신발장은 사실 장이 아니고 주차장으로 가는 통로랍니다!

신발장처럼 보이는 곳을 열면 방화문이 나와요. 문을 열면 주차장이 짜잔! 이 주차장은 도로 쪽에는 우드 자동문을 설치해 차가 드나들 수 있게 하였고, 반대편은 사진처럼 마당으로 통하게 폴딩 도어를 설치했답니다.

주차장 쪽에서 바라본 거실이에요. 중문은 여닫이로 제작하여 열었을 때는 파티션 느낌이 나도록 창살 도어로 제작했어요.

저희집 주차장 뷰는 노을 맛집이에요.
마당

온유재 마당이에요. 마당 진입은 주방 통창으로도 할 수 있고, 주차장에서도 폴딩 도어로 나갈 수 있도록 설계했답니다. 얼마 전까지도 사진처럼 푸릇푸릇 잔디로만 이루어진 공간이었는데, 맞벌이 부부인데다 아이까지 키우고 있어서 잔디 관리할 시간이 없더라구요... 그래서 얼마 전 블록을 시공했어요.

마당에서 바라본 온유재. 주방 통창이 정말 매력적이지 않나요? 윈도우 시트 앞쪽 포치 공간은 현재 우리 집 강아지 쿠바의 공간으로 꾸며져 있답니다. 포치가 있으니 쿠바가 비가 오는 날에도 뽀송함을 유지해요.

가끔 마당에서는 아가와 함께 셀프 가족사진을 찍기도 해요.


어때요? 사진관에서 찍은 것 같나요? 매년 같은 곳에서 가족 사진을 찍으려고 생각중이에요~

앞서 말씀드렸듯 맞벌이 부부에 아이까지 키우려니 잔디 관리할 시간이 나질 않아서 얼마 전 블록을 시공했답니다. 그래도 초록 초록한 분위기는 유지하고 싶어서 일부분 잔디는 남겨뒀어요. 블록을 시공하니 활용도가 배는 커진 것 같아요!

남편이 인터넷으로 구매하여 얼마 전에는 파고라를 셀프 시공했어요. 화이트 제품 구매하고 싶어서 정말 열심히 찾아봤는데 온유재에 딱 어울리는 화이트 파고라를 찾아서 정말 기뻤답니다. 파고라 3면에는 롤 블라인드가 달려 있어서 빔을 쏴 영화를 시청할 수도 있을 것 같아요~
마치며

집을 짓고 산다는 것은 결코 쉬운 일이 아니에요. 그럼에도 불구하고 저희 가족은 다음 보금자리도 역시 집을 지을 예정입니다. 힘들었지만, 그만큼 저희에게 돌아오는 만족감은 배 이상이기 때문이에요. 우리가 사는 방식대로 집을 설계하고 그곳에서 이야기를 만들어 나가는 것만큼 재미있고 즐거운 일은 없을 것 같아요. 끝으로 온유재 집들이 그리고 저희 가족 이야기 끝까지 봐주셔서 정말 감사합니다.

