ARCHITECT CORNER

사람과 전원 사이에는 내일이 기대되는 두근거림이 있다. ‘마중집’은 전남 화순군에 위치한 전원주택으로, 건축주 부부와 2명의 대학생 자녀가 삶의 2막을 이어나갈 의미 있는 집이다. 삼거리로 향하면 선물처럼 등장하는 주택 모습과 박공지붕 사이에 일자 형태로 마중 나온 툇마루의 모습, 이 두 가지의 모습을 일컬어 ‘마중집’이라는 이름을 붙였다. 여유와 쉼이 깃든 아늑한 분위기, 개인의 프라이빗 공간이 보장된 맞춤형 공간으로 완성된 이곳 주택은 한적한 전원 속 툇마루의 감성이 마음을 온화하게 물들인다.
진행 이형우 기자 | 글 자료 레이어드 건축사사무소 | 사진 김봉수 작가
DATA
위치 전남 화순군
용도 단독주택
건축구조 경량 목구조
대지면적 402㎡(122.12평)
건축면적 133.62㎡(40.42평)
연면적 133.62㎡(40.42평)
건폐율 33.23%
용적률 33.23%
설계기간 2022년 2월 ~ 6월
시공기간 2022년 7월 ~ 12월
설계 레이어드 건축사사무소
02-553-1557 https://layeredarch.com
시공 공간기록 1544-1553 https://ggglog.com
MATERIAL
외부마감
지붕 - 포스링클
외벽 - 라하브라 스타코
데크 - 고흥석 버너, 적삼목
내부마감
천장 - 도배(실크벽지)
내벽 - 도배(실크벽지)
바닥 - 강마루, 포세린 타일
단열재
지붕 - 화이트 폼단열 180㎜
외벽 - 화이트 폼단열 100㎜
창호 시스템창호(에너지1등급/살라만더)
조명 3인치 매입등
현관문 성우스타게이트
주방가구 건축주 직영
위생기구 아메리칸 스탠다드
난방기구 가스보일러



‘마중집’은 연면적 40평대의 경랑 목구조 단층주택이다. 직장생활을 하는 건축주 부부는 방학 이 되면 집에 머무르는 대학생 자녀들과 함께 거주할 공간이라서 관리가 편한 형태로 지어지길 희망했다.



비정형 땅 위 자투리 외부공간을 활용한 툇마루 주택
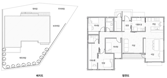
나지막한 오르막길을 오르다보면 삼거리와 함께 주택을 마주하게 된다. 정면으로 가장 먼저 접하게 되는 집이기 때문에 단정하고 깔끔한 분위기의 외장재와 주택 형태를 계획했다. 남향의 햇빛이 드리우는 집은 눈부신 스타코와 두 개의 정돈된 박공지붕 그리고 H자 형상의 안정적인 주택 형태로 완성해 주변의 자연 경관 분위기까지 단정함으로 물들인다. 남향에 앞마당을 배치했으며, 이 외의 자투리 공간을 다양한 쓰임새의 마당으로 나눠 프라이빗한 뒷마당과 주차공간, 그 외 보조마당을 계획하게 됐다. 높낮이가 있는 택지였지만 이미 평평하게 잘 조성돼 있었기 때문에 새로 땅을 파서 주차장을 만드는 공정을 생략하고, 자투리 땅에 주차마당을 만들었다.
마중집의 택지는 도로에 인접해 있었지만, 정면 방향으로 내리막길이 형성돼 단차가 있었다. 이에 펜스를 설치해 시야를 가리지 않도록 계획했으며, 단차가 낮아지는 측면의 경우 프라이버시를 보호하고자 옹벽을 쌓았다. 또한 택지 특성상 추후 주택이 들어올 것을 예상해 인접 대지 방향으로 닫힌 뷰를, 정면 방향으로 열린 뷰를 구상했다.
건축주는 전체적으로 휴식을 위한 집을 원했고, 추가적으로 편하게 앉아서 쉴 수 있는 툇마루를 요청했다. 고민 끝에 시골집의 정겨운 툇마루 느낌을 살리고자 내구성을 자랑하면서 우드 분위기를 함께 느낄 수 있는 적삼목을 마감재로 선택했다. 처마를 길게 빼 강한 햇빛이나 갑작스러운 날씨에도 대비할 수 있는 실용성 있는 툇마루를 계획했다.


효율적이고 합리적인 공간 배치
주택은 ‘주방-거실’과 같은 공용 공간과 ‘침실-개인 공간’과 같은 사적 공간이 한 층에 모여 있기 때문에 더욱 효율적이고 합리적인 공간 배치가 필요했다. 주택의 진입 방향이자 도로와 인접한 오른쪽은 공적 영역을, 그 반대쪽인 왼편은 사적 영역을 계획했다. 볕이 잘 드는 남향에 거실과 주방, 다이닝룸 그리고 침실을 배치했다.
각각의 공간들이 뚜렷이 구분돼 독립적인 역할에 충실하기를 원했던 건축주의 스타일을 반영해 주방과 거실을 명확하게 나눴으며, 개방형 입구를 만들어 포인트를 더했다. 거실은 온전히 휴식을 취할 수 있는 쾌적한 공간으로 이용할 수 있으며, 주방은 조금 더 적극적으로 공간을 활용할 수 있다. 거실과 주방 및 다이닝룸 공간 등 공적 공간의 반대편에는 안방, 자녀방, 욕실 등 프라이빗한 사적 공간을 배치했다.





실용성을 부여한 공적 공간
주택 외관만큼이나 단정하고 심플한 분위기를 자아내는 현관을 지나면 툇마루의 고즈넉한 분위기와 함께 남향의 햇빛이 가득 드리우는 거실에 들어서게 된다. 거실은 미니멀한 취향이 돋보이는 공간이다. 밝은 톤의 마루가 공간을 더욱 깔끔하고 심플하게 강조하고 있다. 주방으로 이어지는 입구를 라운드로 계획해 공간에 안정감을 부여하고, 볕의 따스함이 담긴 툇마루에서는 가만히 앉아 자연의 온기를 느끼며 전원을 만끽할 수 있다.
아치형 입구로 들어가면 아늑한 주방이 펼쳐진다. 미니멀한 분위기의 거실과 일체감이 느껴지는 주방은 한정된 공간에서 최대한의 실용성을 부여했으며 군데군데 포인트를 담아 심플하되 밋밋하진 않은 우드-화이트의 주방으로 완성했다. 잘 정돈된 공간은 기본적으로 부지런함이 동반돼야 하지만, 더불어 넉넉한 수납공간이 필수적이다. 이에 주방 안쪽에 자주 사용하는 가전제품 이외 다른 물건들을 수납할 수 있도록 다용도실을 설계해 한정된 공간의 주방이 언제나 깔끔함을 유지할 수 있도록 했다. 한편, 주방 천장과 비교해 다이닝룸의 천장은 박공지붕의 형태가 그대로 드러나 넓은 공간감이 느껴진다.




‘휴식을 위한 안정적인 집’
안방은 건축주의 개성이 강하게 드러난 공간이다. 일반적인 우드-화이트의 심플하고 아늑한 침실 대신 다크 그린 컬러의 벽지와 블루 계열의 패브릭이 조화롭게 어울리는 공간으로 연출했다. 이러한 포인트의 공간은 자칫 어두침침한 분위기를 예상할 수 있지만, 남향의 햇빛이 풍부하게 드리워져 오히려 안정감을 느끼게 해준다. 여기에 휴식을 중시하는 건축주를 위해 침실과 드레스룸, 화장실을 연결해 공간에 편리한 동선을 부여하되 화장실과 안방의 위치를 최대한 떨어트려 화장실의 소음에 수면이 방해받지 않도록 했다.
자녀 방에는 윈도우시트를 한 켠에 배치해 면적은 협소하지만, 폭을 넉넉하게 만들어 충분한 휴식을 취할 수 있도록 계획했다. 공용으로 이용되는 화장실은 은은한 색감의 포세린타일로 벽과 바닥을 일체시켜 건축주가 전반적으로 원했던 깔끔하고 심플한 분위기를 유지했다. 특히 요즘 이용의 편리함을 위해 분리형 화장실과 건식 세면대를 희망함에도 이곳 주택에는 건식 세면대를 계획하지 않았다. 화장실을 분리해 이용하지 않아도 충분하다는 건축주의 취향을 반영해 이질적이지 않은 안정된 공간을 완성했다.
컴퓨터 작업을 많이 하는 건축주 부부는 별도의 서재 공간을 필요로 했다. 넓지 않아도 된다는 건축주의 의견에 드레스룸의 자투리 공간을 활용해 아늑하고 실용적인 서재를 완성했다. 협소하지만 창을 내고 별도의 수납공간을 계획해 쾌적하고 실용성 있는 장소로 만들었다.



‘마중집’은 공간에 대한 뚜렷한 생각을 전해준 건축주 덕분에 전체적으로 요구사항이 잘 반영된 맞춤형 공간이다. ‘휴식을 위한 안정적인 집’을 주된 분위기로 지은 만큼 누구나 이 공간에 머물면 낯섦이 느껴지지 않는 편안하고 따뜻한 느낌을 반영했다. 화순의 한적하고 따뜻한 전원이 물들어 마음의 안식처가 되어 주는 집에서 부부의 여유로운 삶, 자녀와 함께 탐스러운 삶이 영글어 간다. 볕이 스민 따뜻한 툇마루가 설렘을 가장 먼저 맞이하는 집, ‘마중집’이다.
