저마다의 목표로, 상가주택
단순 주거와 다르게, 여러 겹의 용도가 한 대지에 모여 지어지는 상가주택. 수익 이상의 목적을 지닌 상가주택 사례와 건축 트렌드까지 짚어본다.
단순 주거와 다르게, 여러 겹의 용도가 한 대지에 모여 지어지는 상가주택. 수익 이상의 목적을 지닌 상가주택 사례와 건축 트렌드까지 짚어본다.
집짓기 시기를 정하는 것은 어떤 현장이나 중요하지만, 상가주택은 수익성이 수반되기에 더욱 조심스럽다. 요즘 상가주택을 둘러싼 환경은 어떤지, 임대 시장이나 건축 여건은 어떤지 건축 전문가들에게 물어봤다.
최근 상가주택을 둘러싼 금융, 임대 환경
요즘 상가주택 짓는 현장들은 어떤가
이남경 대표(부경종합건설, 이하 이) : 꼬마빌딩이나 상가주택 건축은 이제는 거의 ‘하던 사람들만 한다’는 분위기다. 큰 현장이나 지명도 높은 시공사들 현장만 돌아가고, 빌라 분양 같은 소규모 회사들은 사업 진행이 많이들 멈췄다. 시장 분위기가 조금씩 바뀌고는 있지만, 아직은 새로운 일을 시작하기보다는 추후 진행할 사업들을 점검하며 관망하는 분위기다.
황소진 대표(제이콘, 이하 황) : 착공 동수가 한때 많이 줄었음을 느낀다. 프로젝트 몇 건을 진행하고 있는 평택 고덕지구같은 경우는 체감상 지난겨울에 60% 정도 줄었던 것 같다. 물론, 지역별로 차이가 있는데다 평택 고덕의 경우 삼성이라는 기업의 행보에 크게 영향을 받는 걸 감안해야 할 것이다.
정향연 대표(건축연가, 이하 정) : 착공 동수도 영향을 받았지만, 건축주의 변화도 느껴진다. 전에는 ‘노후의 안정적인 수익’에 무게 중심을 두고 투자를 겸해 상가주택에 도전하는 건축주들이 적지 않았다. 물론, 지금의 건축주라고 투자를 등한시하는 그런 것은 아니지만, 지금은 투자보다는 ‘자신의 집에 직장을 더하는’ 개념의 건축주 비중이 제법 높아졌다. 최근에 준공한 울산의 한 프로젝트도 건축주 본인이 직접 카페를 운영할 생각으로 처음부터 상가를 준비하던 사례였다.

대출이 전보다 많이 어려워졌나
이 : 금리 인상과 전세 쇼크로 PF(프로젝트 파이낸싱, 건축자금지원) 대출도 부실해질 수 있다는 이야기가 오간 후, 지금은 PF를 통한 자금 확보가 이전보다 어려워졌다. 금리 자체도 몇 년 전과 비교하면 숫자로는 얼마 차이 나지 않아 보여도 몇 배가 올랐다. 다만, 최근에는 금리가 일부 조정되는 분위기가 있다. 체감이 쉽지 않지만, 은행에서도 이를 미리 감지하고 변동금리보다 고정금리를 권하는 흐름이 엿보인다.

황 : 예를 들어보자. 통상적인 상황의 상가주택 공사를 한다고 할 때, 대략 총비용을 12억원으로 잡고, 그중 80%쯤 대략 10억원을 빌린다. 10억원을 요즘 금리 수준인 6%로 대출을 받으면 이자만 1년에 6천만원, 1개월에는 500만원이다. 임대가 잘 나가고 그 월세로 이자 부담을 덜면 괜찮은데 요즘은 상황이 그렇지 못하니 많은 사람이 주저하고 있다. 그 전에 대출 승인 자체가 잘 안 나긴 했다. 체감상으로는 작년 12월부터 올해 3월까지인데, 조금 조심스럽긴 하지만 하반기부터 금리 인하가 조금씩 체감되지 않을까 싶다. 실제 우리 현장도 최근, 금리를 일부 낮추는 방향으로 조정하기도 했다.
상가주택에 영향을 줄 건축적·제도적 변화
상가주택 임대차 시장은 어떤 것 같나
이 : 수익률 자체도 그렇게 좋지는 않다. 임대료는 시장 상황에 의해 어느 정도 정해져 있는데, 이자가 그보다 크게 올랐으니 수익률이 낮아졌다. 게다가 경기 상황이 그리 좋지 못하니 임차인의 부담도 무시할 수 없다. 2018년부터는 상가 임대차보호법 개정으로 10년간 연 5% 이상 임차료를 올릴 수 없으니 금리 인상분 반영도 제한적일 수밖에 없다.
건축비도 전보다 많이 올랐다는데
정 : 원자재부터 인건비까지 모든 건축 물가가 올랐고, 지금도 오르고 있다. 지금은 물가가 오르는 것도 있지만, 한동안 자재 수급도 원활하지 못한 문제도 건축에 영향을 줬다. 작년 같은 경우에는 목재 쪽에 물류 경색이 지속적으로 이어져 목작업에서 많이 타격을 받았다. 또 한 번 오른 자재 가격은 물류가 풀렸다고 다시 내려오거나 하지 않는다.
이 : 토지 등 부동산 가격은 크게 흔들리지 않았지만, 자잿값은 크게 올랐다. 특히 상가주택은 철근콘크리트 건축물이 많은데, 시멘트 가격이 특히 올랐다.
황 : 건축비 자체는 높아진 상태로 계속 이어지고 있다. 이제는 건축주도 상담하려고 만났을 때 첫 마디가 “건축비가 많이 올랐다면서요?”다. 건축주나 건축 시장도 이제는 높아진 건축비에 어느 정도 적응해서, 건축비 자체만으로 상가주택 건축 수요가 늘거나 줄지는 않을 것으로 본다.
제도적 변화로 주목할 부분은
이 : 찾아오는 건축주 중에 일조사선 완화 이야기하는 분들이 제법 있다. 그것 때문에 건축을 기다리는 분들도 있고, 도심지는 일조사선의 제약이 큰 편이라 기대하는 시선들이 적지 않다. 하지만, 개인적으론 다소 제한적인 영향만 줄 것으로 본다. 요지는 건물 높이 9m부터 적용되는 일조사선을 10m까지 완화하는 것이다. 만약 짓고자 하는 건축물이 3층 이하라면 괜찮다. 하지만, 4층 이상이라면 이야기가 달라진다. 일조사선 자체는 그대로 존재하기 때문이다. 만약 3층까지 완화된 제한 높이 10m를 꽉 채웠더라도 4층부터는 일조사선을 그대로 적용받아 오히려 면적이 이전의 4층보다 좁아질 수 있다. 만약 4층 이상의 면적을 넉넉하게 쓰는 게 목적이라면 일조사선 높이 완화는 큰 의미가 없을 수 도 있다.
황 : 3층 이내에서는 상당히 메리트가 큰 변화다. 건물이 깎이는 것 없이 온전히 3층을 짓는다고 할 때, 예전에는(슬래브 두께 등 무시하고) 층고를 3m까지만 썼지만, 지금은 3.3m까지 올릴 수 있다. 층마다 층고를 달리하면 층고로 연출할 수 있는 공간의 가능성은 더 커진다. 숫자는 작아보여도 체감하는 쾌적도는 상당히 다르다.

상가주택 건축을 위한 위치, 시기 전략
부지는 어떻게 골라야 할까
이 : 예나 지금이나 6m 도로를 끼고 있는 코너 땅이 좋겠지만, 이는 이제는 거의 상식처럼 되어서 땅이 잘 나오지도 않고, 나오더라도 프리미엄이 많이 붙어 경제적인 접근은 쉽지 않을 것 같다. 그리고 그 지역의 상권, 유동 인구 흐름 등 여러 변수가 많아 보편적인 선택법을 제안하기는 어렵다. 다만, 팁을 꼽자면 막다른 길 부지를 선택하려는 경우 도로 폭이 어느 정도 확보된 땅을 골라야 한다. 일정 도로 폭이 나오지 않으면 건물을 도로 접한 면에서 1m나 후퇴시켜야 해 건축면적 손해가 적지 않다.
황 : 데이터보다는 경험적인 부분이지만, 유동인구가 아주 많고 상가가 밀집해 있는 곳보다는 조금은 한적하더라도 아파트나 병원이 배후에 있는 부지를 좋게 보고 있다. 유동인구 만큼이나 ‘주택’에서 살아야 할 사람들을 고려하지 않을 수 없기 때문이다.
상가주택 짓는 시기, 언제쯤이 좋을까
정 : 확언하기는 어렵지만, 미룬다고 해서 각종 비용이 극적으로 내려가진 않을 것 같다. 자잿값도 금리도 시간이 지나면 어느 정도는 내려갈 것으로 보이지만, 만약 목표하는 사업이 시기를 크게 타는 업종이라면 그것을 미뤄서 생길 무형의 손해를 감내할 만큼은 아니라고 본다. 건축주 본인의 사업을 해야 할 시기에 계획을 함께 잡는 게 좋겠다.

황 : 임대가 더 중요하다면, 현재의 임대 시장을 면밀히 관찰하고 판단해야 할 것 같다. 지금도 제각각의 사연으로 멈춰버린 공사 현장이 꽤 많다. 상가주택을 건축하면서 임대 수익으로 생활비 일부나 대출 이자를 충당하려는 사람도 많지 않나. 그런 경우 스케줄대로 임대가 나가지 않으면 상당히 곤란해질 수 있다. 근래 다시 착공 동수가 늘기 시작하면서 임대 공급이 풀리는 사이클이 오고 있다고 조심스럽게 본다. 그래서 시기적으로 상가주택이 급하지 않다면 1년 정도는 부지 탐색이나 건축을 공부하는 기간으로 잡는 것도 좋겠다.
이 : 공사에 6~8개월 걸린다고 할 때, 지금이 벌써 5월 아닌가. 장마 끝나고 바로 공사 시작해서 내년 봄에 임대 놓는 일정이라면 어느 정도 경쟁력이 있다고 본다. 지금의 임대 불경기, 고금리 시기를 얼추 넘어가면서 봄에 장사를 시작하기 위해 설 전에 임차인들이 임대를 알아보러 다니는 타이밍을 노려볼 수 있기 때문이다. 다소 촉박한 일정이지만, ‘임대 가치 및 수익의 극대화’라는 목적에 무게를 두고 바로 공사 진행할 수 있는 역량이 있다면 서둘러 준비하는 것도 방법이다.

상가 + 주택을 상가주택으로 만드는 팁
상가주택 동선 구성에 주의할 점은
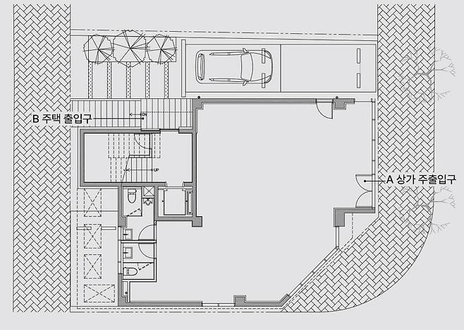
이 : 본인이 직접 거주하는 상가주택의 경우 프라이버시 문제로 상가 출입구와 주택 출입 동선을 분리하기도 한다. 그렇게 하면 불특정 다수의 유동인구와 직접 접촉하지 않으니, 상대적으로 보안에 유리할 것이다. 하지만, 분리하지 않을 때와 비교했을 때 출입 복도와 계단으로 빠지는 면적은 커질 수 있다. 만약 대지가 좁은 땅이라 한 평이 아쉬운 상황이라면 그것을 감수할 것이냐 아니냐를 건축주 본인의 가치관과 향후 매매 및 임대 전략에 따라 판단해야 한다.
그 외에 고민할 부분은
이 : 근래 입찰 들어오는 상가주택 프로젝트의 도면을 보면 적잖은 케이스가 상가의 인테리어 사양까지 꽉 채워져 있다. 보통 상가는 임차인이 본인 사업에 맞춰 인테리어하는 게 일반적이기 때문이다. 독특한 현상이긴 하다. 단언하긴 어렵지만, 임대 업종을 좀 더 협소하게(예를 들어 카페 같은) 타겟팅하려는 것으로 보이기도 한다. 물론, 그것도 어떻게 보면 전략일 수 있다. 한 번 임차인을 들이면 10년 동안 같은 세입자와 함께해야 할 수도 있는 만큼 업종을 가려 받고 싶은 마음도 이해할 수 있다. 다만, 그렇게 해서 실제로 특정 업종에 임대가 유의미하게 더 잘 나갈지도 미지수고, 미리 상가 인테리어를 건축주가 하는 만큼 건축비가 더 상승한다는 것을 염두에 두어야 한다.
황 : 보통은 직접 거주하는 경우 주인세대에 대해 신경을 많이 쓴다. 사실 그게 당연하기도 하고. 다만 주인세대까지 임대를 놓는 건축주의 경우 건축 퀄리티에서 가성비를 따지는 일이 종종 있다. 수익성을 생각하면 이런 판단은 나쁜 것은 아니다. 다만 지나친 가성비 투자는 추후 상가주택을 매매하는 데 있어서 매물로서의 가치를 떨어뜨리는 결과로 이어질 수도 있다. 권장되는 수준의 적절한 퀄리티 유지와 설계, 어느 정도는 독특한 디자인을 추구하는 것은 중장기적으로도 상가주택 가치 유지에 도움이 될 수 있다.
정 : 건물은 지어지고 나면 변화시킨다는 것 자체가 큰돈이다. 일반적인 단독주택은 내가 불편만 감수하면 수선이든 뭐든 할 수 있지만, 상가주택은 준공 후 추가 공사를 한다면 세입자든 본인 가게든 영업에 상당한 제약이 생긴다. 그러니 본인이 하고 싶은 건축의 방향성을 건축가와 잘 상의해서 처음부터 잘 짓는 게 좋다. 또한 여기에 본인의 정체성, 상가주택에 담고 싶은 개성을 쏟아내는 것에 너무 크게 두려워하지 않았으면 한다.



도움말
• 건축가 이남경_㈜부경종합건설 www.bkbuild.com
• 건축가 황소진_㈜제이콘종합건설 www.jconhousing.com
• 건축가 정향연_건축연가 https://blog.naver.com/wjdgiddu
• 건축가 이남경_㈜부경종합건설 www.bkbuild.com
• 건축가 황소진_㈜제이콘종합건설 www.jconhousing.com
• 건축가 정향연_건축연가 https://blog.naver.com/wjdgiddu
취재_ 신기영 | 사진_ 주택문화사 DB
ⓒ월간 전원속의 내집 2023년 6월호 / Vol.292 www.uujj.co.kr