
두 번째 지은 우리 집, 혜담헌을 오늘의집 여러분들께 다시 소개하게 되어 기쁘고 반가운 마음이에요. 저희는 아름다운 남한강이 펼쳐진 고요한 마을의 혜담헌에서 세 마리의 진돗개와 함께 살아가고 있는 10년차 가족입니다.

2021년에 첫 번째 혜담헌을 오늘의집에 소개하고 많은 분들께서 좋은 집으로 봐주신 덕분에 그 해의 올해의 집 어워드 후보까지 올랐었던, 참 감사하고 즐거웠던 기억이 있어요.
그 때의 온라인 집들이의 마지막 문단이 “우리의 두 번째 프로젝트, 물과 산이 더 가까운 곳으로 가게 되었다”는 글이었어요. 그리고 그 집도 온라인 집들이를 통해 소개할 수 있으면 좋겠다는 잔잔한 소회까지 담았었는데 3년이 지난 오늘, 그 글처럼 우리의 두 번째 주택을 소개하게 되었습니다.
그 땐 우여곡절 끝에 찾은 땅 밖에 정해진 것이 없었는데 어느새 설계를 하고, 집을 짓고, 이사를 해서 그 집을 가꾸며 벌써 이 곳에서의 두 번째 겨울을 맞이하고 있어요.
1. 건축 과정

저희가 처음으로 지었던 주택은 아파트 단지 근처의 아늑한 도심 주택이었어요. 키 큰 아파트 앞, 사방으로 도로가 있는 단독필지였어요. 그래서 중정을 크게 만들고, 중정 앞 대문을 높이 세워서 우리의 바운더리를 확보해가며 보듬었던 집이었죠. 인프라나 동네의 분위기 모두 좋았던 마을이었어요.
그런데 유난히 소리에 예민한 두 남녀, 그리고 큰 멍멍이 셋은 점점 가까워지는 도시의 소리가 조금은 버거웠던 것 같아요. 주택단지에 집이 들어서기 시작한 초반에 입주한 집이어서 사는 동안 다른 집 짓는 공사 소리로 아침을 맞이하는 날들이 많았고, 코로나 기간 동안 완공된 아파트 단지들 덕분에 저녁이면 봇물 터지던 오토바이 배달소리에 시달렸다고나 할까요.
그러던 중 큰 의미 없이 놀러갔던 양평의 멋진 집에서 낯설 만큼 편안했던 고요함을 경험한 뒤로 그 분위기가 꽤 오랫동안 떠올랐어요. 한적한 지역들은 우리의 생활권과 동떨어진 지역들이었지만, “집” 이라는 공간에 대한 우리의 해석이 “머무는 동안 가장 편안하고 우리만의 안식처” 였기에 고민의 고민을 거듭하여 두 번째 주택을 전원에 짓기로 결심했답니다.

“어디에 집을 지어야 할까?” 도심주택을 지을 때의 과정들이 순탄했던 탓이었을까요? 전원주택을 짓는 일은 땅을 찾는 것부터 난이도가 다른 일이었어요. 우리가 바라던 땅의 조건은
‘여유로운 땅, 원주민들이 많이 살지 않는 땅, 의도적으로 구획하지 않은 땅, 큰 도로에서 접근이 좋은 땅…‘
양평에는 이런 땅이 넘쳐나는 줄 알았어요. 게다가 서울 접근성이 좋은 양서 지역에 한정해서 필지를 찾다 보니 가는 부동산마다 반응은 미적지근… 그리고 코로나 기간 동안 전원주택, 주말 주택, 세컨하우스 붐이 일어나면서 넓었던 땅들은 이미 개발업자들에 의해 조각나서 판매되고 있었으니 우리가 바라던 조건의 땅은 사실상 찾기가 어려운 땅이었어요.

몇 주의 시간이 지난 후 우연히 통화를 시도한 부동산을 통해 마주한 지금의 우리 땅. 기가 막히게도 우리가 원했던 모든 조건이 들어맞았고, 상상치도 않았던 멋진 남한강까지 눈 앞에 펼쳐지는 근사한 필지였어요.

첫 눈에 반해버린 땅을 얼마 후 계약하게 되었고, 고민할 것 없이 첫 집을 지어주셨던 [바이아키텍쳐]와 [하우스팩토리]와의 속전속결 두 번째 프로젝트가 시작되었어요.
바이아키와의 두 번째 프로젝트

첫 집을 지을 때와 마찬가지로 저희는 설계에 많은 시간을 들였어요. 큰 덩어리의 설계부터 작은 디테일까지… 거의 매일을 바이아키와 통화를 하고, 여기저기서 모은 레퍼런스들을 공유하며 약 1년이라는 시간 동안 집을 그렸어요.

첫 시안과 마지막 시안의 자세한 그림은 당연히 많이 달라졌어요. 하지만 큰 그림 자체는 첫 번째 시안을 그대로 안고 갔던 것 같아요. 이미 우리 가족의 성향을 잘 알고 있고, 집을 지은 이후에도 자주 연락하며 우리의 도심주택 라이프를 살펴보셨던 [바이아키텍쳐]와의 작업이었기에 기대만큼 좋은 디자인을 첫 미팅 때 들고 오셨었거든요.
전원주택은 도심주택과는 달리 우리 집을 지나가거나 쳐다 볼 사람들이 없는 위치여서 편안히 누릴 수 있는 넓은 앞마당, 뻥 뚫린 전면부를 마음껏 소유할 수 있었어요.

그리고 높낮이가 다소 달랐던 기존의 필지를 모두 평탄화하지 않고, 일부는 둔덕의 흐름을 그대로 살려 자연스러운 높낮이가 있는 마당으로 설계했습니다. 오르락 내리락, 자연스러운 언덕을 뛰놀기 좋아하는 우리 반려견들에게 좋은 선물을 주고 싶었거든요.
지난 집처럼 거실과 주방은 스킵 플로어로 공간을 구분했어요. 또한 안방은 반층 아래로 내려가 집에서도 외부에서도 조금은 가려진 위치에 디자인했고, 2층엔 작은 거실과 화장실이 딸린 손님방 겸 때에 따른 우리의 안방으로 설계하게 되었어요.

그리고 2022년 5월, 첫 삽을 뜬 날. 도심에서는 경험할 수 없었던 진정한 토목공사! 모두 다듬은 후에 필지를 분양하는 도심주택과는 정말 다른 스케일을 경험했어요. 건물의 기초를 긋기 전 땅을 다듬는 시간이 꽤 길었던 기억이에요.
필지가 350평이어서 퍼내야 하는 곳도, 쏟아 내려야 하는 흙의 양도 어마어마했거든요.

기초가 다듬어지고, 골조가 세워지고, 벽이 만들어지고, 단열에 진심을 다하고, 벽돌을 붙이고, 조경과 대문까지 들이기까지의 Preview!! 약 10달 가까운 시간에 따른 변화입니다.



그 중 가장 오랜 시간이 걸리고, 큰 비용을 들였던 공사가 옹벽 공사였어요. 기나긴 스토리는 전원주택 건축을 진지하게 고민하고 준비하는 분들을 위해 이 집들이 마지막에 자세히 알려드릴게요!

옹벽과 땅을 다지고 나니 도심주택을 지었던 때처럼 매주 눈에 띄게 바뀌는 공사가 진행되었어요.


자주 방문하지 못했지만 작업이 마치면 날아오는 시공 현장의 영상과 사진, 진행 상황에 대한 이야기들… 실력과 운영 방식을 믿을 수 있는 팀과의 두 번째 작업인 덕분에 큰 걱정 없이 공사를 진행할 수 있었어요.

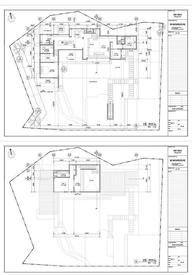
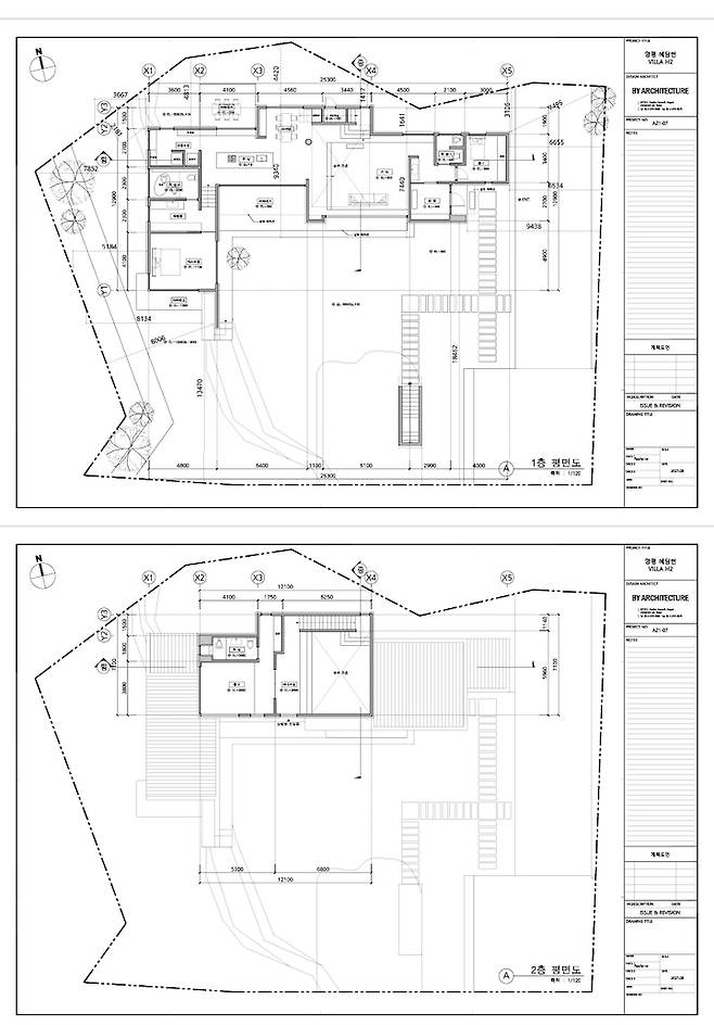
2. 도면

첫 삽을 뜬 5월, 그리고 뜨거운 여름의 장마, 바쁜 가을, 겨울까지 모두 무사히 지나고, 다음 해의 2월. 드디어 우리의 두 번째 주택, 두 번째 혜담헌에 입주하게 되었습니다.
양평 혜담헌은 집 앞 도로 30여평을 포함한 대지 350평에 1층 50평, 2층 15평 가량의 2층 주택이에요. 마당 아래에는 안전한 차량 관리를 위해 15평 가량의 주차박스를 뒀고, 멍멍이들이 마음껏 뛰어다닐 수 있도록 집 둘레 전체를 크고 작은 마당으로 이어뒀어요.
3. 외관


저희 마을은 양평의 전원주택이 처음으로 들어서기 시작한 마을이래요.

작정하고 전원주택 단지로 개발한 마을이 아니라서 필지가 넓은 편이고, 집 마다의 공간이 충분히 확보되었다는 점이 너무 좋았어요. 택지들의 높낮이도 모두 달라서 주택마다 프라이빗하게 생활할 수 있구요.

밝은 아이보리의 롱브릭으로 집 전체를 감싸고, 타일 사이사이는 거친 느낌이 드는 떡메지로 시공해 건물 전체가 하나의 덩어리로 보여질 수 있도록 했어요.

최우선으로 원했던 컬러의 벽돌은 아니었어요. 하지만 그 벽돌을 기다리려면 두어달의 시간이 더 필요했고, 이사 직전 오피스텔에서 북적거리며 살았던 우리에게 그 시간은 기다릴 수 없는 시간이었어요.
결국 차선의 벽돌로 지금의 외장으로 마감했는데, 마을어귀에 들어설 때 보이는 우리 집을 보면 다소 그레이쉬했던 첫 번째 벽돌보다 이 벽돌을 사용한 게 오히려 다행이었다는 생각이 들어요.

넓은 마당의 일부는 투수성 블럭을 깔아서 일반 승용차 6~7대는 주차할 수 있는 내부 주차 공간을 만들었어요.
이미 도심 주택에서 잔디 마당을 경험해 본 사람이라 단조로운 잔디는 관리가 그리 어렵지 않다는 것도 알았지만, 그럼에도 200평이 넓는 앞마당이라 불필요한 에너지가 발생할 것 같았어요. 그리고 공용 주차장이 없는 마을이니 찾아오는 손님들을 위해 여유로운 주차장은 필수라고 생각했거든요.

우리 집을 담당해주신 바이아키텍쳐의 실장님이 직접 디자인해주신 대문과 주차박스입니다.
대문과 주차박스 입구에는 작은 이중 문까지 추가로 만들어서 행여나 멍멍이들이 유실되지 않도록 제작했고, 대문의 두터운 기둥에는 여유로운 택배함까지 두 곳 만들었어요.

집을 들어설 때의 첫 인상인 만큼 대문과 주차박스 자체를 큰 오브제처럼 만들어주셨어요. 기능 뿐 아니라 심미적인 요소까지 한 번에 해결해주셨죠.
주차박스에서 올라와 펼쳐진 마당과 단정한 우리 집을 마주할 때의 기분은 정말 매일 새롭습니다.
4. 현관, 복도

현관은 비교적 넓게 만들었어요. 큰 멍멍이 셋과 매일 두 세 번 산책을 하니 산책 준비도 만만치 않아요. 특히 비가 오거나 눈이 오면 준비할 것들이 많아 여유로운 공간이 필요하더라구요.

가로, 세로 4미터가 넘는 신발장의 절반 이상은 산책을 위한 아이템, 멍멍이들 산책 의류 등 우리집 멍이들의 옷장으로 사용하고 있어요.

집에 들어오면 바로 손을 씻을 수 있도록, 집을 나서기 전 마지막으로 얼굴을 확인할 수 있도록 현관 바로 앞의 화장실과 분리해서 시공한 입구 세면대예요.
지난 집에서도 1층 공용 화장실은 화장실과 세면대를 분리했었는데 활용도가 몹시 높았었거든요. 그래서 이 부분은 전 집의 컨셉을 오마쥬해서 시공했답니다.

웰컴 창을 통해 푸르른 그림을 만들고 싶었는데 아무래도 뒷마당이라 일조량이 충분히 않을 듯 하여 음지에서 상하지 않고 잘 자랄 수 있는 오죽을 심어뒀어요. 3년 가량만 지나면 훨씬 풍성한 웰컴 창이 되지 않을까 기대하고 있어요.

입구 복도 위에는 동그란 천창이 뚫려 있어요. 불이 켜지지 않을 땐 다소 어두운 입구 쪽이라 천창의 자연광을 통해 밝은 조도를 유지할 수 있도록 세심하게 만들어뒀답니다.
5. 거실

현관에서 진입한 코너를 돌면 마주할 수 있는 첫 번째 공간, 거실이에요. 저희 가족이 가장 오랜 시간 함께 머무는 곳이죠.

첫 주택에서는 집의 많은 공간을 지나야 거실에 다다를 수 있게끔 디자인했었지만, 이번 집에서는 처음부터 시원하게 열린 공간을 만들고 싶었어요.
1층과 2층이 완전하게 분리되었던 공간을 살아봤으니 이번에는 지난 번에 하지 못했던 디자인으로 선택한 거예요. 덕분에 2층까지 뻥 뚫린, 층고 6미터에 달하는 후련한 거실을 만날 수 있었어요.

아직도 집 대부분의 공간은 실험 중입니다. 이제 겨우 사계절을 지났고, 어떤 가구들이 우리의 공간에 어울릴지, 어떤 형식으로 사는 것이 우리의 생활에 최적인지를 완벽하게 파악하지 못했어요. 그래서 배치도, 가구 선택도 아직은 미흡한 상태예요.

하지만 말끔하고 단조롭게 사는 것도 그리 나쁘지 않더라구요. 오히려 심혈을 기울여 지은 집 자체를 누리고, 각각의 면을 유심히 살필 수 있는 것도 꽤 좋아서 급하게 가구를 채우지는 않고 있어요.

정남향으로 큰 창을 열어두어서 채광은 1년 365일 정말 정말 좋아요. 앞 건물들에 가려져 그늘이 질까 염려하며 설계했던 도심주택과는 달리 집 앞에는 작은 가림도 없어서 아무 고민없이 한쪽 벽 전체를 완전히 창으로 마감했어요.

딱 한 부분, 창의 한 쪽 끝에는 사람이 지나다닐 수 있는 작은 문을 만들어뒀어요. 환기가 필요한 순간에 창이 없다는 건 너무 불편한 일이더라구요. 그래서 평소에는 커튼으로 가려뒀다가 환기가 필요하거나 우리집 멍멍이들을 거실에서 들일 때는 작은 문을 이용한답니다.
주택의 실내온도, 중요하지만 걱정 마세요.

주택에 산다 하면 모두가 염려하는 것 중 하나가 바로 실내 온도, 단열이에요. 특히 층고가 높으면 더더욱 걱정들을 해주시죠. 창이 넓은 만큼 날씨가 차가워지면 창 가까이는 열 손실이 있을 수 밖에 없어요.
그래서 최대한의 열 효율을 위해 해가 드는 아침부터 해가 지기 직전까지 커튼을 활짝 열어 빛을 많이 받아두고, 해가 지면 바로 커튼을 쳐서 열이 뺏기는 것을 일차적으로 방어하고 있어요. (한 겨울엔 집 가장 깊은 곳까지 빛이 들이쳐서 데워지는 면적도 넓답니다.) 그리고 최소한의 열 손실을 위해 창호는 무조건 3중 창호로 설치해서 찬 바람이 쉽게 스미지 못하게 했어요.
하지만 만반의 준비가 무색하게 채광이 너무 좋아서 하늘이 맑은 날엔 겨울철 실내 온도가 27-8도 까지 올라갈만큼 따뜻해요. 덕분에 새벽에도 보일러를 돌리지 않는 날들이 많아요. 역시 채광과 단열, 창호는 주택 건축에서 1번으로 고려해야 할 요소인 것 같아요.

이번 집을 지으면서 다시 느꼈지만 지금의 주택 건축과 과거의 건축 기술은 확실히 큰 차이가 있어요. 그래서 옛날 주택러들이 경험했던 문제들을 오늘날까지 염려할 필요는 없는 것 같아요. 기본적으로 단열제와 창호의 기능이 너무나 좋아졌거든요.
그럼에도 날이 흐려 해를 가득 받지 못한 날에는 거실 한 켠에 설치한 에탄올 난로로 공기를 금방 데워주곤 합니다. 식물성 에탄올을 이용한 난로에 사이즈도 다양해서 실내 어디서든, 심지어 이동시켜가며 활용할 수 있어요.
요즘엔 아파트에서도 많이들 사용하시더라구요. 불이 태워지고 있을 때 에탄올을 추가하는 사고만 치지 않는다면 안전하게 사용할 수 있는 아이템이에요.

큰 거실 창 앞에는 창가에 누워서 자기를 좋아하는 우리집 큰 녀석들 위한 공간으로 만들었어요.
지난 집에서도 창가에 둔 좁은 스툴에 올라가서 바깥 구경하다가 노곤하게 잠들었다가… 그렇게 하루를 보내곤 했거든요. 그래서 이번엔 창가 어디에서든 좋아하는 시간을 가질 수 있도록 계단 외의 공간에도 모두 단을 만들어뒀어요.


역시 주택은 아주 가까이서 계절의 변화를 보는 즐거움이 커요. 시선의 방해없이 우리의 시야를 완전히 누릴 수 있다는 사실은 경험하면 알게되는 너무나 큰 선물이랍니다.

작지않은 덩치의 스피커를 세워두기에 딱 알맞은 공간. 처음엔 갤러리 마냥 훤한 벽에 잔잔한 그림들과 오브제로 채워볼까 했지만 usm mini bookcase가 들어오고 나선 확정되어버린 스피커 존이에요.

이사와 동시에 모든 가구를 채우려고 하기보다는 살면서 필요하고 원하는 것들을 찾아서 천천히 채우는 게 좋은 것 같아요. 물론 모든 공간을 완성하기까지는 시간이 걸리겠지만, 어울리는 디자인에 적절한 사용까지 가능한 가구들을 하나씩 찾고, 발견하고, 기다리는 시간이 완성도 높은 공간을 만들어내는 것 같아요.
6. 계단실

우리의 첫 번째 주택은 2층으로 향하는 계단이 우리의 생활공간과 완전히 분리되어 있었어요. 괜시리 계단을 통해 흘러내려오는 찬 공기의 흐름이 달갑지 않았었고, 공간 하나하나에 충실하고 싶었던 마음이 컸던 것 같아요.
하지만 그런 집에서 몇 년 지내다 보니 2층은 우리에게 소외 받는 공간이 되기도 하더라구요. 2층은 정말 잠만 자러 가는, 가족의 수가 적은 우리에게 너무나 활용도가 떨어지는, 계절이 달라질 때마다 온도 변화에 취약해지는 그런 곳이 되었었어요.

처음에는 이번 역시 계단을 눈에 보이지 않는 곳으로 숨겨둔 디자인을 요청했어요. 그런데 거실이 너무 단조롭고 답답해 보이는 느낌이더라구요. 그래서 바이아키대표님이 과감히 거실 한 가운데에 계단을 옮기셨는데 제 생각의 틀을 확 깨는 그런 그림이 펼쳐졌어요.

거실로부터 모든 공간이 통하는 흐름, 계단 자체가 하나의 멋진 구조물이 되어서 거실을 멋지게 그려내는… 계단에 서서 거실을 바라보고 마당을 바라보는 기분 역시 좋더군요.
강약이 조화를 이루어야 지치지 않는 건…

2층으로 향하는 계단은 높은 벽으로 통로가 되었어요. 처음엔 답답한 느낌이 들어 거실을 늘 바라볼 수 있게 벽을 낮춰 시공해 달라고 요청했어요. 그런데 양평 혜담헌은 대부분 오픈된 공간이 주를 이루고 있으니 새로운 곳을 향하는 통로 느낌이 들 수 있게, 이 곳은 닫힌 형태로 두는 것이 어떻겠냐는 제안을 주시더라구요.

시선이 갇힌 계단을 지나고나면 눈 앞엔 넓게 열린 1층 거실 혹은 2층 거실이 펼쳐지는 형태였죠. 계단에서 내려오다 보면 마주하는 거실, 마당 그리고 주방 앞 공간에 마당까지… 아마 이런 시야를 제안하셨던 거겠죠?
역시, 강약이 조화를 이루어야 지치지 않는 건 건축도 매한가지인 것 같아요.


바이아키텍쳐를 선택했었던 가장 중요한 특징 중 하나, 반듯하게 떨어진 직선들의 향연 속에 숨겨진 곡선들이에요. 지난 혜담헌에서도 벽을 둥글게 굴려 빛을 통과시키는 방법을 많이 사용하셨던 바이아키에서는 이번에도 역시 여기저기에 곡선을 숨겨두셨어요.

벽면을 곡선으로 빚어내면 확실히 빛이 전달되는 깊이가 깊어지는 걸 목도하게 됩니다.
7. 주방

거실과 바로 맞닿아있는 주방 그리고 다이닝 공간입니다. 거실과는 단차를 이용해 공간을 분리했어요. 이건 지난 집에서와 동일하게 적용했네요.

아무래도 저는 공간이 분리된 형태를 선호하는 것 같아요. 하지만 이번에는 거실에서도 주방이 완전히 보이게, 식탁에 앉아서도 거실과 마당이 다 보이게 열린 형태로 설계했어요.

우리집에 들어오면 가장 가운데에 자리 잡고 있는 우리집 대들보예요. 건물의 무게를 지탱하는 기능은 아니지만 심리적으로 안정감이 느껴져요. 그리고 완벽한 분리는 아니지만 의도적으로 거실과 주방의 공간이 이 기둥을 기점으로 분리되어 있음을 상징하는 오브제이기도 해요.
한옥스러운 뉘앙스를 섞어보고 싶었고, 집의 큰 면적을 차지하는 차가운 타일 대비 따뜻한 나무의 질감도 한 스푼 넣어두고 싶어 원목 기둥으로 세웠어요. 두터운 기둥은 매일매일 멋스럽게 질감을 만들어가고 있는 중입니다.

‘내가 집에서 가장 오래 머무는 곳이 어딜까?‘ 저의 대답은 늘 식탁이었어요. 편안하고 넓은 소파가 있지만 집의 모든 곳을 살펴볼 수 있는 식탁에서 이전에도 지금도 가장 오래 머무는 것 같아요.
커피도 마시고, 공부도 하고, 일도 하고… 저에게는 참 중요한 공간이라 식탁 공간을 눈에 띄게 설계해주십사 요청했었어요. 그래서 건물의 전체적인 쉐입과 흐름에 방해가 되지 않는 선에서 그리고 사용하기에 불편하지 않도록, 완벽한 분리는 아니지만 요리공간과 다른 선상에 다이닝 공간을 마련했어요.

제게 가장 중요한 공간인 이 곳에 딱 어울리는 식탁을 놓고 싶어 1년 이상의 시간을 소비했어요. 다양한 식탁을 대입해보고, 한참 전에 구입해뒀던 Tecta B/D 의자들과의 어울림도 생각해보면서요.
썩 마음에 드는 식탁이 없어 제작으로 생각을 돌리던 중 우연히 눈 앞에 띈 Cassina LC6 테이블. 너무나 깨끗하게 누군가가 쓰던 빈티지 제품이었어요. 덕분에 너무나 어울리는 고가의 식탁을 좋은 가격에 구입할 수 있었죠.
까만 기둥과도 잘 어우러져서 전체적으로 하얀 공간에 적당히 포인트가 되는 느낌이에요. 물론 유리 상판은 멍멍이들의 콧물 자국과 쉽게 묻어나는 손자국까지 잘 보여서 자주 닦아줘야해요. 하지만 식탁 밑에서 우리를 바라보는 멍멍이들의 귀여운 모먼트도 있으니 그저 사람이 부지런하게 관리하면서 좋은 기분을 누리고 있어요.

식탁 뒤에는 가장 자주 꺼내어 먹는 음료들과 냄새가 나지 않는 식품들을 분리해서 넣기 위해 1도어 냉장고를 설치했어요.

그리고 맞은편에는 멍멍이들의 먹거리, 우리가 마실 커피/음료를 위한 수납장으로 두고 그 위 선반에는 커피머신과 와인랙을 올려뒀어요.

아침에 눈 뜨자마자 커피를 내려서 식탁에 털썩 앉아 마당과 남한 강을 보며 커피 한 잔 마시는 기분은 ‘그래, 내가 이러려고 왔지’ 깨닫게 한답니다. 게다가 양평은 커피 값이 무척이나 비싸서 그냥 최고 뷰 좋은 우리 집에서 내려 마시고 있어요. 덕분에 카페에 쓰는 돈은 95% 세이브 하는 것 같아요.

아일랜드 앞에 서서 바라보는 거실과 마당이에요. 요리하다가 고개를 들면 가끔 멍 때리게 되는 후련한 광경과 아름다운 남한강의 윤슬이 펼쳐지고 있어요.

주방의 기둥 못지않게 마음을 쏟은 것이 아일랜드 상판이에요. 이 상판은 남편과 바이아키 실장님의 짝짝꿍으로 완성된 우리집의 가장 큰 오브제 겸 주방 가구예요.

예술적인 감성까지 뛰어난 실장님과 아일랜드에 대한 강한 니즈가 있었던 남편이 너무 잘 만나 버린거죠. 결국 멀리서 배 타고 온 크나 큰 대리석을 기술자들께서 한 땀 한 땀 정으로 깨고 잘라서 세상에 하나 뿐인 소중한 아일랜드 상판으로 제작해주셨어요.


사용하기 불편하면 어떡하나, 김치국물에 이염되면 어떡하나, 요리하는 상판에 이런 걱정을 하는게 맞나 싶었지만 지금은 지난 걱정이 무색하리 만큼 너무나 편하고 깔끔하게 이용하고 있어요. 자연스러운 색의 변화와 마모를 바라보는 것 또한 즐거움이기도 하구요.
사실 저는 아일랜드 상판을 트라버틴 원석 그대로 사용하는 것에 대한 이질감이 있었어요. 하지만 첫 집에서 사용했던 저비용 우드 필름과 인조 대리석 아일랜드가 남편에겐 두고두고 후회되는 포인트였나 봐요.

아일랜드 전체는 스테인리스로 제작했어요. 물이 튀거나 손자국이 묻으면 바로바로 닦아야 하는 매우 불편한 존재입니다. 하지만 관리하기 너무 쉽다는 필름 아일랜드도 물자국이 생기기는 마찬가지였고, 관리가 편하다는 이유로 오히려 관리에 소홀했던 것 같아요.
고맙게도 눈에 띄는 흔적들 덕분에 사용 후 바로바로 물자국을 닦고 청소하면서 반짝거리게 사용하고 있어요.



남은 트라버틴으로는 2층으로 올라가는 계단, 마당의 조형물, 현관의 벤치로 알뜰히 제작했어요. 벤치는 거실로 옮겨 멋진 오브제 및 선반으로 사용하고 있답니다.

주방의 뒤쪽 마당에는 벗나무를 잔뜩 심었어요. 앙상한 겨울 외의 시간에는 꽃과 잎이 가득한 큰 창을 마주할 수 있어서 주방에서의 시간을 더욱 풍요롭게 해줘요.
8. 보조주방

아일랜드 옆으로는 길고 큰 수납장으로 벽 한 면을 가득 채웠고, 한 걸음 더 들어간 곳에 보조주방 겸 세탁실을 뒀어요.

보조주방 싱크는 사용하지 않는 경우가 많아 사이즈에 맞춰 커버를 제작해 덮어뒀어요. 그리고 맞은편의 건조기에서 빨래를 꺼내 저 위에서 접어 정리하죠. 집에 멍멍이가 많으면 감히 바닥에 빨래를 두고 정리할 수 없거든요.

하부장에는 세탁을 위한 아이템들이 수납되어 있어요.

사진엔 보이지 않지만 워시타워의 맞은 편엔 또 하나의 1도어 냉장고가 있어요. 냉장칸에는 김치, 냉동칸에는 멍멍이들의 생식재료가 가득 담겨있어요. 냄새가 나는 식품들은 최대한 생활공간에서 떨어져있도록 분리해서 사용하는 중입니다.

아일랜드의 앞 뒷면, 그리고 주방의 한 쪽 벽 전체는 수납장으로 만들었어요. 그리고 냉장고 윗 공간들도 모두 물건들을 쟁여둘 수 있는 수납공간으로 확보했죠. 층고가 높아서 수납장의 사이즈들도 꽤 큰 편이에요. 덕분에 대부분의 가전제품도 수납장 안에 넣어놓고 필요할 때만 꺼내서 사용하고 있어요.

최대한 수납장을 가득 채우지 않고 사는 게 목표입니다.

큰 팬트리를 두면 그만큼 우리가 자주 생활하는 거실, 방, 주방의 평수가 좁아질 수 밖에 없으니 곳곳에 붙박이 수납장을 만들었어요. 창고처럼 한 공간에 채워두는 것이 아니라 공간마다 필요한 적절한 아이템들을 챙겨놓는 방식을 선택한거죠. 필요한 것을 사용하기에 동선이 길지 않고, 적재적소의 아이템을 챙겨둘 수 있으니 오히려 생활하기엔 편한 것 같아요.

주방의 끝에는 안방으로 향하는 가려진 길이 있어요.
9. 침실

감춰진 계단을 내려가면 전면에 보이는 안방, 그리고 오른쪽으로는 작은 파우더룸입니다.

굉장히 좁게 설계했던 지난 집과는 달리 이번에는 안방을 조금 널찍하게 만들었어요. 첫 집을 지었을 땐 개가 한 마리였지만 지금은 세 마리라 우리의 안방은 다섯 생명체가 함께 하는 공간이 되었거든요.
우리가 사용하는 킹 사이즈 침대 하나 + 대형견 침대 세 개가 들어가고도 적당한 여유가 있으려면 아무래도 이전보다는 훨씬 넓은 공간이어야겠다 싶더라구요.

침대는 이미 10년 가까이 사용하고 있는 프레임이에요. 색상이 이 집과 어울리지 않아서 직접 선택한 짙은 컬러의 우드 스테인을 발랐고, 트라버틴의 전체적인 톤과 협탁의 컬러에 잘 어울리도록 완성되어서 만족하는 중이에요.

벽은 거실과 동일하게 트라버틴 나보나로 전체적인 흐름에 통일감을 줬어요. 대신 계단을 이용해서 내려오는 멍멍이들이 바닥에 미끄러지지 않게 훨씬 거친 질감의 타일로 마감했습니다.


안방에서 바로 마당으로 향하는 문을 만들었어요. 눈 뜨자마자 나가서 놀고싶다고 엄마를 깨우는 녀석들을 위해 안방에서도 바로 밖을 나갈 수 있도록 했죠.

그리고 아주 가끔 스튜디오처럼 집을 대관해주고 있어요. 종종 광고 촬영이나 티비 프로그램을 촬영하는데 그럴 땐 촬영하는 분들께 방해되지 않게, 우리의 움직임도 편하게 이 문을 이용해 드나들 수 있어서 너무 너무 편리해요.


마당과 바로 연결되어 있는 안방 문을 통해 뛰어나간 우리집 똥강아지들 잠시 소개하고 갈게요. 🐾
10. 파우더룸

외투 종류를 제외한 옷들은 대체로 이 붙박이장 안에 정리되어 있어요.
11. 안방 욕실

안방 욕실에는 프리 스탠딩 욕조를 들였어요. 조적 욕조만 있었던 지난 집에서는 욕조를 사용할 때 마다 금방 물이 식어버리거나 몸을 누이기 불편했던 경험을 자주 했었어요.

그래서 이번에는 반신욕이 생활 속 가장 큰 힐링인 남편을 위해 사용감이 좋은 큰 프리 스탠딩으로 사용하게 됐어요. 욕조 끝에는 샤워기를 따로 설치해뒀구요.

밖에서 안을 들여다 볼 이웃집은 없지만, 멍멍이들의 안전을 위해 설치한 높은 게비온월 덕분에 마음 놓고 밖을 보며 반신욕을 할 수 있어요.
그리고 지난 집에서는 아파트에 살 때 청소하기 귀찮았던 기억에 타일벽 샤워부스를 만들었었는데, 눈에 얼룩이 보이지 않으니 그만큼 청소를 대충하는 단점이 있더라구요. 그래서 이번엔 유리 칸막이로 샤워부스는 만들었어요. 매일매일 샤워가 끝나고 스퀴징을 하면 물때도 거의 생기지 않아서 생각해던 것보다 훨씬 편하게 사용하고 있어요.
12. 2층 거실

2층 거실에는 액자같은 작은 창 앞으로 아담한 사각 테이블과 반듯한 의자만 놓여있어요. 2층에서 바라보는 창 밖 풍경은 정말 환상적이에요.

이 공간을 허투루 꾸미고 싶지 않아서 정말 한참을 빈 공간으로 뒀었는데 저 아담한 테이블이 마음에 쏙 들어오더라구요.

식탁과 마찬가지로 저 테이블 역시 빈티지 제품이에요. 잔잔한 흠집은 있지만 우리가 갖고 있던 의자, 조명과 잘 어울리는 테이블 같아 2층 거실의 첫 가구로 구입한 비트라의 임스 테이블입니다.

작업할 것들이 있으면 애써 커피까지 들고 올라가서 저 테이블에 앉아 눈 앞의 광경을 바라보며 에너지를 채우곤 해요.
13. 2층 방

집의 대부분이 대리석과 타일, 블랙 우드로 되어있지만 2층 방만은 내추럴한 우드로 남겨뒀어요. 첫 주택의 모티브는 우드와 화이트였거든요. 그 연장선으로 한 공간만은 내어두고 싶었던 마음이었달까요? 1층 원목 기둥과 마찬가지로 집 중간 중간에 한옥스러운 언어를 톡톡 던져둔 셈이에요.

한옥의 대청마루처럼 단을 올린 원목마루, 그 위에는 시야를 두르는 창을 온전히 느낄 수 있도록 김형수 작가님께 의뢰하여 만든 좌식의자와 사방탁자를 뒀어요.

남편은 주말 오전에 유독 저 자리에 올라가서 이자 받아내듯이 마을 풍경을 감상하곤해요. 비록 출퇴근 시간도 길어지고, 생활의 편리함은 떨어지지만 그 모든 것은 이 광경으로 보상받겠다는 그런 심리인가 봐요. 그런데 신기하게도 정말 보상 받는 기분이 드는 마법 같은 공간이에요.

2층의 모든 창은 어떤 패브릭도 하지 않은 상태예요. 커튼을 제작해주신 사장님께서 2층으로 올라오자마자 “여기는 아무것도 하지 마세요” 라고 단호하게 말씀하시더라구요.

실제로 이 공간에서 많은 생활을 하지는 않기 때문에 빛으로 인한 불편함은 전혀 없어요. 대신 공간이 완성되지 않은 듯한 느낌이 들어서 단조로운 커튼이라도 살짝 내리는 게 어떨지 여쭤봤었는데 너무나 단호하셨어요.

해가 지는 시간에 깔리는 노을을 보면 아직까지는 아무 가림이 없는 상태가 정답인 것 같기도 해요.

평소에는 우리 멍멍이들이 가끔씩 동네 경비를 보는 정도의 빈 방이지만 손님들이 오시면 도란도란 앉아서 대화를 하기도 하고, 주무시고 갈 수 있도록 자리를 마련해드리는 방이에요. 2층 거실의 큰 문을 닫으면 넓은 방이 되거든요.
마루 위에 토퍼를 깔고, 도톰한 이불을 깔아드리죠. 다행히 단 위에도 난방이 되도록 시공을 해서 따뜻하게 등을 지지면서 주무실 수 있어요.
14. 2층 욕실

손님 방으로, 때때로는 우리의 안방으로 편히 사용하고싶어 작은 욕실도 하나 만들었어요. 방의 원목과 이어지도록 세면대 아래 수납장도 우드로 마감했습니다.
그리고 화장실 밖의 붙박이 수납장에는 이불과 계절별로 나눠야하는 옷들로 수납해서 분리, 정리하고 있어요.
15. 마당
우리의 삶과 생각으로 답을 내려가는 전원생활

남편은 여의도로 출퇴근을 하지만 유연근무제로 이른 아침 출근하고, 오후에 퇴근을 하고 있어요. 덕분에 출근 시간은 인천에 살 때와 큰 차이가 없는 40-50분대, 퇴근은 그보다 조금 더 걸리는 거리예요. 저는 주로 인천으로 출퇴근을 하지만 다행히 매일 출근하는 일이 아니라서 낯설었던 장거리 운전에 적응해가며 전원 생활에 익숙해져가고 있어요.
(반전은 서울 강남권, 송파보다 출퇴근 시간이 짧게 걸린다는 사실. 직업의 특수성으로 원거리 출퇴근러들이 많은 직장인데 제가 운전하는 시간은 특별히 긴 시간도 아니라 이상한 안도감과 위안을 받아요…)

한창 열심히 일해야 하는 때의 40대 두 사람이 굳이 길에 시간을 버리면서 전원에 살아야 할 필요가 있는지, 삶이 불편하지 않은지 물어보는 분이 계실지도 모르겠어요. 워낙 일터에도 가깝고, 생활하기도 편한 곳에 오래 살았던 사람들이라 그런 현타가 오지 않았다면 거짓말이겠죠.
그럼에도 우리에게 더 중요한 것이 무엇인지에 대해 다른 사람의 시선과 음성이 아닌 우리의 삶과 생각으로 답을 내려가고 있어요.

시골로 이사하며 가장 걱정됐던 것들이 여름철의 벌레, 너무나 편리했던 새벽배송과 배달이 없는 동네라는 점.

과연 적응할 수 있을지 큰 걱정들을 안고 이사했지만 오히려 도심주택에 살 때 보다 적은 벌레, 오다가나 필요한 것만 소박하게 구입할 수 있는 동네 초입의 큰 마트, 가끔 두 손 그득한 퇴근길 덕분에 전혀 불편하지 않게 살아가고 있어요.
불필요한 지출없이, 플라스틱 낭비없이 살 수 있으니 좋은 점도 많아요. 게다가 하남 스타필드까지는 15~20분이면 도착하는 곳이라 마음의 큰 위로도 있는 시골 생활입니다.


아! 겨울의 집 앞 눈 치우기는 가끔 하하하하하하하 웃음 나는 일이긴 해요 ㅎㅎㅎㅎㅎ 하지만 1년에 몇 번 안되는 고생이고 천하무적 “브로와“ (시골에선 브로와예요. 시골 고유명사입니다.) 가 있으니 겨울엔 화이팅 해야죠!

매 계절을 자유롭고 편안하게 누리며 사는 여유로움이 정말 고마운 전원생활이에요. 그리고 도심에 살던 내내 우리의 귀를 괴롭혔던 오토바이 소리에서 벗어나니 마을로 들어오는 순간부터 이루 말할 수 없는 편안함이 있어요.
반려견과 함께 하는 마당생활

이렇게 아름다운 공간에서 우리가 살아가고 있다는 사실을 문득문득 깨달을 때면 참 감사하기도 하구요.


무엇보다 사랑하는 우리 똥강아지들이 주변의 어떠한 방해도 없이 너무나 편안하게 살 수 있다는 사실이 정말 큰 기쁨이기도 해요.

유리 울타리를 할까, 선이 얇은 철제 울타리를 할까 오랜 고민 끝에 결정한 유리 울타리인데 얼마나 탁월한 선택이었는지 몰라요. 매일을 저기에 서서 사계절 비현실적인 광경을 온 몸으로 담아내고 있답니다.
16. 전원주택 건축을 고민하시는 분들께 전하고픈 이야기!
사실 우리가 첫 눈에 반해서 샀던 땅은 사기를 당한 거나 다름없는 땅이었어요. 길은 만들어져 있었지만 하수/우수관이 연결되지 않아서 집을 지어도 준공 승인을 받을 수 없는 상황. 그 관들을 연결하려면 1. 펌프를 이용해서 윗길로 연결하거나, 2. 아래 필지에 있는 집들의 마당을 통과해 우리 하수관을 심거나 혹은 관을 함께 사용하는 두가지의 방법 밖에 없었어요.
처음에는 당연히 후자는 생각조차 하지 않았어요. 누가 내 집 마당에 다른 집의 오물을 받으려고 하겠어요? 그런데 아무리 계산을 하고 방법을 따져도 그 방법이 가장 현실적으로 안전한 방법이라는 시공사의 말에 약 한 달 가량은 끙끙 앓고, 땅을 다시 내놓을까 고민도 수없이 했던 정말 괴로웠던 시간이었어요.
누가 봐도 좋은 땅이 왜 아직 남아있었는지 의심하지 않았던, 한 번 지어봤으니 너무나 가뿐하게 생각했던 우리의 안일함이 복병이었던거죠. 토목공사 직전에 알게 된 이 사실로 시작도 못한 공사는 중단되었고, 그 때 토목 담당 사장님께선 사실상 불가한 공사로 봐야한다고 하셨었죠. 청천벽력!!
그래도 시도해보지 않고 내려앉을 순 없으니 일단은 우리의 설계도와 건축 계획서를 들고 터질 듯이 떨린 가슴으로 앞 집 할아버지를 찾아뵀어요. 비용을 지불하고서라도 사용할 수 있다면 좋겠다는 희망을 안고…
약 세 번의 만남 끝에 딱 하나의 조건을 내 놓으시면서 우리의 건축을 돕겠다 허락하셨어요.
‘비가 쏟아지는 계절에 빗물이 위에서 아래로 쏟아져내리지 않게 옹벽을 견고히 하고, 집수정을 크게 설치할 것. 그리고 물이 나가는 길이 쓰레기로 막히지 않도록 함께 관리할 것’ 을 요청하셨어요. 그 외의 어떤 비용이나 요구 조건은 없었습니다.
+ 번외로 이 할아버지는 이 순간부터 지금까지 우리가 이 마을에서 잘 살 수 있도록 가장 적극적으로 잘 도와주시는 감사한 분이세요. 눈이 오는 날이면 뒷집 새댁 출근한다고 같이 눈도 치워주시고, 지나가면 차 한잔 하라며 밝게 인사해주시고… 마음과 생각에 여유가 넘치시는 참 좋은 분과 이웃이 되어서 얼마나 감사한지 몰라요.
잠시! 전원주택을 고려하신다면 꼭 확인하세요.

1) 부동산을 무조건 믿지 마세요.
앞 집 할아버지를 통해 나중에야 알았지만 지금 저희 땅은 이미 기존에 서너번의 주인이 바뀐 땅이었대요. 모두가 그 하수관을 해결하지 못했던거죠. 마을분들께 도움을 요청하고 해결하려는 마음 없이 다투기만 한 분들도 계셨고, 사실을 알자마자 그냥 포기하신 분들도 계셨대요.
저희가 연락했던 부동산은 그런 사실을 다 알고 있어서 필지를 볼 때 단 한번도 동행하지 않았어요. 동행할 때 마다 앞집 할아버지가 이 땅은 그런 문제가 해결되어야 한다고 고지하셨고, 때문에 계약이 성사되지 못한 경우가 다수였대요. 그래서 저희에겐 작정하고 감추려고 동행도 하지 않았던거죠.
모든 부동산이 그렇진 않겠지만 아직 곳곳엔 정직하지 못한, 특히 외지인들에겐 더 그러한 곳들이 있어요.

2) 지역 특성에 따라 건축시 필요한 특정 조건이 붙을 수도 있어요.
저희는 상수도 보호구역인 남한강 수변구역이라 실제로 양평 권역에 6개월 이상 거주를 해야 건축 허가 신청을 낼 수 있었어요. 무분별하게 개발하지 못하게 하기 위함이죠. (열 받지만 이 사실도 부동산은 말해주지 않ㅇ……… 본인들은 말해줬다며 바득바득 우겼지만 단 한 번도 언급한 적 없었던 내용이에요. 그래서 이 시간도 허비했었다는 슬픈 이야기)
그리고 저희는 이미 지하수도 연결했고, 건축허가도 난 땅이라는 말에 기쁜 맘으로 토지를 매도했었지만 사실 건축허가에 필요한 조건들과 준공허가에 필요한 조건은 다소 차이가 있었어요. 우리의 큰 문제였던 우수관도 건축 허가에는 필요없었지만 준공허가에는 반드시 필요한 옵션이었죠. ‘건물은 지을 수 있어! 하지만 거주할 순 없어!’ 이런 상황이었어요.
도심주택을 지을 땐 건축 허가를 위해 당연히 상하수도를 연결하고, 가스를 연결하는 과정을 거쳤던 지라 이 곳에서의 건축허가도 도심주택처럼 기본은 된 상황이겠거니 생각했던 저희의 안일함도 있었어요. 그러니 반드시 지역별 준공허가에 필요한 사항들을 토지 매도시 꼼꼼하게 체크해보세요.

여튼 이런 우여곡절 끝에 우리는 눈물 가득한 땅을 다지고, 옹벽을 세우게 됐어요.
그나마 다행이었던 건 우리의 설계 자체에 (앞집 할아버지가 요구하셨던) 옹벽은 이미 존재하고 있었어요. 우리 멍멍이들이 자유롭게 뛰놀기 위해서, 도심보다는 한적한 동네에서 좀 더 안전한 쉼을 누리기 위해서 전면/측면의 옹벽과 뒷면의 높은 울타리는 이미 우리의 중요 설계 중 하나였거든요. 덕분에 할아버지도 더욱더 흔쾌히 허락해주셨었죠.

옹벽을 세우는 시간은 꽤 오래 걸렸어요. 10미터 이상의 높이, 두 뺨 가득한 두께 그리고 어마어마한 비용까지. 도심주택과는 차원이 다른 집을 짓는 일이란 걸 깨닫는 순간이었어요.
서두르지 않고 천천히

역시 온라인 집들이는 쉬운 일이 아니었어요. 어디서부터 풀고, 어떻게 설명을 하고, 얼마나 이야기 해야할지 도저히 감이 잡히지 않는 건 두 번째 온라인 집들이 임에도 처음과 다를 바 없네요. 이렇게 길게 썼지만, 우리가 아끼는 구석구석의 많은 것들을 모두 소개할 수 없어서 아쉬운 마음이에요.
우리의 두 번째 주택, 양평 혜담헌은 이제 고작 1년의 시간을 보낸 새내기 집이에요. 우리의 첫 번째 주택도 3-4년을 살고나니 집 내외부로 모든 것들이 자리를 잡고 안정감 있게 정돈되더라구요.
아직은 어색하고 부족한 부분들이 많지만 굳이 억지로 채우며 살 생각은 없어요. 시간이 지나면 자연스레 채워지는 것을 이미 경험해봤으니 서두르지 않고 천천히 가꿔 가려구요.
전원주택을 짓는 일은 참 어려운 일이 맞아요. 살아가는 것도 쉽지 않을 수 있어요. 건축을 계획한 순간부터 함께 시작된 covid때문에 예상보다 훨씬 높아진 자재 값, 인건비 등의 건축 비용까지 감당하느라 저희 또한 힘든 순간들이 너무 많았어요.

하지만 함께 집을 지은 고마운 분들 덕분에 그 시간들을 다 겪어내고, 지금은 “집” 이라는 공간에서 누릴 수 있는 행복을 도시에서 살 때 보다 더 크게 누리며 살고 있답니다.
주택의 삶을 고민하는 분들께 저는 진심으로 추천 드릴 수 있어요. 똑같은 디자인, 닮은 스타일이 아닌 우리만의 것으로 완성시킬 수 있는 공간을 꼭 가져보세요. 이건 전원이 아니어도 상관없어요. 도시의 삶이 더 좋고 잘 맞는 분들은 도시에서 찾으시면 돼요.

‘우리만의 공간’ 이 주는 편안함과 만족감이 얼마나 큰지, 그 기분을 꼭 경험해보셨으면 좋겠어요.
그리고 도심 주택을 짓기로 했던 첫 순간부터 전원 주택으로 온 이야기까지의 과정들을 인스타에 가끔씩 담아내고 있어요. 가볍게 놀러와서 후루룩 읽고 가세요!
우리의 두번째 주택, 두 번째 혜담헌 긴 이야기를 정성스레 읽어주셔서 정말 감사합니다. 2024년, 감사하고 즐거운 날들이 그 어느 때보다 많은 해이기를 기도할게요! 저희도 혜담헌에서 더 멋진 시간들을 보내겠습니다.
- 2024년, 1월 다시 혜담헌.

