
안녕하세요! 단독주택 2층에서 싱글라이프를 즐기고 있는 ‘냥또빵’이라고 합니다.
저희 가족은 올해 단독주택을 건축하였습니다. 오늘은 그 중 저 혼자 살고 있는 2층을 소개할게요.
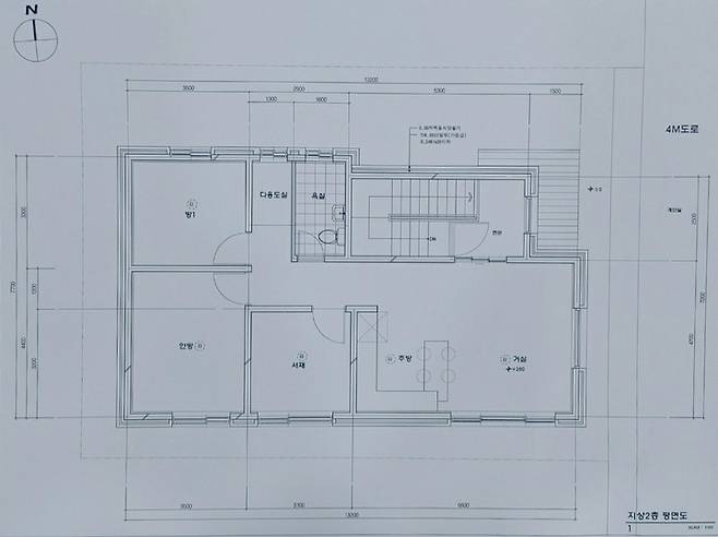
도면

저희집은 1층 2층 같은 구조+크기로 들어가는 입구방향만 다르게 되어있는 2층 단독주택입니다. 좁은 땅에 집을 짓느라 어려움이 많았지만 지금은 너무너무 만족하고 감사하며 살고 있습니다. 그럼 저희집을 소개하겠습니다~
현관

개인적으로 튀는색을 좋아하지 않아 대부분의 컬러들이 무난한 색이에요. 현관 문에는 코트랙을 구매해서 문색과 어울리게 페인트로 칠하고 자석을 달아 부착해서 마스크나 나갈때 필요한 물건을 걸어두고 있어요.

현관에는 큰 소방창이 있어요. 앞집 뷰도 너무 이쁘고 동쪽이라 아침마다 들어오는 빛이 너무 맘에 들더라고요. 어떻게 포인트를 줄 수 있을까 고민하다가 창 앞으로 중문과 같은 색의 벤치의자를 만들었어요. 곡선을 좋아해서 한쪽이 둥근 모양의 수납벤치에요. 저는 주로 재활용 정리박스로 사용하고 있어요.

현관타일은 오렌지 빛의 카푸치노 색상의 테라코타타일로 했어요. 우드랑 너무 잘 어울리고 정말 예뻐서 했지만,, 관리가 이렇게까지 어려울 줄 몰랐어요….ㅠㅜ 하하
거실

따뜻한 느낌의 중문이에요. 어두운 우드보다 밝은 우드를 선호해서 선택한 중문. 마음에 드는 도무스 손잡이가 있어서 달아주니 너무 찰떡이었어요. 동글동글 손잡이와 아치로 부드러운 느낌이 들어요.

중문 옆에는 좋아하는 고양이 그림을 옆에 세워두어 포인트를 주었어요. 깔맞춤을 워낙 좋아해서 비슷한 색상의 우드프레임 액자로 하니 너무 잘 어울리더라고요!
그리고 저희집 스위치도 모두 동글동글 한 제품으로 했어요. 르그랑으로 하고싶었지만 너무 비싸서 국내제품을 했는데 넘 귀엽고 잘 어울려요.

저희집 거실은 조금 특이한 구조에요! 보통 아파트는 거실 옆에 복도와 주방이 있는데 저희 집은 거실 뒤로 주방이 있어요. 공간 분리 때문에 설계 때부터 제일 고민했던 부분이에요. 주방 길이만큼 장을 짜서 분리하게 되면 답답하지 않을까 걱정했는데 주방을 좀 넓히고 거실을 줄이는 방법으로 둘다 답답하지 않게 해결했어요.

오늘의집 집들이를 그렇게 많이 봤는데도 이런 구조는 없어서 막막했는데 특이한 집구조로 고민하시는 분들 참고하세요! 저는 너무너무 만족하고 있어요~

소파 뒷부분은 아일랜드장 부분과 살짝 떨어뜨려주었어요. 싱크대 코너 부분이 아까워서 소파 쪽에서 열 수 있는 수납장을 만들었는데 이걸 사용하려면 문 만큼 떨어뜨릴 수 밖에 없더라고요. 공간이 생기니 이상하지 않을까 걱정했는데 오히려 답답해 보이지 않아서 좋았어요! 수납장 이용도 하고 답답하지 않은 건 덤으로!


빛에따라 다른 느낌의 거실 정말 멋있죠? 거실에는 최대한 짐을 놓지 않으려 하고 있어요. 특히 시스템 에어컨을 설치해서 더 거실을 깔끔하게 유지할 수 있는 것 같아요.
저는 소파 위에서 먹는 걸 좋아하고 칠칠이라 러그는 깔지 않았어요. 소파 자체가 동글동글 넘 귀여워서 러그가 없어도 포인트가 되는 것 같아요.



거실은 이렇게 앞집뷰가 보이는 작은 창문이 있어요. 왼쪽 스위치가 보이는 곳을 열면 미니 테라스가 있어요. 정말정말 작은 공간인데 거기서 뭘 하냐면

분갈이를 하거나 화분들 광합성 할 때 이용하고 있어요. 작지만 활용도 높은 곳이랍니다. 아침에 잠깨려고 나가서 햇빛 쬐기도 하는데 저에게는 없어서는 안되는 작고 소중한 공간이에요!
주방


이제 소파 뒤에 있는 주방을 소개할게요! 나중에 큰 냉장고로 바꿀 수도 있을 것 같아 키친핏만큼 공간을 빼두고 2도어 냉장고를 넣고 남은 공간에는 수납장을 짜서 넣어주었어요. 조명 아래에는 바스툴을 두어 간단하게 식사하거나 작업할때 쓰고 있어요

싱크대 위로는 우드선반을 두어 전체적인 분위기가 따뜻해 질 수 있도록 했어요! 좋아하는 오브제를 두어 자랑하는 공간이기도 하고요. 색상을 중문 필름지랑 같은 색상으로 맞춰 통일감을 주었어요.

그때그때 바뀌긴 하지만 제가 좋아하는 오브제들로 꾸며줬어요. 아이보리+베이지 느낌으로 저희집의 마스코트 같은 느낌이랍니다.


상판을 화이트로 하면 심심할 것 같아 상판을 베이지로 선택했어요. 우드와 자연스럽게 어우러지도록 하였는데 넘 맘에들어요. 작은 무늬가 있어서 음식을 흘려도 티나지 않아 더 좋은것 같아요.


거실, 주방 옆으로는 복도가 있고 복도로 들어가면 방들이 있어요. 정면에 보이는 방은 침실이고 제일 안쪽에 있는 방은 게스트룸 겸 드레스룸, 젤 앞쪽 방은 다이닝룸입니다. 복도 오른쪽에는 화장실이 있어요.
각 방마다 문이 달라요. 다이닝룸은 문 없이 아치로, 침실은 미닫이문, 드레스룸은 일반 문이에요. 화장실은 위쪽에 모루유리가 달린 문으로 선택했어요.
침실


복도에서 정면으로 보이는 쪽이 바로 침실이에요. 침실은 찜해둔 침대가 있어서 꼭 우드로 꾸미고 싶었어요. 심심한 부분을 패브릭으로 포인트 주고 싶었지만 무난한걸 좋아하다 보니 이렇게 무난무난해졌네요.
여름 이불은 스트라이프와 버터색 침구에요 . 입주한지 얼마 안지나고 가을이 되어 금방 바꾸게 되었지만 넘 귀여웠어요. 스트라이프는 어디든 잘 어울리는 것 같아요.

새롭게 바꾼 이불이에요. 아이보리에다가 브라운+베이지로 포인트를 주었어요. 침구색과 침대헤드가 넘 잘어울리지 않나요? 침대 헤드도 곡선이라 포근하게 감싸주는 느낌인데 찰떡인것 같아요.

협탁 아래에는 예전부터 모으던 브라운을 놓았어요. 낮에보면 너무너무 귀여운데 밤에보면 조금 무섭긴 하더라고요ㅋㅋ

침대 아래에는 도트무늬의 러그를 깔아주었어요. 지저분한 멀티탭 선은 우드볼로 귀엽게! 비슷한 톤으로 맞추다보니 이것저것 짐이 많아도 조화로운 것 같아요.

침대 맞은편에는 모빌을 달아두었어요. 창문 옆이라 바람불때 살랑살랑 넘 귀여워요.



침대 맞은편에는 옷장, 서랍장과 화분이 있어요. 심심한 느낌이 들어서 위에는 이것저것 어울리게 놓아봤어요. 이 공간은 낮보다는 밤에 더 멋있는 공간이에요.


자려고 불을 끄고 스탠드를 켜면 이렇게 멋있는 모습이에요. 거울에 모빌이 비치면서 너무 예쁜 공간이에요. 우드우드하지만 색을 조금 다르게 해서 더 조화롭게 해봤어요. 아예 똑같은 색보다 덜 심심하고 좋은 것 같아요.
드레스룸

게스트룸 겸 드레스룸입니다. 여기도 화이트+블랙+베이지로 꾸며주었어요. 처음 집을 꾸밀 때 무조건 우드로만 해야지 했는데 블랙의 매력에 빠지게 되어 야금야금 블랙을 사용하고 있어요.


특히 화장대를 보는 순간 저기 스툴은 무조건 블랙이다 싶었어요. 화장대 앞에 블랙 스툴을 놓는 순간 딱 “이거다!”했어요. 이 공간은 다른공간에 비해 조금 차가운 느낌이 들도록 철재 블라인드를 했어요.

그리고 화장대 맞은편에는 미니소파는 손님이 올 때는 침대로 변신한답니다.

소파베드라서 평소에는 자리를 차지하지 않고 디자인도 이뻐서 딱이에요. 소파에 앉아 검정 고양이 모빌을 보면서 가끔 멍때리기도 해요.
마치며


인테리어는 있는 뼈대에서 시작해서 온전히 인테리어만 집중 할 수 있지만 건축은 설계부터 인테리어까지 전부 해야해서 정말정말 힘들었어요. 어디서 “건축을 하면 10년 늙는다.”라는 말을 들었는데 정말 저희 가족 모두 얼마나 고생했는지 모르겠어요. 그래도 노력한 만큼 예쁜 집이 완성되어 매일매일 너무 감사하고 있어요.
집이라고 하면 기본적으로 아파트를 생각하는 요즘 단독주택에 산다는 건 남들과는 다른 길을 가는 것 같기도 해요. 집을 관리해준다던가 분리수거를 쉽게 할 수 있다는 장점은 사라졌지만, 층간소음에서 벗어나고 아무때나 세탁기도 돌리고 청소할 수 있는 이 자유는 경험하지 못한 사람은 절대 알기 힘들걸요?^^
설계부터 건축자재, 벽돌, 인테리어 하나하나 온전히 내가 만든 내 집이라 생각하니 나만의 성이 생긴 든든한 느낌이에요. 내가만든 이 집에서 앞으로 함께 나이들어가며 행복하게 살아가겠습니다. 감사합니다~!!

