양양 ‘만송재萬松齋’

산과 바다, 그리고 강이 조화를 이룬 강원도 양양에서 만난 ‘만송재’는 목수인 건축주가 직접 지은 한옥이다. 전통 한옥이라기보다는 건축주의 가치관이 적극적으로 반영된 개량한옥이라고 할 수 있다. 이곳 토박이인 건축주는 대학에서 토목을 전공했다고 한다. 할아버지도 대목장이었기에 목수의 유전자가 있는 것 같다고 귀띔했다. 건축주의 배려로 만송재에서 하룻밤을 보내며 특유의 정취와 만송재 만의 매력을 느낄 수 있었다. 특히, 해질 무렵 푸르스름한 어둠이 고즈넉하게 내려앉은 한옥의 풍경이 가장 인상적이었다.
글 사진 노철중 기자 | 협조 건축주

HOUSE NOTE
DATA
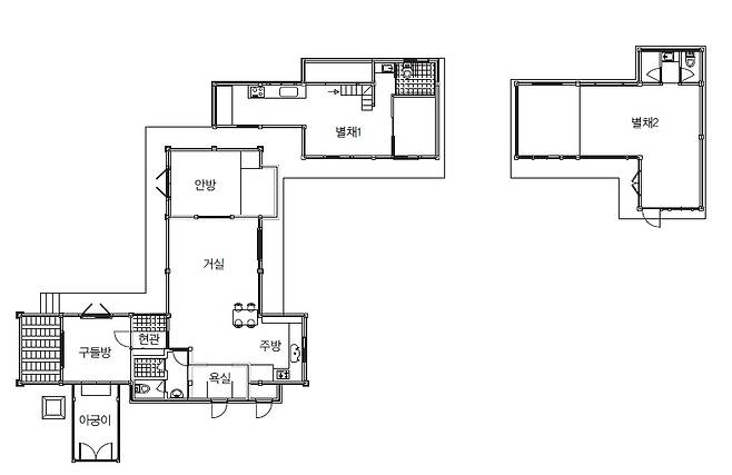
위치 강원도 양양읍
지역/지구 자연녹지지역
건축구조 한식 목구조
대지면적 900㎡(272.25평)
건축면적 174.5㎡(52.79평)
연면적 174.5㎡(52.79평)
건폐율 19.38%
용적률 19.38%
설계 및 시공 건축주 직영 010-9159-3440
https://mansongjea.modoo.at
MATERIAL
외부마감 지붕 - 시멘트기와 + 한식기와(고령기와)
외벽 - 황토벽돌 + 황토미장
내부마감 천장 - 목조
내벽 - 황토벽돌 + 미장
단열재 지붕 - 우레탄폼
창호 한식 시스템창호(동양창호)
현관문 자체제작
주요 조명 자체제작
주방기구 자체제작
위생기구 대림
난방기구 경동나비엔

건축주는 목수가 되기 위한 수련 과정을 거치지 않았다고 한다. 학창시절부터 나무에 친근함을 느꼈고 누가 그림을 그려보라면 한옥을 그리곤 했다. 또 머릿속에 한옥 그림이 떠오르면 어떻게 설계를 할지, 어떤 방식으로 짜맞출 지 직감적으로 알 수 있었다. 그의 말처럼 한옥에 대한 타고난 감각을 지닌 ‘천상목수’라는 얘기다.

집안 곳곳 여유로운 곡선의 정서
만송재는 EBS 건축탐구 집, 월간 ‘전원생활’ 등 다양한 미디어를 통해 유명세를 탄 한옥이다. 목재의 곡선을 인위적으로 가공하지 않고 그대로 가져와 자연의 우아함과 여유로움을 제대로 살렸다는 평가다. 목재는 백두대간 국유림에서 벌목한 금강송을 사용했다. 건축주가 직접 인근 제재소에서 나무를 재단해 필요한 형태로 가공해 사용한다.

건축주는 자신이 짓는 한옥은 기본 콘셉트가 ‘화려하지 않은, 고래등 같은 기와집이 아닌 단아한 한옥’이라고 전했다. 전통미는 최대한 살리면서 한옥의 불편함을 개선한 실용적인 한옥을 추구한다는 것이다.



만송재의 잘 정돈된 앞마당에서 건물을 바라보면 부드럽게 곡선을 그리는 기와지붕이 마치 비상하는 듯한 느낌을 받는다. 전통 한옥의 웅장한 기와지붕은 이처럼 단아한 만송재에 역동성을 불어넣었다. 건축주가 공들여 나무로 짠 미닫이문을 통해 안으로 들어서면 웅장한 기와지붕 아래 놓인 천장과 마주하게 된다. 곡선을 살린 두 대들보가 지붕을 떠받들고 수십 개의 목조 구조재들이 가지런하게 정렬돼 있다.

천장의 백미는 ‘우물반자’다. 지붕 모양을 그대로 따라 올라가지 않고 단열을 고려해 반자를 짜 넣은 것이다. 일반적으로 전통 한옥에서 우물반자는 살림집에서는 거의 찾아 볼 수 없고 궁궐이나 사찰 등에서 주로 사용됐다고 한다. 단아한 한옥을 추구하는 건축주이지만 천장의 우물반자로 약간의 사치를 부려본 것이라 한다.


거실의 모든 가구는 건축주가 손수 나무로 짠 것들이다. 탁자, 침대, 식탁, 소파, 싱크대, 수납장 등에는 건축주의 땀과 정성이 담겨있다. 벽면을 장식하는 작은 소품들은 건축주 아내가 직접 자수를 넣어 만든 것들이다.
시골 부엌 정취 느끼는 아궁이 공간
한옥의 정체성은 역시 구들방에 있다. 여기에 필수적인 아궁이와 굴뚝도 작품이다. 특징은 아궁이를 외부에 두지 않고 내부로 끌어들인 것이다. 마치 시골 부엌과 같은 느낌을 내기 위해 특별히 만든 공간이다. 건축주 아내는 “저희 가족은 이곳에서 자주 아궁이 장작불을 이용해 고구마, 고등어, 대파 등 다양한 요리를 해먹어요. 삽겹살도 아궁이에서 구워낼 수 있어 바비큐 공간으로도 충분히 활용할 수 있답니다.”라며 은근한 자랑을 늘어놓았다.

건축주 부부와 외동딸은 이렇듯 이곳에 모여 조촐할 파티를 즐긴다. 문을 열면 바로 자연 속에서 가족이 느끼는 행복감이 더욱 무르익는다. 추운 겨울에도 한여름 장마에도 마음만 먹으면 자연과 함께 행복한 만찬을 즐길 수 있다.

아궁이 방에 연계된 누마루는 자연 정취를 느끼며 편안하게 쉴 수 있는 공간이다. 만송재에서 건축주 아내가 가장 즐겨 찾는 공간도 누마루다. 이곳에서 주로 취미인 자수를 놓는다고 한다. 바람이 만들어내는 풍경 소리와 함께 있으면 심신의 안정은 두 배가 된다.



건축주는 만송재 부지 위에 또 다른 한옥을 짓는 중이다. 첫 번째 집인 만송재를 한옥 스테이로 전환하기 위해 바로 옆 살림집을 따로 지었다. 일반 펜션의 관리실에 해당하는 건물이지만 잠을 자고, 먹고 생활하는 주택으로 이 역시 한옥이다. ‘一’자 형태로 지어 불필요한 동선을 없앴고 꼭 생활에 필요한 공간들로 구성했다.


그중 가장 재미있는 공간은 다락이다. 한옥의 기와지붕을 역시 가지고 있기 때문에 생길 수밖에 없는 공간으로 현재 다양한 용도로 사용되고 있다. 손님이 오면 게스트룸으로 사용되기도 한다. 이제 세 번째 집이 곧 완성될 예정이다. 이번 한옥은 만송재처럼 한옥 스테이로 활용할 계획이다. 건축주는 계속해서 한옥을 추가해 하나의 단지를 조성하고 싶다고 전했다. 만송재에서 볼 수 없었던, 또 어떤 한옥의 매력을 보여줄지 기대된다.

건축주 부부는 만송재에서 특히 가족들과 지내는 시간이 제일 즐겁다고 한다. 친척들의 가족 모임 장소로 자주 활용되는데, 이럴 때는 손님이면서 동시에 친척이기 때문에 더욱 각별하게 신경을 쓴다고 건축주 아내는 전했다.

건축주가 특별히 취미이자 장기인 섹소폰이나 하모니카를 불어 가족 모임의 분위기를 한껏 끌어올린다. 이내 노래방 반주가 이어지고 만송재는 왁자지껄한 웃음이 가득한 장소로 탈바꿈한다. 하지만 새벽이 오면 다시 고즈넉한 고유의 분위기를 되찾고 건축주 부부의 일상이 펼쳐지는 소중한 공간으로 돌아올 것이다.



