Architects Corner

본 주택은 거주 공간과 취미 공간을 명확히 나눈 구성이 예사롭지 않다. 바로 건축주 부부, 오직 두 사람을 위한 공간이기 때문이다. 주택단지 속에 위치하지만 프라이버시는 확보하면서 채광과 뷰도 놓치지 않았다.
정리 남두진 기자│글 자료 박민용│사진 김성철 작가
DATA
위치 경기 용인시 수지구
건축구조 중목구조
대지면적 283.8㎡(85.85평)
건축면적 135.5㎡(40.99평)
연면적 220.46㎡(66.69평)
1층 135.5㎡(40.99평)
2층 84.96㎡(25.70평)
건폐율 47.74%
용적률 77.68%
설계기간 2020년 4월 ~ 8월
시공기간 2020년 8월 ~ 2021년 1월
설계 박민용 010-3423-6573
시공 홈포인트 031-264-4720
MATERIAL
외부마감
지붕 - 컬러강판
외벽 - 세라스킨
데크 - 합성목재
내부마감
천장 - 친환경페인트
내벽 - 친환경페인트
바닥 - 원목마루
단열재
지붕 - R32-23 그라스울 단열재
외벽 - R-11-15 그라스울 단열재,
비드법 보온판 2종 1호
도어
현관 - YKK도어
내부 - 영림도어
창호 알파칸창호
주방가구 넥서스
위생기구 아메리칸 스탠다드




건축주는 목구조를 잘 살릴 수 있는 주택과 더불어 이탈리아의 감각적인 디자인에 대한 기대로 나를 찾았다. 대지는 기다란 형태였고, 건축주가 요구한 사항은 매우 간단했다. 취미가 많은 부부가 실내에서도 잘 지낼 수 있는 공간이 구현되기를 바랐다. 특히, 선룸이라는 공간을 특별하게 언급했고 편백나무 욕조로 분위기가 따뜻한 욕실이 있었으면 좋겠다고 덧붙였다. 그렇게 건축주와 첫 상담을 진행한 후 완성한 안을 보이자 그들은 그대로 진행하고 싶어 할 정도로 매우 만족했다.






넉넉한 외부공간을 가진 볼륨 있는 집
본 대지는 주택이 모인 단지에서 유난히 기다란 형상이다. 건축주가 이곳을 선택한 이유는 일반적인 면적보다는 좀 더 넓은 면적을 활용해 선룸과 넉넉한 외부공간을 바랐기 때문이다. 직사각형의 긴 쪽이 남쪽을 마주한 점도 중요한 요소였다.
배치는 대지 형상에 맞춰 긴 직사각형을 따르게 됐다. 하지만 도로가 북쪽에 인접하고 있어 정면이 북쪽을 향할 수밖에 없었는데 실내 프라이버시를 확보하기 위해 채광을 잘 받도록 중정을 만들었고, 2층의 옥외 테라스는 주변 아파트에서 잘 보이지 않도록 적절하게 시선을 차단했다.
깔끔하고 깨끗한 인상을 바랐기에 최대한 차분하게 입면을 디자인했고, 일부는 루버로 포인트 있게 강조하는 방식을 채택했다. 선룸은 그 기능을 충분히 발휘할 수 있도록 모든 면이 유리로 이뤄진 공간으로 계획했다. 2층에 존재하는 2개의 테라스가 자칫 밋밋할 수 있는 집에 볼륨을 더해 외관을 좀 더 입체적으로 드러낸다.



취미와 거주 공간을 명확하게 나눈 실내
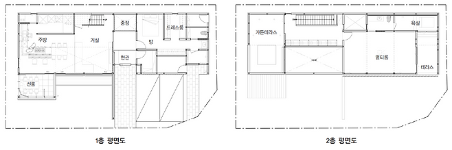
1층은 보통 공용공간으로 구성되는 반면 본 주택은 침실을 함께 배치함으로써 취미 공간과 거주 공간을 명확하게 구분하려고 했다. 거실을 지나 주방과 인접한 선룸은 주방에서 동선을 최소화해 편리하면서도 잦은 이용을 도모했다.
2층에는 음악을 듣거나 영화를 볼 수 있는 취미실을 계획했는데 이곳 창은 좀 더 아늑한 분위기가 실내에 담기도록 창 외부에 루버를 설치했다. 취미룸과 연결된 욕실은 편백나무 욕조가 있는 일반적인 욕실보다 넓은 면적으로 계획했다.
집의 가장 중심 공간은 1층과 2층에 각각 존재한다. 1층에서는 빛을 차분하게 끌어오는 중정과 주방에 인접한 선룸이다. 선룸은 건축주가 손님을 초대해 친목을 도모할 수 있는 공간으로서 인접한 공원을 바로 옆에 두고 있어 도심 속에서 녹색 나무를 많이 담을 수 있는 공간이다. 건축주의 취미를 온전히 즐길 수 있는 공간인 2층에서는 다양한 활동을 할 수 있는 취미실과 편백나무 욕조가 있는 욕실이 중심 공간이다.



건축가의 고민이 담긴 선룸과 루버 장치
주택에서 많은 고민이 필요한 곳은 바로 선룸이었다. 배치에 대한 고민이나 채광, 뷰 그리고 적절한 프라이버시를 동시에 고려해야 했다. 너무 개방적이면 단지 내 특성상 부담이 됐고, 그렇다고 폐쇄적이면 충분한 채광과 뷰를 담지 못했다. 결과적으로는 집 정면에 벽을 하나 세워 진입하는 메인 현관과 선룸 영역을 구분하고자 했다. 이로써 적절한 프라이버시를 확보하면서 채광과 뷰도 놓치지 않은 모습을 완성할 수 있었다.
루버는 실제로 시공되지 않으면 그 느낌을 정확히 알기 어려웠기에 건축주와 많은 시뮬레이션을 거쳤다. 만족한 루버 간격과 이에 따른 각도를 결정했다. 이런 논의 과정을 거쳤기에 실제로 구현됐을 때 시각이 차단되면서 빛은 잘 담아내는 안락한 취미실이 조성될 수 있었다.




이번 주택은 국내에서 자칫 잘못 계획하면 어색할 수 있는 선룸에 특히 신경 쓴 프로젝트다. 건축주의 요구사항을 고려하면서도 이미 어느 정도 결정된 가구들에 인테리어를 잘 접목할 수 있도록 세심한 디자인이 따른 주택이기도 하다.
2011년 단국대학교에서 건축학을 전공했고 2012년부터 이손건축에서 실무 경력을 쌓았다. 2015년에 밀라노 공대(Politecnico di Milano)에서 건축학 석사학위를 받았으며 2017년 이탈리아 건축사 자격증을 취득했다. 2018년 이후 Naoi+Partners 소장으로서 많은 주택을 설계했으며, 현재 한국 건축사와 이탈리아 건축사 자격으로 다양한 작품 활동을 하고 있다.