
안녕하세요. 저희는 에너지가 넘치는 초등학교 2학년 아들, 7살 딸 아이를 키우는 맞벌이 부부입니다. 맞벌이다 보니 집에 있는 시간만큼은 가족들이 함께할 수 있는 공간을 만들고 싶었어요. 신혼 때부터 쭉 아파트에서만 살다가 큰 아이 초등학교 입학과 함께 이사를 계획했었죠. 운이 좋게 신규 개발 지역 택지를 구입하게 되어 집을 짓게 되었습니다.
정해진 구조의 집에 가구와 인테리어를 맞추는 것이 아니라, 백지 상태에서 제가 원하는 대로 구조를 그려 넣을 수 있어서 공간을 구성함에 있어 훨씬 재미있고 그만큼 신중하게 결정해야 할 것도 많았습니다. 저에게는 나름 즐거운 과정이었죠. 나중에 애들 다 크면 둘만 살 집을 또 지으면 좋겠다고 생각하는데, 남편은 너무 힘들었는지 다시는 집 안 짓는다고 하네요ㅎㅎ
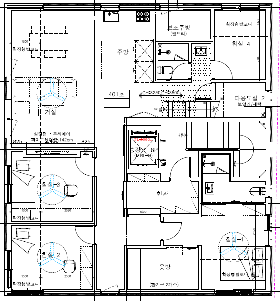
도면

저희 집은 다가구 주택입니다. 1층에는 필로티 주차장, 2,3층에는 각각 2세대씩 4가구, 저희 집은 4층과 다락, 테라스를 사용하는 구조입니다.
처음 평면을 구성할 때 개인 공간과 공용 공간의 배치를 어떻게 할 지를 놓고 많은 고민을 했어요. 거실을 중심으로 사방으로 방을 배치해서 거실로 모이는 구조를 선택할지 개인(침실)의 영역과 공용 공간을 반으로 나눌지, 고민 끝에 후자를 선택했고 집을 절반으로 잘랐을 때 남쪽은 침실 공간, 북쪽은 공용 공간으로 구성하였습니다.

종합 건설사를 통해서 건축을 했고, 인테리어도 턴키로 별도로 할까 했었는데 건축비 상승과 예산의 압박으로 따로 인테리어 설계를 받지는 않았습니다. 제가 직접 손품, 발품 팔면서 반 셀프로 공사를 진행했는데, 다행히 건축 현장 소장님이 계셔서 제가 원하는 자재를 고르고 도면을 그려 요구하면 현장 소장님께서 작업자분들 섭외해서 진행해 주셨습니다. 인테리어 팀이 들어와서 공사를 한 게 아니기 때문에 마감의 디테일은 좀 떨어지지만, 그래도 온전히 제 입맛대로 구성할 수 있어서 만족도는 높은 편입니다.

작지만 1층에 있는 정원이에요. 소소하게 몇 가지 작물들을 심어보았는데 아직은 실력이 부족해서 기대했던 것 만큼 잘 자라지 않더라구요. 올해는 연습하는 셈 치고 내년에는 좀 더 공들여서 가꿔볼 예정입니다.
현관

들어서자마자 보이는 현관의 모습입니다. 아이들이 아직 어려서 신발 신을 때 오래 걸리는 편이라 벤치 체어를 구성하고 싶었는데 벤치는 목공의 영역이었더라고요. 그걸 모르고 건너뛰어서 신발장 업체에 요청해서 제작하다 보니 결과물이 썩 마음에 들지는 않지만, 기능적으로는 문제가 없어 실용적으로 잘 사용하고 있습니다.
집을 짓고 에어 드레서를 구매하러 갔는데 슈 드레서를 사은품으로 주시는 거에요. 아직 신발장 제작 전이어서 급하게 신발장 도면을 수정해 한쪽 구석에는 슈 드레서도 비치해서 이용하고 있습니다.

층고가 높다 보니 문 높이도 자연스레 커지다 보니, 아이들에게 수동 중문은 위험할 것 같았어요. 그래서 자동 중문을 설치했습니다. 아이들은 키가 작아 센서가 인식을 못 하는 경우가 종종 있는데, 별도 스위치로 개폐 가능해서 편리하게 사용하고 있어요.

현관으로 들어와서 우측으로 꺾으면 주방이 눈에 들어옵니다. 복도 양 끝으로 큰 창을 내어서 환기와 채광에 신경을 썼습니다. 조명의 경우는 직부등을 최소화하고 다운라이트를 최대한 활용하였습니다. 방마다 위치한 실링팬 때문이기도 하지만, 간접 조명으로 조명 조작을 세분화하여 필요한 만큼만 켜고 생활하기 위해서입니다.

반대쪽 창입니다. 저 위치에 창을 안 내고 방으로 만들어 활용할 수도 있었는데, 저쪽이 남쪽이라 채광을 고려해서 창을 내었습니다. 지금은 로봇청소기가 창 아래 서식중이지만, 조만간 윈도우 시트를 설치해 쉴 수 있는 공간으로 활용할 계획입니다.
주방


주방입니다. 다른 공간은 전부 제가 직접 구상했는데, 유일하게 디자인 업체와 함께 진행한 공간입니다. 원래는 위에 이미지처럼 상부장이 없는 일반적인 ㄱ자 형태의 레이아웃을 생각했었어요. 이후에 업체 제안으로 키 큰 장과 아일랜드로 구성하게 되었고 매우 마음에 들어요.
원래는 비스포크 키친 핏 1 도어 냉장+냉동+김치 냉장고 조합으로 3개를 넣을 계획이었지만, 용량의 압박으로 최종적으로는 프리 스탠딩 4도어 1기와, 김치냉장고 키친 핏으로 1개 설치하였습니다.

잘 보시면 저희 주방에는 후드가 없습니다. 아일랜드 위에 있는 인덕션 위로 후드를 설치해야 하는데 층고가 3300이나 되다 보니 아일랜드 후드를 설치하기에는 너무 보기 안 좋을 것 같다며, 업체에서 설치하지 않는 걸 추천하더군요.
다운 드래프트 후드라도 설치하면 어떨까, 했는데 성능이 기대만 못하고 저희 집은 층고도 높고 창도 많으니 괜찮을 것 같다고 하셔서 과감하게 후드를 설치하지 않았습니다. 대신 보조 주방 쪽으로 후드 딸린 인덕션을 설치했어요.

냉장고 바로 옆 키 큰 장에는 자주 사용하는 그릇들을 넣는 용도로 사용하고 있어요. 하단 서랍형 선반에는 컵 종류를 넣어 아이들이 손쉽게 꺼내어 쓰도록 했습니다.

주방에서 계단 방향으로 꺾인 수납장은 자주 사용하는 생필품들을 넣어두는 용도로 사용하고 있습니다.

사용한 지 6개월이 지났는데, 삼겹살이나 제육 같은 요리 굽는 거 아닌 일반 요리 정도는 후드 없이 잘 지내고 있습니다. 나비엔 청정 환기 시스템을 설치하여 요리 모드로 해 놓으면 환기 금방 됩니다. 주방 안쪽으로 보조 주방이 있습니다. 저 멀리 큐커가 보이네요. 그런데 저희 집 김치냉장고는 어디에 있을까요?

김치냉장고는 키가 큰 장 안쪽으로 쏘옥~ 들어가 있어요!


처음에 전자레인지 대를 구매했는데, 큐커가 일반 전자레인지 크기보다 커서 몇 번의 시행착오 끝에 맞는 걸 찾았네요. 인덕션 2구와 상부에 후드를 설치해서 연기가 많이 나는 요리는 모두 여기에서 하고 있습니다. 인덕션 하부 쪽은 일부러 서랍이나 선반을 구성하지 않고 박스째 보관하는 식료품들을 넣어두었어요. 냉장고장 옆면도 깨알같이 수납 공간을 짜 넣었습니다.

거실에서 바라본 주방의 모습입니다.
거실

해외에 잠깐 거주할 기회가 있었는데, 그 때 실링팬에 대한 기억이 너무 좋아서 신혼집부터 실링팬은 필수였죠. 에어컨, 선풍기처럼 인공적인 바람은 선호하지 않는데, 실링팬은 자연풍 같은 느낌이고 환기에도 도움이 되어서 이 부분을 중점으로 인테리어를 고심했죠.

퇴근하면서 아이들을 픽업해서 집에 오면 잠들기 전까지 대부분의 시간을 이 공간에서 함께 합니다:) 사실 저희는 TV를 많이 보지 않아서 처음 설계할 때는 별도로 게임 룸을 구상했는데, 그러면 애들이 방에서 안 나와서 얼굴 보는 게 힘들지 않을까? 하고 남편이 걱정하더군요. 놀더라도 눈에 닿는 곳에서 놀았으면 한다고요.

각자의 시간을 보내더라도 한 공간에서 보냈으면 하는, 바람이 있었죠. 그런 부분도 고심하여 주방, 다이닝을 모두 한 공간으로 넣어 복합 공간을 만들기로 했어요. 넓은 주방에서 아이들과 다 같이 요리도 하고, 식탁은 식사 공간일 뿐 아니라 같이 책도 보고 그림도 그리고 보드 게임을 하는 등 다양한 작업들을 함께 할 수 있는 좋은 공간이 되었습니다.
아이들 뿐만 아니라 저와 남편도 게임을 좋아하는 편이라 온 가족이 함께 비디오 게임을 하며 함께 시간을 보내기도 합니다. 최근에는 닌텐도 스포츠에 푹 빠져 있답니다. 거실 층고가 높아 비행기를 날릴 수도 있고 풍선 놀이를 해도 즐거움이 배가 되는 장점이 있어요~

주택의 장점을 살려 창을 크게 냈어요. 큰 창호의 열 손실을 고려해 모두 시스템 창호로 적용했습니다. 창의 방향은 서향이라 오후 늦게까지 햇볕이 잘 들어와요.
보통 신축하면 가구도 새로 하기 마련인데 식탁과 소파, 텔레비전은 이전 집에서 사용하던 제품을 그대로 가져왔어요. 기존에 가지고 소파가 등받이가 높지 않아 소파를 중심으로 거실과 다이닝이 분리되면서도 답답해 보이지 않을 것 같아 그대로 사용하기로 했어요.

특히 식탁의 경우는 10년 전 결혼하면서 산 혼수입니다. 신혼 집을 마련할 당시 TV 없는 거실에 책장과 큰 테이블을 놓는 게 로망이어서 구입했었는데 지금까지 너무나 잘 사용하고 있어요. 아이들이 좀 더 크면 식탁 유리를 없애고 원목 그대로의 느낌으로 좀 더 본격적으로 사용할 수 있을 것 같아요.
길 건너 큰 아파트 단지가 위치해 있어 편의 시설들이 가까운 편이에요. 도보 1분 거리에 초등학교와 편의점, 커뮤니티 센터가 있어요. 사진은 아침에 찍어서 밖에 아직 어두운데, 낮에 해가 들기 시작하면 카페에 온 것처럼 환한 다이닝 공간이 됩니다.

다락으로 올라가는 계단실 옆에는 타공보드를 이용해 아이들의 소소한 작품을 걸어 놓을 수 있는 공간을 마련했어요. 유치원이나 학교에서 만들어온 결과물들을 아이들 마음대로 걸어 놓을 수 있도록 해주었더니 너무 좋아합니다.
안방

안방 문 앞 공간이에요. 좌측은 현관인데 벽을 뚫어서 자작나무로 장을 짜넣고 책장으로 활용하고 있습니다.


안방에도 실링팬을 달았고 아늑한 느낌을 주고 싶어서 우드 계열로 포인트를 주었어요.

저는 화장품이 별로 없는 편이라서 별도로 화장대를 구입하지는 않았고, 같은 종류의 수납장을 두 개 사서 낮은 수납장을 화장대로 이용하고 있습니다. 높은 수납장은 안방 욕실 앞에 둬서 주로 속옷류를 보관하는데 사용하고 있어요.

안방에 있는 드레스룸 입구입니다.

안방 드레스룸입니다. 높은 층고를 모두 활용하려고 업체를 통해 시공할까, 고민했어요. 그런데 높은 곳까지 수납을 꽉꽉 채워 만들어도 실제로 활용할 수 있을 지가 의문이더라고요. 그러다 기존에 보유하고 있던 이케아 PAX 시리즈의 모듈을 추가로 구매해 확장하여 설치했습니다.
안방 욕실


안방 욕실이에요. 건물 외벽 쪽에 위치하고 있어서 난방을 위해 휴젠트를 설치했어요. 건식으로 사용 중입니다.
아들 방

초등학교 2학년 아들 방입니다. 아이들 방도 고학년이 되면 주니어 가구로 바꿀 예정이라 이번에는 가구를 새로 구매하지 않고 기존 가구들을 최대한 활용하여 배치해 줬어요.

각 방마다 실링팬을 설치했는데, 안방은 차분한 우드 컬러를 사용한 반면, 아이들 방은 좀 더 밝은 느낌으로 루씨 에어 레이더 시리즈를 설치했어요. 안방과 거실에 사용한 화이트 헤이븐 실링팬의 크기도 크고 경우 천장에서 좀 더 내려오게 설치되어서 책상 앞에 앉아있을 때 팬의 그림자가 생길 수도 있기 때문에 천장에 바짝 붙는 모델로 선택했습니다. 저희 집 조명은 대부분 주백색(아이보리색)인데 아이들 방만큼은 학습 환경을 고려해 주광식(흰색)으로 설치했어요.

책장에서 아이의 손과 시선이 가장 잘 닿는 곳에는 현 수준에 맞는 책들을 배치하였고, 옷 수납의 경우 서랍장에 태그를 달아 스스로 정리하고 꺼내 입을 수 있도록 하고 있습니다.

교복을 입는 학교에 다니고 있어서 사복이 많지 않은 편이라 작은 서랍장에도 충분히 수납이 가능한 편이에요. 상부 회색 칸에는 사복 상의, 하의를 계절별로 나누어 정리하고 가운데 흰색 칸은 교복과 양말, 속옷류 하단 노란 칸은 수영복, 목도리와 같은 계절 용품을 보관하는 용도로 사용하고 있습니다.
딸 방

다음은 7살 딸의 방입니다. 이전 집에서 오빠와 함께 쓰던 방에 놓으려고 2층 침대를 사주었는데, 혼자 자는 걸 무서워해서 아무도 사용하지 않았다는 안타까운 사연이 있는 침대입니다. 새 집으로 이사 와서는 각자 방이 생겼지만 따로 자는 걸 무서워할까봐 퀸 매트리스를 1층에 놓고 처음엔 오빠와 함께 재웠어요. 그런데 자기만의 방이 생겨서인지, 더 이상 무서워하지 않고 자연스럽게 따로 자게 되어서 지금은 딸아이 혼자 퀸 사이즈 침대에서 굴러다니면서 잠들고 있습니다 ^-^;;

각자 방이 생기고 혼자 잠들게 되면서 더 이상 2층 침대는 필요하지 않게 되었지만, 당분간은 기존 2층 침대를 사용할 예정이에요. 다락층에 놀이방이 별도로 있어서 각자 방에 장난감 수납은 고려하지 않고 최소한의 가구만 배치했어요.

하지만 침대 2층으로 올라가는 계단 서랍은 딸 아이의 보물 창고가 되었고, 2층 텐트 안에는 좋아하는 인형들을 가득 넣어 놓고 놀이하는 아지트가 되었어요.

영화 토이 스토리를 보고 나서 인형들이 살아 움직인다고 믿는 아직 순수한 7살이라, 잠들기 전에도 항상 2층으로 올라가서 인형들에게 인사를 하고 내려옵니다.
다락방

다락층으로 올라가는 내부 계단입니다. 상부 갤러리창이 동향이라 아침이 되면 이 창에서 거실 쪽으로 햇살이 쏟아져 들어와요.

다락 안쪽은 아직 어수선한 상태에요. 한쪽 공간은 아이들 놀이방으로 사용 중입니다.

테라스

테라스는 파라펫 구조로 만들어서 외부로부터의 시선을 일정부분 차단하고 독립된 공간으로 구성했어요. 평소에도 캠핑을 자주 다니는데 바닥은 데크를 설치해 홈 캠핑 분위기를 내곤 합니다.

폴딩도어를 설치해서 개방해서 사용할 수도 있고, 방충망도 설치해서 벌레도 문제 없어요.


테라스 역시 저희에게는 가족이 함께 할 수 있는 소중한 공간입니다. 하교 후 아이들이 안전하게 뛰어놀 수 있는 공간이자, 친구들을 초대해서 모래 놀이도 하고 여름에는 튜브 풀을 설치해 물놀이도 하고요, 캠핑을 좋아하는 저희 가족에게 훌륭한 캠핑장이 되어주기도 합니다.
올 봄 한창 코로나가 유행하던 시기, 저희 가족도 온 식구가 확진이 되어 자가 격리를 했는데 저희의 재택 근무도 테라스에서 이루어 졌습니다. 웬만한 야외 카페 부럽지 않았네요. 올 겨울에는 테라스에서 캠핑 장박에 도전해 볼까 합니다 ㅎㅎㅎ
욕실

거실에 있는 공용 욕실이에요. 아이들 둘이 수시로 드나드는 걸 고려해서 건식으로 꾸몄습니다. 그리고 토출형 샤워 수전의 물 나오는 튀어나온 부분에 아이들이 간혹 부딪히는 경우가 있어서 튀어나오지 않은 모델로 찾아서 설치했어요.

아직은 작은 아이들이라 발판을 놓아 주었고, 수건 걸이도 일반적인 위치에는 아이들의 손이 잘 닿지 않아 세면대에 달아주었습니다.
마치며
신축해서 들어와 살기 시작한 지 수개월이 지난 시점에서 온라인 집들이를 하게 되어 어수선한 부분들이 많아 아쉽기도 하지만 실제 살고 있는 현실감 있는 모습이라 생각하고 편하게 봐주셨으면 좋겠어요. 평소에도 오늘의집을 보면서 인테리어 부분에 많은 영감을 얻었는데 제 경험이 다른 분들에게도 도움이 되었으면 좋겠습니다.

