HOUSE STORY

건축주의 마지막 집짓기가 끝났다. 색상이 주는 중후함과 디자인이 주는 세련됨이 집의 표정이 됐다. 앞으로 이곳에 들어올 다양한 사람들과의 관계 속에서 건축주의 편안한 노후를 기대한다.
글 사진 남두진 기자│협조 신영건설㈜
HOUSE NOTE
DATA
위치 경기 과천시 과천대로6나길
건축구조 철근콘크리트조
대지면적 323.00㎡(97.70평)
건축면적 189.44㎡(57.30평)
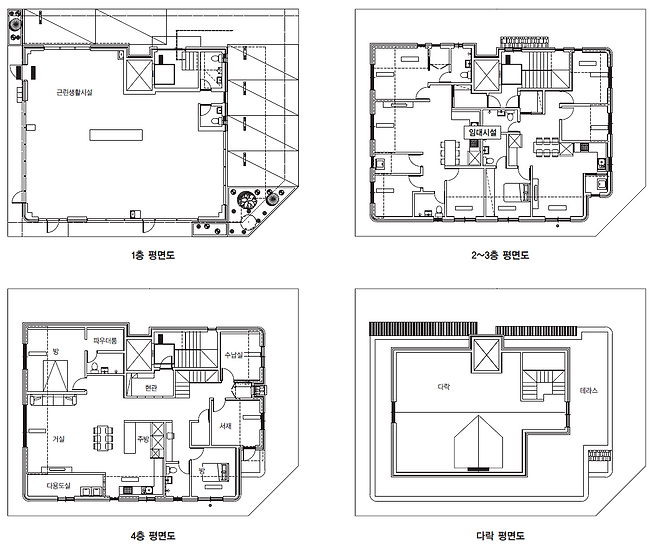
연면적 599.17㎡(181.25평)
1층 158.74㎡(48.02평)
2층 146.23㎡(44.23평)
3층 145.54㎡(44.02평)
4층 148.66㎡(44.96평)
다락 92.84㎡(28.08평)
건폐율 58.65%
용적률 185.50%
설계기간 2024년 3월 ~ 5월
시공기간 2024년 6월 ~ 12월
설계 신영건축사사무소㈜ 031-712-0494
시공 신영건설㈜ 1577-7041
MATERIAL
외부마감
지붕 - 테릴기와
외벽 - 전벽돌
내부마감
천장 - DID실크벽지
내벽 - DID실크벽지
바닥 - 동화마루
단열재
지붕 - PF보드
외벽 - PF보드
내벽 - 압출법보온판
계단
계단재 - 멀바우 집성목
난간 - 단조난간
도어
현관 - 금강방화문
내부 - 스템도어(영림도어)
창호 LG뷰프레임
위생기구 대림바스
난방기구 린나이보일러

과천에서 쭉 지내던 건축주는 땅 개발이 확정되는 바람에 상가주택 단지 내 필지 한곳을 받게 됐다. 이전에도 몇 번 집을 지어본 경험이 있던 터라 이번 주택을 인생의 마지막 집짓기로 결심하고 시작하게 됐다.
상가주택 단지다 보니 이미 지어진 곳과 아직 짓고 있는 곳이 공존하는 상태였다. 다양한 업체의 컨테이너가 놓인 필지 주변을 둘러보던 어느 날 눈에 띄는 한 집을 발견하고 건축주께 여쭤 지금의 업체를 만나게 됐다. 사실 이외에도 견적을 상담 받은 몇 곳이 더 있었지만 지금의 업체가 비용이 합리적이었으며 무엇보다 요구사항에 대한 이해가 잘 맞았다.








튼튼하고 따뜻한 집
앞서 언급한 대로 집을 지어서 살아본 경험도 있는 건축주가 집짓기를 위해 업체에 요구한 것은 기본적으로 튼튼하고 따뜻한 집이었다. 여기에 돌을 외장재로 사용하고 싶다는 작은 희망 사항을 덧붙였다.
그러나 예산에 맞춰 조율하는 과정 중 벽돌로 타협하게 되고 회색을 거쳐 현재의 검은색 전벽돌로 최종 적용하게 됐다. 아무래도 검은색이다 보니 처음에는 주변의 밝은 외장재의 집들 사이에서 다소 칙칙한 인상을 가지는 것이 아닌가 걱정도 있었다.
해당 걱정은 디자인을 통해 센스 있게 풀어냈다. 곳곳의 개구부를 아치 형태로 계획하고 특히 벽돌의 쌓기 방식으로 차별을 둔 것. 군데군데 튀어나오도록 쌓은 내어쌓기 방식은 전체적으로 세련된 표정을 부여한다. 나아가 주변에서 마치 기준점과 같은 존재감도 은은히 드러낸다.
건축주가 요구한 따뜻한 집은 단열에 신경을 쓴 것도 있지만 인테리어를 통해 표현하기도 했다. 현관을 들어오면 공적 공간과 사적 공간을 나누는 양쪽으로 긴 벽체를 마주하는데 베이지 톤으로 선정한 대리석 패턴 박판 타일이 아늑한 분위기의 전개를 예고하는 듯하다. 이 박판 타일은 거실까지 이어지며, 특히 둥근 바리솔 천장 조명이 포인트를 더해 단조롭지 않은 공간감을 완성한다.








햇살이 함께하는 간결한 형태
실내는 현관을 기준으로 양쪽으로 공적 공간과 사적 공간으로 크게 나뉜다. 공적 공간은 거실, 주방, 식당이 기본적으로 배치되고 생활 편의를 위해 메인 침실만 거실과 가까이 뒀다. 메인 침실은 따로 화장실과 화장대를 더해 마스터룸으로 보다 프라이빗하게 계획했다.
주방은 현관 앞 벽체 뒤쪽에 배치했는데 거실에서는 막힘없이 한눈에 보인다. 주방에는 이용 편의를 도모하고 자연스럽게 영역을 구분하고자 아일랜드 조리대도 설치했다. 수납을 보충해 정돈된 분위기가 연출됨은 물론 조리 중에도 대화가 끊기지 않도록 계획함으로써 커뮤니티의 단절도 피했다.
사적 공간은 서재, 드레스룸, 게스트룸 등으로 구성된다. 화장실까지 더해 사적 공간의 실들을 작은 복도가 하나로 묶는다. 특히, 공적 공간이 거실의 큰 창을 통해 따스한 햇살을 넓게 담는다면 사적 공간은 작은 복도에 세로로 길게 설치한 창으로 필요한 만큼의 적당한 햇살이 스미도록 계획했다. 공간을 나눈 형태는 간결하지만 담기는 햇살의 양에 따라 영역이 구분되도록 한 것이다.
다락으로 이어지는 계단실도 있다. 실내 베이지 톤이 짙은 목재로 그러데이션을 그리는 듯한 색상의 계단실 끝에는 얇은 미닫이문을 마련해 불필요한 공기 순환을 줄였다. 다락은 바비큐 파티와 같이 외부 테라스와 연계한 활동에 대비한 작은 보조주방과 창고 및 홈짐으로 활용한 여분 공간으로 구성된다.





한편, 건축주가 가장 만족스러웠던 점은 업체의 프로세스 시스템이다. 바로 대각선에 위치한 집이 건축주의 집과 거의 동시에 시작했는데 비슷한 공사비와 평수에도 불구하고 아직 짓고 있는 중이라고. 처음 집짓기를 계획할 때 업체와의 인연도 중요하다는 것을 새삼 깨달았다고 한다.
건축주 인생에서의 마지막 집짓기가 끝났다. 5월이면 2~3층에 거주민들도 전부 들어온다고 한다. 그는 더 이상 욕심을 내기보다는 편안한 노후를 보낼 수 있음에 감사하고, 웃는 얼굴로 입주민들과 인사를 나눌 수 있는 그런 모습을 기대한다는 작은 바람을 전했다.