인천 동춘온실 東春溫室

온실이라는 이름에 맞게 집 전체에 스며든 빛과 따스함.
분리된 듯 연결된 구조로 순환하는 공간을 만들었다.
요식업을 운영하고 있는 건축주는 지천명을 넘어서며 식당 일을 줄이고, 편안하게 휴식을 취할 수 있는 집을 원했다. 마당에 작은 온실을 두고 식물을 가꾸며 시간을 보내는 삶. 주로 아파트에서 살아온 그가 꿈꿔왔던 모습이다. 그렇게 마당과 온실이 있는 집을 짓기로 결심하고, 오래 전부터 살고 싶었던 동네에 땅을 얻게 됐다. 첫 집짓기인만큼 각 분야 전문가들의 제안을 적극적으로 수용했다. 건축사사무소와 시공사, 조경업체의 팀워크가 잘 맞아떨어져 일은 일사천리로 진행됐고 온실같은 따스함을 담은 집, ‘동춘온실’이 탄생했다.





집은 남쪽으로 좁아지는 대지의 모양에 따라 끝이 뽀족하게 끝나는 삼각형의 독특한 형태를 가지게 됐다. 마치 두 개의 건물을 합쳐 놓은 듯한 콘셉트는 주택의 혼합형 구조에서 나왔다. 전체 구조는 콘크리트 구조이지만 2층의 안방과 거실, 온실의 경사 지붕을 목조로 구성했다. 입구의 중문을 열고 들어서면 왼쪽에는 거실과 온실이, 오른쪽에는 주방 공간이 펼쳐진다. 거실과 온실의 목구조가 그대로 노출되어 있어 주방과 연결된 공간이지만 마치 분리되어 있는 듯한 느낌을 준다.



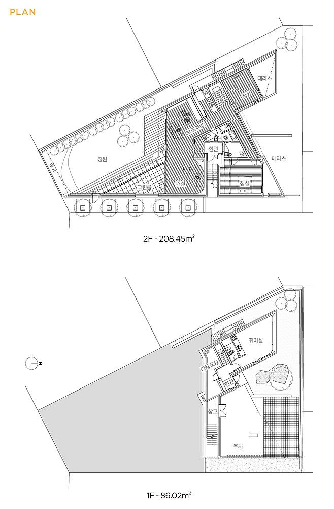
HOUSE PLAN
대지면적 ≫ 617.80㎡(186.88평)
건물규모 ≫ 지상 2층
건축면적 ≫ 233.78㎡(70.72평)
연면적 ≫ 294.47㎡(89.07평)
건폐율 ≫ 37.84%
용적률 ≫ 47.66%
주차대수 ≫ 2대
최고높이 ≫ 7.9m
구조 ≫ 철근콘트리트구조, 중목구조(스프러스 집성목)
단열재 ≫ 지붕 - 수성연질폼 / 외벽 - 락울 150mm, 준불연EPS 135mm, 우레탄보드 135mm / 기초하부 – 압출법단열재
외부마감재 ≫ 벽 - 두라스택 탱고레드, STO K1.5 / 지붕 - THK5.0 JAL ZINK
창호재 ≫ 이건 알미늄창호 + THK43 로이삼중유리, VELUX GPL + THK24 복층유리
환기장치 ≫ 독일 Zehnder, 패시브웍스
전기·기계·설비 ≫ 거산ENG, 유영설비기술연구소
시공 ≫ ㈜우리마을A&C, ㈜수피아건축(목구조)
조경 설계·시공 ≫ 조경상회
구조설계 ≫ ㈜허브구조, 금나구조(목구조)
설계·감리 ≫ ㈜에이디모베 건축사사무소 02-511-5854 www.admobe.co.kr
거실을 더욱 특별한 공간으로 만들어주는 것은 역시 온실. 별도의 공간으로 구성하려고 했던 온실을 거실 옆으로 연결하고, 외장 마감재로 쓴 벽돌을 실내로 연장해 실내와 실외의 경계를 허물었다. 천창은 빛을 충분히 받아들이고, 마당 쪽으로 난 창들은 마당의 풍경을 내부로 끌어들인다.


건축주가 가장 좋아하는 공간은 주방과 거실 사이, 마당을 향해 열려 있는 통창이 있는 곳이다. 이곳에 서면 온실에서 거실로, 거실에서 주방으로 그리고 마당으로 순환하는 2층의 공간을 한눈에 담을 수 있다. 안방의 욕실은 가족 모두가 애정하는 공간. 긴 복도 끝에 위치한 안방에서는 북쪽의 청량산 봉우리가 큰 창을 통해 펼쳐지고 안쪽으로 드레스룸과 욕실이 자리하고 있다. 히노끼탕에 몸을 담그고 천창을 통해 하늘을 바라보면 마음이 절로 평온해진다.


집안 곳곳 다양하게 뚫린 창은 동춘온실을 한층 포근하게 만들어준다. 주방에서도 천창을 통해 듬뿍 들어오는 햇살을 느낄 수 있고, 맞은편 위쪽 벽에는 가로로 긴 창이 있어 다채로운 풍경을 만든다. 거실 화장실에도 천창이 있어 불을 켜지 않아도 밝고 개방감을 느낄 수 있다.
INTERIOR SOURCE
타일 ≫ 윤현상재
싱크대·제작가구 ≫ 루베가구(LUBHE)
수전 등 욕실기기 ≫ 아메리칸스탠다드, 대림바스
계단재 ≫ THK30 오크 집성목 + 투명 스테인
현관문 ≫ 이건창호
중문 ≫ 이건라움
주차장 천장 ≫ 스테인레스 천장재(유광 블랙)



집을 설계할 때는 독립한 자녀들과 함께 거주할 계획이 없었지만, 집을 짓고 난 후 함께 보내는 시간이 부쩍 많아졌다는 가족. 떨어져 지낸 시간만큼 서로 조율할 것들은 많아도 온실같은 집에서 가족은 조금 더 따뜻하고 두터운 시간을 쌓아가고 있다.


취재_ 조재희 | 사진_ 변종석
ⓒ 월간 전원속의 내집 2022년 4월호 / Vol.278 www.uujj.co.kr