오늘의집 @chyukeuchyukeu 님의 집들이입니다.
✨인테리어 제보는 인스타그램 @todayhouse





안녕하세요. 38개월 아이가 있는 세 식구의 주택살이를 소개합니다. 어린 시절에 13년 정도 주택살이를 해서 항상 주택에서 살고 싶은 마음이 있었어요. 신혼을 아파트에서 시작했는데 테라스 있는 1층 집으로 찾아보다가 알맞은 주택부지를 알게 되어 덜컥 집을 짓게 되었습니다.
저는 공간이 주는 무드, 음악, 날씨, 그리고 향에 매우 민감한 편입니다. 본능에 참 충실한 스타일이죠. 그래서 주택을 짓는 것은 마치 밥 먹고 숨 쉬는 것처럼 인생에서 가장 중요한 일 중 하나였어요. 벌레는 싫어하지만 흙을 밟고 나무와 풀을 보며 멍 때릴 수 있는 공간은 제게 큰 영감을 줍니다.
작년 4월에 착공하고 11월에 이사를 했어요. 집을 지을 때 요즘 흔히들 말하는 감성을 중요하게 생각했어요. 마치 갤러리, 홈카페 같은 집을 감각적으로 채우고 좀 웃기지만 폼 잡고 살기를 원했어요. 아주 운 좋게 마음에 쏙 드는 감각을 가지신 건축가분들을 만나서 원하는 것들을 다 이룰 수 있었어요. 그 과정은 참 재밌었고 벌써 끝나서 아쉬워요. 그래서 두 채는 더 지어보고 싶어요 ㅎㅎ (말이 그렇다는 겁니다 ^^)
서론이 길었죠? 글에서도 수다쟁이의 기질이 보이네요. 저희 집은 딸아이의 태명을 써서 츄크네입니다. 순서대로 소개해드릴게요.
도면

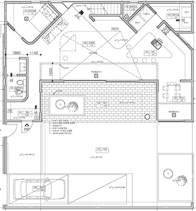
[1층 전체 도면]
1층 전체에 대한 도면입니다. ㄷ자로 된 남향집에 마당에는 석재데크, 잔디밭, 조경 그리고 주차장이 있습니다. 주차는 규정상 2대가 들어가야 해요. 이렇게 특이하고 특별한 도면 보셨나요? 집에 세모, 세모, 세모, 곡선, 곡선, 곡선. 집을 짓기 전에는 가구 배치를 어떻게 해야 할지, 데드 스페이스가 많이 생길까봐 걱정했는데... 정말 쓸 데 없는 걱정이었습니다. 현관을 지나면 욕실, 파우더룸, 게스트룸, 거실, 주방 그리고 다이닝룸이 있습니다.

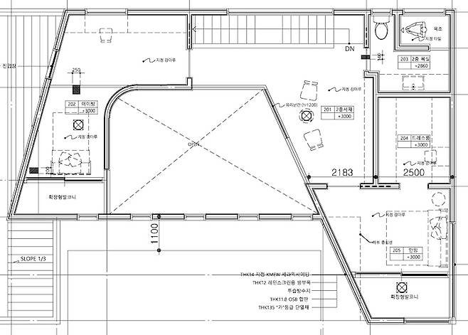
[2층 도면]
2층 도면도 정말 특별하죠? 2층에는 아이방, 안방, 욕실, 작은 거실이 있어요.아이방에는 천장이 있어서 별도 보고 구름도 볼 수 있어요.

저희집 땅은 북쪽 서쪽 남쪽 사방에 집이 있고 서쪽만 트인 낀 집이라 집의 정면을 보여주기 어려워서 대문에 힘을 줬어요. 스테인레스 스틸 루버를 어둡게 코팅해서 대문과 주차장만 투과되어요.
외관

청단풍 한 그루가 있어요. 루버가 있어서 보기 힘들지만 창이 숨어 있는데 집 안에서는 밖이 잘 보입니다. 밑에 있는 사진 처럼요 :) 외장을 벽돌로 하고 싶었는데 유지보수를 위해 세라믹 사이딩 베이지색을 선택했어요. 근데 지금은 너무 잘한 것 같아요. 외벽이 늘 새 것처럼 깨끗하답니다. 단점이 있다면 세라믹 사이딩은 다른 외장제보다 조금 추울 수 있어요.



밖에서는 잘 안 보이는 창문이 안에서는 이렇게 잘 보입니다. 서쪽 창이라 해가 질 때는 저 루버 그림자가 길게 늘어져서 아주 아름답죠.

한 장에 다 담기 힘드네요. 전 휴대폰 카메라만 있거든요 :) 바위 두 개와 청단풍으로 간결하게 표현했어요.

집 전체 3D 렌더링 입니다. 99% 일치하는군요. 저 하늘의 구름은 실사같아요.

집 정면, 얼굴은 이렇게 생겼어요. 6미터가 되는 시원한 통창을 과감하게 배치하고 이층도 6개의 픽스 창으로 채광을 듬뿍 받을 수 있게 해 주었어요. 이건 좀 웃긴 얘기인데 (저만 재미있는 건가요 ㅎㅎㅎ) 건축가님께 "저는 햇볕에 타 죽어도 좋으니 빛이 아주 쏟아지게 창을 내주세요." 라고 부탁드렸어요. 그랬더니 정말 창 부잣집, 햇살 부잣집을 만들어 주셨어요. 제가 기억하기로 전체 창이 30개 쯤 되었던 걸로 기억해요.

얼마 전 벚꽃이 핀 봄, 저녁에 찍은 집의 모습은 정말 고슴도치 엄마 같지만 너무 예쁨 아니 아름답습니다. 외벽등도 센스있게 잘 배치해 주셨어요. 이런 고즈넉하고 정갈한 느낌 사랑합니다.

벚꽃이 떨어진 석재 데크와 잔디 그리고 빛의 조화가 마음을 말랑말랑하게 해주어서 좋아요. 전 성격이 급하고 하고싶은 것도 많아 늘 정신없고 바쁜데 다른 한 켠에는 느린 것, 멍 때리는 것, 그냥 내려놓고 아무것도 하지 않는 것을 제일 좋아하는 그런 이상한 성향을 지닌 소유자이지요. 저희 집이 그걸 보여주는 것 같아요. 워킹맘으로 찌든 사회 생활과 일상을 고요하고 차분한 집으로 보상받고 싶어요. 집의 분위기는 딱 그걸 표현하는 것 같고요.


좀 이른감이 있지만 날씨가 갑자기 따뜻해져서 온수로 물놀이도 즐겨보았어요. 개구리, 곤충, 식물 관찰, 모래놀이, 물놀이 등을 가능하게 하는 주택은 아이가 살기 정말 좋은 곳이에요. 작년 11월에 이사온 후로 위험한 상황 빼고는 "뛰지마"를 한번도 해본적이 없어요. 잔소리가 줄었지요. (과연?)

정원에서 보이는 다이닝룸 혹은 다이닝룸에서 보이는 정원은 제가 집에서 가장 애정하는 공간입니다. 갤러리창의 정석을 보여주는 듯하죠. 라일락 나무가 너무 멋스럽게 창 밖으로 보여요.

아빠와 딸이 우유 한 잔씩 하는 모습이 귀여워서 찍어 봤어요. 츄크는 앉은 키가 작으니 목만 빼꼼히 테이블 밖으로 내밀고 있군요.

낮에 보아도 운치 있어요. 적삼목에 흑단 스테인은 완벽한 선택이었어요. 고급져 보여요. 제가 원하는 나무의 색과 질감입니다.

외부벽등이 상당히 마음에 듭니다. 빛의 색이나 퍼짐이 고요해요.
1층

대문에서 들어오면 오른편으로 바로 현관문이 있어요. 단열을 생각해서 창호회사에서 나온 무거운 문을 설치 했습니다. 여닫는 것은 무겁지 않아요. 투명하게 보여서 답답하지 않아 좋고요. 천천히 자동으로 닫히게 조절해놔서 문을 닫지 않고 들어가도 알아서 닫힙니다.

현관문을 열고 들어서면 보이는 뷰가 딱 여기입니다. 작은 현관과 좁은 복도가 라운드 처리된 벽과 픽스창으로 넓어 보여요.

현관의 픽스창이 많이 커서 마당 전체가 시원하게 보여요. 아침에 해뜰 때 동쪽에서 해가 들어 옵니다.

현관에 들어서면 보이는 갤러리창과 크게 라운드된 벽이 보여요. 그리고 거실이 시작 하는 부분도 보입니다. 저 소파에 앉아서 현관문을 보며 누가 오나 볼 수 있어요.

현관에서 들어와 왼편으로 돌면 북쪽으로는 게스트룸 남쪽으로는 파우더룸과 욕실이 있지요. 게스트룸도 통창을 통해 라일락나무를 볼 수 있어서 좋아요. 게스트룸이지만 주 사용자는 남편입니다. 저희집은 네모모양의 방이 없어요. 게스트룸은 앵글이 많이진 5각형의 방입니다. 그래서 붙박이장은 필수였어요. 저희집은 1층이 전부 트라버틴 포세린타일로 통일했어요. 겨울에 난방을 틀면 찜질방 처럼 따끈해서 너무 좋아요.


파우더룸에서 게스트룸을 닫은 모습이에요. 서쪽에 창이 있어서 오후가 되면 그림자가 너무 멋져요. 시간마다 그림자의 모습이 변해서 그걸 보는 재미도 있답니다.

욕실로 들어가기 전 픽스창 바로 앞에 건식 파우더룸이 있습니다.

이곳은 1층 욕실이에요. 건식 파우더룸 문을 열고 들어가면 변기와 샤워부스가 있는데 라운드 벽이 특징이에요. 저 라운드 벽너머는 현관입니다.

1층 욕실에도 큰 창이 있는데 오후에 빛이 들면 이런 신기한 그림자를 만들어 냅니다. 문은 목수님께서 직접 만드신 미닫이 문입니다.

여기서부터는 거실이에요. 현관으로 들어와서 왼쪽으로는 파우더룸과 욕실, 오른쪽으로는 게스트룸이 있고 그 앞으로 거실과 주방이 연결되어 있습니다. 보이드 공간으로 일층부터 이층까지 천고가 뚫려 있어서 개방감이 상당합니다. 약 7미터의 높이입니다. 일층부터 이층까지 연결되는 짙은 월넛 파티션 너머로는 티비가 있어요. 커튼도 약 7미터 되는 아주 긴 린넨코튼을 설치했어요. 소파 자리를 지나면 거실 중앙에는 대청마루가 있습니다. 한 장의 사진에 많은 곡선들이 보이시나요? 곡선 처리한 벽들이 집을 웅장하고 부드럽게 보이게 해줘요. 시공은 어렵지만 정말 강력히 추천드립니다.

보시다시피 저희 집은 흰색, 짙은 색의 원목, 블랙 그리고 석재가 전체적인 톤앤매너입니다. 제가 요즘 푹 빠진 조합인데 고재느낌의 가구들을 상당히 좋아합니다. 개인적으로 밝은 원목느낌보다는 어둡게 톤다운된 브라운을 좋아합니다. 츄크는 대청마루에서 장난감도 가지고 놀고 노래도 부르고 춤도추고 합니다. 너무 좋아요. 특히 겨울에는 차가운 타일을 피할 수 있어 좋습니다. 벽면 전체에 수납장을 만들어서 츄크의 장난감이나 옷을 수납하였어요. 저곳에 숨기면 집이 깨끗해보입니다.
반대편에서 보면 주방이 보이네요. 이층 거실 모습도 보이고요.

이층에서 내다본 일층의 대청마루 모습입니다. 겨울에는 해가 깊게 들어와서 나무 그림자가 멋지게 집안으로 들어와 있습니다.




현재 엘피플레이어를 두는 곳인데 시공 중일때 사진이 있어서 올려 봅니다. 저기 세모 공간에 수납장을 깊게 만들어서 츄크의 장난감과 책을 수납하였어요. 아래 사진에서 처럼요.

대청마루에서 바라보면 정원이 한눈에 들어 옵니다. 지금은 잔디가 초록색이라 너무 이뻐요. 햇살 맛집의 비법이 이 일층과 이층 창문이랍니다.

봄이 되니 창 너머로 벚꽃이 보입니다.

거실 통창은 길이만 6미터에요. 아주 마음에 듭니다.

이층부터 촤르륵 내려오는 린넨 커튼은 분위기를 한층 업그레이드 해주었어요.


여기서부터는 주방입니다. 거실과 바로 연결되어 있어요. 아일랜드와 연결되어 있는 수전은 건축가님께서 요리하면서도 거실 밖 정원을 볼 수 있게 앵글을 줘서 설계해 주신거에요. 제 마음을 읽어 주셨습니다. 조형물 혹은 예술작품 같은 아일랜드도 건축가님께서 직접 디자인해주셨습니다. 원래는 세모 모양이었는데 트라버틴 석재와 찰떡 같이 어울리는 기하학적인 모양으로 디자인해주셨어요. 여기는 저희 가족의 메인 식탁입니다. 바닥에서 쑥 뽑아 올린 것 같은 소재로 바닥과 아일랜드를 제작하였어요. 아... 건축가님 천재인가봐요. 블랙싱크대가 무게있게 밝은 베이지톤의 면적 즉 비율을 맞춰줍니다.






주방에서 남쪽으로 문이 하나 있어요. 간살문 도어 멋지지 않나요? 한옥같이 정갈하고 기품있으면서 심플한 디자인을 주기위해 간살문을 사용하였어요. 문을 닫아도 답답하지 않게 개방감 있게 파티션 역할 정도만 할 수 있을 정도로요. 다이닝룸은 짙은 브라운 색이 포인트입니다.



재택근무를 하기 때문에 홈오피스 공간을 여기저기 유목민처럼 돌아다니다 최근에 정착한 곳이 다이닝룸입니다. 이전에는 이층 거실에서 일을 했었는데요, 다이닝룸이 일하기 최고의 공간이었어요. 집중도 잘 되고 분위기도 최고입니다. 일하다가 창밖의 라일락보고 멍 때리면서 머리 식히면 너무 좋아요. 사진에는 비가 막 내리기 시작했네요.

단풍나무 가지치기를 잘못해서 무심하게 꽃병에 꽂았는데 생각보다 멋있어서 스스로 칭찬했습니다.

일할 때 머리가 아프면 아로마 테라피로 심신을 달래는데 저는 로즈마리 향이 너무 좋아요. 정신과 몸이 정화되는 느낌이 강합니다.
2층

일층 투어가 끝나고 이층으로 올라가 보시죠. 집 구조가 특이해서 무릎을 탁 칠 만큼은 구조가 이해가 안되시죠? 설계도를 보고 참고해 주세요. 이층을 올라가는 벽도 역시 아름답게 곡선처리가 되어 있습니다. 이쯤되면 곡선 중독자입니다. 일층의 대청마루와 이층을 올라가는 바닥 소재와 색을 통일하였습니다.

이층에 올라오자마자 보이는 갤러리창입니다. 지금은 거대한 집이 들어서서 저 뷰가 없어요. 뒷집 벽뷰가 되어 버렸지만 그걸 대비해서 사진을 찍어 두었습니다. 저 창으로 보이는 곳은 저희 집에서 북쪽입니다.

이곳은 다이닝룸이 홈오피스가 되기 전 제가 썼던 이층 거실입니다. 한옥 느낌을 주고 싶어서 전체 장을 짰습니다. 정사각형이 아닌 직사각형 모양들이 있어서 한국적인 느낌이 듭니다 (저만 그런가요?). 역시 짙은 다크 브라운색으로 스테인을 칠했어요. 저 장을 어여쁜 오브제로 채우기 위해서는 많은 시간과 돈 그리고 노오력이 들 듯 합니다. 일단은 제가 가지고 있는 것들로 어설프게 장식해 보았어요 (장식이라기 보단 수납이죠). 이층 바닥은 비용절감을 위해 강마루를 썼어요. 그래도 예뻐요. 강마루니까 찍힐 걱정 안 하고 마구 쓰고 있습니다.


이층 거실에서 내려다보면 정리 안 된 소파가 보이는 군요.

유리로 벽을 만들어 개방감을 더했고 일층에서 봤을때 이층 수납장이 보이게 했어요. 이유는 색의 밸런스 때문이었어요. 짙은 브라운의 밸런스 ㅎㅎㅎ

고개를 좀 아프게 숙이고 자라처럼 쭉 빼서 찍으면 이렇게 멋있고 숨멎하는 샷이 나옵니다. 겨울 나무가 주는 매력을 주택살이하면서 알았어요. 벚꽃나무의 그림자가 설렐만큼 멋집니다.

아이방이에요. 입구 맞은편에 서쪽으로 창이 있어서 해질 때는 너무 따뜻한 색을 만들어 냅니다. 아이방은 ㄱ자? ㄴ자?로 생겼어요. 장농과 곡선을 따라 좌회전하면 숨은 공간이 나타나죠.
아이방을 들어와서 좌회전하면 나오는 공간입니다. 남쪽 창은 마당이 보이고 왼쪽에 보이는 창은 일층 거실과 주방이 보입니다. 나중에 츄크가 크면 엄마가 일층에서 뭐하는지 다 보고 엄마가 이층 가는게 보이면 공부하는 척 모드로 재빠르게 바꿀 수 있을 거에요.

남쪽 창은 자연이 주는 벚꽃 액자가 됩니다.

천창이 있어서 별도 보이고 구름도 보이고 비가 오면 비가 떨어지는 것도 볼 수 있죠. 아직 아이방을 꾸미지는 않았는데요, 나중에 천창 자리에 침대가 올 것 같습니다.



이곳은 안방입니다. 공사할 때 찍어둔 사진이에요. 벽 한 면을 역시 짙은 브라운 원목 느낌을 주어 집 전체 톤앤매너의 밸런스를 잡아주었습니다. 깨알 같이 픽스 창도 있어요. 아 깨알보다는 존재감이 훨씬 크군요. 저희 집 창들은 워낙 커서 저 사이즈의 창은 미니사이즈입니다.

이층 거실에서 문을 열면 아이침대와 엄마아빠 침대가 나란히 있어요.

헤드 부분 왼쪽으로 문이 하나 있는데 그 문을 열면 보이는 드레스룸입니다. 저는 옷이 많은 편이 아니라 부부의 사계절 옷이 저 안에 다 들어갑니다. 비용 절감을 위해 이케아 팍스장을 직접 조립하였어요. 너무 근사하게 잘 짜와서 양쪽 어깨에 칭찬을 해줍니다.

침대에 누워서 보이는 창의 구조 입니다. 공사 중일 때 찍었는데도 느낌있어요. 가을 하늘은 역시 파랗군요.


이층에 있는 메인 욕실입니다. 일층에는 없는 욕조가 있어요. 전 반신욕을 너무 좋아해서 욕조가 있어야 하는 스타일이에요.

욕조 바로 옆에 있는 픽스창입니다. 뒷집이 들어서기 전에는 뷰가 너무 멋졌는데 이제는 뷰가 사라졌어요. 욕실 채광으로 각종 세균 및 곰팡이 살균하는 용도로 변경이 되었네요 ㅎㅎㅎㅎㅎㅎ

작년 11월부터 겨울과 봄을 주택에서 보냈는데요, 계절의 변화를 분명하게 느낄 수 있어서 좋아요. 정원의 식물들도 집 안으로 들어오는 해의 길이도... 앞으로 남은 여름 가을이 기대됩니다. 제가 원했던 주택의 느낌이 많이 녹아 있어서 완공하고도 꿈 같았던 기억이 생생하네요. 츄크가 제 나이가 되어서 따뜻하고 행복한 추억이 가득한 집이 되길 소망해 보아요. 제가 어릴 적 할머니집에서의 추억이 아주 따뜻하고 행복했듯이 말이죠. 긴 글 읽어 주셔서 감사합니다. 모두 평안하고 건강한 삶 되시길 바라요.