전세계를 무대로 활동하는 건축가들이 짓는 집은 어떤 모습일까. 일본 협소주택이나 미국, 유럽의 저택이 TV나 영화를 통해 종종 소개되지만 그 의도와 철학적 의미를 알기는 쉽지 않다. 땅집고는 월간 건축문화와 함께 세계적인 건축가들이 지은 주택을 소개한다.
[세계의 주택] 갤러리로 쓰는 협소주택 ‘24mm 플리우드 하우스’(24mm plywood house)

[땅집고] 일본 교토 주택가 한 모퉁이에 2층짜리 협소주택 ‘24mm 플리우드 하우스’(24mm plywood house)가 눈길을 끈다. 이 집은 두께가 24mm인 합판을 사용해 이런 이름이 붙었다. 24mm 합판을 노출해 실내 인테리어와 외관을 마감했다.
◆건축 개요

건축사무소 : 알파빌 아키텍츠( Alphaville Architects)
위치 : 일본, 교토
대지면적 : 55.51㎡
건축면적 : 30.53㎡
연면적 : 44.40㎡
규모 : 지상 2층
준공 : 2020년
사진작가 : 토시유키 야노(Toshiyuki Yano)
◆건축가가 이집을 지은 의도는…
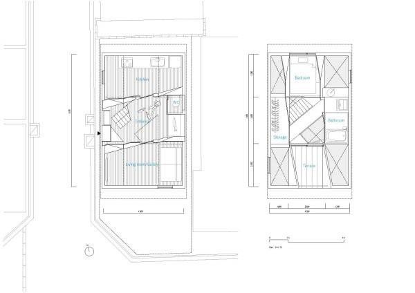
이 집은 미술품 애호가인 할아버지의 손자를 위한 집이다. 때때로 이 집은 갤러리로도 사용한다. 실내 곳곳에 건축주의 할아버지가 소장하고 있는 미술품으로 인테리어를 했다. 다만 이 집의 규모는 대지면적 55㎡, 건축면적 30㎡로 실제 건축주가 생활할 수 있는 공간은 작다. 건축가는 좁은 면적에서도 공간을 효율적으로 사용하면서도 깔끔한 수납공간을 마련하기 위해 2층을 여러 공간으로 분할했다.
■ 1층은 갤러리, 2층은 생활 공간
이 집은 1층에 거실·부엌 등 공용공간이 있다. 1층 거실 벽에는 그림을 전시했다. 1층은 손님맞이용 공간으로 변신할 수도 있다.

2층에 침실·화장실 등 개인공간이 있다. 2층은 나무 합판을 활용해 총 9개 공간으로 나누었는데 이 중 박공지붕 끄트머리여서 좁아진 부분은 옷장이나 창고로 쓰인다.


■ 1층 창은 작게, 2층 창은 크게
집이 골목 모퉁이에 자리잡고 있어 유동인구가 많다. 이 때문에 건축가는 사생활을 보호하기 위해 1층 창문 크기를 작게 만들었다.

대신 행인들의 시선이 닿지 않는 2층은 창을 크게 내고 개방감을 줬다.

글= 최지희 월간 건축문화 기자