[made in MY HOUSE ③ - BASEMENT] 별채 지하에 공방 계획한 양평 주택
나무를 조각하듯 섬세히 설계하고, 나무를 짜 맞추듯 목공예를 일상에 조립했다. 건축주의 필요와 취향대로 공방 또는 쇼룸을 더한 주택 3채를 만나 그 이야기를 들어본다.

취미로 시작한 목공이 삶의 일부분이 되었다. 목공 작업실을 갖춘 주택은 건축주가 꿈꾸던 모습 그대로다. 본채와 별채로 나뉜 주택은 가족과 함께 자연을 누리고, 때로는 혼자만의 작업에 몰두할 수 있는 터전을 제공한다.



별채로 간 목공방과 가족과의 시간, 자연, 취미를 모두 누리는 집
도심 속 아파트 생활에 익숙했던 건축주는 아내와 함께 앞으로의 삶에 대한 고민을 마주하고, 인생 2막을 시작할 집을 짓기로 결심했다. 결혼 전에 주택에 살아본 적이 있었던 터라 늘 전원주택 생활에 대한 로망을 가슴에 품고 있었다. 더구나 목공이라는 취미를 오래 즐겨온 까닭에 개인 작업실도 갖고 싶었다. 본업은 세무사이지만, 예술 분야에 관심이 많아 사진 등 여러 취미를 시도해 보다가 가장 잘 맞는 목공을 본격적으로 배웠다. 주택의 설계를 맡은 이코스건축사사무소 안민 소장과도 원목 가구 아카데미에서 반년 넘게 목공 공부를 함께 한 인연을 가진다.
건축주는 처음에는 현장 근처의 건축사사무소와 설계 계약을 체결했지만, 소통이 원활하지 않아 1년여 뒤 결국 안 소장에게 연락했다. 안 소장은 시작부터 관여하지 않은 설계를 마무리한다는 것에 고민이 많았지만, 그동안 건축주에게 여러 도움을 받았던 것에 보답할 기회라 여기고 승낙했다. 그간 건축주의 안목도 늘었고, 주거 공간에 대한 명확한 기준이 형성되어 오히려 더 좋은 계획안을 만드는 기회가 되었다.

HOUSE PLAN
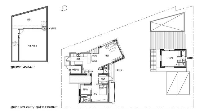
대지면적 : 517㎡(156.39평)
건물규모 : 본채 - 지상 2층 / 별채 - 지하 1층, 지상 1층 + 다락
거주인원 : 3명(부부, 자녀 1)
건축면적 : 103.26㎡(31.23평)
연면적 : 213.17㎡(64.48평)
건폐율 : 19.97%
용적률 : 32.52%
최고높이 : 8.20m(본채) / 6.04m(별채)
주차대수 : 2대
구조 : 기초 - 철근콘크리트 매트기초 / 지상 - 철근콘크리트
단열재 : 압출법보온판 180mm, PF보드 130mm
외부마감재 : 벽 - 유성건재 청화FR90(본채), 핀란드 베네시안 T&G 루바(별채) / 지붕 - 주신기업㈜ SA 0.5T 징크
담장재 : 디자인벽돌 등
창호재 : LX하우시스 E9-TD200 단창 및 S5-250 이중창 + 로이유리
에너지원 : 지열보일러(본채), LPG(별채)
조경석 : 돌마을 골드 디딤돌 등
조경 : ㈜성진조경
전기·기계 : ㈜에스이엔씨
구조설계(내진) : 한길구조엔지니어링
시공 : 건축주 직영
설계·감리 : 이코스건축사사무소




주택이 지어질 대지는 도로의 끝단에 위치해 도로에서 정면으로 드러나 프라이버시 확보가 중요했다. 건축주는 가족들이 생활할 본채와 손님을 위한 별채로 주택을 나누기를 원했고, 별채가 도로로부터 본채를 가려주기를 바랐다. 본채 1층에는 부부침실과 거실, 주방이, 2층에는 자녀침실과 가족실 역할을 하는 대청마루가 계단과 이어져 있다. 별채 지하에는 건축주의 목공방을, 1층과 다락에는 게스트룸을 계획했다.
안 소장은 건축주 스스로 집을 지었다고 해도 과언이 아닐 정도로 건축주가 부지런함과 호기심으로 집짓기의 모든 과정에 정성을 쏟았다고 전했다. 특히 대청마루의 천장 마감을 이루는 처마 형상이나 창문의 우드 프레임, 직접 제작한 가구들까지 전문가와 비견할 만한 건축주의 목공 솜씨를 집 안 곳곳에서 찾아볼 수 있다고 덧붙였다.


INTERIOR SOURCE
욕실 및 주방 타일 : ㈜유송타일 로프트화이트 등
수전 등 욕실기기 : 대림바스
주방가구·붙박이장 : 앨리하우스
조명 : 을지로 조명이야기
현관문 : 플러스도어 로이도어1125
중문 : 영림합판도어 영림 포켓2연동 + 아쿠아유리
방문: 영림합판도어 영림 슬라이딩락 및 발포슬림 + 도장필름지
데크재 : 삼익산업 프리미엄 방칼라이 19㎜
MADE IN MY HOUSE

가족들의 주 생활 공간인 본채와 게스트룸과 목공방이 있는 별채는 쓰임도 규모도 다른 별도의 건물이지만, 데크와 마당을 통해 서로 통한다. 이로써 독립적이면서도 연결되는 주택이 완성된다.

선큰 마당은 지하층에 위치한 목공방의 작업환경을 개선해 주고, 환기와 채광을 누리는 개방감 있는 공간으로 활용된다. 선큰 마당 출입이 자유롭도록 공방 전면에 폴딩도어를 설치했다.

대지가 상수원보호구역에 속해서 법정 건폐율이 낮았고, 목공의 작업 소음과 분진 등을 고려해 별채 지하에 작업실을 계획했다. 취미로 시작했지만, 공방에는 전문가 못지않은 도구들을 갖췄다.

건축가 안민 : 이코스건축사사무소
인하대학교 건축공학과를 졸업하고 금성건축 등을 거쳐 정림건축종합건축사사무소에서 실무를 쌓았다. 이후 이코스건축사사무소를 설립하였다. 정림건축 재직 당시 세스코사옥, 현대해상 부평사옥 등 업무시설과 하남스타필드 등 복합상업시설 신축 프로젝트를 진행하였고, 독립한 후에는 LH 공공임대주택, SH 임대주택, 용담리주택 등 주거시설과 Cafe Trigo, 신당동 근생 리모델링 등의 다양한 업무를 진행하였다. 02-6959-0282 | www.eekos.co.kr
취재_오수현 | 사진_최진보
ⓒ 월간 전원속의 내집 2023년 7월호 / Vol.293 www.uujj.co.kr