

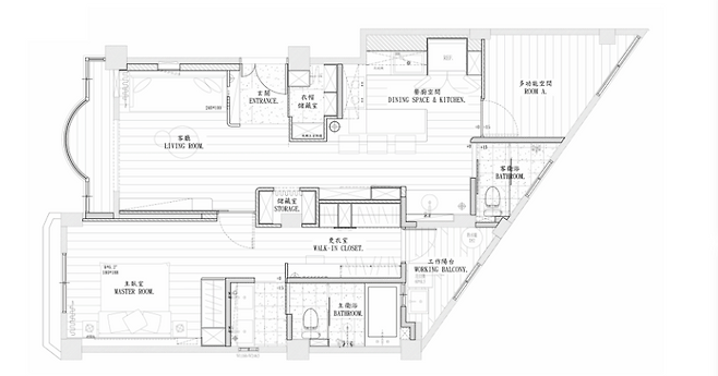
현관 가벽과 펜트리 수납장
27평 구축 아파트의 현관에는 유용성과 디자인을 모두 살린 가벽과 펜트리 수납장이 설치됐다. 회전식 신발 보관함과 넉넉한 내부 공간으로 청소기, 가방, 코트까지 보관 가능하다. 미닫이 간살도어를 적용해 환기와 통풍이 원활하며, 바닥 무레일 슬라이딩으로 깔끔한 사용감을 제공한다. 은은한 일본풍 디자인이 시각적 포인트를 주며, 실용성과 미적 요소를 동시에 충족한다.


가벽형 현관 벤치와 아쿠아 유리 포인트
현관에는 벤치형 가벽을 더해 수납과 편의성을 높였다. 신발을 신거나 짐을 놓을 수 있는 실용적인 기능과 함께, 가벽에 원형 아쿠아 유리를 넣어 동양적인 무드를 연출했다. 이는 답답함을 해소하며 여백 있는 디자인을 가능하게 한다. 가벽을 전부 막지 않아도 사생활 보호와 개방감을 동시에 확보할 수 있는 아이디어로, 작은 공간에서도 멋과 기능을 모두 살린 현관 인테리어의 좋은 예다.


안방 무문선과 TV 벽 통합
거실과 안방 사이에는 무문선 디자인을 적용해 경계 없이 이어지는 시각적 개방감을 만들었다. 이는 공간을 넓어 보이게 하는 효과가 뛰어나며, TV 벽과의 통합으로 미니멀한 분위기를 완성했다. 또한, 아치형 펜트리 수납장 공간을 마련하고 커튼으로 처리해 쉽게 드나들 수 있도록 했다. 원목 톤의 마감재로 전체 인테리어에 통일감을 부여했으며, 숨김 구조로 생활 감춰야 할 부분을 자연스럽게 가렸다.


건식 화장실과 세면대 디자인
공용 화장실은 삼각형 구조를 잘 활용해 개방감을 확보했다. 테라조 타일과 민트 타일의 대비가 산뜻하며, 샤워부스 유리를 설치해 채광과 공간감을 동시에 살렸다. 미닫이 도어로 면적 효율을 높였고, 건식 구조로 위생적인 환경을 조성했다. 마스터 침실의 욕실은 욕조와 샤워부스를 분리해 사용성을 높였고, 입구 쪽에 세면대를 두 개 설치해 부부가 동시에 사용할 수 있도록 설계했다. 작은 공간에서도 기능과 디자인을 모두 잡은 사례다.


