[LIGHT-THROUGH HOUSE 빛이 스미는 집 2탄] 다양한 외장재를 활용해 빛을 충분히 머금고, 환하게 통과시켜 집안 곳곳을 밝힌다. 채광과 프라이버시를 모두 잡은 주택 세 채를 만나보았다.

예로부터 가을이면 집마다 감을 깎아 처마에 주렁주렁 걸어
곶감 만드는 풍경을 볼 수 있었다는 강릉.
옛 모습의 정겨움과 내실을 모두 갖춘 상가주택을 만나본다.
HOUSE PLAN
대지면적 ≫ 397㎡ (120.09평)
건물규모 ≫ 지상 3층
건축면적 ≫ 209.15㎡ (63.26평)
연면적 ≫ 478.47㎡ (144.73평)
거주인원 ≫ 3명(부부+자녀1)
건폐율 ≫ 52.68%
용적률 ≫ 120.52%
주차대수 ≫ 6대
최고높이 ≫ 9.85m
구조 ≫ 기초 – 철근콘크리트 매트기초 / 지상 - 철근콘크리트
외부마감재 ≫ 외벽 – 점토벽돌, STO 외단열시스템, 노출콘크리트, 코르텐강 / 지붕 –알루징크
내부마감재 ≫ 벽 – 벤자민무어 페인트, 디아이디 벽지 / 바닥 - LX하우시스 강마루
단열재 ≫ 비드법단열재 2종1호 135㎜ / 220㎜ , 열반사단열재 60㎜
창호재 ≫ AT REHAU 86㎜ PVC 삼중유리 단열 시스템창호
욕실 및 주방 타일 ≫ 유송타일, 상아타일
수전 등 욕실기기 ≫ 아메리칸스탠다드
조명 ≫ 비츠조명
계단재·난간 ≫ 미크리트
방문 ≫ 예림도어
에너지원 ≫ 가스보일러
전기 ≫ ㈜신창
기계·설비 ≫ 아주종합설비
구조설계(내진) ≫ ㈜나라구조엔지니어링
시공 ≫ ㈜부강종합건설
감리 ≫ 건축사사무소 예청
설계 ≫ 건축사사무소 예인 033-646-6505 www.yeinarchitecture.com




건축가와 건축주의 첫 상담은 건축주 부부가 15년간 운영하던 원주의 칼국수 가게에서 이뤄졌다. 건축주 부부는 원주의 음식점을 정리하고 고향인 강릉 초당에 음식점을 새로 운영하면서 거주도 할 상가주택 짓기를 희망하였다. 건축사사무소 예인 최이선 소장은 첫 상담 당시, “건축주 부부가 운영하던 칼국수 가게가 맛집으로 소문이 난 이유를 알고 싶기도 하고, 건축가로서 강릉 초당에 맛집이 입점한 건축물을 만들고 싶은 욕심도 있던 터라 사전답사 차원으로 방문했었다”라며 소회를 밝혔다.


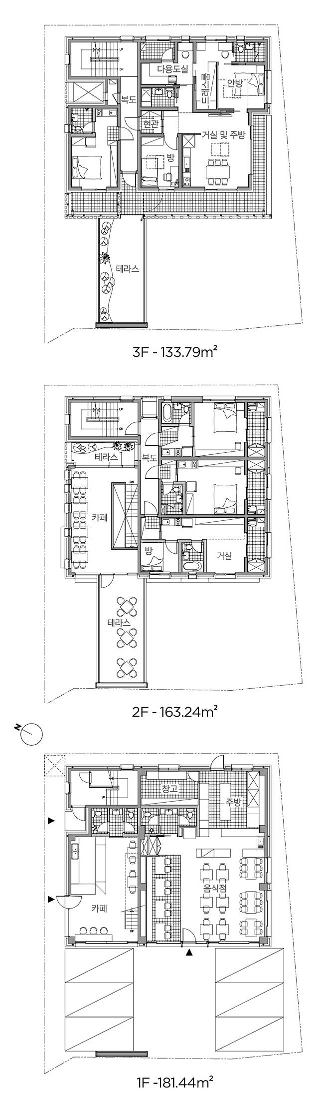
건축주 가족은 부부와 아들뿐이고, 하루의 대부분을 가게에서 보내는 까닭에 큰 거주 공간이 필요하지 않았다. 따라서 주인 세대를 최소화하는 계획을 세웠다. 1층에 건축주가 운영할 음식점 공간과 임대를 위하여 1층과 2층의 일부를 복층 구조로 연결한 카페를 만들고 2층 카페와 주거 공간 사이에 작은 정원을 만들어 자연과 소통할 수 있도록 했다. 2층 남측 면에는 3개의 임대 세대를 배치해 당장은 원룸으로 임대를 주고 추후 게스트하우스 등으로 변경할 수 있도록 했다. 3층에는 건축주가 거주할 주택을 만들고 여유 공간에 임대 세대 1개를 더 배치했다.


신축 부지는 초당마을의 중심부가 아닌 서쪽 외곽지역으로 도로가 신설되면서 형성된 대지이다. 도로의 방향에 따라 건축물의 주 방향은 서향을 향하도록, 주거 공간의 방향은 남·서 방향으로 배치했다.
초당마을은 내륙마을로 오래된 한옥들이 많고 주로 농사를 지어 생활하던 마을이었다. 따라서 점토 벽돌, 노출콘크리트, 내후성 강판 등 모두 흙에서 시작돼 흙으로 돌아갈 수 있는 재료들을 외장재로 사용해 마을과 잘 어우러지도록 했다. 특히 주택이 위치한 부지가 도시화가 되어가는 도로변이라 정갈한 면이 나올 수 있는 점토 벽돌을 주요 외장재로 사용했다.

RED BRICK

TIP. 넉넉한 공사 기간을 확보하고 디테일한 시공에 노력을 기울이자.
이 건축물의 주 방향이 서향을 향하고 있어 태양광을 조절하고 프라이버시를 보호하기 위해 처마에 곶감을 걸듯이 벽돌을 매달았다. 벽돌 구멍에 내구성이 강한 스테인리스 전산 볼트를 수직으로 세우고 벽돌을 아래에서부터 하나씩 넣고 와셔와 너트를 이용해서 높이를 맞추어 올리는 작업을 했다. 볼트를 위에서부터 아래로 돌려 고정하는 시간이 많이 소요되어 공사 기간이 길어졌다. 특히 상부의 간접조명을 위해 구조체와 벽돌 사이 간접조명을 설치할 수 있는 공간을 확보하고 철재 상판을 덮어 고정하는 디테일한 작업과 하부 방수 작업은 시공에 세심한 노력이 필요했다.

복층 임대 상가 내부 계단을 오르면 다가구 복도의 소음 차단과 영역의 구분을 위한 작은 정원이 있다. 북·서측 면으로는 벽돌을 영롱쌓기하여 닫혀 있지만 바람이 통하는 공간이 존재한다. 영롱쌓기 오픈 빈도는 임대 세대는 촘촘하게, 주인 세대로 가면서 덜 촘촘하게 만들어 처마에 주렁주렁 걸린 강릉 곶감을 연상케 한다.



입주한 지 1년이 넘었지만 하루 일과를 끝내고 3층 주인 세대 현관문을 열고 들어갈 때면 여전히 처음 들어가는 느낌처럼 설렌다는 건축주. 천창은 움직일 수 없는 집을 변화무쌍하게 만들어 준다. 건축주는 천창을 통해 집 안으로 들어오는 햇살은 기분마저 화사하게 만들어 주고, 달빛은 그 자체로 은은한 무드등이 되어 준다며 자연과 날씨의 변화를 즐기고, 느끼며, 감상하는 ‘하늘 멍’에 푹 빠졌다고 전했다.

취재_ 오수현 | 사진_ 윤준환
ⓒ 월간 전원속의 내집 2022년 9월호 / Vol.283 www.uujj.co.kr