
101세 어머니를 위해 고향 땅에 지은 아담한 집 한 채. 북한산과 북악산을 한눈에 내려다보는 집에는 어머니를 향한 아들의 마음이 고스란히 담겨 있다.


서울의 오랜 역사를 간직하고 있는 종로구 홍지동. 동네에 접어들면 삼면을 두르고 있는 북한산과 북악산, 인왕산의 산세가 아름다운 절경과 함께 깊은 평온함을 선사한다. 이곳에 한 가족의 역사를 지닌 땅이 자리하고 있다. 건축주 이교승 씨의 조부모님과 어머님은 6.25 전쟁 전부터 인왕산이 시작하는 자락에 터를 잡고 살았다. 건축주에게도 이곳은 어린 시절을 보낸 고향 땅이다. 시간이 흘러 가족 각자의 삶을 꾸려나가면서 홍지동 땅은 20년 넘게 방치되고 있었다. 그린벨트에 묶여 간단한 관리 외에 다른 작업을 할 엄두를 낼 수 없었다.
버려졌던 땅이 새롭게 숨을 쉴 수 있게 된 것은 이교승 씨의 효심이 있었기에 가능했다. 올해로 101세가 된 이교승 씨의 어머니는 가족의 추억이 담긴 동네에 언젠가 다시 돌아오고 싶은 마음이 있었다. 그런 어머니의 여생을 더욱 행복하게 채우기 위해 아들은 어머니와 함께 살아갈 특별한 집을 짓기로 했다. 그는 5년 정도 업체를 알아보며 집짓기에 관해 공부하는 시간을 가졌다.


부지까지 차량이나 장비가 올라올 수 없는 상황이기 때문에 목조주택을 계획했고, 건축박람회에서 로드하우징을 만나 작업을 진행했다. 공사 과정은 예상대로 쉽지 않았다. 모든 자재는 200m 정도 떨어진 주차장에서부터 일일이 작업자의 손으로 옮겨졌다.
로드하우징은 외장재로 유지 관리가 거의 필요없는 세라믹사이딩과 합성목재, 코팅메탈징크를 선정했다. 건축주는 어려웠던 공사 과정을 떠올리며 로드하우징 전효성 대표와 작업자분들에게 감사함을 전하고 싶다고 말했다.
PLAN

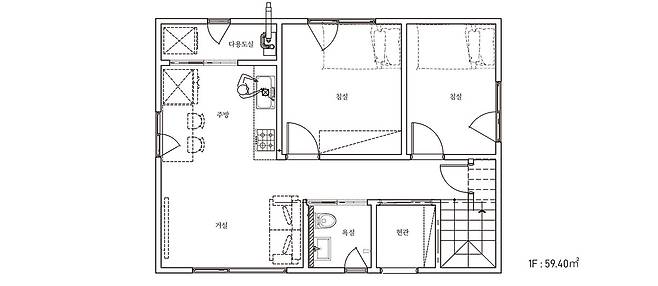
House Plan
대지면적 : 328㎡(99.22평)
건물규모 : 지상 1층 + 다락
거주인원 : 2명
건축면적 : 59.40㎡(17.97평)
연면적 : 59.40㎡(17.97평)
건폐율 : 18.10%
용적률 : 18.10%
최고높이 : 3.5m
구조 : 기초 – 철근콘크리트 매트기초 / 지상 – 경량목구조 외벽 2×6 구조목+내벽 S.P.F 구조목 / 지붕 – 2×8 구조목
단열재 : 그라스울 24K
외부마감재 : 외벽 – 세라믹사이딩, 합성목재 / 지붕 – 코팅메탈징크
창호재 : 레하우 PVC 독일식창호(에너지등급 1등급)
철물하드웨어 : 홀다운
에너지원 : 도시가스
설계 : 텐바이텐 건축사사무소
시공 : 로드하우징 http://roadhousing.co.kr
집은 어머니와 건축주가 지낼 방 2개와 다락방으로 구성되었는데, 규제 안에서 면적을 최대한 실용적으로 활용하고자 했다. 우선 북한산과 북악산의 빼어난 전망을 가득 담을 수 있게끔 실을 한쪽으로 몰고 거실과 주방을 통합해 넓은 공간을 조성했다. 또한 2.8m의 높은 층고로 아담한 규모가 답답하지 않게 느껴진다.
거실 앞으로 만들어진 데크에 걸터앉으면 시원한 절경을 한눈에 감상할 수 있다. 다락은 건축주의 손주들이 찾아왔을 때 편하게 놀 수 있도록 지붕선을 60cm가량 높여 개방감 있는 공간을 완성했다.
“어머니와 함께 산 지 30년이 넘었네요. 이곳에 어머니를 모시고 오는 것이 걱정되기도 하지만, 어머니와 함께 해야 의미 있는 집이니까 고민해봐야죠.” 건축주의 깊은 정성과 사랑으로 지어진 집은 가족의 새로운 역사를 채워나가기 위해 기다리는 중이다.




Interior Source
욕실 및 주방 타일 : 포세린 타일
주방 및 각방 가구 : 한샘가구
조명 : 자이엘이디 조명
현관문 : 커널시스텍
중문 : 영림 초슬림 3연동
도어(투명유리 + 그레이 색유리)
방문 : 영림 ABS 도어 + 크림백색 필름
데크재 : 현무암 석재
취재_ 조재희 | 사진_ 변종석
ⓒ월간 전원속의 내집 2025년 6월호 / Vol. 316 www.uujj.co.kr