
안녕하세요. 저희는 전남 담양에 집을 지어 고양이 일곱과 강아지 둘을 모시고 있는 결혼 8년 차의 새벽 부부입니다. 결혼 전부터 이 집을 짓기 전까지 저희 둘 다 직장과 형편에 따라 여러 번의 이사를 하며 살아왔어요.
서울에서 만난 저희는 반지하, 원룸, 투룸, 빌라, 오피스텔, 구축과 신축 아파트까지 안 겪어 본 주거 형태가 없을 정도였습니다. 이러했던 다양한 주거 경험이 '우리에게 맞는 우리의 집을 짓고 살자'라고 생각하게 된 동기가 아니었을까 싶어요.
획일화 된 구조의 아파트보다는 방 하나, 창문 하나, 동선과 가구 하나까지 우리만의 라이프 스타일을 만들 수 있는 공간이 만들고 싶어진 거에요. 그러다 대규모 전원주택 개발 단지인 이곳 '담양 담빛문화지구'에 대지를 분양받게 되었고, 2021년 8월 착공, 이듬해 4월 입주하여 현재 햇수로 2년째 거주 중입니다.
1. 도면

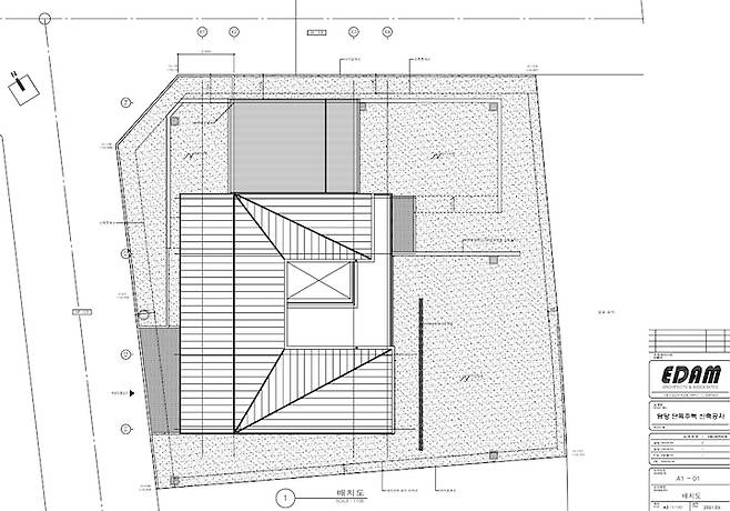
설계에는 약 10개월, 시공에는 대략 8개월이 걸렸습니다. 배치도에요. 대지의 형태에 따르면 남동쪽과 남서쪽 두 가지 선택지가 있었는데, 남동쪽으로 결정하여 저희는 일조량보다는 뷰를 선택했습니다. 겨울에 조금 춥기는 하지만 바로 앞에 집이 있다거나 하지 않아서 좋아요 : ) 맑은 날에는 저 멀리 무등산까지 조망이 가능합니다.
1층 평면도

1층 평면도에요. 입구 가까운 곳에 손님방과 화장실이 있고요. 중정이 있는 복도를 지나면 작은 거실 개념인 내실과 샤워실 그리고 가장 안쪽에는 주방과 거실, 다용도실이 있습니다.
1층에는 두 곳에 단차를 두었는데요. 내실은 +170mm로 천장을 약간 낮게 해서 아늑하게, 거실과 주방은 -340mm로 더 높고 넓어 보이게 설계되었어요.
2층 평면도

2층 평면도입니다. 계단을 따라 올라오면 바로 안방이 있어요. 그리고 안방 안쪽으로 두 개의 드레스룸이 있고 화장실과 세탁실, 욕실이 배치되어 있어요. 안방을 나와 복도를 지나면 고양이 전용 화장실과 고양이 보호실이 있습니다.
고양이 키우는 분들은 아시겠지만 고양이 화장실 모래 먼지 때문에 공간을 따로 분리해둘 필요가 있거든요. 그리고 보호실은 아가 고양이나 유기 고양이를 구조했을 때, 적응하기까지 몇 주 정도 기존 고양이들과의 격리를 위해 만든 방이에요. 서재로도 활용하고 있습니다. 가운데 부분에는 중정을 끼고 있는 테라스가 있습니다.
2. 건축 과정
공사 전 대지 사진

대지면적은 150평, 건평은 1층 26평, 2층 26평 총 52평이에요. 2021년 8월 착공허가를 받고 9월부터 본격적으로 시공에 들어갔어요. 사실 이때가 코로나19로 인해 각종 자재비와 인건비가 계속해서 상승하는 시기였어요. 돌이켜보면 몇 달 늦게 삽을 떴으면 시작하기 힘들었을 수도 있겠다 싶었습니다.
이렇게 지구 단위 전원주택단지의 장점은
첫째, 넉넉한 건폐율과 용적률이 허가 된다는 점.
둘째, 도시가스가 들어온다는 점.
셋째, 전봇대와 전신주의 지중화 작업이 되어 있다는 점.
넷째, 너무 외지거나 하지 않아서 안정감을 준다는 점.
등이 있습니다.
터파기 및 버림 콘크리트 시공

전원주택 착공 때 중요한 것이 레벨 '0'의 위치를 잡는 거에요. 어디를 기준으로 성토(흙을 쌓는 것) 할 것인지 혹은 절토(흙을 파내는 것) 할 것인지를 정하는 것입니다. 대개의 경우는 성토를 해서 건물의 높이를 높이는 방식으로 짓습니다. 하지만 저희는 절토를 선택했어요. 설계 소장님의 제안이었습니다.
위에 사진을 보시면 저희 집은 (컨테이너가 있는 쪽) 현관 레벨이 '0'이고, 거실 주방 레벨이 '-350mm'이에요. 아울러 거실과 연결되는 마당의 레벨도 그만큼 낮아요. 이렇게 설계한 이유를 소장님은 '외부 시선이 차단되는 아늑한 공간 조성'이라고 하셨습니다. 실제로 마당에 있으면 사방이 감싸고 있는 편안한 느낌을 받습니다.
기초 철근 시공

시공하는 동안 일주일에 서너 번은 꼭 현장에 와 봤던 것 같아요. 여기가 거실이야, 여기가 안방이야, 여기가 화장실이고, 여기가 손님방이야. 우리 고양이들이 이 공간을 특히 좋아하겠지. 이러면서 시멘트 냄새 풀풀 맡고 돌아가 완공을 손꼽아 기다리던 추억이 가득가득합니다.
외장재는 무엇을 쓸 것인지, 지붕의 재질과 색, 마루, 타일, 도기류, 수전, 붙박이 가구, 문짝, 창호의 종류와 유리 두께, 조명, 벽지 등 이 밖에도 수 십 가지 선택을 더 해야 합니다.
창호 시공

집을 지을 때 비용 부분에서 상당히 큰 비중을 차지하는 게 바로 창호입니다. 브랜드에 따라, 재질에 따라 그리고 유리 두께와 컬러, 창문이 개폐되는 방식에 따라 3-4배까지 차이가 나기도 해요.
통상 단열을 생각하면 PVC가 좋다고 하고, 디자인을 생각하면 알루미늄이 좋다고 하죠. 고민이 될 수밖에 없는 부분이에요. 단열도 디자인도 모두 중요하니까요. 결국 저희가 선택한 제품은 이건창호 알루미늄 창호, 3중 유리에요. 외부 프레임은 회색으로, 내부 프레임은 베이지 컬러로 제작했고요. 유리색은 브론즈로 마감했습니다.

외장재는 1층은 스터코플렉스, 2층은 롱브릭 타일을 시공했어요. 타일이 아닌 롱브릭으로 작업하고 싶었지만 예산이 이미 크게 초과된 상태라 상대적으로 저렴한 타일로 마감했습니다. 안쪽으로 움푹 들어간 부분은 합성목재로, 지붕은 리얼 징크와 알루미늄 골 강판을 사용했어요.
내실벽 자작합판 시공

또 한 가지 어려웠던 점은 이곳이 '지방'이라는 것이었어요. SNS나 각종 매체를 통해 마음에 드는 자재를 찾았다고 해도 그 자재를 직접 봐야 하는데 지방에는 없는 경우가 많거든요. 바야흐로 본격적인 발품이 시작되는 것입니다. 전원주택에서 산다는 것 자체가 그렇지만, 지을 때도 상당히 부지런해야 원하는 퀄리티를 낼 수 있다는 점 참고하시면 유용하실 거에요.
만약 집 짓기를 계획하신다면 시공 기간에 최소 두세 달 정도 여유를 두시는 것을 권장해 드립니다 : ) 저희도 당초 시공 계획은 6개월 정도였는데 두 달 정도 지연되었어요. 다양한 이유가 있었지만 가장 큰 것은 가을 장마와 (코로나로 인한) 몇몇 자재의 수급이 더뎠기 때문입니다.

위에 있는 두 사진이 내실이에요. 거실보다 510mm 높은 위치에 있고 중정과 연결되어 있습니다. 벽면을 자작 합판으로 마감하여 주변 공간과 분리하고 아늑한 분위기를 연출하고자 했어요.
파티션 역할을 하는 벽의 저 가운데 구멍에는 벽난로를 놓고자 하였는데, 고양이들 때문에 위험할 것이 염려되어 계획을 철회했습니다.
외관

울타리는 2*2 구조재에 오일스테인 마감을 하여 설치했습니다. 마당에는 모과나무 1수, 서부해당화 1수, 은목서 1수, 동백 1수, 청단풍 1수, 붉은미산딸 1수와 홍매화 5수 전나무 2수를 식재했고요.

남은 공간에는 모두 잔디를 심었습니다. 마당 한가운데 벽돌을 조적하여 파티션을 만들었어요.

최초 설계에서는 지붕이 박공이 아닌 외경사였는데, 지구단위계획 조례안에 막혀 어쩔 수 없이 박공의 형태로 수정했습니다. 최초 설계가 더 심플해 보이고 좋았는데 참 아쉬운 부분이에요.


필로티 주차장에는 차를 두 대 주차할 수 있어요. 기둥이 없는 캔틸레버 구조도 고려되었었으나, 안정감 있는 형태를 내고자 최소한의 철제 기둥으로 작업하게 되었습니다.



3. 주방

주방 사진입니다 : ) 사실 저희는 집에서 밥을 지어 먹을 일이 거의 없어요. 그래서 건평 대비 주방의 크기는 조금 작게 만들었어요.
물보다 커피를 좋아하는 저희 부부의 취향에 맞게 한 켠에 커피바를 설치했습니다. 제품은 각각 네스프레소 '픽시'와 '버츄오 넥스트', 후지로얄 'r300' 글라인더에요.

대개는 핸드드립을 이용합니다. 시간이 없을 때는 캡슐 머신을 사용하고요. 핸드드립은 칼리타 제품을 사용해요. 깔끔한 맛이 나게끔 추출 속도가 빠른 깔대기 모양의 고노드리퍼를 주로 쓰고 있어요. 글라인더는 후지로얄r300 제품을 이용하는데, 사실 가정용으로는 약간 오버스펙이죠.
정교하고 빠른 글라인딩 성능이야 뭘 말씀드릴 것도 없고요. 원두를 갈아주는 '버(burr)'도 내구성이 좋아서 가정용으로는 한 10년 이상은 사용할 수 있는 것 같아요. 네스프레소 제품의 장점은 언제나 일정한 맛을 낸다는 점이에요. 다양한 종류의 캡슐이 있어 골라 먹는 재미도 있고요.

모든 주방 가구는 주문제작 제품이에요. 무광 흰색으로 도장했어요. 상판은 칸스톤과 세라믹을 끝까지 저울질 하다가 비용적 부담이 있었지만 결국 오염과 스크레치로 부터 더 안전한 세라믹으로 결정했습니다.
이탈리아산 3200*1600짜리 제품을 가공했어요. 아주 만족스러운 부분입니다. 패턴이 자연스러워서 바닥 타일이나 주변 가구와도 잘 어울려요.

싱크볼은 백조싱크볼 730사이즈 제품이에요. 큰 사이즈 제품까지 다양하게 있는데요. 저희는 컵 외에는 설거지거리가 거의 나오지 않아 중간 사이즈 제품으로 설치했어요.
세라믹 상판 양 옆으로 매립 콘센트를 넣었고요. 주방세제 디스펜서도 세라믹 가공 때 미리 타공해 두어서 하부장 안으로 넣어 둘 수 있었어요.

엘리카 니콜라 테슬라 인덕션이에요. 제품명은 '리브라' 입니다. 저울이 내장 돼 있어서 붙여진 이름이에요. 넓지 않은 주방이다 보니 천장에 후드가 나와있으면 답답해 보일 것 같아서 '후드 일체형 인덕션'을 선택했어요.
물론 천장에 있는 제품들처럼 흡입력이 좋지는 않아요. 그렇지만 사용 빈도가 높지 않고, 전반적인 디자인을 고려하였습니다 : )


경첩과 레일은 모두 블럼 제품입니다. 누군가 그런 말을 하더라고요. 고급차와 보통차는 창문이 닫힐 때 보면 구분이 된다고요. 마지막에 서서히 닫히는 게 고급 차에만 있는 옵션이라고 해요. 이게 일본의 문 닫는 문화에서 비롯된 기술이라는데, 마지막에 문 닫히는 소리가 나지 않는 게 포인트라고 합니다.
사용해 보면 블럼 제품들이 그래요. 가구를 제작하다 보면 경첩과 레일이 수 십 개가 사용돼요. 그러다 보면 비용 차이도 상당해지는 게 사실이지만 한 번 사용해 보면 사용하지 않을 수 없게 됩니다.

주방장은 삼성 비스포크 냉장고와 큐커가 쏙 들어가게끔 사전 협의하여 제작하였습니다 : ) 삼성 비스포크 오토오픈도어 냉장고(냉동고)는 밖으로 손잡이가 나와있지 않아 더 깔끔한 주방을 연출할 수 있어 좋아요. 아울러 냉장고 문을 열 때 힘을 들이지 않아도 돼서 편하고요.
비스포크 큐커는 심플한 디자인이지만 전자레인지, 에어프라이어, 그릴 등 꼭 필요한 기능은 모두 탑재되어 있어요. 저희처럼 밀키트 식품을 자주 이용하는 가정에 최적화되어있는 제품이에요.
4. 거실

거실이에요. -350mm 낮은 레벨이라 보다 높은 천장고를 확보할 수 있었어요. 대략의 천장고는 5,300mm 정도에요. 바닥은 1200*600 논슬립 포세린 타일을 시공했어요. 더위를 많이 타는 고양이들과 관절이 약한 강아지들을 위한 집사의 작은 배려입니다 : )
블라인드는 시공 때 미리 말씀을 드려 전선을 배치해두어서 전동으로 설치할 수 있었고요. 높은 천장이다 보니 실링팬은 900mm 짜리 연장봉을 이용해서 설치했어요. 실링팬은 가성비 좋고 디자인 좋고 A/S 받기 편한 루씨에어 제품이에요.

젝슨 카멜레온의 페블 소파에요. 페브릭 제품이고요. 한 덩이 한 덩이 분리가 되는 모듈 타입 소파입니다. 모듈 타입이다 보니 꼼꼼히 청소하기가 용이해요. 해가 좋은 날은 마당으로 들고나가서 청소하기도 합니다.
밝은색이지만 당초 우려했던 것처럼 때가 많이 타거나 하지는 않아요. 쿠션이 하드한 타입이라 꺼짐 같은 현상도 전혀 없고요. 모듈이라고 해서 고정이 약해 흔들리거나 하는 경우도 전혀 없습니다. 기본적으로 가죽 소파는 고양이들이 '뜯뜯'해서 아예 염두해 두지 않았거든요.

저희 집은 거실뿐 아니라 모든 공간의 조명이 매립등이에요. 이러나저러나 그저 심플한 것을 좋아하는 저희 부부의 의견이 반영된 시공입니다.
아울러 천장의 가장 높은 박공 부분을 교차되게 시공하여 그 사이에 T5 간접등을 매립했어요. 저희가 가장 요긴하게 사용하는 조명입니다. 컬러도 '톤&톤'으로 뭐 하나 튀거나 어색해 보이지 않도록 나름 상당한 고민을 하여 셀렉하였습니다 : )


뱅앤올룹슨의 '밸런스' 스피커입니다. 스피커에 욕심이 있는 편이라서 패시브 스피커를 놓을까 고민도 했었지만, 고양이들이 가만두지 않을 것 같아 액티브 스피커로 결정했습니다.
스피커를 구매하기 전에 샵에서 청음을 먼저 해봤었는데요. 어지간히 체급이 큰 스피커 보다 더 탄탄한 소리를 냅니다. 베이스가 막 과장돼 있지도 않고, 고음이 까랑까랑 거슬리게 들리지도 않아요.
그러면서도 뭐 하나 허투루 흘려버리는 소리가 없는 따뜻한 느낌의 스피커입니다. 물론 뱅앤올룹슨답게 하나의 오브제 같은 디자인도 너무 훌륭하고요.

렘노스 케하이 벽시계에요. 무슨 안개 낀 날씨처럼 뿌옇고 벽시계로서 크기(지름 13cm)도 작아 저게 무슨 시계냐 하는 소리도 종종 들어요. 그런데 저는 저 시계 딱 본 순간 '우리 거다!'라는 확신이 있었습니다.

비단 시계를 시간을 보려고만 사용하지는 않잖아요. 렘노스 케하이는 전혀 튀지 않아요. 그저 주변에 녹아드는 하나의 오브제로 보면 딱인 제품입니다.

사실 저는 거실 한복판에 TV가 놓여 있을 것을 꽤나 싫어하는 편이에요. 집에서 가장 넓은 벽에 까만 TV가 똻!하고 있는 게 미스매치하다고 생각했거든요. 그래서 저희는 빔프로젝터를 선택했습니다. 다소 불편하긴 해도 거실이 TV만 보는 공간은 아니니까요 : )

투사 거리가 5미터 정도로 꽤 긴 편이라 선택의 폭이 넓지는 않았어요. 몇몇 제품들 중에 결국 LG의 4K 제품을 설치했습니다. 화면 크기를 어지간히 키워도 화질이 아쉽지 않을 만큼 좋은 제품이에요. 별도의 기기 없어도 기본으로 OTT가 탑재되어 있어 와이파이만 되면 바로 사용이 가능합니다.


높이 210cm 사이즈의 크리스마스 트리입니다.
5. 내실 (알파룸)

아늑한 작은 거실을 구상하고 만든 내실은 요즘식 아파트로 따지면 알파룸 같은 공간이에요. 어떻게 사용할까 고민이 많았는데요. 실상은 고양이 놀이터가 되어 버렸어요. 캣폴은 냥파트가 되었고요.

캣폴은 푸시캣 제품입니다. 튼튼해서 잘 흔들리지 않고, 유닛 구성도 다양해서 구매했어요. 공간이 협소해서 설치하지 않았는데요. 아크릴 소재의 투명 해먹과 슬라이드도 구비되어 있습니다.
아래 사진은 반려동물의 눈높이에 맞춘 창이에요. 가끔 마당에 앉아 불멍하고 있을 때면 서로 눈이 마주칠 때가 있어요. 그럴 때마다 '창 하나 더 내길 잘했다' 하죠.


6. 1층 샤워실


1층 세면대와 샤워실은 거의 손님용으로 사용 빈도가 낮지만, 전반적인 인테리어의 흐름에 맞게 제품들을 선정하여 시공하였습니다.
7. 계단 & 복도실

저희 집은 평수 대비 복도 공간이 많은 편이에요. 복도에서는 잘 수도, 쉴 수도, 놀 수도 없는데 복도 공간을 많이 할애 한 것에 대해서 이해 못하시는 분들도 더러 계시더라고요. 이 공간이면 거실과 주방을 조금 더 넓게 할 수도, 방을 한 칸 더 만들 수도 있었거든요.
이렇게 설계한 이유는 '공간감' 때문이에요. 공간과 공간이 유기적으로 연결되는 느낌을 연출하고 싶었거든요. 그리고 고양이들이 마구마구 우다다하며 뛰어 다닐 수 있는 길게 쭉 뻗은 공간이 필요하기도 했습니다.

아울러 계단 얘기를 안 드릴 수가 없는데요. 보통 계단재를 하드우드 계열의 집성목재나 원목을 많이 사용하는데, 저는 그 계단재와 마루가 색과 질감 등 모든 부분에서 이질감이 있어 거부감이 들더라고요.
그래서 마루를 시공하면서 계단까지 마루재로 같이 마감해 달라고 부탁드렸습니다.마루는 구정마루 그랜드텍스쳐 허니티크 제품이에요. 원목 광폭 마루를 사용하고 싶었지만, 원목마루나 천연마루의 경우 내구성이 약하다고 하셔서 고양이의 발톱에 스크래치가 날 세라 강마루로 선택했습니다 : )

2층 복도에는 보시는바와 같이 수납에 용이한 긴 복도장을 설치했어요.

그리고 그 위로 고양이들이 오르내릴 수 있도록 계단을 만들어 두었습니다. 복도장 위에 있는 창은 오로지 고양이들을 위한 창이에요. 설계 소장님의 배려입니다 : )



아래 사진은 1-2 층을 관통하는 보이드(void) 공간이에요. 집의 가장 낮은 곳과 가장 높은 곳을 연결합니다. 복도장 마지막 칸과 계단 밑에는 로봇청소기를 매립 할 수 있게 작업하였어요. 청소기 주차장입니다 : )

계단 밑 공간은 여느 집과 마찬가지로 창고로 활용 중입니다.

8. 2층 침실

안방이에요. 저희는 고양이 강아지 모두가 침대로 올라와 동침하기 때문에 웬만치 큰 사이즈라고 해도 침대 하나로는 잠자리가 부족해요. 그래서 Q 사이즈 침대 두 개를 놓고 사용합니다(사실 그래도 좁아요;;) 침대는 디자인 좋고 튼튼한 까사미아 밀튼 제품입니다.
침실은 아침 해가 들어오지 않게 서쪽으로 배치했고요. 지붕의 모양에 따라 천장을 마감하였습니다. 벽걸이 TV를 설치하기 위해 시공 때 그 부분을 보강해서 작업했고요. 밖으로 전선이 보이지 않게 콘센트도 TV 뒷면에 위치하도록 제작했습니다 : )

저희 집 대부분의 방문은 슬라이딩 포켓도어로 되어있어요. 일반 여닫이 도어는 혹시나 바람이 불어 문이 쾅 닫히거나 하는 경우 우리 동물들이 갇히거나 다칠 수도 있거든요.
화장실과 욕실, 드레스룸, 고양이 격리방을 제외하고는 위 사진처럼 펫도어를 뚫어 놓았습니다. 저렇게 길막하고 있으면 아무 소용 없지만요 : )
9. 2층 욕실

저희 집은 욕실과 화장실의 분리되어 있어요. 그래서 1층에는 샤워실과 화장실이, 2층에는 욕조가 있는 욕실과 화장실이 각각 만들어졌습니다.
욕실에는 별도의 젠다이를 만들지 않았어요. 대신 젠다이 역할을 할 수 있는 무타공 세면대와 넉넉한 공간의 무늬목 수납장을 설치했어요.

10. 마당

파티션 벽을 기준으로 거실 앞마당과 손님방 앞마당으로 나뉘는데, 저희는 주로 외부 시선이 차단되는 거실 앞마당을 이용해요. 실내조명은 대부분 4,000k로 작업했어요.


11. 2층 테라스

마치며

전원 주택을 짓고 사는게 로망이야! 하시는 분들 많죠. 하지만 언제나 어디에나 존재하는 현실의 장벽;; 과연 저희라고 없었을까요. 막연하게 '집을 짓고 살아야지'와 '실제로 짓는 것' 사이에는 만만치않은 일들이 참 많아요.
여행으로 비유 해볼게요.
가장 먼저 어디를 여행할지 고르는 것은 대지를 선정하는 일과 같아요. 방향성을 정하는 것이니까요. 그러고나면 티켓팅을 하겠죠. 이건 대지를 매입하는 것과 같습니다. 저는 이게 가장 중요하다고 생각해요. 티켓팅을 하고나면 뭐 거의 빼박이잖아요. 그리고 이때부터가 저는 본격적인 여행의 시작이라고 봅니다.

그 다음으로는 숙박 할 곳과 꼭 가야 할 관광지, 혹은 식당을 알아보고 예약하겠지요. 이건 집을 설계하는 일과 같습니다. 이렇게도 구상해보고 저렇게도 구상해봅니다. 이게 더 나을지 저게 더 나을지, 비전문가인 저의 생각과 전문가의 의견을 주고 받으면서요.
마지막으로 실제 여행을 하는 것. 이것은 실제로 집을 짓는 단계라고 봐요. 준비를 잘해서 계획을 잘 세워 두면 시행착오나 예산과 시간 낭비를 줄일 수 있다는 점에서 특히 비슷합니다.
하지만 아무리 치밀하다고 해도 새로운 것을 하는데는 항상 예상하지 못한 변수들이 있기 마련이에요. 그런 상황들을 맞닥들였을 때, 슬기롭게 극복해 내는 것이 무엇보다 중요한 것 같습니다. 아무쪼록 저희가 작성한 '오늘의집'이 작은 도움이라도 되셨길 바라며, 긴 내용 살펴주셔서 감사합니다 : )

