
안녕하세요, 저는 요리 인스타그래머로 활동하고 있는 “판다”라고 합니다, 요리하고 사진 찍는 걸 좋아해서 인스타를 시작한지 7년 차로 지금은 여러가지 영상 작업과 제품 판매 등을 업으로 삼고 생활하고 있는 20년차 주부예요.
처음 요리 사진과 영상을 찍을 때 초딩 유딩이던 남매도 이제 고2 아들과 초6 딸, 시간 참 빨라요. 그래도 그 동안 저의 가장 큰 변화라면 집을 지은 거라고 할 수 있겠습니다, 제 삶의 많은 부분이 바뀌고 있는 시기예요.
결혼하고 내내 아파트 생활만 해왔던 제게 19년도 즈음부터 번아웃 비슷한 심경 변화가 있었어요. 사실 평생을 인프라 좋은 서울 생활만 하던 제게 전원주택은 감히 상상도 할 수 없었으므로 아파트 단지가 껴있어서 인프라 좋고 학교 가까운 주택 단지 위주로 찾아다녔지요.
많은 주택을 살펴봤지만 예산과 위치, 사이즈 등을 고려하다 보면 뭔가 하나씩 삐걱거리는 걸림돌이 생겨 이미 지어져 있는 집에 만족을 할 수가 없더라구요. 늘 집짓기에 관심 많던 큰 언니의 지지가 있었고 그래 한번 지어보자!! 무모한 용기를 내게 됐어요.
1. 건축 과정

저희 부부는 완벽한 집알못이었기에 말 그대로 맨 땅에 헤딩부터 시작하는 두려움 대신, 그 때 당시 만난 중개인을 통해 맞춤주택을 지어주는 곳과 계약을 했습니다. 맞춤주택은 여행으로 치면 패키지 여행 같은 거예요, 토지가 정해져 있고 대략의 자재와 틀이 있는 상태에서 저희가 업그레이드를 원하면 추가금을 내는 방식이 되는 거죠.
큰언니 도움으로 실제 스티로폼 모형까지 만들어가며 설계도를 그렸고 꼼꼼한 남편은 전기 위치까지 모두 체크해서 야심차게 설계도면을 그렸지만 이게.. 패키지 여행도 그렇잖아요, 아무리 추가금을 내도 일정상 기술상 변경이 불가능한 것들 투성이인 겁니다.
게다가 인테리어 디자이너 없이 각 분야(목공/전기/바닥/타일 등등) 실무자들을 다이렉트로 상대해야 했기에 기술적으론 노련한 베테랑들이셨지만 요즘 스타일, 요즘 취향 아무리 설명드려도 그건 불가능하다는 경우가 태반이었어요.
그땐 몰랐는데 디자이너가 중간에서 저희에겐 아이디어를 제공하고, 시공사에는 디자인적 터치를 이해시키고 돌파해주는 역할이더라구요. 무식해서 용감한 기간이었던 것 같아요. 하나하나 참 열심히 설명하고 절충해 나가는게 힘들고 아쉬웠던 기억이에요.

지금도 두꺼운 프레임 샷시(LG지인 샷시 단열은 끝내줍니다!)나 더 큰 창, 더 세련된 스타일로 마감하지 못한 점들, 후회스러울 때도 많지만 반면교사 삼아 다음엔? 더 잘해보자 싶기도 하고 살아보니 업체 측 말 듣길 잘했다 싶은 것도 많았어요, 저희 집은 여름엔 시원하고 겨울에 따듯한 참 잘 지은 집임엔 틀림이 없답니다!
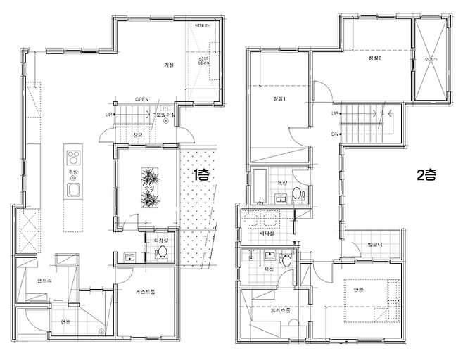
2. 도면

저희 집은 경랑 목구조 주택이에요, 철콘 집은 디자인의 제약이 없어서 좋지만 저희 집처럼 한 필지에 두 가구가 사는 촘촘한 도시형 주택엔 걸맞지 않는다고 생각해요.
지어보신 분들은 알겠지만 철콘은 벽의 두께가 비대해서 설계도보다 실내 공간이 무조건 작아지거든요, 저희는 작은 공간에 10T, 5T까지 다 재가면서 냉장고나 세탁기 위치까지 맞춰야 했기 때문에 도면과 똑같이 떨어지는 경량 목구조 집이 잘 맞다고 생각했어요.
실제로 근방에 있는 같은 사이즈의 철콘 집보다 넓게 보인다는 얘길 듣는 편이죠, 그래도 보시다시피, 작아요 ㅎㅎ
1층과 2층은 이런 구조예요. 박공지붕으로 된 3층은 온전한 1, 2층의 공간보다 천정은 낮지만 넓은 공간에 베란다까지 있어서 꽤 쓸만해요. 제 눈엔 그래도 작고 귀엽고 아기자기한 요소 요소 쓸만한 집, 지금부터 소개해드릴게요.
3. 주방

현관에서 중문을 열고 들어서면 바로 이렇게 주방이 나와요. 제게 주방은 그 어떤 곳보다 중요한 공간이기 때문에 아일랜드도 3미터 넘는 길이로 제작했고 폭도 넓혔어요. 감이 잡히지 않아 폭을 더 넓히지 못한 게 아쉬울 정도지만요.

오른편으로는 아일랜드에서 봤을 때 넓고 시원한 뷰의 중정을 갖고 싶었어요. 예상과 달리 공간이 협소하고 두꺼운 샷시로 제작돼 뷰는 영 아쉽지만 설거지나 요리하면서 밖을 볼 수 있는 것만으로 전 꽤 만족해요.
처음 저 샷시를 폴딩도어로 하고 싶다고 졸랐거든요. 야외공간에 바로 폴딩도어 설치는 단열과 누수에 아주 취약하다는 소장님의 만류에 포기했는데 지금 시점에선 한겨울 바로 들이닥치는 눈과 비를 보며 잘했다 싶어요.

전 많은 시간을 주방에서 보내고 관련된 일을 하다보니, 주말 살림이 정말 정말 많아요. 주방 구상할 때 한창 일본의 레트로한 주택에 꽂혀서 꼭 오픈형으로 하고 싶었던 게 살림 많은 저희 집 주방엔 조금 패착이었나 싶죠, 너무 많은 게 노출되어서요.
요즘은 아무것도 없는 깔끔한 주방이 대세라지만 전 그럼에도 편리를 택했어요, 바로 손 닿을 곳에 그릇이며 식기며 주방용품이 있는게 좋거든요. 물론 위 사진처럼 뒷 주방이 엉망인 경우는, 요리를 많이 한 날 직후지 평소 모습은 아니예요, 하하하...

집에 할로겐 매립 조명을 많이 설치하긴 했는데 막상 2년 동안 살면서 거의 쓰지 않았어요. 저나 가족들 모두 눈부신 조명안 좋아해서 주로 탁상용 조명이나 벽조명 등으로 집안 무드를 만드는 걸 좋아해요.

팬트리가 넓으니 지저분해지고 짐이 많아 커튼을 달아 정돈시켰어요. 화장실 옆 공간으로 방문이 하나 보일 거예요. 저긴 아주 작은 방인데요, 남편의 컴퓨터 방이에요. 남편이 정말 아끼는 작은 공간이지만 남편이 케이블과 책, 종이를 늘어놓는 병이 있어서; 폭탄 테러 상태라 공개는 불가합니다.

주로 제가 주방에서 일할 때 보는 공간은 이런 느낌이에요. 계단 옆으로 벽이 없어서 그나마 거실 쪽 활동을 볼 수 있는 점이 전 좋아요.

중정 쪽에서 보이는 주방이에요. 주방과 바로 옆의 컴퓨터 공간이 저희 집 제 공간입니다. 아일랜드 상부는 세라믹과 고민하다가 그냥 칸스톤으로 했더니 3미터 이상 원판이 없더라구요. 부득이 쪼개 넣은 게 아쉽지만 그래도 여전히 길게 하길 정말 잘했다고 생각하는 부분이에요.
뒤에 오픈형 나무 선반은 일본 레트로 하우스에 빠진 제게 로망이었어요. 처음엔 앞에 유리문을 달까도 고민했지만 워낙 급한 성격인 제가 매번 그 문을 여닫을 생각을 하니 번거로워 과감히 없앴습니다.
먼지가 쌓일 걱정 없지 않은데 저곳에 있는 그릇이 제가 평소에 가장 많이 쓰는 그릇들이라 상판만 닦아주면 대부분 그릇은 식세기에 들어갔다 나오니 문제없어요.

여긴 저희 가족들이 제 뒷모습을 많이 보는 공간이에요. 편집을 하거나 영화를 보는 등 제 생활의 많은 부분이 저 오렌지색 의자에서 이루어져요.
앞의 원형 테이블은 가볍고 아담해서 저희 집 유목 테이블인데, 현재는 저 위치에 있어요. 저희 가족이 4인이다 보니 큰 테이블보다 주로 여기서 식사할 때가 많아요.

계단 위에서 살짝 내려다 본 주방과 리빙룸이에요. 위에서 봐도 참 살림 많다 싶죠..? 하하하

리빙룸과 거실은 연결된 듯 분리되어 있어요. 완전히 분리된 공간을 하기엔 집의 구조상 답답함이 있을 듯 하여 사각 프레임만 만들고(저것도 아치를 할까말까 수백번은 고민하다가 그냥 사각으로) 한 공간처럼 분리된 느낌을 최소화하려고 했어요.
처음엔 리빙룸과 거실이 일렬로 이어졌는데 남쪽 마당 공간을 좀 더 만들고 1층의 방(남편의 아수라장 공간 그 곳) 크기도 조금 늘려야 해서 부득이하게 양쪽 깊이를 달리 했던 건 나름 신의 한 수가 되어 해도 훨씬 잘 들고 마당 공간도 여유가 생겼어요.

1층의 가구들은 수시로 바꿔주고 있어요. 새롭게 추가되는 건 별로 없고(지금 이미 포화 상태...) 대부분 한 가구를 여기저기 배치해보는 편. 카멜색 성애자라 이전에도 우드 테이블을 썼는데 또 우드 테이블을 사고, 소파 색상도 이전에 쓰던 것과 같아요. 이 소나무 취향 어쩔 수가 없더라구요.

같은 공간이지만 이렇게 그릇장과 나무 테이블을 평행하게 둔 게 현재의 모습. 여러가지 느낌으로 활용할 수 있는 공간이라 작지만 제가 참 좋아하는 리빙룸입니다.

나무 테이블을 산 뒤 테이블 보를 몇 가지 사 모았어요. 테이블 보를 까는 것 만으로 요리의 느낌이나 식탁의 분위기가 달라지더라구요. 깨끗한 관리를 잘 못하는 저는 대부분 방수 테이블을 사서 쓰고 있어요.

테이블보가 바뀌면 확실히 좀 더 우아하게 식사하는 기분이 들어요. 특히 고재 테이블을 쓰고 싶다면 테이블보 강추해요.

거실에서 보는 리빙룸의 분위기는 이래요, 이게 이사 초기인 것 같은데 이렇게 깔끔한 느낌일 때 꽤나 예쁘죠? 하지만 역시나 맥시멀리스트인 저는,

이렇게 쓰고 있어요. 하.. 뭐가 참 많죠...? 보시는 대로 갈색 가구들 투성이에요. 사실 마루도 브라운 원목마루를 고민했는데 가구들 다 파묻히게 할 작정이라고 주변에서 나무라서 흰색을 깔았어요.
타일의 차가운 느낌보단 마루가 좋아서 화이트 워시로 깔았더니 다 좋은데 먼지와 머리카락이 많이 보이는게 단점이에요. 그래도 원목마루를 깔았다면? 아악 생각하기도 싫어요 ㅎㅎㅎ

앞서 설명했듯이 2층으로 올라가는 계단엔 주방에서도 거실이 보일 수 있게 기둥만 놓고 벽은 뚫어 두었어요. 2층에서 내려오던 아이들이 소파에 앉아있는 제게 얘기할 때 주로 저 계단에 앉아서 마주 보고 이야길 하곤 해요.
4. 거실

이제 거실을 볼까요. 거실도 참 작은 공간이지만 벽면에 티비를 걸지 않아 가구 이동에 구애가 없어요. 거기에 좁디 좁은 거실을 어떻게 하면 그나마 시원하게 쓸 수 있을까 고민해 설계시 2층까지 보이드를 뚫었어요.
넓게 뚫고 싶었지만 그러자면 2층방이 턱없이 좁아 지니깐 할 수 있는 최선의 넓이가 저 정도. 저 때 5T할까 10T할까 쪼잔하게 수십번 계산했던 기억이 나네요. 그 보이드엔 꼭 하고 싶었던 뻐꾸기 창을 하나 달았습니다!

뻐꾸기 창이에요. 바깥으로 열리는 창 귀엽지 않나요?! 저 방에 뚫려 있는 뻐꾸기 창으로 아이와 소통도 하고 아이방에서 보면 보름달이 뜬 것처럼 보이게 동그란 조명도 달았답니다.

남향의 창은 더 크게 뚫지 않아 늘 아쉬워요. 저 창으로 들어오는 해가 정말 예쁘거든요. 계절이 고스란히 느껴지는 창문을 통해 참 다양한 분위기를 느낄 수 있어요.

아이의 방 뻐꾸기 창문에서 거실을 내려다보면 이렇게 다양한 느낌으로 탑 뷰를 볼 수 있어서 가구 배치를 다시 하면 올라가서 사진을 찍곤 해요.

지금의 거실은 이렇게 고정이 됐어요. 원래 자유롭게 소파와 가구를 이동했는데, 빔프로젝터를 사고 영화보기에 몰두하다보니 딱 저 공간이 영화보기 좋아 어쩔 수 없이 고정이 되어버렸네요. 하지만 제가 변덕이 심해서 아마도 곧 바뀔 수도 있겠죠?

낮에는 남쪽 창에서 내리쬐는 해시계를 보며 계절을 느끼고,

밤에는 영화를 봐요. 저나 남편이 워낙 영화를 좋아해서 최근에 사운드바를 추가했어요.
처음엔 라이트 그레이 패브릭의 월등한 디자인적인 강점이 있고 빔프로젝터에 내장된 스피커로 위력을 실감했던 하만카돈 제품을 고려했는데 몇 가지 이유로삼성 제품으로 결정하면서 그에 따라 선반 세팅을 맞췄어요. 이 맛에 주택 산다 싶을 정도로 가장 신나는 일이에요.
사운드 빵빵하고 화면도 크니 거의 매주 한 두번씩은 상영회처럼 언니네 가족들 다 불러 영화를 보고 있어요. 물론 여러 사람이 모이다 보면 취향 차이로 영화 고르기에는 참 애로가 많은 단점이 있습니다만..ㅎㅎ

처음에 부실하게 두었던 빔프로젝터도 현재는 조금 안정적으로,

이렇게 바꾸었어요, 여러 가지 선반을 알아보다가 튼튼하고 컬러가 예쁜 레어로우 선반을 찾게 됐는데 사운드바 사이즈에 맞지 않아 테이블 두 개를 붙여야 했지만 수납력까지 커져서 결과적으론 더 마음에 들어요.
5. 욕실

현관 바로 옆 문은 작은 방(테러당한 남편의 방) 바로 옆 공간에 화장실이 있어요. 1층 화장실은 샤워공간 없이 화장실만 만들었어요. 공간이 좁기도 했지만 세면대와 화장실 공간을 분리하려다보니 샤워부스는 언감생심이었지요.
화장실 타일 색상 고르는데 정말 고심했어요. 유행에 그리 민감하지 못해서 모자이크 타일이 그냥 좋더라구요 전. 이 곳은 "콜미바이유어네임"보고 꽂혀서 블루와 블랙을 섞어봤는데 아쉽게도 그런 유럽풍의 느낌은 전혀 나지 않지만, 화장실에 푸른 타일을 넣으니 늘 산뜻한 기분?으로 쓸 수 있어서 역시나 만족하고 있습니다.

저희 집에 화장실이 세 개 있는데 전부 작은 창이 있어서 불을 켜지 않아도 낮엔 늘 환하고 환기가 잘돼요. 화장실에 창을 낼 수 있는 것! 주택 사는 큰 장점 중 하나입니다. 꼭 창문을 만드세요!!

"픽사"의 핀조명 항상 갖고 싶어서 앵글포이즈 조명을 사려다보니 벽조명이 더 예뻐 보여서 이걸 샀어요. 벽 조명을 선 없이 설치하고 싶다면 공사 초기 전기공사시 다 계획을 짜야 하더라구요.
집을 지을 땐 한 수 두 수를 미리 내다보고 설계를 해야해서 제가 mbti 파워P인 즉흥적인 사람이었는데 집짓고 그 이후부터 파워J가 됐다는 웃픈 얘기- 실화입니다!
자 드디어 이제 계단을 올라 2층을 가볼 차례지만 아, 먼저 중정을 설명하고 올라갈게요.
6. 중정

처음 집 설계할 때 주로 일본 집을 참고하니 많은 집들에서 데크 중정이 눈에 띄어 나도 중정은 무조건 만든다!라는 포부가 있었어요. 막상 집 지을 때 보니 중정을 넓히자면 다른 공간이 좁아지고 여러모로 내부 구조 손해를 보긴 했지만 지금까지 쓰임새를 생각해보면 얼마나 잘한 일인가 싶어요!
요게 중정.. 하하 너무 작죠..? 하지만 보기보다 은근히 활용하기 좋아요. 봄가을엔 특히 아늑해서 늘 해먹과 테이블에 앉아 여러가지 여가를 즐길 수 있죠.

남편에게 소중한 공간이라 지저분해지면 물청소도 시원하게 잘 해주구요,

저희가 이 지역으로 이사하면서 언니들 가족도 전부 한 동네로 이사를 했어요. 큰 언니, 작은 언니 가족 다 모이면 12명인데요, 나름 다 앉아서 놀기에 꽤 괜찮은 공간입니다. 물론 근사한 바베큐 파티 느낌은 안 나지만 뭔가 k-바베큐의 느낌 정겹지 않나요?!

작년 초겨울엔 화덕 그릴도 들였으니, 올 봄부터는 더 맛있는 고기 많이 구워 먹을 거예요! 생각만 해도 신나요!

테이블도 이후에 조금 큰 걸로 바꾸었어요. 아직 12명이 앉을 자리는 없지만 일단 저희 네 식구는 충분하고 여유있게 즐길 수 있는 공간이 됐어요.

사실 중정의 주인은 사람보다 식물이에요. 봄, 가을엔 자주 나와 있지만 한여름엔 더워서 야외활동은 거의 안하게 되니 식물들에게 양보해요.
제가 정말 소름 끼치는 연쇄살식마인데 주택으로 이사한 후 비보약을 먹여 키우는 식물들이 정말 잘 자란다는 걸 알게 됐어요. 비오는 날이면 해가 바로 내리쬐는 앞마당보다는 중정에 식물들을 내놓고 작은 잎들이 자라는 모습에 감동하곤 합니다.

가끔 날씨 좋을 땐 밖으로 나와 브런치를 먹기도 하구요,

비오는 날의 풍경도 꽤 근사하고 힐링돼요. 아 남편이 설거지와 뒷정리를 하고 있어서 힐링되는 건지도;

한겨울 눈이 오면 또 이렇게 프라이빗한 눈놀이도 가능해요, 또 연말시즌엔 이사할 때 심은 금송에 크리스마스 장식도 꼭 해주고 있어요. 금송은 하루가 다르게 잘 크더라구요, 많은 로켓나무나 정원수가 있지만 귀여운 금송 전 추천합니다!

불멍을 좋아하는 남편은 중정에 앉아서 맥주 마시면서 불멍하는 걸 가장 좋아합니다.

전 그날 날씨를 알 수 있는 저 조그마한 하늘이 참 좋아요. 이제 진짜 2층으로 올라 가볼까요.
7. 2층 베란다

아, 2층에 작은 베란다가 하나 있어요. 안방에서 보는 2층의 작은 베란다인데 중정의 탑뷰가 바로 여기서서 찍은 사진들이예요. 대략 어떤 구조인지 보이실까요

이 베란다는 좁지만 또 알찬 공간이에요. 안방에서 중정을 내려다보기도 좋고 사실 의자 하나 정도 두고 앉아서 쉬거나 책을 보겠다고 만든 공간인데 막상 그렇게는 거의 하지 않은 것 같아요. 대신 해가 잘 들어서 빨래 걸이를 만들었어요. 건조기에 넣기 애매한 옷들 널어 놓으면 햇빛에 아주 잘 말라요.

계단 올라가는 벽에 창문을 크게 뚫고 싶었던 바람과 달리 하자 없으려면 구조상 어렵다(그래도 해달라는 대로 다 안 해주시고 항상 하기 싫어서가 아니라 장기적으로도 하자 없는 보수적인 입장을 취해주신 점이 감사하기도 해요.
물론 하자도 없으면서 디자인적으로도 되는 결과였으면 더 좋았겠지만;;)는 얘기에 절망하며 최대한 키운게 저 사이즈예요. 흑흑 그래도 계단을 오르 내릴 때마다 중정 쪽을 한 번씩 볼 수 있어서 전 만족합니다.

2층은 정말 각자의 방만 있는 구조예요. 중정과 보이드 등 작은 공간에 꼭 넣고 싶은 요소들을 채우다 보니 2층 방들이 작아지고 여유공간이 없어졌지만, 아들방, 딸방, 화장실, 세탁실, 안방 구조로 연결되어 있는 동선은 꽤 잘 짠 것 같다고 생각해요. 세탁실에서 옷 접고 마무리해서 각 방으로 옮겨 담는 등의 일 처리가 신속하게 되어 참 좋아요.
미세먼지에 예민한 남편은 설계시부터 열회수 환기장치를 염두에 두고 있었어요. 방식도 벽부형 덕트형 있는데 가능하다면 무조건 덕트형이 좋다고 하더군요. 남편이 하나에 꽂히면 미친듯이 파는 성격이라 멀리 실제 회사에 가서 확인도 하고 공부도 정말 많이 했어요. 현실적인 문제로 남편의 욕심대로는 안되고 절충을 했지만요. 남편은 집 지으면서 그 부분이 제일 아쉬운 것 중 하나일지도 몰라요 ㅋ.
8. 2층 아이방1

여기가 2층 오른쪽에 위치한 딸의 방이에요. 저렇게 뻐꾸기 창 밖으로 보름달이 뜬 것처럼 하고 싶어서 신경 써서 조명을 고르고 이것저것 딸의 취향대로 장식을 해줬어요.

민트색 벽도 직접 고르고 벌룬 장식, 침구, 빨간머리앤 패브릭 포스터까지 오늘의 집 보며 딸이랑 같이 골랐었던 기억 납니다. 하지만 현재는,

아들방으로 바뀌었어요. 원래의 아들 방보다 여기가 약간 더 큰데 둘이 합의(협박..?)해서 바꾸기로 했답니다. 어쩔 수 없죠.. 아들은 엄마가 심혈의 기울여 만든 뻐꾸기 창도 1층의 빛이 불편해 가려버렸지만 여전히 1층에서 아이 부를 땐 편해요. 금세 듣고 저 창문 열고 대답도 잘 해주거든요.
9. 2층 아이방2

딸의 방은 이제 덕질의 공간이에요. 좀 더 정리해서 사진 찍어보려고 했지만 매일 새롭게 어질러져 있는 통에 포기했어요. 그냥 이 이상은 정리가 안됩니다, 원래 6학년 여자아이들은 이렇게 덕질에 매진하는 건가요?!
10. 2층 침실

여긴 드레스룸에서 본 안방 침실이에요. 안방 역시 크지 않아요, 딱 잠을 자고 제가 가끔 안마 의자에 쓰려고 가는 것 외에 낮엔 거의 드나들 일이 없어요. 전 뼈 속까지 게으른 귀차니스트지만 철칙?같은 게 하나 있는데요. 낮엔 절대로 침대에 눞지 않아요. 그래서 이 곳은 말 그대로 잠만 자는 곳입니다. 그래서 심플해요.

3단 모듈 가구는 오늘의 집에서 구매했는데 저렴한 데 비해 정말 튼튼해요. 책이나 디퓨저를 놓는 등 취침 환경 최적화를 위한 공간이예요.
11. 2층 안방 화장실

이곳은 안방 화장실이에요. 화장실 디자인에 제약이 많았던 이유로 젠다이며 타일 형태며 원하는 대로 되지 않아 너무 속상했어요. 모자이크 타일 작업은 작업도 번거롭고 하자도 많아요, 다음에 지을 땐 아무리 좋아도 모자이크는 좀 배제할 듯 합니다.
업체에서는 이렇게 작은 화장실에 서랍 세면대까지 둔다며 유별나다 하시더라구요, 하하. 화장실 공간들은 전부 정말 작아요. 사실 작은 건 아쉽지 않아요, 전 화장실 넓으면 청소만 어렵다는 생각이라 지금 이 사이즈에 만족합니다.
12. 계단실

이제 3층! 여긴 3층으로 올라가는 계단이에요. 계단 얘기도 안할 수가 없어요, 좁은 집에 계단 공간까지 계산해야 하는 건 설계에서 정말 힘든 부분이었어요. 생각보다 비중이 엄청 컸거든요.
처음엔 근사한 디자인의 계단도 여러 면으로 생각해봤는데 계단에 힘을 주면 다른 많은 걸 포기해야 했어서 사람이 지나다닐 수 있는 최소의 넓이로 해보자 결정했어요.
결국 지금 생각해보면 계단은 그렇게 힘주어 만들 공간은 아니라고 생각해요. 넓어봤자 청소만 어렵(청소 싫어하는 거 너무 티내나요?)고 오르내리는데 안전한 게 제일인 것 같아요.
13. 3층 거실

처음 3층은 이런 느낌이었어요. 제 추억의 음악을 감상할 수 있고 지금은 다 처분해버린 딸의 4학년 시절 장난감들을 보관하기도 하고 책을 읽기도 하는 공간이에요.
천장이 낮지만 키가 아주 크지 않은 사람들에겐 생각보다 불편한 구조는 아니랍니다. 이곳에 이사한 2년 전 아들의 키가 160이 안되었다가 지금은 175쯤 되었는데 아직은 수월하게 살고 있어요,ㅋ 저희 집 유전자 고려했을 때 180이 넘을 것 같진 않고 쪼끔 더 크더라도 다니기 불편함은 없을 거라 봅니다!

3층 중앙엔 조금 큰 창을 낼 수 있었어요. 원래는 이곳을 윈도우 시트 등으로 꾸며볼까도 했지만 낮은 천정의 3층 공간에 시트가 튀어나오면 불편할 것 같아 그냥 창으로 만족했어요.
3층의 테이블은 이렇게 간단한 담소 나누기에 좋은 빈티지 테이블을 두었어요. 보통 아이들 친구들이 오면 여기서 라면 먹어요!

왼편엔 보조주방이 있어요. 조리공간 정도만 가능한 공간이지만 싱크장을 만들어 넣을 때 나름 심사숙고하여 요즘 유행하는? 플랫한 디자인에 베슬라그 손잡이도 넣고 신경 써서 만들어봤는데, 아쉽게도 잘 보이진 않아요 ㅎㅎ

딱 사람이 서서 일할 수 있을 정도의 공간이에요. 그래도 조리하고 설거지 하는 등의 일을 하기에 불편함은 없어요! 커튼 뒤로 선반과 주방용품들도 다 가려둘 수 있어서 괜찮아요. 단, 여름엔 더워서 선풍기를 넣어두어야 해요 하하.

작은 냉장고와 식기들은 간단히 아침이나 커피타임, 술 한 잔할 수 있는 다양한 용도로 준비해두었어요. 1층까지 오가려면 힘들어서 식기들을 올려두다보니 여기도 살림이 한 짐이네요; 물욕많은 사람의 집은 미니멀해질 수가 없답니다ㅠ
14. 3층 침실

3층에도 침실 공간을 하나 두었어요. 아이들 친구들이 와서 파자마 파티를 하면 3층에서 다들 신나게 보내요. 천정은 낮지만 공간은 넓으니 아이들은 좀 커도 다락방을 좋아하긴 하더라구요.

잠도 자고 먹고 놀고 이 곳은 취미와 여유의 공간으로 주로 쓰고 있어요. 1층에 없는 티비가 3층에는 있기 때문에 여기서 티비시청도 하고 게임도 해요.
15. 3층 베란다

이제 3층 베란다로 나가볼까요!

이 베란다는 이사 초반엔 이런 모습이었어요. 왼쪽 저 작은 창은, 밖으로 열리는 작은 창으로 음식도 오가고 뭔가 아기자기한 기분을 낼 수 있는 공간을 만들고 싶었는데 이곳도 예상보다 창을 크게 낼 수 없어서 그냥 환기용으로만 씁니다ㅜㅜ
하지만 그보다 맘에 들지 않은 건 벽의 스타코 색상이었어요. 밝은 화이트톤을 원했는데 시공할 때 결정 실수로 크림색을 칠하게 됐거든요. 그래서 볼 때마다 시무룩해하던 작년, 남편이 페인트칠을 해주었어요.

며칠의 페인트칠 후,

요렇게 바뀌었습니다! 지붕을 막고 페인트칠을 하고 현재는 저 검정색 프레임까지 그레이색으로 바꾸었어요. 확실히 더 화사해진 느낌 나죠? 물론 지금은 또다른 이유로 지붕을 빼고 타프를 설치하는 방식으로 바꾸었어요. 주택살이의 재미는 그런 부분이라고 생각해요. 조금씩 조금씩 바꾸고 가꿔가는 것.

베란다 난간은 흔치 않은 타공판으로 결정했어요. 법적으로 무조건 난간이 필요한 곳이었는데 업체에서 유리난간이나 철재등 다양한 제안을 했지만 저희는 집간의 거리가 매우 가까운 도심 주택이다보니 사생활 침해가 없이 가림판 역할을 해줄 수 있으면서 좀 더 예뻤으면 했거든요.
타공판이 가능하다는 얘기에 옳타쿠나! 하고 몇 가지 타공판 액세서리들을 구매해서 난간을 장식해봤더니 꽤 그럴싸하더라구요!

파란 하늘과 어울리는 식물들도 놓을 수 있구요, 앙증맞죠?

생각보다 넓어서 딸은 사촌언니와 텐트치고 캠핑도 하고 불멍도 해요. 3층에 간이 주방이 있으니 계단 오르내리는 번거로움 없이 3층에서 바베큐 해먹는 일도 손쉽게 하고 있어요. 그리고 저 오른편 구석의 공간, 저희집 하이라이트가 있습니다!

짜잔, 히노키 노천탕이에요. 이 여유공간은 집 짓는 초기부터 계획한 게 있었는데 설계상 무산되고 비워두기 아까워 고민하다가 제가 히노키탕을 제안했어요. 남편과 제가 둘 다 온천욕을 정말 좋아하거든요.
해가 바로 드는 곳이 아니고 어느 쪽에서도 볼 수 없는 프라이빗한 공간이라 노천욕하기에 더할 나위 없이 좋을 거란 예상이 적중했어요.

친구들이나 친척들도 많이 좋아해줘요. 한여름엔 딸이 물놀이 공간으로 애용했구요, 무엇보다 눈 비 오는 날 집에서 뜨끈한 노천욕하는 기분은 정말 최고랍니다!
만약 주택을 지으실 계획이 있다면 설계 단계부터 탕 설치할 공간에 온수 배관을 끌어올 수 있게 해야 하고 공간도 프라이빗하게 비워두면 좋겠죠? 전 무조건 추천드리고 싶어요!!

저희는 주로 불을 피워두고 탕에 왔다갔다하며 한, 두시간씩 노천을 즐기고 있어요. 한겨울 영하의 날씨에도 끄떡 없이 탕을 즐기고 있어요. 특히나 주택의 경우, 아파트보다 물 온도가 높은 편이라 아주 뜨끈한 물을 받아 쓸 수 있어서 더 좋아요.

탕 안에 앉아 브런치 먹기?! 집이니깐 가능해요! 히노키탕은 세제가 닿거나 햇빛에 노출이 많이 되면 변색되고 물기가 잘 안 마르면 곰팡이가 생기기도 쉬워서 관리가 좀 필요한 점이 있어요. 그런 점 때문에 전 실내에 히노키탕 하는 건 좀 비추천해요.
저희도 처음엔 그런 부분들 좀 불안했는데 사용하지 않을 때는 덮개를 씌워두고 사용 후엔 물기가 마르도록 잠깐 열어두고 알콜 뿌려 두는 등의 간단한 방법으로 관리할 수 있더라구요. 원래 모든 즐거움엔 조금의 부지런이 따라야 하는 법입니다~! (물론 치우는 일은 남편이 해서 이런 말이 쉽게 나오는 건지도 몰라요!ㅎㅎ)

탕에 앉아 저 멀리 노을이나 하늘의 별도 잘 보여요. 처음엔 커튼도 다 치고 보안?을 철저히 했는데 옆집들과 베란다 방향이 반대로 되어 있어 어디서 보이는 공간이 아니예요.
지금은 훨씬 자유롭게 오픈하고 사용하고 있어요. 아, 주택 설계시 옥상에 베란다를 만드신다면 꼭 옆집과 엇갈린 구조인지 확인하세요. 그 작은 차이만으로 베란다의 쓰임새가 완전히 달라질 수 있답니다.
16. 마당

3층까지 올라왔으니 끝난.... 줄 알았죠? 저희 집에 또 아주 소소한 공간이 남아있어요. 바로 앞마당이에요. 남쪽 문을 열고 나가면 이렇게 작은 공간이 있어요. 마당이라 하기도 부끄러운 크기지만 제가 봄이 되면 여기 종일 살만큼 정말 사랑하는 곳이에요.

3층에서 내려다본 마당, 여기 작은 꽃밭을 만들어 조금씩 확장해 꽃심고 가꾸며 지내고 있어요. 주로 월동이 가능한 꽃들을 데려왔지만 한겨울을 잘 났는지는 봄이 되어봐야 알 것 같아요. 어쨌든 몇몇은 봄에 또 새 순을 피우겠죠?
좁은 마당이지만 저 곳에 늦 봄부터는 잔디도 푸릇푸릇 자라요. 다 죽은 줄 알았던 잔디들은 매해 더 강한 힘으로 올라오더라구요. 이렇게 주택살이를 하면 살아있는 것들에 늘 감동받게 됩니다.
남쪽에 터닝도어를 달아 남쪽 문도 자주 이용하는 터라 그 앞으로 나무 데크를 설치하고 어닝도 달아서 여유있는 공간을 만들었어요. 작지만 앉아있을 테이블, 휴식하고 생각할 공간 은근히 많다는 거, 저희 집 자랑거리랍니다.

옆집과의 경계 울타리는 합성데크를 사용했어요. 합성데크는 외부에서 그 어떤 소재보다 강하더라구요. 데크가 흰색이 없어 남편이 페인트칠하고 벗겨지면 또 칠해야지 계획했으나 아직까지 깨끗한 상태로 쓰고 있어요.

봄엔 여기서도 브런치를 즐겨요. 중정은 좀 더 프라이빗 하지만 막혀있어서 답답하다면 앞마당은 꽃밭을 보며 여유를 즐길 수 있어요. 비록 도심주택이고 남쪽으로 위치한 상가와 인접도로에서 소음이 있지만 ㅎㅎ 그래도 마당만 보면 한적한 시골 어느 전원주택이다~ 상상할 수 있답니다.

텃밭 꾸리시는 분들이 보면 장난하나 싶겠지만 ㅎㅎ 그래도 작은 공간에 허브 텃밭도 만들어뒀어요. 허브가 많이 필요한 제 일 특성상 허브값 정말 많이 아낄 수 있거든요.
마치며

이렇게 없을 거 빼고 다 있는 우리집! 미니멀리즘이 대세인 요즘을 생각할 때 참 복잡하고 적당히 클래식, 레트로한 집이라 생각하지만 전 또 이렇게 살림살이하는 기분 나는 게 좋아요.
주변 친구들도 처음에 왔을 땐 살림이 전에 살던 집보다 확연하게 줄어서 카페 같다고 칭찬하더니 몇 달 새 다시 살림이 느는 걸 보곤 역시 이게 그냥 네 스타일이다라고 해주더라구요, 하하
집을 짓고 나니 지인들이 제일 처음 하는 질문, " 집 지어보니 할만 해요?" 예요. 보통은 집 지으면 10년 늙는다던가, 하는데 전 할만해요!! 좋아요!! 라고 늘 대답합니다. 그만큼 주택은 제게 많은 영감과 힐링을 주었고 저희 가족에게 추억을 주고 있어요.
물론 지을 때 힘들었던 것, 아쉬웠던 것 많았지만요. 이 곳에서 더 많은 추억을 남기고 더 행복해질 수 있을거란 자신이 있어요. 집 짓고 싶으신가요? 어렵지 않아요!! 무조건 해보세요!!

