사진 촬영 스튜디오와 사진작가 부부의 집이 단란하게 붙어 서 있다.
H빔 구조로 지어 심플하면서도 따뜻한 분위기를 발산하는 하얀 집.

오랜 시간 기다린 만큼 건축주의 니즈와 소망을 가득 담은 집이 탄생했다.
파주에서 10여 년 동안 사진 촬영 스튜디오 ‘더스튜디오’를 함께 운영해 온 주대수, 윤시후 작가 부부. 그들은 통근 생활을 마치고 주거 공간과 스튜디오를 결합한 새 보금자리를 만들 때가 되었다고 생각했다. 하지만 처음 집을 짓겠다 결심하고 5년, 많은 우여곡절을 겪고 나서야 지금의 집을 만날 수 있었다. 인터뷰를 통해 집짓기 과정을 풀어주던 윤시후 대표는 블로그에 그간의 건축 일지를 상세하고 꼼꼼하게 기록해 두기도 했다.


애초에 스튜디오라는 상업 공간을 같이 지으려 했기에 실용적이고 합리적인 가격에 중점을 두었고, 짧은 공사 기간과 쉬운 구조 변경이 장점인 H빔 구조를 선택했다. 1년 정도 파주에서 땅을 찾던 부부는 양평으로 눈을 돌려 마음에 드는 땅을 만났고, 설계와 기초 토목 공사까지 진행했다. 그러나 예상치 못했던 시공사와의 문제가 불거지면서 계속 집을 지을 수 없게 되었고, 반년 이상의 시간동안 땅을 매도하는 과정을 거쳤다. 그렇게 다시, 양평 백안리에서 좋은 조건의 땅을 찾을 수 있었다. 문제는 새로운 시공사를 컨택하는 일.
SECTION

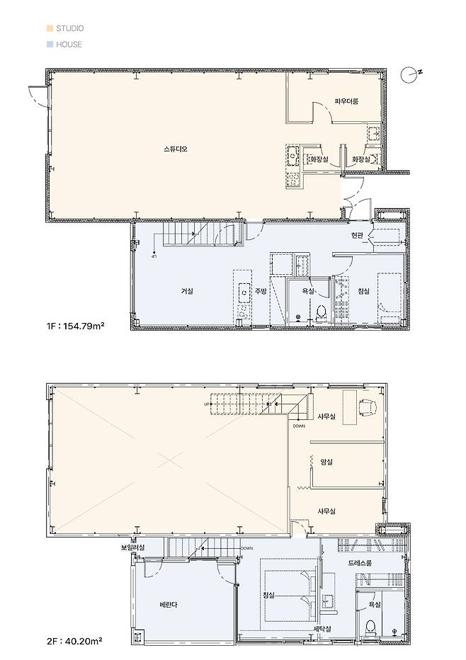
HOUSE PLAN
대지면적 : 414㎡(125.26평)
건물규모 : 지상 2층
거주인원 : 2명
건축면적 : 154.79㎡(46.82평)
연면적 : 194.99㎡(58.98평)
건폐율 : 37.39%
용적률 : 47.10%
주차대수 : 2대
최고높이 : 7.5m
구조 : 중량철골구조 / 주택 – ALC, 스튜디오 –복합 컴포지트 라이트판
외부마감재 : 스터코
창호재 : KCC 페이 이중창
설계 : ㈜삼원건축사사무소
시공 : ㈜빔하우스 031-511-8812 | www.beamhouse.co.kr



건축주는 내구성과 기밀 성능이 좋고, 공사 기간도 단축되는 ‘컴포지트 패널’을 사용하고 싶었지만 믿고 맡길만한 시공사를 찾기 어려웠다. 미팅을 거듭한 끝에 ‘빔하우스’를 알게 되었는데, 컴포지트 패널에 대해 먼저 언급해 준 시공사는 빔하우스가 유일했다고 한다.
PLAN

INTERIOR SOURCE
수전 등 욕실기기 : 아메리칸스탠다드, 이누스, 비반트
주방 가구 : 주문 제작
계단재 : 자작합판, 바니쉬 마감
현관문 : 코렐 시스템도어(시그니처 플레트베이직)
방문 : 영림ABS도어
창호 : LX하우시스 시스템창호
실내 터닝도어 : LX하우시스
배선 기구 : 르그랑(엑셀, 아펠라)



빔하우스는 건축주에게 여러 가지 새로운 제안을 했다. 스튜디오 파트는 복합 컴포지트 패널로 마감하되, 주택 파트는 ALC 블록으로 쌓아 소음과 진동을 차단할 수 있도록 추천했다. 설계 시 스튜디오 뒷면에는 자연광을 들여 촬영을 돕고, 건축물의 디자인을 완성해 주는 커다란 유리창을 계획했는데, 빔하우스에서 유리창 대신 폴리카보네이트 창으로 진행하길 제안했다. 입주 후 반년이 좀 안되게 지내본 결과 매우 만족스러운 선택들이었다고. 특히 폴리카보네이트 창은 실내 온도 유지에도 도움이 되고, 간접광으로 은은하게 안과 밖을 비추어 촬영 시 편리할 뿐 아니라 집의 외관을 한층 특색있게 만들어 주고 있다고 한다.




보통의 상가주택이 층별로 공간을 구분 짓는 것과 달리 더스튜디오는 두 공간이 옆으로 붙어 있는 특별한 구조다. 집과 스튜디오는 1층과 2층에서 각각 연결되어 있어 공간으로의 이동이 편리하도록 구성했다. 미니멀하고 깨끗한 톤앤매너를 의도했던 건축주는 화이트 톤으로 전체 공간의 배경을 깔고 그 위에 연한 그레이, 콘크리트, 자작 합판 등 옅은 컬러들을 레이어드했다.
길었던 집짓기 여정만큼 부부의 고민과 경험, 그리고 다양한 스토리가 함께 쌓인 집, ‘더스튜디오’. 하얀 캔버스 같은 집은 부부와 스튜디오를 찾는 이들의 다채로운 이야기로 채워지고 있다.



진행_조재희 | 사진_주대수
ⓒ 월간 전원속의 내집 2024년 2월호 / Vol.300 www.uujj.co.kr