
안녕하세요. 저는 남편과 아이와 강아지와 함께 살고 있는 프리랜서 디자이너입니다.
저희 집은 1층 뷰가 마음에 들어서 선택한 구축 아파트예요. 인테리어를 진행하며 부족한 수납공간을 늘리고, 화장실 1개를 신설했어요. 그리고 요리가 취미라서 넓은 아일랜드를 설치했고요. 이 모든 걸 33평이라는 구축 아파트에 녹이려고 고민을 많이 하고 인테리어를 시작했습니다. 그럼 바로 사진과 함께 보여드릴게요.
with 다봄디자인
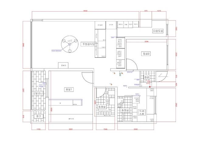
1. 도면

시공 전 도면입니다. 짐이 다 빠진 뒤에 처음 집을 보고 너무 속상했어요. 컨디션도 엉망이고, 평수에 비해 너무 작고, 수납공간이 없었거든요. 공사가 의미가 있을까 싶기도 했어요. 그러한 컨디션이었기 때문에 더 드라마틱 하게 바뀐 모습을 볼 수 있었던 것 같아요.


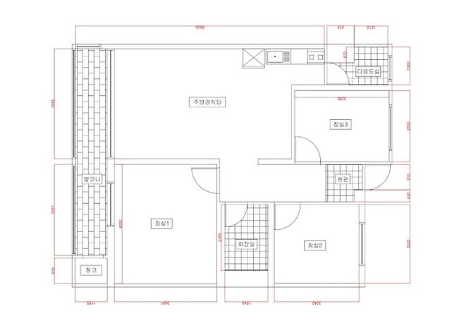
시공 후의 도면이에요. 집이 너무 좁아 보였고, 기존의 클래식 몰딩이 너무 예쁘지 않아서 심플하게 선을 없애는 쪽으로 디자인을 잡았습니다. 또 32평임에도 불구하고 화장실이 1개뿐이라 1개 더 신설하는 공사를 하였습니다. 이건 1층이라 가능한 공사였다고 해요. 아래에 다른 세대가 있을 경우, 물 흐르는 소리가 많이 날 수 있다고 합니다.
2. 거실 Before

거실 After



거실의 전체적인 모습은 이렇습니다. 아래로는 공간을 나누어 설명드릴게요.
소파 공간

빔프로젝터 위치 때문에 기존에 잡았던 거실 레이아웃에 변경이 생겼어요. 우선 빔프로젝터를 소파테이블에 올려야 해서 소파도 11자로 두었어요. 편히 늘어져서 쉬기보다는 간단히 앉아서 쉬는 공간으로 꾸몄습니다. 큰 소파테이블을 두 개나 두어서 답답해 보이지만, 영화 보면서 간단히 군것질하기는 좋더라고요 ^^





거실에서는 주로 음악 듣고 밤에는 넷플릭스로 영화를 봅니다. 티비 대신 빔프로젝터로 bts나 가수 이승윤 공연 영상 보는 걸 좋아해요.
테이블 공간

식탁은 소파 옆 창가에 두고, 측면에 있는 창문을 살려서 뷰를 볼 수 있도록 했어요. 홈카페 같은 컨셉으로 꾸몄습니다. 식탁이 거실 확장부에 있다 보니 식사하면서 쉬는 공간이 되었습니다.

1층이라서 주말 낮에 가족들과 이 테이블에서 아침을 먹으면 카페에 와 있는 기분이에요. 손님들이 낮에 오면 저 테이블에서, 저녁에 오면 주방 아일랜드에서 대접해요 ^^



저 창문은 원래 길고 불투명했는데요. 하부는 단열을 하고 창틀을 새로 만들어 픽스창을 넣었어요. 사실 저 자리에 식사할 때 컵 등을 놓으려 했는데 꽃병이랑 디퓨저 올리기 적당한 높이라서 디피용 소품들 올려두고 있어요.


1층이라 사생활 보호가 되냐고 여쭤보시는 분들도 계시는데요. 방충망은 고구려 방범 방충망을 해서 3중 잠금이 된답니다. 그래서 난간대도 없앴어요. 노출이 심한 옷만 아니면 굳이 커튼 치고 있을 필요는 없어서 낮에 재택근무할 때도 창문 열고 있을 때가 많아요.
3. 주방 Before

주방 After


전반적으로 색상은 따듯하게 선은 슬림하게 주방 디자인을 잡았어요. 군더더기 없게 만들고 싶었는데 구조상 안되는 부분도 있더라고요. 아쉽긴 하지만 기존 구조에서 나올 수 있는 최고의 구조인 것 같아서 뿌듯합니다 ^^

간단히 아일랜드에 앉아서 먹을 수도 있게끔 아일랜드에 의자 넣을 공간도 만들었어요. 손님들이 오셨을 때 아일랜드에서 오마카세 느낌으로 즐길 수 있어서 좋아요. 재택근무할 때도 유용하게 쓰고 있답니다.


주방 위쪽은 깔끔하게 유지하고 싶어서 상부장과 후드를 없앴고요.

인덕션과 후드 겸용 엘리카 제품을 직구로 구입해 달았어요. 크기는 일반 인덕션보다는 크고, 금액도 조금 나가지만, 후드와 인덕션을 합친 비용이라고 생각하니 합리적인 선택이었던 것 같아요.
인덕션 위쪽에는 원래 슬림한 금속 선반을 설치하려고 했었어요. 목공 작업 시 미리 매입하고 타일을 붙여서 깔끔하게 하려 했는데요. 중국산 긴 선반이라 그런지.. 선반이 울퉁불퉁해서 제거했어요. 저 자리는 아직도 선반을 해야 하나 고민 중이랍니다 ^^

넓고 긴 아일랜드로 조리 공간도 늘어났습니다. 주방에는 데드스페이스가 생기지 않도록 신경을 많이 썼어요.

싱크대 서랍은 손잡이, 여닫이는 푸시 타입으로 했어요. 서랍을 손잡이로 하니 손수건 걸어서 쓰기도 좋고, 열고 닫을 때도 너무 편해요. 푸시 타입 여닫이는 편하지는 않지만, 깔끔해 보여서 만족하며 쓰려고 해요^^

왼쪽에 보이는 부분은 싱크대가 ㄱ자로 꺾이는 부분인데요. 수납이 많이 안되는 공간이라 와인셀러를 넣었어요. 딱 맞게 들어갔습니다. 거실에서 바로 꺼내서 먹을 수 있어 좋아요.


싱크대 대리석은 하이막스로 하고 같은 소재로 벽면 일부를 시공했습니다. 밝은 색과 베이지 계열 중에 고민하다가 베이지 계열로 했는데 보는 사람들마다 고급스럽다고 칭찬해 주시더라고요^^


식기세척기 위에는 작은 서랍을 만들어서 식기세척기 세제를 넣고 쓰고 있어요.



주방 다용도실은 이렇게 문을 제작해서 숨은 공간으로 만들었어요. 이용할 때만 문을 열어요.


안에는 세탁기랑 밥솥, 전자레인지 등이 있고 재활용 쓰레기들도 여기에 놓고 있어요.
4. 안방 Before

안방 After


침실은 아늑하게 꾸미고 싶어서 창문 크기를 줄였어요. 안방 창문을 샤시(새시)가 아닌 정말 ‘창’ 느낌으로 하고 싶었어요. 그 디자인에 맞춰서 벽지도 구찌 제품으로 했습니다. 그리고 큰 침대를 두었어요.

침실이 밝을 필요는 없을 것 같아서 침대가 있는 쪽은 메인 조명 없이 간접조명으로만 꾸몄고요.

침대 뒤쪽엔 이렇게 가벽을 설치했습니다. 원래 드레스룸으로 쓰기로 했던 방에 화장실을 만들면서 드레스룸 공간이 부족했어요. 그래서 침실에 이렇게 가벽을 세워서 공간을 분리하고 수납공간도 최대한 늘렸어요.

가벽 뒤로는 붙박이장과 화장대를 놓았어요. 구축이라 안방이 큰 편이라서 화장대와 붙박이장이 마주 보는데도 공간이 충분하더라고요.

화장대 상판은 오염이 잘 되니 하이막스로 시공했어요. 최대한 깔끔하게 유지하려고 화장품은 모두 서랍에 넣고 위에는 식물이나 디퓨저 등을 올려놓고 있어요.

사진에선 잘 안 보이지만, 가벽 뒤에 있는 드레스룸만 다운라이트로 조금 밝게 했어요.
5. 아이방


아이방은 너무 작은 사이즈라서 수납이 되는 2층 침대를 구입했어요. 아이 옷이랑 자질구레한 장난감들 수납하기 너무 좋아요.

기존에 있던 두꺼운 벽을 철거하고 새로 단열하면서 벽에 선반을 만들었어요. 책장용으로 쓰기엔 깊이가 얕지만 아이 머리끈과 리모컨들 놓기에 좋아요.


아이 있는 집에 필수인 미피등이에요. 아이가 혼자 자기 시작한 지 얼마 안 되어서, 잘 때 필수템이랍니다 ㅎㅎ

6. 거실 욕실 Before

거실 욕실 After




거실 화장실은 클래식한 분위기로 꾸몄어요. 수전과 거울 등은 직구를 하였고 타일과 악세사리도 샤방하고 화사한 느낌으로 연출했어요.


이동식 욕조로 위치를 바꿔가며 사용하는 것도 재미있더라고요.


거울은 틸링 거울이에요. 각도를 상하로 움직일 수 있어서 키가 작은 아이도 눈높이에 맞춰서 볼 수 있어요.
7. 입구방 욕실 Before


입구방 욕실 After

입구방 절반은 화장실을 신설하였어요. 33평이지만 구축이다 보니 화장실이 1개밖에 없었어요. 협소한 공간을 살려서 수납장까지 넣은 화장실을 완성했습니다.
레퍼런스 이미지는 핀터레스트에서 참고했어요. 거실 화장실과 다르게 레트로한 모자이크 타일을 사용하고 컬러감을 주었어요.

코랄빛 타일이 메인 화장실보다 더 예쁘다고 좋아해 주시더라고요. 인스타에서도 반응이 가장 좋은 사진 중 하나였어요 ^^

샤워 공간과 세면 공간이 분리되어 보이도록 투톤으로 했어요. 모자이크 타일을 바닥에 시공하면 미끄럽지 않을까 걱정했는데 전혀 그렇지 않더라고요.





세면대가 작다 보니 거울도 작은 사이즈로 했어요. 저 사이즈의 색감 있는 거울이 없어서 찾는데 오래 걸렸어요. 거울은 수시로 바꾸려고 해요.
8. 현관

현관 바닥 타일은 밝은 색으로 했어요. 역시나 때가 잘 타고 먼지 때문에 매일 청소하게 되더라고요 ^^ 그래도 깔끔한 타일이 마음에 듭니다. 반유광이라 청소도 용이하고 미끄럽지도 않아요. 현관 바닥 타일과 벽타일은 라임스톤 1200*600으로 큼직하게 했어요.

중문은 최대한 깔끔하게 하고 싶어서 통유리로 하였어요. 손잡이는 호페 손잡이로 해야 덜컹거림이 덜해서 레버형 호페로 하였고요. 아이가 있어서 혹시나 위험할까 걱정했지만 그런 문제는 전혀 없네요^^


거울은 최대한 크게 하고 신발장 사이즈는 줄여 하부 수납만 가능하게 했어요. 한쪽 벽면에는 구찌 벽지로 포인트를 주어 심심하지 않게 연출했고요. 그리고 현관은 밝아야 될 것 같아서 벽등도 추가하였어요. 천장 센서와 같이 켜져요 :)

분전반은 액자로 가려주었고요. 거울에 비치는 신발장 맞은편 벽은 아무래도 손상이 많이 가는 부분이니 바닥 타일과 동일하게 타일로 마감했어요.
9. 복도 Before

복도 After


복도는 양쪽으로 액자를 걸었어요.


복도에 있는 입구방은 문을 없애고 아치게이트를 만들었어요.


화장실을 신설하면서 가벽이 생겨 밖에서는 보이지 않는 구조입니다.
마치며
사실 1년 전 집을 매매해서 인테리어 고민할 시간이 충분하다고 생각했는데요. 막상 공사를 시작하니 변경하고 싶은 부분과 처음 결정한 대로 나오지 못한 부분들이 있었어요. 마음처럼 쉽지 않더라고요. 그러니 인테리어 계획하실 때 공간별로 디테일하게 고민하시면 조금 더 도움이 될 것 같아요. 예를 들어 저는 가지고 있는 신발에 맞춰서 신발장 내부 높낮이를 조정했고요, 주방에서는 가지고 있는 그릇과 커트러리, 그리고 제 동선에 맞춰서 서랍 하드웨어를 구입했어요.
제가 신경 쓰지 못한 부분도 있어요. 냉장고 위에 있는 수납장에 들어갈 물품, 세탁세제 올려놓을 공간 등이요. 그리고 시스템 에어컨을 거실 확장부에서 주방까지 커버되도록 설치했는데요. 주방이 열을 쓰는 공간이니 시스템 에어컨을 주방과 더 가까이 설치했어도 좋을 것 같아요.
집은 몸도 마음도 편안하게 머무를 수 있는 공간이잖아요. 재건축을 앞두고 있어서 이 집에 아주 오래 머무르지는 못하지만, 이 집에서 아이가 커가는 모습, 우리 부부가 발전하는 모습을 같이 하고 싶어요. 긴 글 읽어주셔서 감사합니다.

