
안녕하세요! 저희는 연애+결혼 = 10년차 부부에요. 100일된 딸과 1000일된 아들까지, 네 식구가 살고 있답니다. <우아당> 은 나우와 노아의 집, 그리고 우리들의 아름다운 집 이라는 뜻이에요.
우아당의 시작

신혼집은 한강이 보이는 아파트였지만 아이를 키우기엔 좁고 시끄러웠고, 그 후엔 신도시의 공원뷰로 이사를 갔는데 다세대주택이라 뛰놀 수 없었어요. 그래서 내린 결론은 "우리집을 짓자 !" 였습니다.
전세로 살다가 집을 지으려 하다보니 땅만 1년 봤어요. 생활환경, 경제적 조건, 아이들 교육 등 생각하고 따질게 엄청 많았네요.T.T 그러다 용인 기흥에서 이 땅을 발견했고, 여기다! 싶었어요. 타운하우스 끝에 위치한 이 곳 바로 뒤에는 작은 산이 있어서 공기도 좋고, 보기에도 좋았어요.
살다보니 집 앞에 고라니, 청솔모, 딱따구리 등 많은 동물 친구들이 놀러오네요.ㅎㅎ 저희 집에 자주 놀러 오는 란희에요. (첫째가 지어준 이름의 고라니)
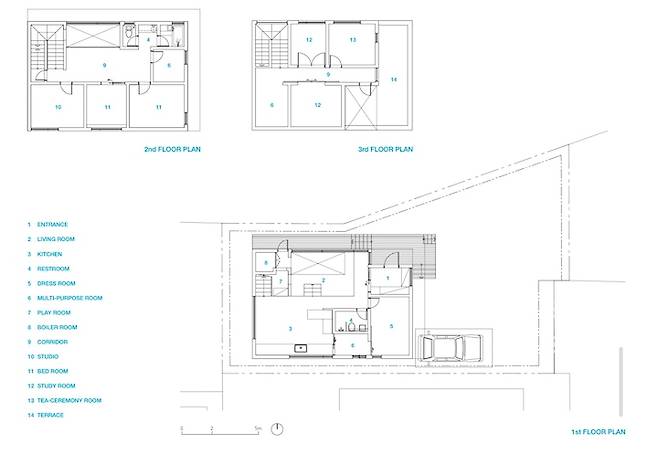
1. 도면
우아당의 구성

집을 짓고 싶다는 열망을 갖고 나서 남편은 건축 공부를 위해 건축가에게 꽤 오래 과외를 받았고, 땅을 보자마자 그 과외 선생님께 저희 집 건축을 의뢰했어요. 건축 선생님 부부와 함께 집에 대한 관념에 대해 대화하고, 살고 싶은 집에 대해 의논하고, 저희의 생각에 중점을 두고 설계를 했어요.
계획의 첫 선을 긋기까지 많은 시간이 걸렸어요. 계획의 구체적 방향성이 잡힐 시기에 성장관리계획이 고시되면서 대지의 조건이 바뀌었죠. 새로운 가능성이 생긴 대지는 새로운 계획 방향을 갖게 되었어요.
원래 생각했던 지하 층을 없애고 지상으로만 구성하였죠. 3개 층으로 이루어진 우아당은 내, 외부적으로 모든 공간을 채우기보다는 1층의 포치 공간과 3층의 테라스를 계획하여 내부지만 다양한 외부 활동을 할 수 있는 공간을 두었어요.
구조는 목구조를 선택하면서 특수목을 적용하였고, 저희가 생각하는 집의 형태를 드러내고 싶어서 뾰족한 박공 지붕으로 하였어요. 집 내부는 자연 + 따뜻함 + 가족을 중심으로 공간의 구성이 이루어져요.
우아당의 시안






2. 시공 과정
우아당은 공사 중

22년 4월 기초공사를 시작으로 22년 6월 이사까지 시공 기간이 약 70일 걸렸어요. 첫째 아이의 어린이집 등원 때문에 최대한 빠르게 이사를 했어야 했거든요. 목 구조임을 감안하더라도 정말 빠르게 진행되었는데, 건축주/건축가/시공사가 매일 소통하며 지낸 덕분이라고 생각해요.

아, 저희 집 건축에서 흥미로운 점 하나는 우아당을 설계한 건축가 부부, 시공팀, 그리고 저희까지 모두 20대-30대 초반이라는 점이에요. 어린 나이에 사업을 시작해서 실력과 경험이 부족하지만 누구보다 진정성 있게 부단히 노력하여 성과 내며 살아온 저희가, 비슷한 마음으로 일하고 있는 건축가와 시공 업체를 만나서 함께 어려운 일을 해냈지요.

매일같이 아이와 함께 공사현장에 방문하여 집을 보고, 만지고, 느꼈어요. 덕분에 아이도 집에 대한 애정이 크답니다 :-)
3. 우아당의 외관


<집>의 형태에 대해 많은 사람들이 생각할 때, 뾰족한 박공지붕을 떠올리는 것처럼 저희는 그 형태를 드러내고 싶어서 박공지붕+사각형 외관으로 짓게 되었어요.

주택살이에 대한 로망과 현실적인 부분을 고려하여 잔디마당을 최소화 시켰어요. 아주 넓지는 않지만 이 잔디마당에서 아이와 축구도 하고, 고기도 구워먹고, 상추/부추/방울토마토도 심어요. 이번 여름에는 큰 수영장을 설치하여 매일 물놀이할 예정이고요. 아, 마당의 나머지 부분은 주차를 위해 콩자갈로 마무리하였어요.

4. 거실
우아당의 1층 : 우리들의 시간을 공유하며

우아당의 거실은 저희 가족이 제일 좋아하는 공간이에요. 거실과 주방은 같은 층이지만 공간 분리를 위해 스킵플로어를 이용해서 거실의 단을 낮춰주었어요. 덕분에 숲과 우아당의 경계를 동일선상에 두어 극적인 공감각적 경험을 하면서 동시에 큰 창을 통해 개방감까지 느낄 수 있어요. 거실에서 다채로운 자연에 시선이 머물 수 있고, 사계절의 변화를 오롯이 느낄 수 있어요.
또한 직선과 곡선을 골고루 사용하였어요. 포근한 느낌이 드는 둥근 소파, 곧게 뻗은 천장과 스킵플로어 라인, 감싸주는 주방의 아치월, 높게 뚫린 보이드 등 절제되지만 자연스러운 조형 요소를 추구하였습니다. 특히 거실의 언어로 관통하는 아치 형태는 아이들의 성장기에는 상상의 통로로, 아이들의 성장 후에는 우아한 아름다움으로 남길 바라고 있지요.

우아당을 설계한 건축가 부부가 지속적으로 강조한 부분은 가족간의 소통구조였어요. 가장 많은 시간을 보낼 거실에서는 마당에서 노는 아이와 소통하고, 주방에서 요리하는 엄마와 소통하고, 뚫린 천장을 통해 2층과 소통하며, 계단을 통해 내려오면서 소통하는, 우아당은 그런 소통의 집이기도 해요.

소파 맞은편에는 비밀의 공간이 있어요. 이 곳은 저희집에서 가장 재미있는 공간이기도 해요. 작은 아치 창문의 안쪽을 자세히 들여다 보면 이렇게 첫째의 놀이방이 있답니다.
계단 밑 공간을 활용하여 아이가 좋아하는 장난감들과 함께 비밀의 방을 만들어주었어요. 이곳은 첫째의 집이 되기도 하고, 음식점이 되기도 하고, 해적선이 되기도 하는데 이처럼 아이의 상상력도 다양하게 커지고 있어요.



거실은 제가 가장 많은 시간을 보내는 곳이에요. 특히 둘째가 태어난 후에는 일을 쉬고 있기 때문에 더욱 더 거실에서 보내는 시간이 많아졌어요. 평화롭고 따뜻한 우아당 거실에서 저는 첫째와 놀고, 둘째를 키우고, 남편과 대화하며 지내요. 1층의 실평수는 작지만 큰 창을 통해 창밖의 숲까지 시선이 이어지기 때문에 전혀 답답하거나 심심하지 않아요.

- 우아당의 창을 통해 느끼는 < 봄, 여름, 가을, 겨울 > -
5. 주방

거실 뒷편으로는 주방이 자리하고 있어요. 주방에서는 소중한 가족을 위해 요리를 해요. 우리 가족이 먹을 음식을 정성스레 만들어내는 공간이지요.
남향으로 배치된 주방에는 채광이 확보되어서 따뜻한 햇살을 맞으며 기쁜 마음으로 요리를 하고, 가장 많은 시간을 보내는 거실과 연결되어 소통하기도 해요.

주방은 거실 다음으로 많은 시간을 보내는 곳이에요. 그래서 거실과 직접 맞닿아 소통할 수 있는 ㄱ자 구조로 배치하였어요. 거실과 주방 모두 우아당에서 가지는 가장 큰 장점인 차경을 살리고자 큰 창을 내는것에서 시작했어요.덕분에 개방감을 가지는 동시에 환기에 용이해요.
물론 수납의 실용성도 중요했지만 상부장을 설치하면 채광과 풍경을 모두 잃게 되더라고요. 그래서 주방에 할당된 면적 내에서 식기, 주방용품, 기기의 종류와 크기를 모두 적어서 테트리스하듯 맞춰 넣기 시작했어요. 그렇게 탄생한 수납공간과 주방가구, 기기의 배치랍니다.

디자인 적으로는 가장 미니멀한 선을 유지하여 움직이는 자연을 정제되게 바라보고자 했어요. 후드도 히든후드로 상부장 내에 숨기고, 냉장고도 차분한 톤의 색과 선과 면으로만 이루어진 비스포크 제품으로 선정했죠. 싱크볼과 수전도 같은 맥락에서 선정했어요. 각진 형태의 싱크볼은 실용적이면서 넓고, 조형적으로 깔끔해서 선택했어요.
수전은 사실 신축준공에 있어서 선택의 폭이 많지 않더라고요. 절수인증이 획득된 제품 중에서 선택해야 했어요. 수전은 다른 주방의 모든 제품이 면의 일부인데 반해 돌출된 형태여서 과감한 사이즈나 형태를 시도하고 싶은 마음도 있었으나 곡선의 형태에서도 자연스럽게 어우러지는 해당 제품을 구매하게 되었어요.

다이닝 공간이에요. 이 곳의 창은 다른 창들과는 달리 옆집과의 사생활 보호를 위해 크게 내지 않고 식탁의 높이에 맞춰 길게 냈어요. 우아당의 다이닝 공간은 어느 자리에 앉아도 통창으로 시원한 뷰를 즐길 수 있는 확장성을 갖추고 있어요. 주변 경치를 바라보며 식사를 즐길 수 있어서 여유로운 분위기를 느낄 수 있습니다.
또한, 다이닝 공간은 소셜한 모임이나 가족들과의 대화를 즐기기에 이상적인 공간이기도 해요. 면적의 한계로 인해 크게 구성할 수는 없었지만, 함께 둘러앉을 수 있게 큰 테이블을 우선순위로 배치하여 공간을 활용하였습니다. 다이닝 공간을 구성할 때 동선에 방해되지 않는 최적의 사이즈를 계획하기 위해 많은 시뮬레이션을 여러 차례 진행하였어요. 주방과의 원활한 소통과 편리한 이동을 고려하여 테이블의 위치와 크기를 결정하였죠.
이 공간의 가구들도 역시 우아당의 톤인 화이트, 우드로 대부분 선택했어요. 신혼부터 제가 고집하는 것 중에 하나는 같은 색상/다른 모양의 의자인데 이번에는 다양한 모양의 우드톤 의자들을 오늘의 집에서 구매했네요.

깔끔하기 살기위해 가장 중요한 부분은 수납인 것 같아요. 그래서 뷰를 방해하지 않는 선에서 수납장을 최대한 많이 두려고 했어요. 이 곳은 식탁 앞 수납장인데 아치 디테일을 사용하여 전체적인 우아당 컨셉에 어울리게 만들었어요. 보이는 곳은 오브제를 활용하여 홈카페처럼 만들어두고, 아래에는 주방에서 쓰는 여러 물건들을 수납해두었어요.
6. 2층 거실
우아당의 2층 : 따로 또 함께

1층이 소통의 공간이었다면 2층은 따로, 또 함께의 공간이에요. 사진에는 없지만 현재 2층 거실에는 리클라이너와 모듈쇼파를 두어 아이와 함께 책을 읽거나 혼자 커피 타임을 갖는 등 따로 또 함께 하는 공간으로 쓰고 있답니다.


2층은 작은 거실, 방4(엄마 작업실, 안방, 첫째방, 팬트리), 그리고 화장실로 구성되어있는데 각각의 방은 가족의 생애 주기에 따라 변화를 줄 수 있게 노력했어요. 아이들의 성장에 따라 공간이 필요없어지거나 다른 용도로 활용할 수 있도록 고려하였습니다.
7. 엄마의 작업실

경력단절로 인한 산후우울증을 겪던 저는 집에서 할 수 있는 일이 뭐가 있을까 고민을 많이 했어요. 그러다가 첫째의 첫돌을 준비하며 백일상, 돌상 등 기념일 상차림 대여사업을 시작했어요. 첫 아이가 5살이 된 지금까지도 드로잉 케이크 토퍼까지 판매하며 잘 이어나가고 있어요. 현재는 둘째 아이 출산 후 잠시 쉬고 있고요!
이 곳은 그 일을 하는 저의 작업실이에요. 저의 작업실은 작업물을 둘 수 있도록 높은 단을 두고, 장롱을 배치하였어요. 그런데 아이가 크고 독립 공간이 필요하게 되면 단 위에는 매트를 두어 침대로, 장롱에는 아이 옷을 두는 형식으로, 작업실을 아이방으로 바꿔주려고 해요.
8. 아이방

아이방은 저희 아이의 성향을 고려하여 디자인되었고, 제 작업실과 마찬가지로 아이의 성장에 따라 변화시킬 수 있는 유연한 공간이에요. 아이가 크면 2층 침대를 철거할 수 있도록 목재로 제작하였습니다.
조명 역시 신경을 많이 썼어요. 아이방은 세 가지 종류의 조명으로 구성되어 있어서 필요에 따라 조명을 조절할 수 있습니다. 아이가 행복하게 놀고 자는 이 방은 우리 집에서 가장 소중한 공간 중 하나이기도 합니다. :-)
9. 침실

저희 부부가 살아온 아파트나 다세대 주택은 늘 안방이 제일 컸어요. 저희에겐 안방이란 자는 곳이기 때문에 전혀 클 필요가 없는데 말이죠. 그래서 우아당에서는 안방이 제일 작아요. 가로 폭 2100mm. 퀸+슈퍼싱글 매트리스 사이즈에 맞춰 설계한 이 침실에서 저희는 늘 꿀잠을 잡니다.
침실은 어두운 공간이지만 채광과 통풍을 위해 작은 창문을 설치하여 자연의 빛과 신선한 공기를 즐길 수 있게 되었습니다. 이렇게 배치된 창문은 때때로 침실을 밝고 환한 공간으로 만들어주었죠. 마찬가지로 침실의 조명 또한 신경을 많이 썼습니다.

누운 자리에서도 조명을 편리하게 조절할 수 있도록 양벽에 스위치를 설치하였고, 각 자리에는 스포트라이트 등도 준비되어 있습니다. 필요에 따라 조명을 조절하여 자기전 독서도 하고, 편안하게 쉴 수도 있어요.
10. 2층 화장실

1층과는 달리 2층 화장실은 공간이 분리되어 있어요(변기/세면대/욕조). 숲을 보면서 반신욕하는 2층의 욕조 공간은 남편의 최애 공간이에요. 조적욕조가 깊어서 어느 날은 아이들 수영장으로 변신하기도 합니다.
11. 3층
우아당의 3층 : 가능성의 공간

사실 설계를 시작하고 나서도 턱없이 부족한 예산 때문에 3층 집을 지을 거란 생각을 하지 못했어요. 최선을 다해 예산을 잡고, 가격을 조정하고, 마지막 단계에서 파악한 예산을 통해 조금 더 여유 있는 공간을 만들 수 있겠다는 판단이 들어서 결국 3층으로 짓게 되었지요.

훌륭한 설계 덕분에 1,2층에서 우리의 주거에 필요한 기능들을 대부분 소화할 수 있었어요. 그래서 3층은 남편이 주로 사용하게 되어 실험적인 시도를 해보고자 했습니다. 첫번째 실험은 1,2층과 다른 재료를 썼다는 거에요.

1,2층이 화이트+우드였다면 3층은 전체적으로 우드톤이에요. 이렇듯 재료의 전환을 통해 분리된 공간으로 재미를 주고 있는데 이 공간들은 훗날 저희 가족이 자유롭게 변형하여 상상력을 펼칠 수 있는 무한한 가능성의 공간이 될 것 같아요.

두번째 실험은 창고와 헬스장이 하나의 미닫이 문을 사용하여 한 곳만 닫을 수 있도록 설계되었다는 거에요. 이렇게 실용적이지 않은 큰 문을 선택하고 나니 문이 주는 압도감과 독특한 분위기가 조성되네요.

남편은 개인 사업중인데 회사를 나가지 않아도 되는 날에는 3층 서재에서 일을 처리합니다. 이렇게 출퇴근 시간과 헬스장 가는 시간을 줄이고 효과적으로 일을 처리함으로써 절약한 시간을 가족과 함께 보내기 위해 노력하고 있어요. 저희에게 우아당은 일과 가정 생활을 균형있게 이루어질 수 있도록 설계된 셈이에요.

마치며

작년 6월에 이사를 와서 사계절을 겪고 쓰는 집들이였네요. 이렇게 우아당의 집들이에 와주셔서 감사합니다! 앞으로 저희 가족의 행복하고 즐거운 주택살이 많이 응원해주세요! :-)

