
안녕하세요. 저는 남편과 반려견 순심이, 그리고 바로 옆집의 부모님과 함께 온온재(溫穩齋)에 살고 있습니다. 8년 차에 접어든 결혼 생활 동안 세 번의 집을 거치며 어느 날 갑자기 집을 짓고 있는 우리를 발견하게 되었어요. 집을 짓고 주택에 사는 일은 마음 한 켠에서 항상 꿈꿔오던 일이었지만, 도심의 아파트에서만 생활하던 저희 부부에게 전원에서의 삶은 큰 용기와 결단이 필요한 일이었습니다.
저의 부모님께선 은퇴 후 양평에서 생활하고 계셨는데요, 어느 날 갑작스러운 엄마의 병환이 저희 가족을 한데 뭉치게 한 결정적인 계기가 되었습니다. 함께 집을 짓기로 한 후, 짧은 시간에 많은 것들이 결정되며 혼란한 마음으로 고민하던 저를 다잡아주고 설득해 준 남편에게 참 많이 고맙고 감동했던 시간이었어요. 그렇게 저희는 한 필지에 두 채의 집을 짓게 되었습니다.
집을 짓기까지

건축 과정만으로도 집들이 페이지를 다 채울 수 있을 만큼 할 말이 많은데요, 첫 삽을 뜨기까지 몇 년간 크고 작은 어려움이 많았어요. 부모님께서 양평에 집을 짓기로 계획한 후 토지를 매입한 건 무려 6년 전이었습니다. 수없이 계획이 틀어지고 지연되는 바람에 결국 새로운 땅을 찾아 지금의 집터를 운명처럼 만나게 되었죠.
아마 처음의 계획대로 모든 것이 흘러갔다면 부모님과 저희가 붙어 사는 지금의 삶은 없었을 겁니다. 맘고생을 지금의 모습으로 보상받은 것 같아 모든 일에는 다 이유가 있다는 운명론적인 생각을 해보며 우리의 지난날을 위로해 보곤 한답니다.ㅎㅎ

저희는 공정 주택의 과정으로 집을 지었습니다. 공정 주택은 건축주의 적극적인 참여가 필수적인 시공 방식인데요, 건축의 필수 공정인 기초와 골조, 전기 및 설비와 방수 외에 건축주가 직접 참여해 도급자를 선정하여 공사가 이루어집니다.
저희가 집을 짓기로 결정한 시점에 코로나 여파로 자재비가 급격하게 치솟으며 예상보다 많은 비용이 들어가는 상황이었어요. 최소한의 비용으로 최대의 효과를 내는 것이 가장 큰 취지였고, 아버지께서 적극적으로 공사 과정에 참여하고자 하셨기에 시공사 선정은 큰 고민 없이 빠르게 가능했습니다.
시공사 선정 후 설계를 위해 주변을 둘러보면 건축가들이 설계한 그림 같은 집들에 마음을 빼앗기곤 했습니다. 그럴 때면 정신을 가다듬고 현재 내가 할 수 있는 것과 현실에 집중했어요. 부모님과 저희 부부는 각자에게 필요한 요소를 넣어 직접 도면을 그려나갔습니다. 수없이 더하기 빼기를 해가며 내가 살 집을 설계하는 일은 피곤함을 잊을 정도로 큰 즐거움이었어요. 각자의 라이프스타일과 취향을 반영하고자 많은 대화를 나누다 보니 8년이나 함께 살면서도 미처 몰랐던 니즈를 확인하게 되었습니다.
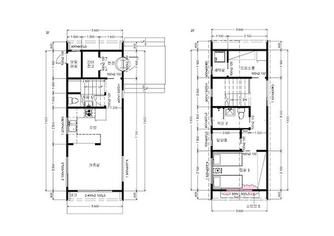
도면

저희 집의 '진짜진짜최종.jpg' 도면이에요.ㅎㅎ 그리 크지 않은 땅에 두 채의 집을 짓다 보니 건축 면적에 제한이 많아서 집 크기는 포기해야 했어요. 부모님과 함께 집을 짓기로 결정한 순간부터 부모님 집을 36평, 저희 집을 22평으로 픽스하고 자세한 설계를 해나갔습니다. 워낙 작은 면적인지라 높은 층고나 탁 트인 전망, 화려하고 멋진 디자인은 꿈꿀 수 없었고요 그저 작지만 있을 건 다 있는 알찬 집 만들기에 최선을 다했습니다.

설계가 끝나자 시공 시간은 그리 오래 걸리지 않았어요. 골조가 올라가는 것을 보며, 상상으로만 그려오던 집이 눈앞에 펼쳐지는 것 같아 감격스러웠습니다.


집을 짓는다는 건 정말 쉴 틈 없는 선택의 연속이었어요. 공정 끝에 다음 공정을 준비하며 오차와 실수를 최대한 줄이기 위해 정신을 바짝 차려야만 했습니다. 콘센트와 스위치의 위치 하나까지 나의 생활패턴에 맞추어가면서 오직 우리 가족만을 위해 지어지는 집이라는 생각에 짜릿했답니다!

봄부터 길고 긴 장마와 폭염을 지나 준공까지 꼬박 6개월이 걸렸습니다. 준공이 나던 날엔 제 인생의 가장 큰 프로젝트를 마무리한 것만 같은 기분에 코끝이 찡해지기도 했어요 ;)
두 개의 현관

마주하고 있는 부모님 집과 저희 집 현관입니다. 처음엔 한 채의 집을 커다랗게 지어 층을 분리하는 등 함께 할 수 있는 여러 가지 방법을 고민했는데요. 각자의 독립된 생활을 존중하기 위한 최선의 선택이었다는 생각을 하며 만족하고 있어요.

저희 집 온온재의 현관입니다.

현관문을 열면 오른 편에는 신발장, 정면에는 창고 겸 팬트리가 있는데요, 지네처럼 신발이 많았던 저희 부부는 신지 않는 신발을 줄이고 또 줄여 신발장에 모두 수납하는데 성공했어요! 그리고 정면에 보이는 창고를 팬트리로 사용하여 자잘한 살림들과 주방 집기들을 보관하고 있습니다. 현관 팬트리는 만들기 정말 잘했다고 스스로 칭찬하는 공간 중 하나예요!

이렇게 많은 것들이 차 있습니다. ㅎㅎ 너무 정신없이 지저분해서 공개하기 망설여졌던 현관 팬트리예요.

제가 사랑하는 현관 타일입니다. 현관은 집의 첫인상이기에 타일에 힘을 주고 싶어 정말 수십 개의 타일을 보고 또 봤는데요, 어느 날 운명처럼 만나 조금 부담스러운 가격임에도 망설임 없이 값을 지불하게 만들었던 아끼는 타일이에요!

현관 중문은 현관문과 바닥재의 톤과 맞춰 우드 중문으로 제작했어요. 실제 원목은 아니고 우드 시트지를 붙여 제작된 중문입니다. :)

신발장 거울을 통해 보이는 집의 모습이 예뻐 보여서 한 컷!

문을 열면 바로 오른쪽에 2층으로 올라가는 계단이 있습니다.
1층 복도

중문을 열면 보이는 공간입니다. 직사각형 집이라 입구부터 시선이 쭈욱 따라 들어가는 식의 구조예요. 개인적으로 짙은 색 마루를 선호하는 편인데, 주로 오크나 회 베이지 톤으로 시공된 신축 아파트에서 살다 보니 내 집을 짓거나 인테리어를 하면 꼭 어둡고 짙은 색의 마루로 해야겠다 생각하곤 했었어요. 집이 작다 보니 주변의 모두가 밝은 색 마루를 추천했지만 남편과 저의 의지대로 한솔마루의 짙은 컬러로 결정한 것에 매우 만족합니다!
1층 주방


작고 아기자기한 저희 집 주방입니다. 집을 설계하고 인테리어하며 가장 많이 고민하고 공을 들인(비용을 지불한) 공간이기도 해요. 빈티지한 느낌의 원목 주방을 만들기 위해 정말 다양한 사진 자료와 시공 업체를 찾아보았던 기억입니다. 시공하며 이런저런 우여곡절을 겪었지만 결과적으로 마음에 쏙 드는 하나뿐인 주방을 만나게 되어 아직도 주방에 들어설 때마다 기분 좋고 뿌듯해요.

저희는 결혼 8년 차이다 보니 살림들이 상당했는데요, 온온재의 작은 공간에 맞추기 위해 제2의 혼수를 준비하듯 많은 가전과 가구를 교체했답니다. 기존에 쓰던 4도어 냉장고가 들어오기엔 주방이 많이 협소해서 2도어 냉장고로 바꾸었어요. 사용하던 냉장고는 집 뒤편 창고에 넣어두고 식료품 창고처럼 사용 중입니다.

주방과 거실은 공간 분리를 원했기에 가벽을 설치했습니다. 대신 답답해 보이지 않도록 창을 내어 개방감을 더해주었어요.

주방에서 보는 모습들이 마치 액자 프레임 속에 담기는 이미지 같아 시선이 닿는 모든 것들이 참 좋습니다.

주방 시공업체에서 만들어주신 접시꽂이는 생각보다 쓰임새가 좋아 아주 요긴하게 사용 중입니다.



많은 주방 살림들을 수납하려다 보니 깔끔하고 효율적인 정리가 필수였습니다. 오늘의집에 올라온 정리 고수들의 다양한 팁들을 연구하며 참 많은 도움을 받았어요! 특히나 슬라이딩 서랍에 접시를 세워 보관하는 것과 밀폐용기의 뚜껑과 본체를 따로 분리하여 보관하는 것이 지금 사용하면서도 참 편리하고 만족스러운 부분이에요. :)
1층 거실

정말 다양한 역할을 수행 중인 거실입니다. 작은 공간에서 어떻게 최대한의 효율을 뽑아낼지 가장 많이 고민했던 것 같아요. 그중 거실 공간의 활용은 남편과 의견차가 생겨서 합의점을 찾기까지 꽤 긴 시간이 걸렸습니다.

거실에 커다란 소파를 놓고 TV 보는 걸 즐기는 남편과, 커다란 테이블과 의자를 놓고 다이닝 공간으로 사용하고자 했던 저의 의견을 조율하여 찾은 합의점이 바로 지금의 모습입니다.
식탁 겸용으로 사용할 만한 소파와 테이블을 찾는 것이 참 어려웠어요. 대부분의 소파와 식탁의 높이가 함께 사용하기엔 적합하지 않아 열심히 찾아 헤매던 중 가리모쿠의 카페 테이블과 K 체어의 조합을 보고 이거다 싶었습니다. 한솔마루의 짙은 컬러를(디센트월넛) 시공해 놓은 저희집 거실 바닥과 가리모쿠의 원목 색상이 자연스럽게 잘 어우러지는것도 한몫 했어요! 여럿이 무언가를 하기엔 조금 작은 사이즈의 테이블이지만, 저희 두 사람이 밥을 먹거나 책을 읽기엔 딱 좋은 크기라 후회 없는 선택이에요! :)

지난겨울, 거실의 모습입니다. 소파, 테이블의 위치와 패브릭을 계절과 기분에 따라 조금씩 바꿔가며 사용하고 있어요.

조도가 낮은 걸 선호하는 편이라 거실엔 간접등과 펜던트 조명만 설치했습니다. 그마저도 좀 밝다고 느껴져서 저녁엔 주로 스탠드 두 개만 켜고 생활하고 있어요. 은은한 불빛이 무언가에 집중하기 딱 좋더라고요. 주로 TV 시청에 최적화되어 있긴 하지만요.^^

한쪽 벽엔 무인양품 sus 선반을 놓고 책을 수납했어요. 집이 1, 2층으로 구분되어 있다 보니 책을 거실 가까이 두지 않으면 손이 닿지 않을 것 같아 1층 테이블 옆에 책들을 놓았어요. 하지만 역시나 책은 잘 읽게 되지 않습니다. ㅎㅎㅎ
창문엔 드롭드롭드롭의 쉬어한 커튼으로 시원한 여름의 청량감을 더해주었어요. 다양한 패턴과 소재로 재미있는제품을 만들어내는 드롭드롭드롭 많이 사랑합니다.🫶


거실과 주방을 분리해 주는 가벽 창이 주는 재미가 쏠쏠해요!

한쪽 벽엔 TV가 존재감을 뽐내고 있습니다. 넷플릭스와 영화, 유튜브를 중독적으로 시청하는 저희 부부에게 없어서는 안 될 소중한 물건이에요.

스탠드형 TV는 선 정리가 생명이잖아요. 저희 집은 복도에서 보면 TV 뒷면이 적나라하게 드러나는 구조라 최대한 깔끔한 정리가 필요했는데, 오늘의집에서 발견한 선 정리 아이템으로 해결했습니다. 하얀 박스 안에 와이파이 공유기와 셋톱박스까지 한방에 수납했어요!
1층 화장실

계단 옆에 위치한 1층 화장실입니다.

계단 아래 생기는 자투리 공간을 화장실로 설계했는데요, 아주 작은 공간이라 재미있고 특별한 느낌을 줄 수 있으면 했어요. 빈티지한 느낌을 살리기 위해 퍼티도 덕지덕지 발라보고 땀 줄줄 흘리며 페인트도 직접 칠했던 기억이 생생합니다.

변기와 작은 세면대가 전부인 공간이지만 거울과 조명 등의 포인트로 색다른 변주를 주려고 노력했어요.

1층 복도 끝에 보이는 중문의 모습입니다. 마루와 최대한 컬러를 맞춰 짙은 우드 톤으로 제작했어요.

계단 위에는 제가 가르치는 꼬마 화가가 선물해 준 저희 집의 수호신 태권브이가 있어요. 볼 때마다 왠지 힘이 나는 사랑스러운 그림입니다.

좁은 계단을 돌아 올라가면 2층이 나옵니다.

저희 집에서 유일하게 층고가 높은 계단실엔 달이 떠있는 듯한 느낌의 조명을 달아주었어요.
2층 복도

복도의 양 끝엔 침실과 드레스룸이 위치하고 있어요.
2층 침실

저와 남편은 수면 스타일이 달라 편안한 숙면을 위해 각자의 침대를 사용하기로 했어요. 무조건 수납이 되는 침대여야 했고, 방 사이즈를 고려한 작은 싱글 침대여야 했습니다. 그 조건에 정확히 부합하는 것이 이케아 노르들리 수납 침대였어요. 꽤 튼튼하고 수납도 넉넉한 데다 디자인도 깔끔해서 참 맘에 드는 침대입니다.

창밖으로 보이는 푸른 풍경이 참 좋은 여름의 침실이에요.

매트리스도 침구도 각자의 취향에 따라 따로 사용 중입니다. 전에는 퀸 사이즈 침대에서 순심이까지 셋이 자느라 불편하고 비좁았는데, 이젠 모두가 평화를 찾았어요.ㅎㅎ

겨울에 침구가 바뀌면 이렇게 포근한 무드로 변신하곤 한답니다.^^

침대 밑의 한 쪽 벽엔 옷장을 놓았어요. 붙박이장을 맞추려고 했는데 공간 사이즈가 애매하다며 여러 업체에서 퇴짜 맞은 후 이케아에서 픽한 옷장이에요! 내구성이 아주 훌륭하진 않지만 디자인도 깔끔하고 은근히 수납공간도 알차서 만족하며 사용 중입니다.
2층 작업실

침실 바로 옆에는 약 두 평 가량 되는 아주 작은 비밀 공간이 있답니다.

바로 저희 남편의 '로망방'이에요. 어디엔가 콕 박혀서 생각할 시간이 많이 필요한 남편을 위해 작지만 남편만을 위한 감옥(?) 같은 공간을 짜 넣었는데요, 한쪽 벽에 커다란 티브이를 놓고 영화도 보고 게임도 하며 행복해하는 남편을 볼 때면 만들어주길 아주 잘 했다는 생각을 합니다.
2층 복도

복도엔 옷장 겸 화장대로 사용하는 수납장이 있어요. 결혼할 때 엄마가 그릇장으로 선물해 주신 건데, 만듦새가 좋아서 여태 튼튼하게 잘 살아남아 있답니다. 이젠 나름의 세월과 손때를 타고 이리저리 찍히고 지저분해졌지만 함께한 세월의 흔적이 더해지니 더욱더 애정이 가는 가구예요.^^
2층 화장실

1층과는 또 다른 무드의 2층 화장실입니다. 작은 집이다 보니 공간들에 포인트를 줄 수 있는 컬러 플레이를 하면 재미있는 요소가 될 것 같아 1층 화장실에 이어 색다른 시도를 해봤어요. 결과적으로는 화장실 갈 때마다 기분이 좋아져서 매우 만족스럽습니다.^^

전면에는 LED 거울을 설치했어요. 아파트에서 늘 사용하던 커다란 거울이 달린 상부장과는 다른 느낌을 주고 싶었습니다. 욕실 용품 수납은 거울 옆쪽으로 슬림한 상부장을 달고, 하부장이 있는 세면대를 설치하여 넉넉히 소화하고 있어요!

우리 집 화장실과 잘 어울릴 것 같다고 선물 받은 샤워기와 호스예요! 타일 컬러와 찰떡으로 잘 어울려서 보기만 해도 상큼해지는 아이템입니다.

복도 저편에는 옷방이 있습니다. 옷방보다는 옷 무덤이라는 표현이 더 어울리겠네요.. ㅎㅎ
2층 옷방

작아서 한 화면에 담기지 않는 방이에요.ㅎㅎ 오늘의집에서 찾은 업체에서 드레스룸을 시공했는데 가성비가 매우 만족스러워 아주아주 추천합니다!

드레스룸 안쪽엔 세탁실이 위치하고 있어요. 기존에 사용하던 18kg짜리 세탁기가 들어가지 않아 세탁실 공간에 맞춰 세탁기를 줄였....답니다. ㅎㅎ 앵글을 별도로 셀프 설치하여 건조기와 직렬로 사용 중이에요!
외관


처음엔 적 벽돌이었다가 청고 벽돌로 결정을 바꾸고 마지막엔 백고 벽돌로 최종 시공된 고민 많았던 외관입니다. 살아 보니 관리도 쉽고 때가 타도 잘 티 나지 않는다는 점이 큰 장점이에요! 저희 가족끼리는 하얀 벽돌집이라 부르고 있습니다. :)


완공 후 건물만 휑하니 두 동 있던 저희 집은 손수 잔디와 벽돌을 깔며 가족들의 피 땀 눈물로 많은 변화를 겪었어요. 가족들의 차를 모두 주차할 만한 넓은 공간이 필요해서, 집 뒤편은 전부 주차공간으로 사용하고 있습니다.


정면에서 왼쪽이 저희 집, 오른쪽이 부모님 댁이에요. 서로 3초 컷으로 왕래하고 있답니다! 요즘 비가 잦아서 잔디를 못 깎았더니 아주 무성하게 자라났네요. ㅎㅎ


색다른 주택 라이프

주택에 살게 된 후 삶의 많은 부분들이 바뀌었습니다. 일단 마당에서 자유롭게 뛰노는 저희 집 댕댕이를 볼 때가 가장 행복한 순간 중 하나예요!


마당에서 꽃과 식물을 가꾸는 일도 꽤나 큰 즐거움입니다. 아직 많이 서투르고 엉성하지만 세월이 지나 풍성해질 n년 차의 정원을 꿈꾸며 책과 유튜브로 열심히 공부하는 중이에요! :)


한낮의 햇살과 해 질 녘 노을이 오롯이 느껴지는 것 또한 참 좋습니다.


이따금씩 밤의 불멍과 함께하는 마시멜로 구이가 새로운 즐거움이죠! 전 캠핑을 즐기지 않아 잘 알진 못하지만, 이런 낭만을 즐기기 위해 캠핑하는 건가 싶기도 하고요.ㅎㅎ


전원생활에서 가장 필요한 건, 그 어떤 것도 아닌 '부지런한 나'라는 말이 있잖아요! 전 선천적으로 부지런한 사람은 아닌지라 주택살이에 맞는 사람이 되기 위한 연습을 꾸준히 하고 있습니다. 특히나 요즘 아침형 인간이 되기 위해 부단히 노력 중이지만 잠과의 싸움은 여전히 쉽지 않아요.ㅎㅎ

배롱나무가 싱그러운 한여름의 저희 집 풍경이에요. 정원의 푸르름도 얼마 안 있으면 사라지고, 단풍이 들고 곧 겨울이 오겠죠.
마치며

집을 짓기로 결정 했던 그 순간부터 저에게 집이란 편안함과 따뜻함 그 이상의 의미는 없었어요. 부모님이 곁에서 편안하고 건강하셨으면 했고, 남편과 저를 비롯한 우리 집에 발을 들일 모든 사람들이 이곳을 따스한 공간으로 느끼고 기억해 주었으면 했습니다. 그래서 집 이름을 온온재로 지은 이유이기도 해요.
전원주택이다 보니 도심의 아파트만큼의 부동산 차익이나 재산 가치를 기대할 수 없기에 주변에서 우려의 목소리를 듣기도 했습니다. 한동안 집값이 치솟던 시기라 더더욱 그랬던 것 같아요. 그 일을 계기로, 누군가 무엇을 하려 할 때 걱정보다는 응원의 말을 먼저 해줘야겠다는 다짐을 하게 되었어요. 주변이 시끄러울수록 지금 할 수 있는 최선의 삶의 가치를 찾는 것에 더더욱 집중했습니다. 앞으로도 타인의 속도에 맞추지 않는 우리만의 라이프스타일을 만들어 가려고요.
아마도 그 시작이 집을 짓는 일이었고, 그렇게 전과는 다른 삶의 속도로 다른 행복들을 누려가는 중입니다. 사계절이 오롯이 느껴지는 절기, 비 맞아 촉촉해진 풀과 흙의 내음, 뜨거운 햇빛의 냄새를 느끼면서요. 주택 살이를 고려 중이지만 망설이시는 분들이 조금 더 관심을 가져보셨으면 하는 마음에서 긴 이야기를 하게 되었어요. 기존과는 다른 삶에서 미처 몰랐던 새로운 가치를 깨닫게 되는 즐거움을 누리시길 바랍니다. :)

