
‘… 왜 남들은 고향을 버릴까. 나는야 흙에 살리라, 부모님 모시고 효도하면서 흙에 살리라.’ 고인이 된 가수 홍세민이 불렀던 <흙에 살리라>의 한 구절이다. 흙과 함께 정든 고향을 지키며 살고 싶다는 바람을 노래한 곡으로, 지금도 귀향·귀농의 주제가처럼 불리고 있다. 새만금 지구의 초입에 위치한 군산시 옥구읍 상평리에는 45평형대 목조주택을 새로 지어 노모를 모시며 고향을 지키는 건축주가 있다. 나고 자란 고향집에서 평생 살아오다 바로 옆 대지에 처음으로 집을 지은 초보(?) 건축주를 만나 집과 전원생활에 관한 다양한 이야기를 들어보았다.
글 이형우 기자 | 자료 협조 나무나라
글 이형우 기자 | 자료 협조 나무나라
HOUSE NOTE
DATA
위치 전북 군산시 옥구읍
용도 단독주택
건축구조 경량 목구조
대지면적 803㎡(243평)
건축면적 111.25㎡(33.65평)
연면적 148.62㎡(44.96평)
1층 111.25㎡(33.65평)
2층 37.37㎡(11.31평)
건폐율 13.84%
용적률 18.50%
설계기간 2024년 3월 ~ 5월
시공기간 2024년 7월 ~ 12월
설계 및 시공 ㈜나무나라
1855-1994 www.통나무황토주택.com
MATERIAL
외부마감 지붕 - 프랑스 평기와
외벽 - 세라믹 사이딩
데크 - 합성목재
내부마감 천장 - 옐로우 파인루바
내벽 - 천연대리석 외 도배
바닥 - 원목마루
단열재 인슐레이션
창호 독일 캐멀링
도어 우딘
현관문 살라만더
주방기구 한샘
위생기구 아메리칸 스탠다드
난방기구 가스보일러
DATA
위치 전북 군산시 옥구읍
용도 단독주택
건축구조 경량 목구조
대지면적 803㎡(243평)
건축면적 111.25㎡(33.65평)
연면적 148.62㎡(44.96평)
1층 111.25㎡(33.65평)
2층 37.37㎡(11.31평)
건폐율 13.84%
용적률 18.50%
설계기간 2024년 3월 ~ 5월
시공기간 2024년 7월 ~ 12월
설계 및 시공 ㈜나무나라
1855-1994 www.통나무황토주택.com
MATERIAL
외부마감 지붕 - 프랑스 평기와
외벽 - 세라믹 사이딩
데크 - 합성목재
내부마감 천장 - 옐로우 파인루바
내벽 - 천연대리석 외 도배
바닥 - 원목마루
단열재 인슐레이션
창호 독일 캐멀링
도어 우딘
현관문 살라만더
주방기구 한샘
위생기구 아메리칸 스탠다드
난방기구 가스보일러

당초 건축주는 예전 집을 파옥하고 그곳에 새로 집을 지으려 했다. 태어나 줄곧 살아온 집이라서 정이 많이 들었고, 추가 토목공사를 할 필요가 없어 건축비용도 줄일 수 있었다. 하지만 어머니께서 불편함을 비치시자 옆 부지를 형질 변경해 집을 새로 지었다. “우리 집 대지는 시 외곽의 자연부락에 위치한 데다 지대가 높아 경치가 매우 좋은 편입니다. 어머니와 함께 제가 태어난 곳 바로 옆에서 자연을 즐기며 살아갈 새로운 주택살이가 기대됩니다.”
집을 새로 짓는 데는 3~4년의 준비 기간이 필요했다. 자금 확보를 비롯해 건축박람회 관람, 인터넷 검색 등을 통해 집짓기에 필요한 자료들도 수집해야 했다. 몇 군데 업체와 상담도 거쳤다. 그러다 작년 이맘 때 우연히 TV 광고에 나오는 나무나라의 주택을 보게 됐고, 유튜브 영상을 통해 더 상세한 정보를 얻었다. 이후 예산에 직접 찾아가 주택 모델을 견학했고, 시공 현장도 몇 군데 더 둘러보았다. 그리고 나서 바로 계약을 진행했다. “상담이나 현장 시공 방문을 통해 업체의 전반적인 경영 상태나 신인도, 시공 능력을 확인했고, 제시한 설계도 마음에 들어 큰 이견 없이 계약을 했습니다. 건축주의 요구사항을 합리적 비용으로 최대한 수용하려는 자세에 신뢰가 갔습니다.”
집을 새로 짓는 데는 3~4년의 준비 기간이 필요했다. 자금 확보를 비롯해 건축박람회 관람, 인터넷 검색 등을 통해 집짓기에 필요한 자료들도 수집해야 했다. 몇 군데 업체와 상담도 거쳤다. 그러다 작년 이맘 때 우연히 TV 광고에 나오는 나무나라의 주택을 보게 됐고, 유튜브 영상을 통해 더 상세한 정보를 얻었다. 이후 예산에 직접 찾아가 주택 모델을 견학했고, 시공 현장도 몇 군데 더 둘러보았다. 그리고 나서 바로 계약을 진행했다. “상담이나 현장 시공 방문을 통해 업체의 전반적인 경영 상태나 신인도, 시공 능력을 확인했고, 제시한 설계도 마음에 들어 큰 이견 없이 계약을 했습니다. 건축주의 요구사항을 합리적 비용으로 최대한 수용하려는 자세에 신뢰가 갔습니다.”

심플한 경량 목구조 외관에 중목의 무게감 담아
건축주와 함께 본격적인 주택 탐방을 시작했다. 먼저, 주택 외관은 심플하고 세련된 경량목조 스타일이다. 반면, 내부는 중목구조의 무게감을 담아낸 형태로 완성됐다. 기존에는 통나무 중목구조를 중심으로 한 설계가 인기를 끌었지만, 최근 들어 모던한 디자인을 선호하는 건축주들이 늘어나면서 시공비는 절감하면서도 중목의 따뜻한 분위기를 느낄 수 있도록 경량목조 구조에 원목 기둥과 보, 서까래를 더해 실내를 구성하는 방식을 도입한 것이다.
외장은 내구성과 화재에 강한 소재를 사용해 목조주택의 약점을 보완했고, 블랙 & 화이트 컬러 조합으로 현대적인 감각을 더했다. 내부는 건축주의 자연을 향한 애정이 담기도록 온화한 분위기의 목재와 고급스러운 대리석을 조화롭게 매치해 자연 속 편안함과 도시적인 세련됨이 공존하는 공간으로 완성했다.
한편, 이 주택에서 가장 눈에 띄는 공간은 2층에 마련된 약 9평 규모의 테라스다. 시야가 탁 트인 이곳은 일상 속에서도 자연을 가까이 두고 사색과 여유를 즐길 수 있는 특별한 장소로 설계됐다.
건축주와 함께 본격적인 주택 탐방을 시작했다. 먼저, 주택 외관은 심플하고 세련된 경량목조 스타일이다. 반면, 내부는 중목구조의 무게감을 담아낸 형태로 완성됐다. 기존에는 통나무 중목구조를 중심으로 한 설계가 인기를 끌었지만, 최근 들어 모던한 디자인을 선호하는 건축주들이 늘어나면서 시공비는 절감하면서도 중목의 따뜻한 분위기를 느낄 수 있도록 경량목조 구조에 원목 기둥과 보, 서까래를 더해 실내를 구성하는 방식을 도입한 것이다.
외장은 내구성과 화재에 강한 소재를 사용해 목조주택의 약점을 보완했고, 블랙 & 화이트 컬러 조합으로 현대적인 감각을 더했다. 내부는 건축주의 자연을 향한 애정이 담기도록 온화한 분위기의 목재와 고급스러운 대리석을 조화롭게 매치해 자연 속 편안함과 도시적인 세련됨이 공존하는 공간으로 완성했다.
한편, 이 주택에서 가장 눈에 띄는 공간은 2층에 마련된 약 9평 규모의 테라스다. 시야가 탁 트인 이곳은 일상 속에서도 자연을 가까이 두고 사색과 여유를 즐길 수 있는 특별한 장소로 설계됐다.


목조 감성과 쾌적함을 강조한 실내 구성
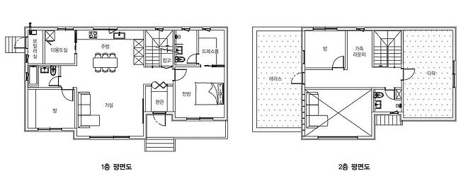
실내는 기능성과 따뜻함 그리고 자연광의 흐름이 조화를 이루는 구조로 구성됐다. 1층은 가족의 일상과 교류가 자연스럽게 이루어질 수 있도록 거실-주방-식당이 하나로 연결된 열린 구조이다. 중심 공간인 거실과 주방은 중목구조의 기둥과 보가 노출돼 있어 공간에 깊이와 따뜻함을 더하며 목조주택 특유의 감성을 극대화한다.
창호는 채광과 조망을 모두 고려해 설계됐다. 특히, 남측을 향한 거실과 식당 쪽에는 큰 창을 배치해 하루 종일 풍부한 자연광이 들어오며, 실내에서도 외부 풍경을 감상할 수 있는 개방감을 제공한다. 거실과 연결된 전면 창은 외부 마당과 시각적으로 연결되며, 실내와 자연을 부드럽게 이어준다.
주방은 중앙에 위치하면서도 양측에 창이 있어 환기와 채광이 모두 원활하다. 요리하면서도 바깥의 자연을 바라볼 수 있는 구조다. 동선의 흐름 또한 자연스럽고 효율적이다. 좌측에는 다용도실, 욕실, 보일러실 등 실용적인 공간을 한 군데 모아 편의성을 높였다. 이 공간들 역시 적절한 크기의 창을 통해 자연광과 환기를 확보해 쾌적한 사용이 가능하다.
실내는 기능성과 따뜻함 그리고 자연광의 흐름이 조화를 이루는 구조로 구성됐다. 1층은 가족의 일상과 교류가 자연스럽게 이루어질 수 있도록 거실-주방-식당이 하나로 연결된 열린 구조이다. 중심 공간인 거실과 주방은 중목구조의 기둥과 보가 노출돼 있어 공간에 깊이와 따뜻함을 더하며 목조주택 특유의 감성을 극대화한다.
창호는 채광과 조망을 모두 고려해 설계됐다. 특히, 남측을 향한 거실과 식당 쪽에는 큰 창을 배치해 하루 종일 풍부한 자연광이 들어오며, 실내에서도 외부 풍경을 감상할 수 있는 개방감을 제공한다. 거실과 연결된 전면 창은 외부 마당과 시각적으로 연결되며, 실내와 자연을 부드럽게 이어준다.
주방은 중앙에 위치하면서도 양측에 창이 있어 환기와 채광이 모두 원활하다. 요리하면서도 바깥의 자연을 바라볼 수 있는 구조다. 동선의 흐름 또한 자연스럽고 효율적이다. 좌측에는 다용도실, 욕실, 보일러실 등 실용적인 공간을 한 군데 모아 편의성을 높였다. 이 공간들 역시 적절한 크기의 창을 통해 자연광과 환기를 확보해 쾌적한 사용이 가능하다.




우측의 안방은 드레스룸과 전용 욕실이 함께 구성된 독립적인 구조로, 사용자의 프라이버시와 일상 속 편리함을 극대화한 설계가 돋보인다. 하루의 시작과 마무리를 여유롭게 할 수 있도록 ‘침실-드레스룸-욕실’로 이어지는 흐름이 자연스럽게 연결돼 있어 외부 공간을 거치지 않고도 개인적인 생활 루틴을 쾌적하게 유지할 수 있다.
전체적으로 1층은 기능적인 동선과 따뜻한 재료, 자연광이 어우러진 실내 구성을 위해 설계됐으며, 주거의 쾌적함과 감성을 만족시키려 노력한 게 드러나 보인다.
전체적으로 1층은 기능적인 동선과 따뜻한 재료, 자연광이 어우러진 실내 구성을 위해 설계됐으며, 주거의 쾌적함과 감성을 만족시키려 노력한 게 드러나 보인다.




2층 테라스, 힐링 공간이자 주택의 매력 포인트
2층은 가족의 휴식과 여유를 위한 공간으로 구성돼 있다. 오픈 천장으로 계획돼 있어 1층의 거실이 내려다보이며, 천장의 서까래와 보를 통해 중목구조의 웅장한 구조미를 한눈에 감상할 수 있다.
앞서 언급한 테라스는 아침 햇살을 받으며 커피 한잔을 즐기거나, 노을을 감상할 수 있는 이상적인 힐링 공간으로 완성됐다. 이곳은 건축주의 자연을 향한 애정이 담긴 공간으로, 실내에 머무르면서도 외부 풍경과 자연을 온전히 누릴 수 있도록 계획했다.
건축주 아내가 설계 시부터 요청한 서재는 2층 중앙에 배치돼 다른 생활공간과 적절히 분리돼 있어 조용하고 방해받지 않는 환경을 유지하고 있다. 벽면 일부는 책장이나 수납공간으로 충분히 활용할 수 있도록 여유 있는 크기로 설계됐고, 목재 특유의 따뜻한 분위기 덕분에 공부나 업무 중에도 마음이 차분히 가라앉는 느낌을 준다.
욕실도 함께 구성돼 있어 2층에서도 생활의 편의성을 높였다. 전체적으로 조용하고 독립적인 휴식공간의 성격을 가지면서도, 1층과의 시각적 연결이 공간에 생동감을 더한다.
2층은 가족의 휴식과 여유를 위한 공간으로 구성돼 있다. 오픈 천장으로 계획돼 있어 1층의 거실이 내려다보이며, 천장의 서까래와 보를 통해 중목구조의 웅장한 구조미를 한눈에 감상할 수 있다.
앞서 언급한 테라스는 아침 햇살을 받으며 커피 한잔을 즐기거나, 노을을 감상할 수 있는 이상적인 힐링 공간으로 완성됐다. 이곳은 건축주의 자연을 향한 애정이 담긴 공간으로, 실내에 머무르면서도 외부 풍경과 자연을 온전히 누릴 수 있도록 계획했다.
건축주 아내가 설계 시부터 요청한 서재는 2층 중앙에 배치돼 다른 생활공간과 적절히 분리돼 있어 조용하고 방해받지 않는 환경을 유지하고 있다. 벽면 일부는 책장이나 수납공간으로 충분히 활용할 수 있도록 여유 있는 크기로 설계됐고, 목재 특유의 따뜻한 분위기 덕분에 공부나 업무 중에도 마음이 차분히 가라앉는 느낌을 준다.
욕실도 함께 구성돼 있어 2층에서도 생활의 편의성을 높였다. 전체적으로 조용하고 독립적인 휴식공간의 성격을 가지면서도, 1층과의 시각적 연결이 공간에 생동감을 더한다.



건축주에게 이곳 주택은 아직도 미완성이다. 가장 갖고 싶었던 거실의 음향 시스템은 설치하지 못했고, 정원을 가꾸는 작업도 한창이다. 그래도 아쉬움보다는 설렘이 크다. “내 집을 짓는 것처럼 진심으로 일을 해준 업체 대표와 직원들 덕분에 좋은 집을 지었으니 부족한 부분들은 이제 우리가 채워야죠. 전원에 살면서 집을 완성해 가는 것은 도시나 아파트에서는 쉽게 누리지 못하는 커다란 기쁨이니까요.”
