
윗담, 아랫담 집
“공간을 어떻게 열고 닫아야 하는가?”
프라이버시를 보호하면서도 개방감이 느껴지는 집을 위해 중정과 담장을 활용한 건축가. 담장을 건물과 일체화함으로써 공간과의 적극적인 상호작용을 꾀했다. 위아래로 나뉜 담은 시선 차폐뿐 아니라 창고, 진입 동선 유도, 공간의 방향성 부여 등 다양한 쓰임을 가진다.
조경 요소와 어우러진 수공간은 중정에 갤러리의 성격을 부여하는 동시에 색다른 개방감을 형성하고, ㄷ자 배치로 길어진 동선은 내부 벽을 갤러리월로 치환하기 위한 선택이다.지하층부터 1, 2층과 다락으로 구성된 내부는 부모와 자녀 공간의 독립성을 충족하는 데 집중했다.

닫힌 대지
각종 편의시설과 인프라가 구축된 아파트는 우리나라에서 제일 보편적이고 효율적인 거주 형태다. 그럼에도 아파트가 아닌 단독주택을 선택하는 사람들에게는 주택에 대한 로망이 있을지 모른다.
언제든지 자연을 느낄 수 있는 테라스와 활짝 열린 넓은 정원, 각기 다른 모습의 개성적인 외관들은 확실히 아파트에서 찾아볼 수 없는 주택만의 고유한 매력이 있지만 현실에선 도시계획의 밀도 높은 구획으로 단지에 모인 수많은 집이 각자의 프라이버시를 지키기 위해 사방이 닫힌 폐쇄적인 형태로 들어선다.
경기도 성남시의 단독주택단지.
도로와 마주한 면들도 그 너머에 이미 집이 들어섰거나 신축될 예정이었으므로 사방이 막힌 상황이나 마찬가지. 게다가 대지의 숨을 터줄 수 있는 커다란 녹지도 인접 대지의 주택에 가려 보이지 않았다. 이런 환경은 건축주뿐 아니라 이웃 주민의 프라이버시에 대한 대응은 물론, 닫힌 대지에 개방감을 확보해줄 해답을 요했고, 이 외에도 ‘프라이버시 보호’, ‘자연적인 휴식 공간’, ‘갤러리로도 활용 가능한 공간’이라는 건축주의 요청도 고려해야 했다. 계획은 평지에 가까운 전면 도로와 약 2m의 높이 차로 경사가 존재하는 우측 도로를 활용하여 차량 진입과 도보 진입의 동선을 분리하는 데서 시작했다.

ㄷ자 배치
대지의 도시적 맥락과 건축주의 요구를 고려한 결과, ㄷ자 배치가 가장 자연스러운 모습이라고 보았다. 주변을 신경 쓰지 않고 마음 편히 휴식할 수 있는 공간 구성이 가능한 데다, 면적 대비 가장 긴 동선으로 갤러리 월을 디자인하여 단순 주거 공간이 아닌 갤러리로도 기능하는 집을 실현할 수 있었다.

윗담, 아랫담
“주거 공간을 어떻게 열어주고, 어떻게 닫아줄 것인가?” 이 대지에서 우리가 마주한 제일 중요하고도 어려운 질문이었다. 마치 감시 카메라처럼 사방에 도사린 주변 시야를 피해 프라이버시를 보호하기 위해서는 결국 중정을 둘러싼 형태가 최선의 선택이었다. 이 때문에 내·외부의 프라이버시 문제를 모두 해결하면서도 중정형 주택이 가진 폐쇄성이라는 한계를 극복해야 하는 과제가 주어졌다.
우리는 담장(Wall)이라는 건축 요소를 활용하기로 했다. 이때 담장이 단순히 시선을 차단하기 위한 오브제로 기능하는 것이 아니라, 건물과 하나 된 건축 요소로 인지되게끔 디자인하였다. 건물과 일체화된 담은 휴먼 스케일이 아닌 건축 스케일 속에서 수직 레벨에 따라 아랫담, 윗담으로 나뉘며 각기 다른 기능으로 각 공간이 요구하는 다양한 이슈에 대응한다.



지하와 1층에 위치하는 아랫담은 1차적으로 창고라는 실용적인 기능을 수행하는 동시에 앞집의 시야를 막는다. 또한, 시각적으로 사면이 막힌 건물에서 출입 동선을 유도하는 가이드라인이 되어준다.
건물 중심에서 바라보았을 때, 윗담과 아랫담이 중첩되며 만들어내는 공간의 깊이감은 중정의 개방감을 극대화시켜 ㄷ자 배치의 답답함을 해소해준다. 처음부터 고민했던 이웃과의 프라이버시에 대한 ‘어떻게 닫아줄 것인가‘ 와 중정형 건물의 개방감 확보를 위한 ’어떻게 열어줄 것인가‘ 라는 2개의 질문을 모두 해결하는 최선의 건축적 해결책이다.






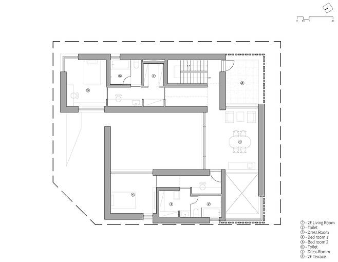
2층과 다락으로 구성된 윗담은 외부 시선을 차단해주는 기본적인 기능뿐만 아니라 두 자녀 사이의 프라이버시 보호를 실현하는 핵심적 건축 요소이다. 같은 높이에 위치하지만 윗담을 기준으로 나뉜 자녀 공간은 각각 한옥의 사랑채, 안채와 유사하다.
모든 시선이 내부에서 대지 바깥을 바라보는 아들의 공간은 한옥의 ‘사랑채’처럼 외부를 향해 적극적으로 열려있고, 보다 안쪽에 위치한 딸의 공간은 한옥의 ‘안채’와 같이 내향적 구조를 가진다. 두 자녀 모두 자신의 공간에서 즐길 수 있는 자연 풍경을 제공하는 동시에 서로 다른 방향성을 부여함으로써 시선의 간섭을 완벽하게 차단해 프라이버시 문제를 해결하였다.








중정과 수공간
건물 중심에 위치해 실내에서 다양한 뷰로 조망 가능한 중정은 집의 분위기를 결정하는 메인 공간이었기에, 이 집이 가진 건축 언어와 비슷한 결을 부여해 공간의 통일성을 유지했다. 수공간은 이곳을 갤러리로도 사용하고 싶어 하는 건축주의 요구와 중정형 건물에서 최대한의 개방감을 찾고자 했던 고민에 대응하는 또 다른 건축적 제스처였다. 중정을 가득 채운 물은 주변 모습을 바닥에 비추며 색다른 개방감을 형성하고, 그 자체로 마치 하나의 예술 작품처럼 집 한 가운데에 고요히 자리 잡아 갤러리와 같은 공간감을 선사한다.


스케일을 고려한 입면
대지의 높이차로 인해 완전히 묻히지 않은 지하 1층은 보행자에게 마치 지상층처럼 느껴진다. 이로 인해 지상 2층 주택이 보행자 시선에서는 3층 높이의 건물로 읽힌다. 여기에 다락 높이까지 더해져 자칫하면 주택단지의 풍경과 어울리지 않는, 굉장히 높고 부담스러운 건물이 될 수 있었다. 우리는 대지의 맥락을 이해하고 배려하는 건물을 짓고 싶었기에 이 건물이 주변 풍경과 어우러지며 자연스럽게 녹아들 수 있는 방법을 고민했다.
단독주택의 스케일감을 유지하기 위해서는 건물이 거대한 한 덩어리가 아닌 분절된 덩어리‘들’로 느껴져야 했다. 그러나 실제로 형태를 분절시키긴 어려워 입면 디자인을 통해 건물의 스케일감을 세밀하게 조정하였다. 지하 1층과 지상 2층은 빨간 벽돌을, 그 사이의 지상 1층은 회색 벽돌을 사용하는 방식으로 재료의 분리를 통해 1차적으로 공간의 개별감을 강조하였다. 겨우 재료 선택을 달리 했을 뿐이지만 차이는 확연하다. 2층과 다락은 돌출된 동시에 1층 벽으로부터 살짝 떨어져 있어 단순한 분리를 넘어 마치 떠 있는 듯하다. 이로 인해 보행자는 건물을 3층 높이의 덩어리로 인식하지 않고 1~2층 규모로 인식하게 된다.


Beyond the Wall
우리는 사방이 건물로 막힌 닫힌 대지의 맥락을 해석하고 건축주의 요구를 충족시키는 집을 만들고자 하였다. 담장(Wall)은 건축주의 사생활을 보호하면서도 주변을 압도하지 않도록 배려한 건축 언어였다. 벽 너머 도시 맥락 속에서는 이웃의 프라이버시 보호를 위한 장치로, 벽 안의 건축적 스케일 속에서는 두 자녀의 프라이버시 보호와 공간의 깊이감을 만들어내는 장치로 작동하는 담장. 결국 담장은 우리가 만든 건축적인 기준이자, 벽 너머에 존재하는 서로 다른 단위 맥락에서 각각의 요구를 읽고 그에 대응하는 건축적 제스처인 것이다.











건축개요
위치: 경기도 성남시 수정구 창곡동
용도: 단독주택
규모: 지하 1층, 지상 2층
대지면적: 287.30㎡ (86.91py)
건축면적: 143.49㎡ (43.41py)
연면적: 456.02㎡ (137.95py)
건폐율: 49.94%
용적률: 87.41%
구조: 철근콘크리트조 + 벽식조
사진: texture on texture
시공: 장원준
설계: 코드아키텍츠 건축사사무소 / 02-541-8103
──
에이플래폼
대한민국 건축가가 전하는 건축이야기