
안녕하세요. 냥이와 가드닝을 좋아하는 두 아이의 엄마인 저와 남편 4식구가 살고 있는 행복하우스를 소개해 보려고 합니다. 결혼 후 줄곧 아파트에서만 살다가 단독주택으로 이사 오는 것은 그리 쉬운 결정은 아니였어요.
아파트의 편의성 주변 인프라 등의 장점들을 단독 주택에서는 포기해야 한다고 생각해서 저는 반대하였지만 남편의 끝없는 설득으로 인하여 한번 구경해보자는 마음으로 왔다가 둘러보고 나서 바로 계약까지 하게 되었네요.
제가 살고 있는 주택 단지는 주변이 아파트로 둘러싸여 있으면서도 단지 양 옆으로 소 공원이 있어서 아파트 상권을 이용하면서 동시에 자연과 가까운 삶을 누릴 수 있는 곳이에요. 지금은 이사 온 지 언 1년이 지났고 아이들이나 저희 부부 모두 너무 만족하며 살고 있습니다.
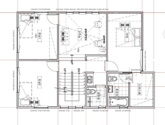
도면
1층 평면도

우선 저희 집 도면을 보여드릴게요.
2층 평면도

다락 평면도

저희 집은 나무로 지어진 집이고 일반적 타운하우스(주택단지) 분양과는 다르게 내부 설계와 자재의 일부분 변경이 가능해서 저희 가족 라이프에 맞게끔 변경을 했어요.
인테리어는 예쁨과 실용성 비용적인 부분 그 중간점을 선택하려 노력하였고 전체적으로 화이트 +우드 컨셉으로 가려고 했는데 하다보니 산으로 흘러간 부분도 있긴 합니다.^^
현관

먼저 저희 집 현관입니다.양개형중문과 신발장이 보이는 깔끔한 느낌의 공간이에요. 보통 현관 바닥 타일과 거실 타일을 일체감 있게 동일한 타일로 선택하나 저는 신발이 닿는 바닥 타일 청소하기가 번거로워서 좀 더 어두운 색상으로 선택하였어요. 예쁨에는 늘 수고가 따르는 법이니 과감히 포기를 선택했네요.^^

중문으로 들어서기 바로 직전 양옆으로 각 각 슬라이딩 도어가 있어요. 오른쪽 문을 열면 세면대로 바로 연결되고 왼쪽문을 열면 바로 이 곳, 계단 밑 작은 창고가 있는데 정말 실용적인 공간이에요.

저는 밖으로 물건들이 나와 있는 것을 좋아하지 않아서 이 곳에 청소기도 보관하고 안쪽으로는 행거를 두어 겉옷이나 아이들 가방 모자 등 잡동사니를 수납할 수 있도록 했어요.
전에 살던 아파트에서 외출하고 돌아오면 옷이며, 가방이며, 거실에 뒹구는 모습이 싫어서 원래 보일러실이었던 이 공간을 창고로 변경했는데 정말 잘한 선택이었던 것 같아요.
주방

저희 집 주방은 대면형 11자로 배치하여 주방에서 거실을 통해 마당까지 보이는 구조로 설계하였어요. 아일랜드 주방 길이가 4m 가까이 나오는 비교적 큰 주방을 갖게 되면서 주방 가구 선택에 있어서도 고민이 많았어요.

하고 싶은 거 다 하자니 추가 금액이 감당이 안 될 것 같아 고민 끝에 주방 가구는 기본으로 하고 상판에 투자하기로 결정했어요. 주방 가구는 시공사랑 연결된 가구 업체인 에넥스의 EK5(칼라:뉴비엔화이트) 제품으로 시공하였고 상판은 현대 칸스톤 우나 화이트와 파타고니아를 고민하다가 최종 파타고니아로 시공하였어요.
후드는 팔멕천정형빌트인 stella90 제품을 설치하였는데 후드가 시야를 가리는 것이 싫어서 이 제품을 선택하게 되었고 결과적으로는 만족하나 정식 수입업체 통해서 설치했더니 가격이 후덜덜했던 기억이 있네요.^^

사진에서 보면 알 수 있듯이 저희 집 주방에는 두 개의 개수대가(메인 개수대+보조 개수대) 있어요. 메인 개수대는 주로 저희가 먹는 식사의 그릇들을 씻고 보조 개수대는 아기 젖병이나 물통류 아이들 용품을 주로 씻고 있어요.
보통 추가 개수대의 경우 보조 주방에 설치하는 경우가 많으나 이렇게 메인 주방으로 가져오니 활용도가 아주 높아요. 무엇보다 아이들 용품을 분리해서 씻을 수 있으니 위생적이고 급할 때 양쪽에서 사용할 수 있어서 편하기도 하구요.

주방에서 상부장을 설치하지 않은 부분은 소품을 올릴 수 있는 매립형 우드 선반을 목공 단계에서 시공하였어요. 우드 선반은 꼭 하고 싶었던 인테리어 요소 중 하나였는데 너무 만족하며 사용하고 있어요. 선반 폭은 15cm로 시공 요청을 하고 나서 폭을 너무 좁게 했나 걱정도 했는데 사용해보니 소품 올리기에 딱 좋은 사이즈에요.^^

아일랜드 상판 폭을 넓게 만든 이유는 수납 이외에 하나 더 있어요. 지금은 아이들이 어려서 사용하지 않지만 추후 아이들이 크면 이 곳에 하이 체어를 두고 앉아 간단히 식사를 하거나 간식을 먹을 수 있도록 하기 위함이었어요~

요즘 주방은 상부장을 없애는 추세이지만 수납의 효율성까지 고려하여 고민한 결과 냉장, 냉동고 및 밥통을 넣을 꼭 필요한 공간만 상부장을 만들고 부족할 수도 있는 수납 공간은 아일랜드장 폭을 1150mm로 만들어 아일랜드 앞, 뒤로 하부장을 만들어 수납 공간을 확보했어요.

그릇을 보관할 수 있는 서랍장도 꼭 제작하고 싶었는데 드디어 실현을 했네요~ 그릇을 좋아해서 이곳 말고도 추가 서랍장이 더 있답니다.
보조 주방

이곳은 주방 옆쪽으로 자리한 보조주방입니다. 사진에 보이지는 않지만 냉장고와 동일한 삼성 비스포크 키친핏 3도어 김치 냉장고가 들어가 있고 삼성 그랑데 건조기, 세탁기, 생선 그릴, 필립스 에어프라이어, 광파 오븐 등이 있는 공간입니다.
안쪽으로 가스레인지도 있어서 오래 끊이거나 냄새나는 음식, 센 불이 필요한 경우에는 이 곳에서 요리를 하고 있습니다.보조 주방이지만 단 내림을 하지 않고 거실과 같은 레벨로 바닥을 시공하였고 가구나 타일 칼라 모두 깔끔의 진리 화이트와 블랙톤으로 통일하였어요.

주방이 북향인데 북향에서 불어오는 바람이 전체 통풍에도 좋아서 주방 끝 쪽으로 문을 하나 내었어요. 그 문을 통해 보이는 사계절 초록 뷰는 언제나 기분 좋게 만드는 역할을 합니다.
액자를 걸어둔 가벽은 원래 내력벽과 같은 주요 나무 기둥이 있었으나 나무 기둥을 그대로 노출하는 것이 싫어서 가벽으로 만들어 액자도 걸어두고 가벽 뒤로는 식기건조대와 정수기를 숨길 수 있는 공간으로 설계하였어요. 설계 마지막 단계에서 생각지도 않았던 기둥이 주방에 생기면서 고민을 많이 했던 부분인데 가벽을 만든게 결과적으로 잘한 선택인 것 같아요~
다이닝 공간

이 곳은 저희 가족이 가장 많은 시간을 보내는 식탁 공간입니다. 밥도 먹고 아이들과 숙제도하고 게임도 하고 수다도 떨고 우리들의 아지트 같은 곳이지요~

식탁은 라움 세라믹 식탁이에요. 세라믹 식탁의 존재를 알고 나서 몽키우드, 바이리네 등 여러 쇼룸을 다니며 구경해봤는데 원산지에 따라 가격이 천자만별이더라구요. 그러던 중 라움의 쇼룸을 별 기대없이 가 봤는데 제품도 괜찮아 보이고 타사 대비 1/3 가격으로 가성비가 좋아서 안 살 이유가 없었어요.

상판 칼라는 화이트로 선택하였는데 역시 화이트는 어떤 플레이팅과도 어울리는 진리인 것 같아요. 사이즈는 6인용 2100mm로 선택하였는데 4식구 사용하기 넓어서 좋구요.
식탁 의자는 라움에는 맘에 드는 것이 없어서 인터넷으로 서칭하여 따로 구매하였는데 막상 배송받고 보니 저희 집과 어울리지 않아서 헐값에 처분했어요.
지금의 의자는 신혼 때 구매한 원목 식탁과 세트였던 의자인데 비록 세라믹 식탁 다리와 의자 색상이 다르긴 하지만 저희 집 분위기와 잘 어울려서 이 의자로 사용하고 있어요. 가구 단지를 둘러보며 샀던 거라 브랜드도 기억이 나지 않지만 튼튼하고 의자 등받이가 간살로 되어있어 예뻐요.

비교적 큰 주방 덕에 요리할 맛도 나지요~ 작년 크리스마스 기념으로 아이들과 집에서 파티한 날이네요~
거실

이 곳은 중문과 2층으로 가는 계단 쪽 모습입니다. 중문은 영림도어 / 베논 / 칼라PS035로 시공하였는데 작은 칼라칩을 보고 색상을 선택해야 해서 엄청난 고민을 했었는데 설치하고 나니 잘한 선택이다 싶었어요~
커튼으로 가려져 있는 곳은 계단 입구에요. 에어컨, 난방 효율을 위해 커튼을 달았는데 효과가 있어요~ 원래는 원목 간살 슬라이딩 도어를 달려고 계획하였으나 제약 사항이 있어서 커튼으로 변경하였는데 촤르르 딱 떨어지는 커튼이 주는 느낌도 나름 좋더라구요~

이 사진은 1층에 있는 조명은 모두 다 키고 찍은 사진이에요. 조명을 켜니까 분위기가 또 달라 보이네요~ 전 이렇게 공간이 가득 차 있지 않은 느낌을 좋아해요. 전에 아파트에 살 때 둘째까지 출산하면서 온 집안이 아이들 용품으로 가득 차 있었는데 비우고 싶은 마음이 계속 들었어서 그런 것 같아요.

어린 아이 둘과 함께 사는 곳이라 치우기가 무섭게 어질러져서 정돈된 모습을 보기가 어려워요. 그래서 아주 아주 가끔 아이들이 없는 날이면 한 번씩 청소할 의욕이 생겨 청소도 하고 사진을 찍곤 하는데 작년 크리스마스 트리를 몇 시간 동안 설치하고 청소하고 기념으로 찍은 사진이랍니다.
이 사진은 주방에서 거실을 통해 마당까지 보이는 저희 집 1층 구조를 가장 잘 보여주는 사진인 것 같네요.

이곳은 거실 공간이에요~ 큰 통창이 있어서 계절의 변화를 가까이서 느낄 수 있어요~ 창가 앞에 누워 하늘을 올려다보면 최고입니다.

유난히 눈이 왔던 작년 겨울 눈 내리는 밖을 바라보는 아이들이 너무 귀여워서 찍은 사진이에요~

거실에 커튼을 치면 또 아늑한 느낌이 들기도 하구요.

저희 집 소파는 신혼 때 리바트 매장에서 구매한 오래된 가죽 소파에요. 요즘에는 다들 밝은 계열의 패브릭 소파 구매하시던데 너무 예쁘잖아요!
저도 이사 오면서 바꾸고 싶은 마음이 굴뚝 같았지만 소파가 너무 멀쩡하기도 하고 아이 둘 있는 집에서는 패브릭 소파 감당할 자신이 없었어요. 물론 와인 케첩까지 닦인다고 광고는 하지만 오래 방치된 오염은 얼룩이 남는다고 하여 나중에 바꾸는 걸로 결정했네요
실제로 둘째는 아직도 손으로 음식을 먹는 경우가 많기 때문에 온 집안에 손자국을 묻히고 다닌답니다.^^;

거실 소파 옆에도 주방과 같은 칼라의 우드 선반을 만들었어요. 이 곳 역시 주요 나무 기둥이 있었는데 기둥 주변으로 가벽을 만들어 놓으니 거실과 주방의 공간 분리 역할도 하면서 동시에 수납도 할 수 있으니 일석이조인 셈이죠~
멀티룸

이곳은 거실과 멀티룸 사이의 복도 공간입니다. 이 길목에 은은하게 비추는 벽등을 달아 밤에는 이 조명만 켜 두어도 분위기 있는 공간이 된답니다.

이 곳은 멀티룸이라고 부르는 1층의 방이에요. 벽과 문 대신 6연동 도어를 달아 필요에 따라 열거나 닫고 생활할 수 있어요. 방문 수업이 있는 날에는 이 곳에서 수업을 하는데 아이들 수업하는 모습도 볼 수 있으니 좋더라구요.

지금은 알록달록 아이들 용품으로 주를 이루는 곳이지만 아이들이 크면 아늑한 거실 공간으로 꾸며 보고 싶은 마음입니다.

6연동 도어 안쪽으로는 커튼도 설치하여 때로는 손님들 오시면 방으로 활용할 수 있도록 만들었어요. 아이들이 크면 이 멀티룸으로 티비와 소파를 가져오고 거실은 좀 더 넓은 공간으로 활용해 볼 생각입니다.
2층 가족실

2층로 가볼게요~ 2층으로 올라가면 제일 먼저 보이는 이 곳은 가족실입니다.

본래 설계에는 이 곳에 주택의 로망, 1층부터 지붕까지 뚫려 있는 2평 남짓의 보이드 공간이 있었지만 저희 가족은 공간을 넓게 쓰고자 하는 마음에 아쉽지만 보이드 공간을 포기하기로 했어요. 대신 1층 거실의 층고를 좀 더 높이고 동시에 2층 가족실의 천장을 오픈해서 개방감을 주기로 하였습니다.

가족실 전체가 사진 한 컷에 잘 담기지는 않지만 내부 공간이 특이하여 제가 좋아하는 곳이에요. 스텝업 플로어링(STEP UP FLOORING) 구조로 2층 복도와 단차를 두어 공간을 분리했어요. 남편과 밤새 검색하고 고민하여 설계 변경을 한 곳이기도 합니다.

원래 이 곳을 만든 목적은 벽면 한쪽에 프로젝터를 사용할 수 있도록 설계하여 코지한 소파를 두고 온 가족이 모여 영화도 보고 쉴 수 있는 공간으로 만들고자 하였으나 아직 아이들이 어린 관계로 현재는 남편이 재택하는 공간으로 활용하고 있습니다. 언젠가 제가 원하는 공간으로 꾸밀 날이 오겠죠~
2층 부부침실

2층으로 올라오자마자 오른쪽으로 돌면 보이는 부부 침실로 향하는 복도 공간입니다. 비교적 좁은 공간이지만 답답하지 않도록 안쪽으로 침실 메인 창이 보이도록 설계하여 개방감 있어 보이고 우드와 화이트의 조화 헤링본 바닥이 잘 어울리는 깔끔하고 매력적인 공간입니다.

이곳은 저희 부부 침실로 가구는 모두 혼수로 구매했던 앤틱 가구에요. 피어젠 가구 제품이며 마호가니 원목으로 만들어져 튼튼하고 내구성이 좋아 지금까지도 잘 사용하고 있어요.

침실 옆쪽으로 드레스룸이 있지만 수납공간이 부족할 것 같아 침실 한 켠에 붙박이장을 추가로 설치하였는데 역시 수납 공간은 많을수록 좋은 것 같아요~

이 곳은 부부 침실 메인 창에서 보이는 풍경으로 창틀이 마치 액자와 같은 모습이네요. 집과 나무 하늘이 적절히 어우러진 멋진 풍경을 볼 수 있는 곳이에요.
1층 화장실

저희 집은 화장실이 총 3개이나 그 중 두 개는 건식 세면대로 설계하였어요. 건식 세면대는 아이들 있는 집에서 강추 또 강추입니다. 이 곳은 1층에 있는 세면대로 타일은 피아노 타일로 시공하였고 은은한 조명을 좋아해서 벽등을 추가로 달았으며 싱크대장도 우드 느낌 나는 제품을 선택했어요~

세면대 안쪽으로 욕실이 있어요. 공간이 넓지 않아서 샤워부스 칸막이는 조적벽 대신 유리 칸막이로 시공하였습니다.

2층 화장실

이 곳은 2층 세면대이고 타일은 건축 당시 유행하던 테라조 타일로 시공하였습니다. 조명에 따라 공간의 느낌이 달라지는데 이 곳은 그레이 타일과 화이트 거울 조명이 어우러져 시크한 느낌이 드네요~
세면대와 수전은 모두 아메리칸 스탠다드 제품이고 하부장은 에넥스 EK5 캐렌시아 그레이, 상판은 LX하이막스 오로라 그레이 제품입니다

1층과 마찬가지로 세면대 안쪽으로 욕실이 있고 유리 칸막이로 시공하였어요.
2층 아이방1

이곳은 첫째 아이방입니다. 아이가 크면서 옷도 많아져서 한쪽에 붙박이장을 설치하였어요.

한쪽 벽면은 책창으로 채워져 있어요. 아이가 책을 많이 읽었으면 하는 바람에 어렸을 때부터 책을 많이 들였는데 지금은 책이 너무 많아져 감당이 안 되서 더 이상 사지 않고 빌려서 읽어주고 있어요.

아이들 방에는 모두 남향 방향으로 가로로 긴 창을 내었는데 설계 당시 아이들 침대. 책상 배치 및 사이즈를 미리 고려하여 창문 위치를 선정하느라 고심이 많았어요. 아이들 공부방에 너무 큰 창이 있으면 산만해져서 좋지 않다는 글을 보고 창문을 크게 내지 않았는데 지금 생각하면 왜 그랬을까 하는 생각도 드네요.ㅎㅎ
3층 다락

마지막으로 3층 다락 공간입니다. 왼쪽으로 보이는 수납장은 창고 공간이에요. 다락 부분 중 층고가 낮은 부분에 수납장을 설치하여 창고로 쓰고 있는데 아이들이 숨바꼭질할 때 좋아하는 공간입니다.

다락에서 2층 가족실이 내려다 보이는 곳에는 유리난간으로 설치하여 아이들과 소통도 하고 노는 모습을 볼 수 있도록 설계하였어요. 역시 어린 아이들이 있는 집이다 보니 KID-FRIENDLY 공간이 많네요~
마당

저희 집에는 작은 마당이 있는데 딱 관리하기 좋은 사이즈에요. 작은 화단도 있고 잔디도 있어 너무 너무 유용한 공간이에요~

정남향 집이라 햇빛을 가리고자 어닝도 달고 어닝에는 두 아이의 태명을 넣어 만든 인쇄 문구도 추가하였더니 마치 카페 같은 느낌이 들기도 하네요~

더울 때는 어닝 펴놓고 밥도 먹고 이게 바로 홈피크닉이죠~


날씨 좋을 때는 가족들과 함께 바비큐도 해 먹고 불멍도 해 보고,



때로는 아이들의 놀이터 혹은 물놀이 공간이 되기도 하고,


때로는 홈카페가 되기도 합니다. 날씨 좋은 날 이 곳에서 커피 한잔 마시면 스트레스가 쏴악 날아갑니다~^^
마치며

이 곳에 글을 쓰려고 이전 사진을 찾아보고 자료도 다시 살펴보니 설계 당시 많은 고민을 하고 지었던 것 같은데 돌아보니 또 아쉬운 점이 많아요. 온전히 우리가 설계하고 선택할 수 있는 두 번째 집을 짓는다면 정말 잘 할 자신이 있는데 말이죠~
집 지을 때는 막상 들어가는 비용이 많다 보니 하고 싶은 것을 포기하는 경우가 생길 수 밖에 없어요. 하지만 지금 와서 돌아보면 그때가 가장 합리적인 비용으로 원하는 것을 할 수 있었던 때 같아요. 지금은 하고 싶어도 할 수도 없으며 한다 해도 철거 후 재시공하는 비용이 너무 커서 불가능하니까요.
만약 집 건축을 계획하는 분들이시라면 하고 싶은 리스트를 꼭 정리해 두시고 할 건 하자! 라는 조언을 드리고 싶네요~ 여기까지 저희 집 소개를 마치겠습니다. 감사합니다~

