청주 서원구 한옥

건축주 부부는 남편의 공직생활 은퇴 후부터 10여년 동안 한옥 전원주택을 계획했다. 오랜 도시 생활 동안 이사도 많이 다니고 그에 따른 피로감도 많이 쌓였다. 이제는 공기 좋고 물 맑은 곳에 정착하고 싶은 마음이 컸다. 건강도 고려하지 않을 수 없었다. 자연에서 온 소재로만 짓는 한옥을 선택하고 내부 인테리어도 편백나무로만 활용했다. 전통 한옥 고유의 전유물이라고 할 수 있는 구들방도 빼놓을 수 없다.
글 노철중 기자 | 사진 이호재 기자 | 자료 및 협조 황토와나무소리

HOUSE NOTE
DATA
위치 충북 청주시 서원구
용도지역/지구 제1종일반주거지역/지구단위계획구역
건축구조 한옥 목구조
대지면적 494㎡(149.44평)
건축면적 99.63㎡(30.13평)
연면적 99.63㎡(30.13평)
건폐율 20.16%
용적률 20.16%
설계기간 2020년 3월~4월
시공기간 2020년 6월~2021년 6월
건축비용 1천만 원(3.3㎡당)
설계 주신건축사무소 010-3552-5897
시공 황토와나무소리 010-3863-2652
www.황토와나무소리.com
MATERIAL
외부마감 지붕 - 한옥식 세라믹
기와벽 - 왕겨숯 단열벽체(황토와나무소리)
내부마감 벽 - 왕겨숯 단열벽체
바닥 - 숨쉬는 천연장판(명품한지)
단열재 지붕 - 왕겨숯 단열벽체
외벽 - 왕겨숯 단열벽체
내벽 - 왕겨숯 단열벽체
중단열 - 왕겨숯 단열벽체
창호 86_게네오_IFT(레하우)
현관문 자체제작
주요 조명 자체제작
주방기구 자체제작
위생기구 CC-265(대림바스)
난방기구 경동 나비엔

청주 서원구 한옥은 10여 가구가 모여 사는 작은 마을 중간쯤에 위치해 있다. 허름한 가옥이 있는 넓은 대지를 구입해 대부분은 정원으로 꾸미고, 주택은 최대한 대지 뒤쪽에 배치했다. 주변에 예스러운 담장을 세우고 정원 한편에 원두막을 두어 시야가 확 트인 시골의 전경을 느낄 수 있도록 한 것은 순전히 건축주 남편의 아이디어다. 입지 조건은 대전시와 인접해 유리한 편이다.
“나이가 들어도 도시와 너무 멀리 떨어져 지내는 것은 좋지 않다고 생각했어요. 차로 5분만 가면 바로 대전 시내예요. 대전이 고향이기도 하고요. 또 아내의 동생이 같은 동네에 살아요. 나이가 들면 자매들은 서로에게 의지하며 살게 되잖아요. 이곳을 선택하게 된 이유죠.”

대지는 경사가 있어 주택을 세우기 위해 40차 분량의 흙을 쏟아 부어 높여야 했다. 이렇게 기초를 다지고 난 후, 청주 서원구 한옥은 자연 소재만을 사용해 정성스럽게 쌓아 올려졌다. 당연히 골조는 중목 구조재를 사용했다. 황토 벽체 단열은 왕겨숯만 채워 넣어 완성했다. 12cm 정도의 대나무로 된 틀을 짜고 그 안에 왕겨숯을 넣어 굳히는 방식이다. 지붕도 같은 방식으로 단열을 시공했다. 이로써 내·외 단열을 모두 왕겨숯으로만 해결한 셈이다. 이후 외벽은 황토를 발라 마감했다. 내부 인테리어는 편백나무를 사용해 꾸몄다. 현관 한쪽 벽면 전체를 편백나무 신발장으로 짰으며 주방 싱크대, 선반, 식탁도 모두 편백나무로 장식했다.

건축주 부부는 집이 준공된 이후 1년 반 정도를 직접 살았다. 겨울도, 여름도 겪어본 후 든 생각은 단열이 정말 잘 된다는 것이다. 겨울엔 따뜻하고 여름엔 시원하다. 몸이 약간 안 좋은 남편은 한옥 생활 이후 건강을 많이 회복했다고 한다. 그는 “피곤할 때 구들방(황토방)에서 한숨 자고 나면 금방 개운해진다”며 만족감을 나타냈다. 또 외부에서 구경 오는 사람들에게는 “물어보지 말고 직접 살아봐야 안다”고 조언한다며 덧붙여 설명했다.


나무가 아닌 것을 찾을 수 없는 집
현관에 들어서자마자 편백나무 향을 느낄 수 있다. 거실에 들어서면 중목구조가 온전히 드러나는 높은 천장과 정원을 향해 난 넓은 통창을 만나게 된다. 특이하게도 창 아래에, 바깥에 있어야 할 것 같은 툇마루가 내부에 들어와 있다. 건축주 부부는 그 위에 앉아 바깥 정원 풍경을 즐긴다고 한다. 이 아이디어를 낸 사람은 다름 아닌 남편이다. 시공 과정에 적극적으로 참여했으며, 내부 인테리어를 편백나무로 할 것을 제안한 사람도 그이다. 주방 싱크대는 본래 기능을 모두 살리고 위아래 외부 장식은 전부 편백나무로 해결했다. 식탁도 나무로 만들었다. 이 집은 정말 나무로 되지 않은 것을 찾을 수 없을 정도다.

주방 옆으로 난 계단을 오르면 바로 다락이 나온다. 70세를 넘어서도 아직 일을 완전히 놓지 못한 남편의 작업공간이지만 손자들이 놀러 오면 다락은 신나는 놀이터가 된다. 아이들에게는 집 안에서 계단을 오르는 것 자체가 재미난 놀이이고, 또 다른 세상을 접하는 연결고리이기 때문이다. 그는 “이 공간은 손자들이 가장 좋아하는 공간”이라고 귀띔했다. 다락의 또 다른 묘미는 아주 가까이에서 한옥 중목구조를 체험할 수 있다는 것이다. 지붕 바로 아래에 가지런히 드러난 지붕 보들이 장관을 이룬다.


구들방의 완성은 굴뚝
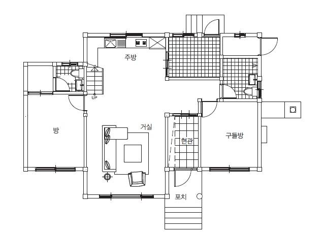
주택 모양은 一자 형태다. ‘방-거실-방’으로 구성됐으며, 이는 실용적이고 간단한 공간 활용을 바랐던 부부의 의견을 담은 것이다. 거실과 맞닿아 있는 부부 침실에는 황토가 들어간 온열 기능까지 갖춘 편백나무로 된 침대 두 개가 사이좋게 놓여있다. 이 나무침대는 특별 제작한 것이어서 더 의미가 있다. 온돌침대는 일반적이지만 ‘온나무’ 침대는 특이할 수밖에 없다. 따뜻한 건강함이 들어있는 침대라고 할 수 있겠다.

이 주택의 백미는 역시 구들방이다. 아궁이에 불을 지펴 방을 따뜻하게 만드는 우리의 전통적인 난방 기법이다. 참나무로 불을 때 한 번 달궈진 구들방은 4~5일 정도는 거뜬히 보낼 수 있다. 구들방을 잘 달구기 위해서는 연기가 잘 빠지는 굴뚝은 필수적이다. 굴뚝을 만들 때 현장에서 기술자들이 머리를 맞대 효과성이 뛰어난 굴뚝을 완성할 수 있었다고 한다. 기압이 낮을 때 연기가 잘 안 빠지는 문제를 해결하기 위해 중간에 밸브를 단 것도 포인트다. 지붕 기와는 전통 점토기와가 아닌 한식 세라믹 기와를 사용해 실용성을 더했다. 바닥은 모두 한지를 사용해 마감했다.

이번에 시공을 진행한 황토와나무소리는 나무를 활용해 자연 소재 그대로의 방식을 사용하는 것을 모토motto로 하고 있다. 가능한 한 석고보드를 포함한 모든 인공적 소재를 배제한다. 서원구 한옥도 마찬가지로 건축주 부부의 요구와 맞아떨어졌다. 1년 반을 직접 살아 본 부부는 만족한 생활을 하고 있으며, 늘 긍정적인 마음을 갖게 되어 몸 건강도 좋아지는 것 같다고 전한다. 자연이 가져다주는 긍정적인 영향력이 청주 서원구 한옥에 그대로 배어있는 듯하다.




