파주 동패동 주택, Courtyard Hou

주택은 가족들이 서로의 존재를 다채롭게 느낄 수 있는 각양각색의 공간들로 구성했다. 공간 어디에서든 자연과 가까이 할 수 있어 쾌적한 생활도 누릴 수 있다. 자칫 단출해 보일 수 있었던 외관은 독특한 담장마감으로 재미있는 인상을 가지게 됐다.
정리 남두진 기자 | 글 이명호(엠엘앤피 건축사사무소 대표) | 사진 이명배 작가 | 자료 엠엘엔피 건축사사무소

HOUSE NOTE
DATA
위치 경기도 파주시 동패동
용도 단독주택
건축구조 철근콘크리트조
대지면적 399.7㎡(120.91평)
건축면적 197.69㎡(50.73평)
연면적 283.23㎡(85.68평/다락 면적산정 제외)
1층 168.22㎡(50.89평)
2층 115.01㎡(34.79평)
다락 23.10㎡(6.99평)
건폐율 49.46%
용적률 61.34%
설계기간 2018년 3월 ~ 2020년 11월
시공기간 2020년 8월 ~ 2021년 8월
설계 엠엘엔피 건축사사무소 02-572-8026
www.mlnparchitects.com
시공 태연디앤에프건설㈜ 02-6341-7761
www.taeyounarchitects.com
MATERIAL
외부마감 지붕 - VM징크
외벽 - 점토벽돌
데크 - 방킬라이
내부마감 천장 - 친환경페인트
내벽 - 친환경페인트
바닥 - 원목마루
단열재 지붕 - 가등급 압출법 보온판
외벽 - 가등급 압출법 보온판
창호 로이 3중 유리
현관문 철재 방화문
주방기구 아메리칸 스탠다드, 도무스
위생기구 아메리칸 스탠다드, 도무스

건축주는 주택에서 가족들과 함께 생활하는 꿈을 오랫동안 가져왔다. 방에 조그마한 텃밭이 붙어있길 원하는 어머니, 가드닝을 좋아하는 아내, 성인이 된 후에도 독립된 공간이 필요한 두 자녀, 그러면서도 가족 간 유대를 지킬 수 있는 공간 등 건축주가 바라는 점들은 소박하고 명확했다. 여기에 더해 집안 곳곳에 햇빛이 가득하면서도 외부시선으로부터 프라이버시를 보호하고 싶어했다.
프라이버시·디자인 둘 다 해결한 담장


마당이 있는 대부분의 단독주택들처럼 이 주택 또한 가족들의 사생활 보호가 가장 중요했다. 담장을 쌓는 법이 가장 쉬운 방법이었지만, 이로 인해 내외부의 시야가 모두 가려져 보호보다는 차단 느낌이 생길 우려가 있었다.
여러 아이디어를 떠올리며 고민한 끝에 벽돌과 벽돌 사이 공간을 비우며 쌓는 방법을 채택했다. 담장에 생긴 작은 사이공간들은 건물 내부에서 외부를 바라볼 수 있는 시야를 확보해준다. 뿐만 아니라 늦은 저녁 건물 안에서 나오는 은은한 불빛은 담장을 통해 어두운 길을 지나는 사람들에게 따스한 조명이 돼준다.


그러나 같은 쌓기가 반복되면 자칫 너무 단조롭게 느껴질 수 있기에 이곳만의 특징을 주고자 했다. 이에 색상이나 종류는 바꾸지 않고 쌓는 방식을 살짝 변형해 벽돌 마감의 일체를 유지했다. 우선 대부분은 장방향으로 일정하게 쌓아올린 후, 2층 일부는 장방향과 단방향을 교차로 쌓아올렸다.
다른 마감보다 살짝 돌출된 단방향 벽돌이 시간의 흐름에 따라 조금씩 달라지는 그림자를 만들어 건물에 입체감을 부여하는 효과를 불렀다. 더불어 1층과 2층의 매스를 분명하면서도 부드럽게 구분할 수 있게 한다.

가족 유대감 다지는 외부공간
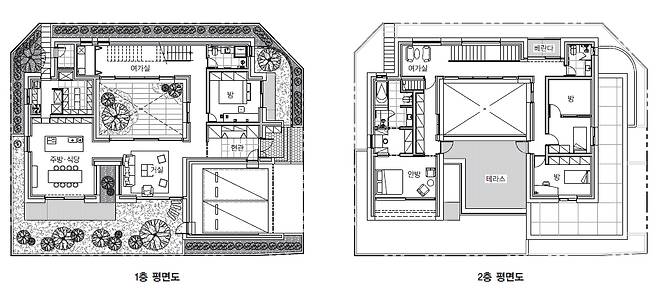
평면은 중정을 중심에 두고 1층에는 공용공간과 어머니 방을, 2층에는 부부방과 자녀방을 배치했다. 현관으로 들어오면 왼쪽에 공용공간과 오른쪽에 계단실로 나뉜다. 시선은 그대로 거실을 지나 가장 안쪽 주방까지 이어지거나 비스듬한 각도에 설치된 창을 통해 중정까지 이어진다. 1층은 이런 시선 계획을 통해 좀 더 공간의 깊이를 더했다.


2층은 1층 공간을 90도 회전시킨 배치로 계단실로 올라오면 부부방과 자녀방으로 동선이 나뉜다. 욕실은 부부방에 포함시키거나 계단실과 가까운 곳에 별도로 하나 더 마련해 부부와 자녀 모두가 사용하는데 불편함이 없도록 배치에 유의했다.
주택은 어머니방 앞, 식당 앞, 부부방과 자녀방 사이에 데크와 테라스와 같은 외부공간을 적절하게 연계함으로써 건축과 자연의 경계를 모호하게 만든 것이 특징이다. 그중 중정은 그 중심 역할을 수행하는 공간이다.

1층 거실에서는 주방과 거실 사이 조그마한 정원, 거실 바깥쪽 마당, 2층 테라스까지 시선이 닿는다. 이런 시선의 교류를 통해 각 공간에 연결성 및 입체적인 시야감을 부여했다. 동시에 서로 다른 위치에 있어도 가족 간 유대를 느낄 수 있도록 유도했다.


주택은 2층 테라스를 기준으로 두 개의 매스가 두드러진다. 각각 외경사지붕과 평지붕을 적용해 그 차이가 더욱 극대화된다. 경사지붕의 형태를 살려 부부방 위쪽은 다락으로 활용했는데, 이는 짐을 수납함으로써 내부를 쾌적하게 정리하기 위한 건축주의 특별 요구사항이다. 이로써 형태와 패턴(벽돌쌓기)으로 단출하면서도 존재감 있는 주택의 인상이 완성됐다. 이곳에서 자연과 가까이, 가족의 돈독함을 지킬 수 있는 건축주의 주택생활을 기대한다.



