파주 서우연가
푸른 숲 너머로 북녘땅이 내다보이는 마을의 언덕에 두 건물, 하나의 다리가 놓인 독특한 집을 지었다. 세 식구의 이름을 딴, ‘서우연가’다.



건축주 오창우 씨는 여러 주택을 경험해봤다. 땅콩주택을 거쳐 타운하우스에서도 살아봤고, 멀리 전라남도 고흥에서는 낡은 시골집을 사 직접 뜯고 고쳐보기도 했다. 남은 것은 집을 지어 사는 것뿐이라고 해도 과언이 아니었던 그는 이제 오래 정착할 집을 짓기로 결심했다. 서우연가가 탄생하는 순간이었다. 그는 신중하게 땅을 골랐다. 그저 직장 다니기에 어렵지 않을 선에서 오롯이 자연과 뷰를 즐길 수 있기를 바랐던 창우 씨의 집 서우연가가 저 건너편에 북녘땅이 보이는 곳에 자리하게 된 연유다. 요즘 같은 정세에 불안하지 않느냐는 물음에 그는 “오히려 개발될 일이 없으니 더 오래 이 자연풍경을 즐길 수 있지 않을까”하고 웃어 보였다.

HOUSE PLAN
대지면적 : 748㎡(226.27평)
건물규모 : 지상 2층
거주인원 : 3명
건축면적 : 172.38㎡(52.14평)
연면적 : 190.02㎡(57.48평)
건폐율: 23.04%
용적률 : 25.40%
주차대수: 2대
최고높이 : 8.2m
구조 : 기초 –철근콘크리트 매트기초 / 벽 – 경량목구조, 외벽 : 2×6, 구조목 + 내벽 : S.P.F 구조목 / 지붕 –2×8 구조목
단열재 : 글라스울 R23, 37(가등급), THK50 비드법보온판 2종1호(가등급)
외부마감재 : 외벽 – 스터코플렉스, 탄화목 합성목재 사이딩 / 지붕 –이중그림자 슁글(징크 두겁 후레슁)
창호재 : 살라만더 82㎜ PVC 시스템창호
에너지원 : LPG
시공 : ㈜하눌주택
설계 : ㈜하눌플랜건축사사무소 박병수
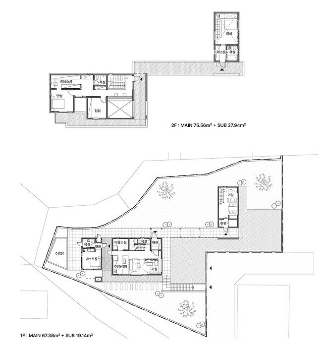
PLAN & SECTION




집은 성토된 270여 평의 땅에 두 동으로 얹혔다. 오창우 씨 부부와 누님이 각각 지내기 위해서였다. 하지만, 마냥 다른 집처럼 나뉜 것은 아니다. 두 집을 잇는 브릿지 덕분이다. 한 채에서 수직으로 분리되는 것보다 프라이버시를 확보할 수 있고, 그러면서 자주 교류하고 어울리기 위해 창우 씨가 떠올린 묘수였다. 본동은 또다시 부부가 거주하는 공간과 별도의 출입문으로 구분되는 게스트룸으로 나뉘는데, 바로 옆에 수영장이 딸려있다. 이 게스트룸을 종종 스테이처럼 외부 손님에게도 공개하는데, 부수입으로 꽤 쏠쏠하다는 후문이다.




주택 본동의 바깥은 1층은 스터코플렉스로, 2층은 간살의 모습을 닮은 탄화목 합성목재 사이딩으로 마감했다. 이 간살 디자인은 창우 씨의 취향이 녹아든 부분 중 하나로 펜스와 브릿지, 현관과 주방, 그리고 드레스룸 등 실내 곳곳에서도 간살의 패턴을 만나볼 수 있다.



실내로 들어서면 시원스레 천장이 오픈된 거실에 들어서게 된다. 거실에는 실내에서도 바깥을 조망할 수 있게 넓은 창을 썼는데, 대신 고성능 독일식 시스템창호를 적용해 단열 취약점을 보완했다. 1층에는 주방과 거실 등 공적 공간이 넓게 놓였고, 2층에 침실과 욕실 등 사적 공간들이 콤팩트하게 놓였다. 이는 여러 주택 유형에서 살며 관리해 본 창우 씨의 경험이 녹아든 부분이기도 하다.




기획 신기영 | 사진 변종석
ⓒ 월간 전원속의 내집 2024년 9월호 / Vol.307 www.uujj.co.kr