
안녕하세요. 집꾸미기에 흥미를 가지고 인테리어를 공부하고 있는 올해 11월에 결혼을 하는 예비 부부 @juana__house입니다.
이집은 저희가 건축 설계부터 시공까지 참여해서 2021년에 준공을 받아 현재까지 변화를 하고 있는 곳입니다. 40평이 좀 넘는 공간에 하나둘 저희 예비 부부의 온기를 채워 나갈 예정입니다.
저희 집은 앞에 공원이 있고 한적한 주거 단지에 있어 날씨가 좋은날엔 산책로에서 산책을 즐기며 온전히 날씨를 느낄 수 있으며 거실에서는 넓은 바다의 지평선이 보이고 주방에서는 한라산의 경치를 볼 수 있어 완벽한 제주도를 느낄 수 있답니다~
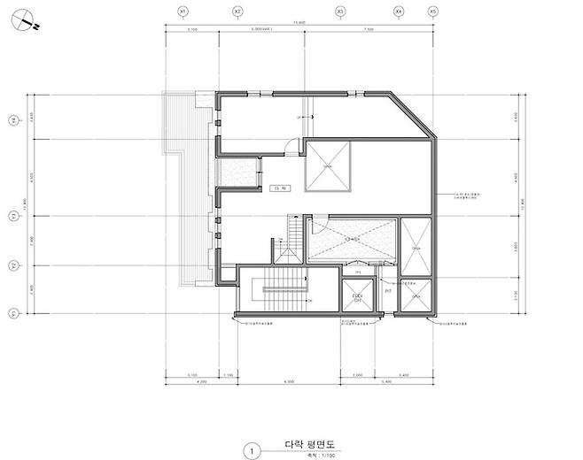
1. 도면

저희 집 평면은 저희의 생활 패턴에 따라 공간을 구획하여 평면을 완성했어요. 안방에서 모든 생활을 하는 저의 취향을 담아 안방에 화장실을 포함하여 넓게 구획하였고 공용부 공간 천정을 개방함으로써 다락과 기준층 공간의 소통감을 주었고 주방과 거실을 길게 하여 공용부를 연결감 있어 보이게 배치했어요.
또 천정의 일부를 개방함으로써 전체적으로 층고를 조금 높일 수 있었고, 현관에서 바라보는 곳에 뚫려있어 처음 집에 오는 사람들마다 모두 마치 갤러리 같다고 하곤 합니다.

저희 집이 깔끔하고 갤러리 같아 보이는 이유 중 또 다른 하나는 전체적으로 걸레받이 마감을 하지 않고 무몰딩, 마이너스 몰딩으로 전체 시공을 해서 벽과 천정이 하나로 깔끔하게 연결되어 공용부 바탕이 깨끗하기에 개방한 천정이 더 돋보였던 거 같아요.
저희 집의 독특한 구조와 예비 신랑의 취향을 가득 담은 주방, 저의 취향이 가득 담긴 거실 그리고 앞으로 저희들의 색깔이 담길 다락까지 소개하겠습니다.
2. 현관

현관에 장을 설치하여 수납을 할 수 있도록 하였고 장식장을 매립하여 각종 향수 및 저희의 취미인 만화까지 전시해뒀어요! 바닥 타일은 그레이로 600*600각으로 시공하여 넓어 보이도록 하였고, 투명한 중문을 설치하여 내부가 보이도록 하였습니다.

현관 장식장에는 출근할 때 챙겨가야 할 차 키가 예쁜 머그컵에 담겨 있고 또 언제든 좋은 향기가 나도록 향에 관련된 제품들과 취미 만화들이 있답니다. ^^

저희 집 현관은 계단 밑 공간을 활용해서 이것저것 놓을 수 있도록 팬트리처럼 사용하고 있어요. 계절에 따라 현관 인테리어도 변하고 있어요. 지금 겨울은 크리스마스 시즌으로 꾸며져 있어요.

현관에서 바라보는 저희 집안 모습입니다. 저 천정이 저희 집 포인트 공간입니다. 중문이 투명해서 뚫린 공간과도 잘 어우러지는 거 같아요. 중문까지 포인트가 되는 느낌이 들어요
3. 거실 Before

처음 준공 완료 후 가구도 아무것도 없는 예비 신랑이 써오던 가구로만 채워져 있던 휑한 공간이었던 거실 모습입니다. 너무 너저분하네요.

주방 거실 인테리어 전인 모습이 하나둘씩 얼른 채워 넣고 싶어지네요.
거실 After

메인 조명이 없이 조명이 필요로 하는 곳은 모두 간접 조명을 설치하여 거실에 따뜻한 색감의 분위기를 주었고 모듈 소파를 두어 언제든 방향을 바꿀 수 있도록 하고 강마루 색감과 비슷한 우드 소파 테이블을 배치해 따뜻한 거실 공간을 구획했어요.
TV는 어느 방향에서도 옮겨 볼 수 있도록 이동식 거치대를 선택해서 쓰고 있어요. 86인치 TV도 안정감 있게 거치되고 한벽을 TV로 고정시키지 않고 사용할 수 있어서 공간에 방해도 되지 않고 좋은 거 같아요. 거실에서 사용해야 하는 자질구레한 것들은 모두 트롤리에 넣어 이동하며 사용하고 있어요.

소파 테이블은 소파와 그리고 거실 분위기에 어울리도록 골라서 낮은 걸로 선택해서 배치했어요. 나뭇결과 색상이 강마루와 비슷해서 전혀 이질감도 안 느껴지고 마치 하나 같아요. 테이블을 생각보다 커서 여기서 가끔 밥도 먹고 야식도 즐기고 식탁처럼 잘 쓰고 있어요. ^^

거실 창을 크게 두어서 사계절을 온전히 느낄 수 있어요. 겨울도 온전히 느낄 수 있습니다.

소파는 모듈 소파를 두고 싶었어요. 제가 평소에 가구배치를 다양하게 하는 걸 좋아해서 가구가 한 곳에만 고정돼서 그 공간이 하나의 구역으로 지정되는 걸 별로 선호하지 않은 편이거든요. 그래서 소파를 진짜 오랫동안 고르고 골라서 제주에서 서울까지 몇 번을 왔다 갔다 하면서 눈으로 보고 만져보고 누워보고 해서 최종 선택해서 2달을 기다린 소파입니다.
제가 이 소파를 고른 이유는 저는 평소에 와식 생활을 즐기는 편이라 어디에든 일단 누워 있는 편인데 진짜 거의 유명한 모듈 소파 브랜드는 진짜 다 찾아가서 누워봤는데 진짜 정말 이 소파는 달랐어요. 눕자마자 와 이거다! 했어요.
몸이 스르륵 촥 감기고 침대보다 더 포근하고 여기서 벗어나고 싶지 않은? 안정감? 편안함을 느꼈어요! 그뿐만 아니라 라운지 소파의 폭이 침대처럼 깊어서 발을 쭉 펴고 누워도 편안하답니다. >< 이 소파는 소재도 색상도 다양한데 저는 오트밀 같은 베이지 색을 선택했어요.
저희 집이 뭔가 우드&화이트의 느낌이라서 거기에 맞춰서 너무 튀지 않고 무난하게 어울렸으면 했는데 너무 잘 선택한 거 같아요. 패브릭 소재 특성상 가죽 소파보다는 이염이나 오염에 약하지만 커버는 세탁이 가능해서 다행인 거 같아요.

아침부터 제주에서 비행기 타고 서울 가서 소파 투어 하던 어느 날 운명처럼 만난 소파! 눕자마자 어머! 이거다!!!! 이거야!!! 했던 순간에 찍은 사진이에요. 와식 생활을 좋아하신다면 이번에 소파를 바꾸실 계획이시라면 잭슨카멜레온에 린 소파! 꼭 체험하러 가보세요~ 추천드려요!

저는 현재 창문 옆에 라운지 소파를 두어서 침대처럼 누워 생활하곤 합니다. 이 소파의 최대 장점이자 단점은 소파가 너무 푸욱~신 해서 사람이 소파에 들어가면 슬라임처럼 퍼질러져요. >< 이런 게 모듈 소파의 단점이자 장점이겠죠?

모듈 소파의 또 다른 장점은 내 맘대로 이리저리 배치하여 기분에 따라 공간을 변화 시킬 수 있는 게 장점이 아닐까요? 아직도 어떤 구조가 좋은지 몰라서 계속 배치해 보는 중이랍니다.

거실에서 안방으로 가는 문은 슬라이드 도어를 시공해서 벽과 문이 어느 정도 일체감을 이루도록 보이게 연출했습니다. 여기서 보시면 저희 집은 무몰딩&마이너스몰딩 시공을 해서 바닥에 걸레받이가 없는 것이 보이실 거예요.
무몰딩에 장점은 몰딩이라는 또 다른 하나의 마감재가 없어서 천정과 벽과 바닥이 끊어져 보이는 것이 없어서 높고 넓은 시야를 확보할 수 있는 게 장점이에요.

저희 집 조명은 다 간접조명으로 되어 있는데요. 거실에 이 부분은 오브제를 위해 조명을 배치한 공간이에요. 지금은 겨울이라서 트리를 배치해서 저녁마다 조명이 트리를 비춰주고 있어요.
계절이 변할 때마다 이곳에는 그에 맞는 예쁜 오브제를 놓을 예정입니다. 트리는 다이소에서 리본을 사서 하나하나 만들어서 다양한 오너먼트들과 같이 꾸몄는데 너무 만족스러운 트리가 됐어요.

날씨가 좋을 땐 거실 창문으로 바로 앞에 푸르른 공원을 보고 가끔 뛰어노는 아이들을 보며 힐링을 하고 있어요.
4. 주방 Before

기존 주방을 철거하고 창도 폴딩도어를 철거했어요. 직접 예비 신랑과 같이 철거를 했답니다.

기존에는 벽 마감이 합지 벽지로 되어 있어 주방공간에는 적합하지 않다고 판단하여 예비 신랑과 의논 끝에 직접 철거부터 도장까지 주방 벽면을 셀프로 시공했어요.
저희 부부 둘 다 건축공학과 출신이라 건축에 관심이 있어 저희 집은 직접 시공해 보자 하여 창문도 기존 창을 철거하고 뒤에 거대한 한라산을 다 담아 볼 수 있는 창으로 변경했어요.
창문 시공도 직접 했는데 시공하다가 예비 신랑은 발가락을 조금 다쳤어요. 식겁했던 경험.. 도장 작업도 퍼티부터 샌딩까지 다했는데 현재는 가까이서 봐도 너무 잘한 거 같아요.

인테리어에 진심인 예비 신랑이 직접 설계해서 이대로 발주를 넣어 시공을 시작했습니다.
주방 After

주방은 요리를 좋아하는 예비 신랑의 취향이 가득 담겨있는 곳이에요. 11자 주방을 배치해 아일랜드 상판을 크게 하여 조리 공간을 확보하고 우드와 화이트로 컨셉을 정하여 주방 인테리어를 했어요.
상부장을 두는 것보다 큰 창을 두어 환기와 풍경을 선택했고, 시야를 가리는 후드보단 매립형 후드를 선택하여 거실과 주방이 시야 가리는 것 없이 소통할 수 있도록 하였고, 상부장이 없는 대신 장을 설치하여 수납의 공간까지 만들어 주었어요.

주방에 점점 살림살이가 생기니 사람의 온기가 느껴지는 거 같아요. 주방 벽 한편엔 저희의 추억이 담긴 사진들로 꾸며놨어요. 요리할 때나 보조주방으로 갈 때마다 보는데 매일 봐도 사진은 질리지가 않고 추억이 새록새록 생각나서 좋은 거 같아요.

중문을 열고 들어오면 보이는 주방과 거실의 모습이에요. 저기 보이는 저 뚫린 천정을 기준으로 주방과 거실이 나누어져 있어요. 주방의 장들도 화이트로 했다면 벽면이 연결감 있어 보여 더 넓은 효과를 주었을 지도 모르지만 저희 집은 공용부가 길게 되어 있어서 주방에서는 이 부분부터는 주방이다!라는 느낌을 주고 싶었어요.
그래서 장을 강마루 색보다는 조금 짙게 하여 우드 톤의 느낌을 강하게 주었어요. 가운데 보이는 방문은 서재 겸 게스트룸 방인데 저 방문은 9mm 문선으로 시공해서 문선의 라인을 슬림 하게 시공하여 깔끔하고 정갈한 이미지를 연출했어요.

식탁 테이블은 2명이 사는 집에는 이 정도 사이즈의 테이블이 좋은 거 같아요. 작아 보이지만 여기서 파티도 하고 작지만 알찬 테이블입니다. 의자와 테이블은 주방 분위기에 비슷한 무드로 배치했어요.

작지만 알찬 테이블에서 이렇게 크리스마스 파티도 하고 즐거운 식사 시간을 가질 수 있어요. 저희 집 식기류는 모던하우스에서 대부분 사는 편입니다.

주방에서 거실을 바라보면 이렇게 시선 가리는 거 하나도 없이 일직선으로 거실이 한눈에 다 들어와요. 저기 푸른 바다도 하늘도 한눈에 다 보여서 요리할 때 심심하지 않아요.

메인 주방 옆 숨겨진 문을 열면 각종 물건을 수납할 수 있는 팬트리와 보조 주방이 나와요. 원래 저 팬트리 공간에 세탁기와 건조기를 타워 형식으로 쌓으려 했는데 상부장이 없어 부족한 수납공간을 만들어 주면 좋을 거 같아서 팬트리 공간으로 구획했어요.

팬트리 공간이 메인 주방 바로 옆에 있어 동선상에도 편리하고 물건도 많이 저장할 수 있어서 좋아요.

보조주방에서는 생선이나 고기 요리를 주로 하고 쓰레기 분리수거도 보조주방에서 해요. 보통은 베란다처럼 사용할 수 있는 공간인데 저희는 강마루로 바닥을 시공해서 편하게 다닐 수 있도록 했어요.
세탁기도 보조주방에 두어 사용하고 있어요. 저희 집은 공기조화 설비를 하여 전열교환기 두고 따로 환기를 하지 않아도 공기가 순환되도록 했어요. 하지만 단점이 전열교환기 장치가 워낙 커서 세탁기와 건조기를 타워 형식으로 사용이 불가해서 건조기는 따로 분리했습니다.

저희 집은 테라스로 나가는 방법이 두 가지가 있는데 하나는 메인 주방에서 나갈 수 있고 하나는 보조주방에서 바로 나갈 수 있도록 되어 있어요. 날씨가 좋아지면 테라스로 종종 나가곤 합니다.
5. 침실

안방에는 사실 별다른 가구가 없어요. 딱 침대 하나 거울 하나 옷장 하나만 두고 잠만 자러 가고 있어요. 현재 안방에 모든 가구는 예비신랑이 예전부터 써오던 가구들이 배치되어 있어요.
침대도 다른 가구도 아직 배치 안 하고 이 모습 그대로 두는 이유는 사실 저의 모든 생활은 안방에서 이루어져요. 그래서 설계 당시에도 안방은 저를 중심으로 설계를 해서 안방과 안방 욕실을 제일 크게 계획하여 시공했는데요.
안방에 창을 크게 두고 창문 쪽 천정을 높인 건 시공 당시 윈도우 시트를 두려고 계획했는데, 아직 안방에 컨셉을 못 정해서 침대만 두고 생활하고 있어요. 하지만 안방에 창이 시원하게 탁 트여있고 앞에 시야를 가리는 건물이 없어서 아침이건 저녁이건 하늘 보기엔 정말 좋아요.

딱 이 부분에 윈도우 시트를 제작해서 배치하려 했는데 이 공간을 윈도우 시트에게 다 주는 것이 맞는가에 대해서 아직도 고민 중에 있어요. 그나저나 하늘은 정말 푸르르죠?

어느 날 오전의 안방의 하늘이에요. 창문이 하늘을 가득 담고 있어서 항상 눈을 뜰 때마다 너무 좋아요. 비가 오는 날도 좋고 눈 와도 좋고 창이 커서 어떤 날씨라도 창밖으로 구경하는 맛이 있어요. 그 맛에 주말 아침에는 안방 침대에 앉아서 하늘 보며 멍 때리고 있어요.
6. 안방 화장실

안방 화장실 도어는 여닫이 도어가 아닌 슬라이드 도어를 설치하였습니다. 여닫이 도어를 설치하면 열고 닫는 공간을 비어두게 되는데 열고 닫는 공간 또한 활용하기 위해 슬라이드 도어를 시공했습니다.

안방 화장실은 컨셉을 호텔로 잡아 언제든 호캉스 분위기를 낼 수 있도록 인테리어를 했습니다. 타일은 그레이 타일로 벽면과 바닥까지 통일하여 시공했습니다. 세면대 밑에 하부장이 있어 욕실에 필요한 모든 것이 하부장에 쏙 숨어 있어요.

욕조와 픽스 창을 크게 두어 족욕할 땐 창밖으로 풍경을 보며 따뜻하게 족욕을 하고 반식욕을 할 땐 블라인드를 내리고 편안하게 반신욕을 즐기고 있습니다. 이렇게 눈이 올 때 족욕하며 창밖을 보면 너무 따뜻하고 안락하답니다.

안방 욕실에도 부분 시공을 진행했습니다. 세면대를 인조대리석으로 하고 싶어 직접 예비신랑이 디자인하고 업체를 선택해 시공을 진행했습니다. 세면대 하지 작업은 시아버지와 예비 신랑이 직접 용접과 설치를 하였습니다. 이 집은 정말 저희 예비 신랑의 손길이 닿지 않은 곳이 없는 거 같아요.

이렇게 예비신랑이 직접 디자인하여 지금의 안방 화장실이 탄생하게 됐습니다.
7. 서재 Before

서재 겸 게스트 룸이에요. 뭐 아무것도 없던 시절인데 정말 아무것도 없네요. ㅎㅎ
서재 After

현재 게스트룸으로 쓰여야 할 공간에는 운동 기구가 차지하고 있어요. 현재는 운동방이 되었지만 사실 아무도 사용하지 않는 전시용 운동기구랍니다. ^^;;

운동방 한편에는 자그마한 또 다른 방이 있는데요. 이쪽은 현재 서재로 쓰이고 있어요. 아직 책장이나 그런 가구들은 별로 없지만 딱 공부만 할 수 있도록 배치했어요.
이곳도 픽스창이 벽면에 쫙 배치되어 있어서 밖을 보며 공부든 일이든 하고 있어요. 저희 집은 햇살이 너무 잘 들어와서 벽 색이 변하지 않도록 임시방편으로 다이소에서 종이 블라인드를 사서 붙여놨습니다. 사실 서재 겸 운동방이 되어있는 이곳은 나중에 생길 아이를 위한 방이라서 별로 꾸며 놓지 않고 진짜 딱 간소하게 필요한 것만 있어요.

여기는 진짜 가끔 진짜 pc를 활용한 뭔가를 해야 할 때만 오는 곳이에요. 그래서 진짜 pc만 갖춰져 있어요. 이 모든 것들도 예비신랑이 전부터 써오던 거 그냥 그대로 놓았답니다. 언젠가 이방의 주인이 될 아가가 생기면 이곳도 활기가 생기고 진짜 아기 공부방으로 예쁘게 변하겠죠?
8. 드레스룸 Before

초반에 드레스룸은 행거를 설치해서 너저분한 형태로 사용하고 있었어요.

수납장도 따로 두지 않고 옷만 주렁주렁 걸어놨었어요.
드레스룸 After

지금의 드레스룸에는 기존 행거를 처분해 버리고 수납장과 벽걸이 행거를 부착해서 매장에 온 것처럼 정리 해놨어요.

벽걸이 행거는 아무래도 벽에 직접 시공하는 거라서 벽을 뚫어야 하는 게 단점이지만 이렇게 시공하고 나니 한눈에 잘 보이고 좋은 거 같아요. 단점은 옷을 너무 많이 걸면 하중 때문에 쳐질 수 있어서 적당히 걸어야 해요. 저희는 덕분에 옷을 덜 살 수 있어서 장점 같네요.

건조기를 드레스룸에 두어서 건조기 돌리고 바로 옷을 정리할 수 있어서 동선이 간편해졌어요. 건조기에 공간 제습 기능도 있어서 습하면 안 좋은 드레스룸에 제습 모드로 돌려서 습기까지 없애주고 건조기 드레스룸에 배치해 보세요. 은근 편하고 좋아요.

드레스룸 특성상 제습과 공기 청정이 중요한데 저희는 드레스룸에 창문도 없고 워낙 규모도 작아서 천정형 제습기를 설치했어요. 스탠드형이 아니라서 공간 차지가 없어서 좋아요.
9. 거실 화장실

거실 화장실은 주로 예비 신랑이 사용하고 있어요. 거실 화장실도 안방 화장실과 똑같이 그레이 타일로 시공하였고 작지도 크지도 않은 딱 적당한 크기에 욕실입니다.

화장실 젠다이를 졸리컷 시공을 하여 마감을 깔끔하게 하였고 화장실에 도기 및 수전 등을 한 브랜드로 통일시켜 조금 더 깔끔하게 인테리어를 했습니다.

단점도 있긴 있어요. 저희가 처음 직접 설계 및 시공에 참여 한 거라 실수도 많아요. 그중 하나는 바로 욕실 문턱이에요. 문턱이 너무 낮아서 실내화 벗고 문 닫는 게 너무 불편해요. 다음에 기회가 생기면 이점을 참고해서 제대로 하려고 합니다.
10. 다락

현관과 드레스룸 사이에는 다락으로 올라가는 계단이 있어요. 이곳을 저는 휴식공간이라고 부르는데 가끔 차 한 잔 가지고 계단에 앉아서 멍 때리고는 합니다.

계단 따라 올라가면 아직 아무것도 없는 저희 집 다락이 나와요. 여기에 운동기구도 두고 처음엔 여기서 많은 것들을 했었는데 지금은 다 정리하고 이렇게 비워뒀어요.

다락에 매번 청소기 들고 청소하기 힘들어서 지금은 로봇청소기한테 다락에 세를 주고 청소를 맡기고 있어요. 저보다 엄청 깨끗하게 주기적으로 청소해 주는데 사람이 잘 안 올라와서 더러울까 하는 걱정 없이 너무 깨끗해요.

여기서 저 창에 길게 보이는 맑은 하늘을 너무 이쁘지 않나요? 여기는 뚫린 공간을 현재 이렇게 유리 난간으로 해놨어요. 하지만 저희가 설계할 때 처음 의도는 네트망을 설치해서 만화방처럼 이 공간을 활용하는 거였어요.
근데 임시로 해둔 유리 난간이 갤러리 같은 느낌을 주어서 철거하기가 아까워서 아이가 생기면 유리 난간을 철거하고 네트망으로 시공해서 그 위에서 만화도 보고 이 공간을 자유롭게 활용할 예정이에요.

다락 속에 다락이라고 할까요? 영화관처럼 활용하려고 스킵 플로어 형식을 응용하여 단을 높여 좌석처럼 활용하고 높은 곳에서 빔을 쏴서 단이 낮은 곳에 스크린을 설치해서 나중에 이곳에서 영화를 보려고 구획한 공간이에요. 여기도 아직 계획대로 활용을 못하고 비워두고 있지만 이제 차근차근 저희의 색을 넣을 예정이랍니다.

다락에서 내려다보는 1층이에요. 아직은 덜 채워져서 허전한 거 같기도 하고 점점 더 온기가 생겨가겠죠?
11. +)Bonus! 신혼의 일상

친구가 집에 와서는 가정집이 아니라 마치 갤러리 한가운데 와있는 느낌이 든다면서 한 컷 찍어서 저에게 보내준 사진이에요. 친구가 이쁜 구도로 저희 집 천정을 찍어서 주니 정말 다른 집 같고 색다르게 느껴졌어요.

이렇게 보니 유리 난간 철거 전까지 많이 사진 찍어두고 기록해 둬야겠어요. 유리 난간 비하인드~ 유리 난간도 시아버지와 예비 신랑이 시공했는데 설치 과정에서 많이 투닥거리면서 설치하느라 제일 힘들었다고 하네요. 정말 손길이 안 닿은 곳이 없는 집이에요.

식물들 물 주고 햇살 좋은 날 햇빛 듬뿍 받으라고 테라스 앞에 두었어요. 저기 보이는 제일 큰 산이 한라산이에요. 주방에서는 한라산이 아주 잘 보여요. 날씨 좋은 날에는 그림을 따로 걸어둘 필요가 없어요.

눈이 많이 오던 어느 날 테라스에 눈이 소복이 쌓여 있어서 문을 열고 눈을 만끽했는데 너무 추웠던 기억이 있어요
마치며

저희가 사회 초년생에 결혼 준비에 인테리어까지 해야 해서 큰돈을 들여 전체적인 인테리어를 못하고 부분 인테리어를 하게 되어서 부분부분 소개 글도 짧고 보여드리는 부분도 별로 없었지만 저희의 애정이 많이 담긴 첫 집을 많은 사람들과 오늘의 집이라는 곳에 소개할 수 있어서 좋은 기회가 된 거 같아요.
오늘의 집을 항상 봐오면서 다른 분들 집 구경할 때마다 나도 여기에 소개해 보고 싶다고 항상 생각해 왔는데 막상 소개하려니 저희 집은 아직 부족한 부분이 많구나라고 느끼지만 앞으로 저희 부부의 색을 채워 나갈 공간이 많아 기대가 되기도 합니다.
저희 집을 구경 와주시고 긴 글을 읽어주셔서 감사합니다. 다들 올해 행복하고 즐거운 나날들을 보내세요. 감사합니다! ^^

