
안녕하세요. 저희는 고양이 3마리와 함께 살고 있는 결혼 3년 차 부부 @gottagohome.official입니다.
결혼 후 처음 신혼집 매매를 결정했을 때 지인들이 아파트를 사라고 얘기했었어요. 그런데 저희는 과한 대출을 감당할 자신도 없었고, 서울을 포기했으니 다른 메리트가 있어야 한다고 생각했죠.
빡빡한 도시 빌딩 숲보다는 창밖으로 계절의 변화를 느낄 수 있는 곳이면서 고양이를 위해 거대한 캣타워 그 자체인 복층으로 된 계단을 원했어요. 고양이 때문에 집을 비울 수 없으니 캠핑하듯 놀 수 있는 테라스도요. 철없고 고집이 가득한 저희 집을 소개합니다 :)
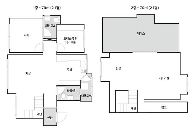
1. 도면

저희 집은 경기도 광주입니다. 대부분 경기도 광주를 떠올리면 복잡하게 개발된 도시라고 생각하더라고요. 사실 저도 50곳 넘게 임장을 다니면서 복잡한 곳이 더 많다고 느꼈어요. 저희가 살고 있는 이 동네는 택지 개발이 되어서 광주 중에서는 가장 질서 있게 지어진 동네에요. 빌라이지만 아파트 단지들과 붙어있어서 기본적인 인프라가 잘 갖춰져 있어요.
집 구조는 복층으로 되어있는데, 조금 재미있는 점이라면 원래라면 방이 되었을 공간에 계단이 있고, 거실과 이어져 있어서 일반적인 20평대 빌라보다는 훨씬 큰 거실을 가지고 있어요.
그리고 2층은 하나의 큰 공간으로 되어있어서 저희가 임의로 침실과 거실로 나눠서 사용하고 있어요. 이 집에서 가장 신기했던 부분은 일반적인 집과는 다르게 창고가 있다는 거예요. 그래서 계절 가전과 생필품을 보관하는 용도로 사용하고 있어요.
2. 인테리어 과정

셀프로 인테리어를 결심했던 가장 큰 이유는 사실 집을 매매하면서 금전적으로 부족했기 때문이에요. 집을 고치는 2개월 동안은 시부모님네에서 살면서 둘이서 조금씩 뜯는 게 시작이었습니다.
거실에 크고 끔찍한(?) 아트월이 있었는데, 보면서 살 자신이 없어서 '이것만은 내가 뜯어야겠다.' 결심했거든요. 하나씩 뜯다 보니 우물천장도 뜯고, 부엌도 다 뜯고, 결국 점점 뜯는 게 많아지면서 공사가 커졌어요. 1개월을 예상하고 시작했던 일이 계속 길어지더라고요. 원래 이런 거 맞죠?
3. 거실 Before

남서향을 바라보고 있어서 햇빛 맛집인 거실. 이 모습에서 아트월만 떼고, 샷시(새시)에 화이트 필름만 하면 예쁘게 꾸밀 수 있다는 확신이 들었어요.

문제의 아트월 모습입니다. 10~20년 전쯤 유행했다던 고급 아트월이에요.

바로 제거했습니다.
거실 After

거실 가운데는 집의 중심을 받치고 있는 빈티지 다이닝 테이블이 있어요. 처음엔 일반적인 가정집의 공식을 따라 거실에 큰 소파를 두었는데, 막상 생활을 해보니 생각보다 소파에 앉을 일이 잘 없더라고요. 오히려 집에서 일을 하거나 밥을 먹고 테이블 앞에 앉아서 대화하는 시간이 더욱 길었어요.
그래서 요리를 좋아하는 남편을 위해 소파를 과감하게 치우고 큰 다이닝 테이블을 두어 웃고 먹고 즐기니 훨씬 좋더라고요. 결국엔 둘이서 사는 거니까 남들이 정한 어떤 공식이나 방식에 얽매이지 않고 가족들이 모두 편하고 즐겁게 사용할 수 있는 공간으로 재구성해 보는 시도들을 많이 해보는 게 중요한 것 같아요.

테이블 앞쪽에는 홈바로 사용하고 있는 월 캐비닛이 있어요. 보통 벽에 걸어서 사용하는 제품이 많은데, 고양이를 키우고 있다 보니 혹시 몰라서 위험할까 봐 바닥에 세우는 제품으로 찾아봤어요.
또 다른 이유는 제가 집 구조를 자주 바꾸는 편인데, 벽에 걸면 옮길 수가 없으니까 움직일 수 있는 월 캐비닛을 구매했어요. 보기 싫은 보일러 컨트롤러는 작은 마크라메를 사용해서 가렸어요.

월 캐비닛 1층에는 먹지 않은 무거운 와인을 두고, 그 옆에는 고양이가 밥을 먹을 수 있는 급식소로 사용하고 있어요. 위층에 있는 와인병들은 다 먹고 비교적 가벼운 것들만 올려두고 있어요.

와인잔 걸이대는 이케아에서 구매했는데, 앞에 막아주는 게 없어서 옷핀을 꼽아 사용하고 있어요. 평소에 어디 놀러 가면 그곳에서 본 예쁜 와인 잔을 모으는 게 취미거든요. 인테리어 효과에도 좋아서 추천드려요!

작년 겨울에 트리를 설치했던 모습이에요.

햇빛이 너무 많이 들어오다 보니, 테이블 유리에 반사된 햇빛이 부담스러워서 요즘은 이렇게 구조를 바꿨어요.

앞쪽은 더 넓은 공간으로 쓰고, 주방과 거실을 나누는 용도로 테이블을 사용하니 공간을 더욱 효율적이고 예쁘게 사용할 수 있더라고요.

테이블 앞쪽은 이렇게 고양이 방석을 두고 햇빛 샤워를 할 수 있는 공간으로 사용하고 있어요.

한창 유행했던 버터 막걸리와 직접 만든 파티 음식들

거실 테이블에서 친구들과 했던 연말 파티 모습도 있습니다.
4. 주방 Before

가장 머리 아팠던 주방입니다. 일반적인 집 보다 더 작게 나온 사이즈 때문에 보통 오른쪽 벽면에 식탁을 붙이고 사용하고, 왼편에 수납장을 최대한 많이 해서 더 답답해 보이는 구조였어요. 특히 수전이 모퉁이에 있어서 실제로 요리할 때 사용할 수 있는 공간이 거의 없었다고 보면 돼요.

타일은 덧방 시공 후 나머지는 모두 제거했어요.
주방 After

주방은 이케아에서 설치했어요. 이케아 주방을 선택했던 가장 큰 이유는, 남편이 요리를 주로 하기 때문에 싱크대 높이가 외국인 체형에 맞춰져 있어서 높이가 한국형 싱크대보다 5cm 정도 높기 때문이에요.
이게 보기에는 차이가 크지 않은데, 실제로 사용하는 남편도 훨씬 편하다고 하더라고요. 단점이 있다면 제게는 조금 높은 것 같아요. 그렇지만 저는 주방 출입 금지이기 때문에 괜찮습니다 :) 디자인적으로도 훌륭한 게 두 번째 장점이에요.

다만 이케아 주방을 설치할 때 불편한 부분은 맞춤 주방은 원하는 대로 맞춤을 할 수 있지만, 이케아에서 만들어진 규격에 따라 주방을 맞춰야 하기 때문에 버려지는 공간이 생길 수 있어요. 또 처음 원했던 모습과 실제로 상담을 받으면 현실적으로 가능한 부분이 다를 수도 있고요.

이케아에서만 할 수 있는 도자기 수전! 2년 사용해 본 소감은 절대 비추천입니다. 물 때가 잘생겨서 스트레스도 많이 받고, 얼마 전에는 도마를 놓쳤다가 수전에 금이 갔어요. 보수를 해서 사용하는 데에는 문제가 없지만 수전을 바꾸려고 알아보니 상판까지 모두 함께 바꿔야 한다고 하더라고요. 그래서 일단 보수만 해두고 계속 사용하고 있습니다.

식기세척기를 주로 사용하고 있어서 식기 건조대가 클 필요가 없더라고요. 자주 쓰는 컵들과 간단한 식기류만 두는 편이에요.

이케아 주방 코너 수납장이 유명한데, 저희는 집 구조상 설치할 수가 없어서 일반 선반형을 사용하고 있어요. 식기류는 보관하기 좋게 통일했어요.

맞벌이 2인 가구라서 2구 가스레인지로 설치했어요. 보통 요리를 할 때 여러 가지 요리를 하기보다는, 메인 요리 하나만 하는 편이라 관리도 쉬워서 추천드려요!

주방 반대편 빈자리에는 부족한 수납을 채워줄 수납장을 두고, 그 위에는 주방가전을 올려서 사용하고 있어요. 주방 수납장에 손잡이만 이케아에서 구매하여 교체해 주니 이케아 주방과 통일감을 주어 어색함 없이 만족하며 사용하고 있어요.

오븐 겸 전자레인지 아래 수납장에는 관련 조리도구들을 모아 두었어요.

그 아래에는 고양이 용품과 사료를 넣어서 사용하고 있어요. 자주 사용하는 용품들끼리 모아서 작은 리빙박스로 보관해두어서 꺼내 쓰기 편한 것 같아요!

위니아에서 가전을 맞추면서 받은 포인트로 산 에어프라이어인데, 성능은 좋지만 투박하고 덩치가 커서 수납장 한 칸에 보관하고 있어요. 사용 시에 앞으로 살짝 꺼내주기만 하면 열 빠지는 데에도 문제없이 안전하게 사용할 수 있어요.

요즘 제일 잘 사용하고 있는 주방가전이에요. 매일 아침마다 케일 주스를 만들어서 마시고 있어서 만족하며 사용하고 있어요. 원래 필립스 블렌더를 사용했는데, 아래쪽으로 열리는 구조라서 사용하다가 터진 적이 있었거든요. 키첸 진공 블렌더로 바꾸고서 관리도 더 편하고, 무엇보다 케일 주스 맛이 다르더라고요?
5. 계단 Before

아쉽게도 셀프 인테리어 하기 전 사진이 없어요. 이건 벽지와 필름 시공이 끝난 모습이에요. 저 계단을 보자마자 ‘이 집이다’ 하고 외쳤어요. 이게 바로 나의 캣타워다! 집을 볼 때 사람마다 중요하게 보는 기준이 다르잖아요.
신혼집은 신축 아파트여야 한다, 역세권이어야 한다, 이렇게 말하는 사람들에게는 경기도 광주 산 아래 있는 이 빌라가 별로일 수 있겠지만, 우리에게는 평균 90점짜리 집이었어요. 저희가 정한 우선순위에 거의 들어맞았거든요. 제 상상대로 아이들 모두 하루에도 수십 번씩 총총거리며 왔다 갔다 해요. 정말 귀여워요.
계단 After

계단 근처는 고양이들 놀이터처럼 꾸며줬어요. 계단 아래로 큰 캣타워가 있고, 계단 밑 공간에는 고양이 화장실을 뒀어요. 맞춤 한 것처럼 잘 맞더라고요. 그 옆으로는 몇 가지 고양이 집을 배치했어요. 가장 아래 기둥에는 고양이가 스크래처로 사용할 수 있게 황마 끈을 감아뒀어요.

계단 아래에서 이렇게 고양이들끼리 잡기 놀이도 한답니다.

사진에 보이는 식물들은 모두 직접 만든 조화 화분이에요. 고양이에게 치명적인 식물들이 있는데, 뭐가 해로운지 전부 공부하긴 어려워서 조화로 플랜테리어를 하는 편이에요.

위에서 볼 땐 이런 느낌이에요.

캣타워에서 이어지는 구멍이 있으면 좋을 것 같아서, 남편과 제가 직접 꼬리 톱으로 잘라 만든 고양이 구멍이에요. 이렇게 구멍을 뚫어 놓으면 나중에 집 팔 때 어떡하냐고 묻기도 하시는데, 그럼 고양이를 반려하는 가족에게 팔면 되지 않을까요? 저는 너무 만족해요!

이걸 어떻게 참아요?

계단에 술병을 나란히 놓으니 와인 바 같은 느낌이 나서 좋더라고요 :)
6. 서재 Before

이 방은 어떻게 사용할까 고민이 많았어요. 마루 상태가 가장 좋지 않은 방이었거든요. 처음에는 거실에 있던 큰 테이블이 이 방에 있었어요. 다이닝룸으로 사용하려 했는데 주방에서 음식을 가지고 나르는 게 더 일이었어요. 나름대로 넓은 방이긴 한데, 정사각형 구조를 가지고 있어서 테이블을 어떻게 놓아도 불편하더라고요.

테이블과 고양이 캣타워가 덩그러니 있던 모습입니다.
서재 After

마루 시공을 하지 않아서 바닥에 카펫으로 셀프 시공을 했어요. 카펫을 사용하니 발에 느껴지는 촉감도 좋고, 다른 공간과 완전히 분리되는 느낌이라서 업무에 집중도가 높아지는 것 같아요. 테이블은 diy로 만든 건데 이케아 전동 다리만 구매해서 만들었어요. 가끔 졸리면 서서 일을 할 수 있어서 좋더라고요!

의자 아래로는 계단과 같이 고양이가 사용할 수 있도록 사이잘 끈을 사용해서 스크래처를 만들어 줬어요.


큰 거울을 가로로 눕혔더니 공간이 더 커 보이는 효과가 나서 좋은 것 같아요. 실용적이지는 않지만 가끔 기분 전환으로 이렇게 둔답니다.

서재에서 드레스룸으로 이어지는 공간에는 고양이 캣 휠이 있어요.
7. 드레스룸 겸 게스트룸 Before

우리 집에서 가장 작은 공간이에요. 여기는 북쪽 방이라 처음부터 옷방으로 만들어야겠다 생각했어요. 공간이 크지 않아서 꾸미려고 해봤지만, 실용적으로 사용하는 게 좋겠다고 결론을 내렸어요. 현재는 옷장과 손님용 베드가 있어요. 이 베드는 사실 모듈형 소파인데, 네 개를 붙여서 큰 침대처럼 사용하고 있어요. 고양이들이 가장 애착하는 공간이에요.
드레스룸 겸 게스트룸 After

옷장과 모듈 소파, 그리고 고양이들. 손잡이는 이케아 손잡이로 교체했어요.

작은방이라 따로 거울을 두는 게 쉽지 않아서 이케아 부착형 거울을 옷장 문에 붙였어요. 공간이 협소하다면 이렇게 해보세요. 옷을 입고 간단하게 실루엣을 볼 수 있어서 정말 편하답니다.


왜 고양이들이 가장 좋아하는 방인지 한눈에 보이죠? 북동향이라 이른 아침에는 이렇게 잠깐 해가 들어온답니다.
8. 2층 Before

2층에는 박공 지붕으로 큰 창이 남쪽, 북쪽으로 있어요. 테라스 나가는 큰 샷시(새시)가 하나 있어요. 어떻게 공간 분리를 할까 고민하다가 해가 잘 드는 남쪽 창을 침실로 사용하고, 북쪽 창을 거실처럼 사용하고 있어요. 2층은 벽지 시공만 했고, 갈색 샷시(새시)도 괜찮은 것 같아서 따로 필름 시공을 하진 않았어요.
2층 After

침실에는 공간 분리를 위해서 서재와 같이 롤 카펫을 깔았어요. 침실의 아늑한 분위기를 만드는 데 한몫하는 것 같아요. 박공 지붕의 가장 높은 곳은 2m가 넘지만, 낮아지는 곳은 1m 정도밖에 되지 않기 때문에 침대 앞에는 좌식 소파를 사용하고 있어요. 좌식 소파는 베드로 사용이 가능한 제품이라, 친구들이 오면 침대 옆 공간에 펼쳐서 같이 자기도 합니다.

좌식 소파 옆에는 만화책 책장이 있어요. 천장이 비스듬히 내려오기 때문에 시중에 판매하는 책장은 맞지 않더라고요. 그래서 나무와 벽돌을 따로 구매해 작은 만화책 책장을 만들었어요.

침대가 있기 전에는 좌식으로 사용했어요.


침대 옆 창문은 고양이들이 아침마다 바깥세상을 구경하는 장소에요.

침대 반대쪽은 2층의 또 다른 거실로 사용하고 있어요. 한국인들 특징 아시죠? 소파가 있어도 꼭 바닥에 앉게 되더라고요. 그래서 소파 앞에는 등받이 쿠션을 사용하고 있어요. 거실 뒤쪽으로는 창고가 있어요. 창고는 커튼으로 공간 분리를 해뒀습니다.

소파 옆모서리 공간에는 이케아에서 구매한 수납장이 있어요. 이 수납장은 세로로 세워서 사용하는 제품으로, 사실 빨래 더미를 보관하는 수납장이에요. 저희는 옆으로 눕혀서 고양이들 집으로 사용하고 있어요.

집에 TV가 따로 없어서 움직이며 사용할 수 있는 모니터를 사용하고 있어요. 돌아다니면서 사용할 수 있어서 굉장히 만족하고 있어요. 저희는 넷플릭스나 유튜브를 보거나, 플스나 닌텐도를 하는 용도로 사용하고 있어요. 뒤쪽에는 2층에서 사용하는 작은 냉장고가 있어요. 보통 음료를 많이 넣어두어요.

2층 전체를 가로지르는 레일을 설치해서 그때그때 필요한 조명을 바꿔가며 사용하고 있어요.

9. 테라스 Before

테라스는 방치 그 자체였어요. 10년 이상 방치되어 코팅도 까지고 갈라진 바닥도 보였죠. 근처 철물점에서 방수 코팅 까는 기계를 빌려 유튜브로 공부하면서 직접 방수를 했어요. 테라스가 있는 집을 가졌으니 이 정도는 알아야 되지 않을까 싶어서 그랬죠. 제가 한 셀프 인테리어 중에서 가장 힘들었던 작업이었어요.
테라스 After

테라스가 10평 정도 되어서 보통 다른 집들 보다 훨씬 큰 편이에요. 방수를 완료한 후 반은 인조 잔디를, 다른 반은 불을 사용하는 공간으로 안전을 위해 플라스틱 데크 타일을 설치했어요. 잔디 위에는 8인용 고기 테이블을 사용하고 있어요.
테라스는 남편이 꼭 갖고 싶어 하던 공간이에요. 고양이가 있으니 외박이 어렵고, 캠핑 같은 활동을 할 수 없으니 집 안에서 놀 수 있는 자기만의 공간을 갖고 싶어 했거든요. 저도 이제는 테라스가 없는 집에서는 생활할 수 없을 것 같아요.

테라스에서 고기를 구워 먹을 수 있으니 따로 고깃집을 가기보다는 편하게 집에서 먹는 게 좋아요. 비용도 아낄 수 있고, 질 좋은 고기를 마음껏 구워 먹을 수 있어요.

인조 잔디를 셀프로 시공 한 날 바닥에 앉아 치킨 피크닉을 했어요.

집에서 먹으면 냄새나는 음식들을 깔끔하게 먹을 수 있어요.

처음에는 테라스에 스크린 빔을 설치해서 밥 먹으며 넷플릭스를 보기도 했어요.


점점 업그레이드되는 남편의 요리!

연말 파티에 빼놓을 수 없는 화목난로. 마시멜로도 구워 먹고, 고구마도 구워 먹으면 얼마나 맛있는지 몰라요.

테라스에서 본 하늘도 정말 멋져요.
마치며

집을 둘러보면 꼭 말하지 않아도 집주인이 무엇을 좋아하는지 알 수 있는 것 같아요. 다양한 종류의 위스키로 가득 찬 저희 집 거실 벽장을 보며 다들 ‘이 집 사람들은 집에서 술을 즐기는구나’ 생각하겠죠.
또 거실에 TV가 없는 걸 보고 ‘거실에서는 대화를 많이 하나 보네’, 방에 컴퓨터가 나란히 있는 걸 보고는 ‘집에서도 일을 많이 하는구나’ 싶을 거예요. 이런 게 집을 가꾸는 재미 아닐까요?
집을 고를 때 가장 큰 장벽이 돈일 것 같아요. 돈이 많으면 더 좋은 집에 살 수 있다는 믿음, 그 막연한 믿음 때문에 지금의 행복을 다음으로 미루곤 하죠. 그런데 저희는 시야를 그렇게 멀리 두지 않았어요.
그냥 지금 우리가 바라는 모습에 집중하기로 했죠. 고양이와 우리가 볕 아래서 배 뒤집고 드러누워 같이 행복할 수 있는 곳이면 좋겠다. 그 생각이 지금도 변함없어요. 여러분도 집을 가꾸면서 스스로 어떤 삶을 바라는지 많이 대화했으면 좋겠어요. 긴 글 읽어주셔서 감사합니다 :) 모두 행복한 하루 보내세요.

