〔안정원의 건축 칼럼〕 적층 구조와 박스 인 박스 개념을 적용한 크리에이티브 팩토리 2
에이앤뉴스 2019. 7. 22. 18:39

●● 멋진 세상 속 건축디자인_ 극대화된 개인 성향과 다양성의 사회문화를 포용하는 곳, 'JTBC 스튜디오 일산'… 적층 구조와 박스 인 박스 개념을 적용한 합리적 공간 분할, 창조적 아이디어가 결합한 크리에이티브 팩토리(Creative Factory)이자 개방적인 콘텐츠 생산의 베이스캠프임을 효과적으로 제시해 ■ Architect's Interview_ JTBC 스튜디오 일산의 윤현석 총괄건축가 인터뷰

"창조적 정신, 육체노동이 소용돌이칠 수 있는 최적의 환경을 제공하고자 '크리에이티브 팩토리(CREATVE FACTORY)'라는 건축 개념을 부여하고자… 외벽과 스튜디오 매스 사이의 여백 공간을 휴식·창의적 커뮤니티·업무·체험 공간으로 활용도를 높일 수 있어"

ANN : 일산 장항동에 새롭게 들어선 JTBC 스튜디오 일산 프로젝트의 완성도가 돋보인다. 건축가로서 처음 사업 추진 배경은 어떠했으며 설계 진행 과정에서 고민했던 점이 있다면?
윤현석 : 본 프로젝트는 종편채널 JTBC 운영자인 중앙미디어네트워크가 그동안 일산의 빛마루 방송지원센터를 임대해 콘텐츠 제작을 해왔던 여건을 탈피해 자체 제작 시설을 건립하고자 방송제작시설 경험이 있는 설계사를 대상으로 2016년 여름 현상 공모한 프로젝트이다. 그 당시 JTBC는 예능,, 드라마, 뉴스 등 다 방면에서 사회적 이슈를 만들고 있는 종편채널의 선두 주자였고, 상암동에 신사옥을 추진하는 등 중요한 모멘텀을 만들고 있는 시기였다. 또한, 사업 대상지는 기존 임대스튜디오인 빛마루, EBS신축사옥, MBC 등 여러 방송국과 제작시설이 밀집된 곳이었고, 주변은 일산호수공원과 한류월드개발구역의 중심가로에 접하여 단순 스튜디오 건축 이상의 디자인 이슈가 필요한 곳이었다.
윤현석 : 본 프로젝트는 종편채널 JTBC 운영자인 중앙미디어네트워크가 그동안 일산의 빛마루 방송지원센터를 임대해 콘텐츠 제작을 해왔던 여건을 탈피해 자체 제작 시설을 건립하고자 방송제작시설 경험이 있는 설계사를 대상으로 2016년 여름 현상 공모한 프로젝트이다. 그 당시 JTBC는 예능,, 드라마, 뉴스 등 다 방면에서 사회적 이슈를 만들고 있는 종편채널의 선두 주자였고, 상암동에 신사옥을 추진하는 등 중요한 모멘텀을 만들고 있는 시기였다. 또한, 사업 대상지는 기존 임대스튜디오인 빛마루, EBS신축사옥, MBC 등 여러 방송국과 제작시설이 밀집된 곳이었고, 주변은 일산호수공원과 한류월드개발구역의 중심가로에 접하여 단순 스튜디오 건축 이상의 디자인 이슈가 필요한 곳이었다.

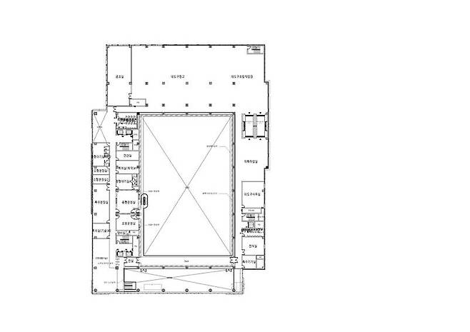
가장 큰 숙제는 발주처가 원하는 1개의 대형스튜디오와 3개의 중소형 스튜디오를 여유롭지 않은 대지에 건폐율에 맞춰 소화하고, 그에 수반한 시설 배치와 동선의 조합을 만드는 것이었다. 다양한 가능성을 검토하면서, 스튜디오의 구성방법을 선택하고, 이를 위해 4개의 스튜디오를 가장 단순한 구조의 박스로 정의하고, 그 안에서 이루어지는 촬영, 세트 반입 등의 거친 제작 공정들이 무리 없이 진행될 수 있도록 배려하면서, 외부를 부속 지원 시설과 출연자, 스태프 공간 및 방청객을 위한 웰컴 공간으로 위요해 도시가로와 외부 공간의 전이 공간으로 삼았다.

ANN : 방송 콘텐츠 제작을 위한 최적화된 스튜디오 환경을 만드는 것은 쉬운 일이 아니었을 것이다. JTBC 스튜디오 일산에 담으려한 건축적 특징과 공간별 특화 전략은? 구체적인 사업 업무 범위와 프로젝트 진행 과정은 어떠한가?
윤현석 : 발주처는 최대한 경제적 공사비로 가장 실용적인 건물을 원했고, 그 디자인 또한 건물이 가지는 방송 콘텐츠 제작의 최적 기능에 부합하여 제시해 달라는 명확한 의지를 보였다. 그를 위해 불필요한 공간, 동선, 단면, 볼륨 등을 모두 삭제하고, 제작 기능을 위한 스튜디오 박스를 공사비와 시공성을 고려해 적층, 배열하고 이것들이 외부에서 그대로 투영되게 디자인하였다. 설계사가 제안한 건축 계획은 방송 인프라(조명, 음향 장비, 컨트롤 설비) 등이 제외된 범위였으며, 이를 위해 제작 관련 스태프(제작, 미술, 카메라 감독 등)와 수차례 의견 조율, 요구 사항을 수렴하는 회의를 수차례 가지며 설계를 진행했다.
윤현석 : 발주처는 최대한 경제적 공사비로 가장 실용적인 건물을 원했고, 그 디자인 또한 건물이 가지는 방송 콘텐츠 제작의 최적 기능에 부합하여 제시해 달라는 명확한 의지를 보였다. 그를 위해 불필요한 공간, 동선, 단면, 볼륨 등을 모두 삭제하고, 제작 기능을 위한 스튜디오 박스를 공사비와 시공성을 고려해 적층, 배열하고 이것들이 외부에서 그대로 투영되게 디자인하였다. 설계사가 제안한 건축 계획은 방송 인프라(조명, 음향 장비, 컨트롤 설비) 등이 제외된 범위였으며, 이를 위해 제작 관련 스태프(제작, 미술, 카메라 감독 등)와 수차례 의견 조율, 요구 사항을 수렴하는 회의를 수차례 가지며 설계를 진행했다.


ANN : 방송스튜디오 건물치고는 적층된 공간 구조가 특이하다. JTBC 스튜디오 일산 프로젝트에 반영하고자 한 주요 건축 개념과 공간 구성 프로그램은 어떠한가?
윤현석 : JTBC 스튜디오 일산은 현 시대가 나타내고 있는 혼혈 콘텐츠의 홍수 속 극대화된 개인 성향과 다양성의 사회 문화를 포용하는 곳이다. 우리시대의 담론들과 조금은 천박한 욕망들을 기록하고, 앞으로의 트렌드를 예측하는 공간이면서, 경쟁력 있는 유통 콘텐츠 생산 공간의 의미를 내외부 부여하는 것이 중요한 프로젝트였다. 또한 스튜디오가 위치한 일산은 많은 방송사, 콘텐츠 제작 시설들이 집중된 곳으로, 그들 간에 보이지 않은 경쟁과 미묘한 시선들이 교차하며, 스타들을 보기 위해 먼 곳에서부터 팬들이 찾아와 분주히 움직이는 도시 공간이다.
윤현석 : JTBC 스튜디오 일산은 현 시대가 나타내고 있는 혼혈 콘텐츠의 홍수 속 극대화된 개인 성향과 다양성의 사회 문화를 포용하는 곳이다. 우리시대의 담론들과 조금은 천박한 욕망들을 기록하고, 앞으로의 트렌드를 예측하는 공간이면서, 경쟁력 있는 유통 콘텐츠 생산 공간의 의미를 내외부 부여하는 것이 중요한 프로젝트였다. 또한 스튜디오가 위치한 일산은 많은 방송사, 콘텐츠 제작 시설들이 집중된 곳으로, 그들 간에 보이지 않은 경쟁과 미묘한 시선들이 교차하며, 스타들을 보기 위해 먼 곳에서부터 팬들이 찾아와 분주히 움직이는 도시 공간이다.

우리는 이곳에 콘텐츠 제작을 위한 각종 목공 구조물과, 음향, 조명장치들이 자유롭게 움직이고 창조적 정신, 육체노동이 소용돌이칠 수 있는 최적의 환경을 제공하고자 "CREATVE FACTORY"라는 건축 개념을 부여하고, 내부 공간과 외피에 이를 입히고자 했고, 일반적으로 폐쇄적인 방송제작시설의 이미지를 탈피하고자 했다.

ANN : 오랫동안 고민해서 만들어진 좋은 스튜디오 공간인 만큼 그 활용 용도 또한 중요하다. 총괄건축가로서 JTBC 스튜디오 일산 프로젝트의 완성된 공간은 어떻게 활용되기를 바라는가?
윤현석 : 1층의 대형 스튜디오는 현재 2개의 프로그램이 세트를 번갈아 세팅하면서 가장 활발하게 사용되며, 600석 규모의 전동 수납형 객석이 설치되 다양한 무대연출이 가능하다. 바로 인접하여 세트 반입, 조립장, 중계차 주차 영역이 계획되어 변화하는 제작, 송출 여건에 대응하고 있다. 스튜디오 중간층에는 부조정실 및 스태프 영역이 클러스터화 되어 있어, 창의적 소통 공간으로 작동되며, 대형 스튜디오 상부에는 3개의 중, 소형 스튜디오가 설치되어 소형 오락 및 대담 프로그램을 수용하고 있다.
윤현석 : 1층의 대형 스튜디오는 현재 2개의 프로그램이 세트를 번갈아 세팅하면서 가장 활발하게 사용되며, 600석 규모의 전동 수납형 객석이 설치되 다양한 무대연출이 가능하다. 바로 인접하여 세트 반입, 조립장, 중계차 주차 영역이 계획되어 변화하는 제작, 송출 여건에 대응하고 있다. 스튜디오 중간층에는 부조정실 및 스태프 영역이 클러스터화 되어 있어, 창의적 소통 공간으로 작동되며, 대형 스튜디오 상부에는 3개의 중, 소형 스튜디오가 설치되어 소형 오락 및 대담 프로그램을 수용하고 있다.

ANN : JTBC 스튜디오 일산 프로젝트를 설계한 솔직한 건축가의 입장과 견해, 반영하지 못했던 점과 아쉬운 점이 있다면? 추후 유사한 관련 사업을 진행할 때 대해 본보기나 유념해야할 점이 있다면 무엇인지 들려 달라.
윤현석 : 돌이켜 보면, 초기 현상 디자인은 굉장히 거친 세트 제작공간에 대한 충분한 이해가 부족한 부분이 있었고, 동시에 진행된 상암동 JTBC 사옥과 디자인 코드를 맞춰야 하는 강박에 발주처와 디자인 조정에 많은 어려움이 있었다. 항상 어느 용도의 건축이든 그 건물의 순수한 목적과 가치 향상의 목적에 부합해야 함을 다시 한 번 깨달은 소중한 기회였고, 치열한 콘텐츠 전쟁시대에 향후 방송 제작 환경의 변화와 요구들이 많을 텐데, JTBC 스튜디오 일산이 콘텐츠 제작, 운영자, 스태프, 출연자, 이 시설을 찾는 방청객 등 유저들이 요구하는 현 시대의 작은 기준이 되었으면 한다. >>인터뷰어_ 안정원 편집자, 인터뷰_ 윤현석 (주)종합건축사사무소 건원 1사업본부 DP, 자료_ (주)종합건축사사무소 건원, 사진_ 에이앤뉴스 김한석, 기사 출처_ 에이앤뉴스 AN NEWS(ANN 뉴스센터) 제공
윤현석 : 돌이켜 보면, 초기 현상 디자인은 굉장히 거친 세트 제작공간에 대한 충분한 이해가 부족한 부분이 있었고, 동시에 진행된 상암동 JTBC 사옥과 디자인 코드를 맞춰야 하는 강박에 발주처와 디자인 조정에 많은 어려움이 있었다. 항상 어느 용도의 건축이든 그 건물의 순수한 목적과 가치 향상의 목적에 부합해야 함을 다시 한 번 깨달은 소중한 기회였고, 치열한 콘텐츠 전쟁시대에 향후 방송 제작 환경의 변화와 요구들이 많을 텐데, JTBC 스튜디오 일산이 콘텐츠 제작, 운영자, 스태프, 출연자, 이 시설을 찾는 방청객 등 유저들이 요구하는 현 시대의 작은 기준이 되었으면 한다. >>인터뷰어_ 안정원 편집자, 인터뷰_ 윤현석 (주)종합건축사사무소 건원 1사업본부 DP, 자료_ (주)종합건축사사무소 건원, 사진_ 에이앤뉴스 김한석, 기사 출처_ 에이앤뉴스 AN NEWS(ANN 뉴스센터) 제공
안정원(비비안안 Vivian AN) 에이앤뉴스 ANN 발행인 겸 대표이사, 한양대학교 실내건축디자인학과 겸임교수
제공_ 에이앤뉴스그룹 ANN NEWS GROUP(에이앤뉴스_ 건축디자인 대표 신문사 ‧ 에이앤프레스_건설지, 건설엔지니어링북, 건설스토리북, 건설백서 전문출판사)

윤현석 건축가는 DA GROUP을 거쳐 2010년부터 건원건축과 함께 하고 있으며, 건원건축 1사업본부 DP(Design Principal)로서 현재까지 대규모 민간복합시설, 공공건축물, 특수목적건물 등 디자인 이슈 프로젝트를 수행하고 있다. 도시 맥락 안에서 프로그램이 놓이는 대지의 가치를 극대화하고 사용자의 비일상적 체험에 대한 담론을 탐구하고 있다. 주요 작품으로는 판교 중심상업지구 마스터플랜, 송도 스트리트몰 복합시설, 빛마루 방송지원센터, 성남의료원, 대구교정시설, 청주고속터미널 복합시설 등이 있다. 최근작으로는 대한건축문화 대상 수상작인 판교 스타트업 캠퍼스가 있다.
▶ 대한민국 24시간 뉴스 채널 YTN 생방송보기
▶ 네이버에서 YTN 뉴스 채널 구독하기
Copyright © YTN. 무단전재 및 재배포 금지.
YTN에서 직접 확인하세요. 해당 언론사로 이동합니다.
- [단독] "의사 접대 자리에서 성폭력..임직원 쉬쉬"
- 안타까워 승낙했는데, 사과 없이 '노쇼'..대구대 논란
- 한 해 15만 원 절약가능?..전기 사용 습관 '꿀팁'
- 송혜교·송중기, 이제는 '남남'..위자료·재산분할은?
- '꿈★은 이루어졌다'..호날두와 유니폼 교환한 손흥민
- [속보] 국민의힘 최고위 "당명 개정 지방선거 이후 마무리"
- 위암으로 숨진 50대, 원룸 살며 모은 5억 전 재산 기부
- 경남 함양 산불, 강풍 타고 확산...헬기 22대 투입 진화 중
- 경남 함양군 지리산 자락에서 산불...진화에 어려움
- 충남 예산 산불, 강풍에 불씨 되살아나...주민 긴급 대피