CROWN IN THE CITY : 도시에서 누리는 단독주택의 자유
주변으로부터 독립되어 자유로운 환경, 그리고 가족만의 마당. 그것을 도시에서 즐기기 위한 고민을 단독주택에 담아냈다.




“마당이 있는 집은 남편의 오랜 소원 중 하나였죠.”
건축주 부부는 의도하진 않았지만, 여러 주거 공간들을 거쳐왔다. 아파트에서도 살아보고, 상가주택에서도 지내봤다. 하지만, 오롯이 ‘가족만이 누리는 공간’이라는, 단독주택이 주는 매력은 쉽게 포기할 수 없었다. 부부는 오랫동안 단독주택에서의 삶을 꿈꾸고 준비했다. 여러 시공사의 오픈하우스나 박람회를 오가고 책과 영상도 많이 읽고 봤다. 그 과정에서 집짓기에 함께 한 하눌주택도 만날 수 있었다. 단독주택 하면 춥다는 인상과 올드한 디자인만 생각하다, 세련되고 감각적인 디자인을 높은 주택 성능과 함께 누릴 수 있겠다는 생각이 들게 된 계기기도 했다. 하눌주택과 함께 한 4개월여의 시간이 지나고 입주까지 마친 부부는 그 선택이 틀리지 않았음을 확신하고 있다.
대지는 동서로 긴 형태를 가지고 있고, 양쪽으로 도로를 접하고 있었다. 여기에 북측면으로 3층 높이의 다가구 주택이 자리하고 있었다. 그래서 주택은 건축주가 가장 중요하게 여긴 프라이버시를 확보하고 안정적인 일조량을 확보할 수 있도록 남측면으로 열린 ‘ㄷ’자 형태의 매스를 갖게 되었다.

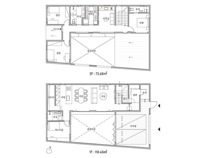
House Plan
대지면적 : 251.10㎡(75.96평)
건물규모 : 지상 2층
거주인원 : 4명(부부 + 자녀2)
건축면적 : 132.69㎡(40.14평)
연면적 : 184.08㎡(55.68평)
발코니확장면적 : 39.28㎡(11.88평)
건폐율 : 52.84%
용적률 : 59.37%
주차대수 : 2대
최고높이 : 8.9m
구조 : 기초 – 철근콘크리트 매트기초 / 벽 – 경량목구조 외벽 2×6 구조목 + 내벽 S.P.F 구조목(1,2층) / 지붕 – 2×10 구조목
단열재 : 벽 – 글라스울 R23(가등급), THK50 비드법보온판 2종1호(가등급) / 지붕 – 글라스울 R37(가등급)
외부마감재 : 외벽 – 롱브릭타일, 스터코플렉스 / 지붕 – T0.5 리얼징크
창호재 : 디크닉 PVC 시스템창호(3중유리)
에너지원 : 도시가스
설계·인테리어 : ㈜하눌플랜건축사사무소 박병수(설계), 이세인(인테리어)
시공 : ㈜하눌주택 1522-7003



여기에 건축적으로 연장한 벽으로 남측면을 보호할 수 있도록 했다. 이 벽은 바깥으로는 단정하고 든든한 매스와 적절하게 절제한 창의 배치로 도로 면에 재치 있는 표정을 만들어 동네에 자연스럽게 녹아든다.
건축주는 프라이버시와 함께 반려견과 가족이 함께 누리는 마당을 중요하게 여겼다. 그래서 실내 어디에서나 마당과 이어질 수 있도록 했고, 차고와 마당 사이의 구분도 폴딩도어를 사용해 상황에 따라 유연한 확장이 가능하게끔 했다. 한편, 건축주는 “하자 가능성이 높은 2층 테라스나 옥상보다는 마당에 집중하는 게 사후 관리나 건축비 등에서 유리할 수 있다”고 조언하기도 했다.
Interior Source
욕실·주방 타일 : SPECIFIED IMPORTED TILE
수전 등 욕실기기 : 대림, BELLSCHATZ, 아메리칸스탠다드, 제작, ECT
주방 가구 : 리바트
조명 : 비츠, 공간조명, 나모, T5 등
실링팬 : FAN&CO 52인치 WHITE
계단재·난간 : SPECIFIED WOOD WITH CLEAR FINISH
현관문 : 커널시스텍 아르떼 노이어
중문 : 이노핸즈 AHD-A01_ WHITE
방문 : 예림_01_HPB 521
Section




Detail Points



2층으로 구성된 주택은 손님이 머무는 게스트룸과 공용 공간을 1층으로, 침실과 드레스룸 등 사적 공간을 2층으로 분리해 배치했다. 단순히 분리에 머무르지 않고, 2층에 가족실과 세탁실, 작은 주방을 두어 프라이버시와 함께 편의성을 극대화했다. 여기에 더해 곳곳의 숨은 공간을 마련해 부족한 수납공간을 효율적으로 사용할 수 있도록 했다.
건축주는 이제야말로 온전한 ‘우리 집’에서 사는 느낌이라며 만족감을 아낌없이 드러냈다. 안심하고 집 안에서 일상을 즐기면서도 마당에서 자유를 만끽한다. 물론, 높아진 주택 성능 덕분에 이전 상가주택 때보다 겨울 난방비가 절반으로 줄어들었다는 것도 소소한 즐거움이다.
건축가_ 박우범 : ㈜하눌주택 ㈜하눌플랜건축사사무소

취재_ 신기영 | 사진_ laybaxk
ⓒ월간 전원속의 내집 2025년 4월호 / Vol. 314 www.uujj.co.kr