
건축주 부부와 세 명의 자매, 모두 다섯 식구가 호림건축사사무소로 출동했다. 자매들이 즐겁게 놀이하고 공부하며 자랄 수 있는 소중한 보금자리를 짓기 위해서였다. 가족들의 꿈과 희망을 전달받은 건축가는 좁고 긴 대지를 그대로 살려 세 개의 마당을 구성해 아이들이 다양한 공간 체험을 하면서 삶을 추억할 수 있도록 설계했다. 활기차면서도 따뜻한 공간이 돋보이는 세 자매 집을 소개한다.
글 김수진 기자 | 자료 및 협조 호림건축사사무소 | 사진 윤홍로 작가
HOUSE NOTE
DATA
위치 세종시 고운동
용도 단독주택
건축구조 철근콘크리트조
대지면적 389.3㎡(117.97평)
건축면적 114.58㎡(34.72평)
연면적 194.79㎡(59.03평)
1층 102.43㎡(31.04평)
2층 92.36㎡(28.00평)
건폐율 29.43%
용적률 50.04%
시공시간 2020년 6월~2021년 4월
설계 호림건축사사무소 044-998-6551
blog.naver.com/jlett
시공 하우스컬처 044-867-7562
www.hausculture.com
MATERIAL
외부마감 지붕 - 포스맥(포스코)
벽 - 롱브릭 타일(다다벽돌)
데크 - 수입산 타일(대림무역타일)
내부마감 천장 - 친환경 벽지(제일벽지)
벽 - 친환경 벽지(제일벽지)
바닥 - 강마루(동화자연마루)
단열재 지붕 - 압출법 단열재 245T(벽산아이소핑크)
외단열 - 비드법 단열재 134T(비온텍)
계단재 디딤판 - 오크 집성판(그린우드)
난간 - 금속 평철난간(다복)
창호 독일식 AL. 시스템창호(공간시스템창호)
현관 민무늬 단열도어(성우스타게이트)
주요 조명 필립스 매입 다운라이트(중앙조명)
주방기구 EP제작가구(일상생활)
위생기구 아메리칸 스탠다드
난방기구 경동보일러 상향식(경동보일러)신재생에너지
태양광패널 3km / 설치비용 320만 원
세 자매를 둔 부부는 아이들이 뛰어놀면서 추억을 쌓을 수 있는 집을 원했다. 흔히 부모만 건축사무소를 방문하지만 세 자매 가족들은 5명 모두 건축사무소를 찾아 각자가 꿈꿔온 집을 건축사무소에서 풀어놨다고 한다. 호윤정 호림건축사사무소 대표는 이들의 희망사항을 하나씩 귀담아 설계에 녹여냈다. 이렇게 마당이 세 개가 된 특색 있으면서도 가족애가 넘쳐나는 따뜻한 주택이 지어졌다.


긴 대지 위에 마련된 세 개의 마당
먼저 좁고 긴 대지 형태를 적극 활용한 점이 돋보인다. 단독주택을 짓다 보면 내부 공간에 집중하게 되면서 외부 공간에 소홀해지는 경우가 있다. 하지만 건축가는 긴 부지를 활용하고 아이들이 신나게 뛰어놀 수 있는 공간을 내부뿐만 아니라 외부에도 마련해 독특한 설계를 선보였다.


앞서 언급했듯 이 집의 큰 특징은 세 개의 마당이다. 먼저 가족들이 프라이빗하게 사용할 수 있는 안마당이 눈에 띈다. 그리고 정원과 텃밭으로 가꿀 수 있는 바깥마당이 마련돼 있다. 끝으로 자동차와 보행자가 집으로 들어오는 진입마당, 총 세 개의 마당이 집의 정체성을 구현했다.


기본적으로 건물은 ㄱ자로 배치됐다. 1층 게스트룸이 바깥마당과 안마당을 공간적으로 분리하는 구조다. 바깥마당은 주차장과 현관 진입동선에 있는 진입마당으로 바로 이어지는데, 이곳은 가족이 추억을 쌓으며 가꿀 정원으로 구성했다. 안마당은 바닥 재료를 달리하고 단차를 둬 거실과 바로 연결될 수 있도록 했다.


거실과 연결되는 공간으로 구성해 시각적, 심리적 확장성을 확보했다. 밖에서 아이들이 뛰어노는 것을 부모는 실내에서 지켜볼 수 있다.또 안마당은 2층 일부 매스를 돌출시켜 필로티를 만든 점도 눈에 띈다. 호윤정 대표는 “이 곳에서 세 자매가 물놀이, 소꿉놀이, 바비큐 등 다양한 체험을 즐길 수 있을 것”이라고 설명했다.


창과 매스 만으로 개성을 잡다
주택은 전체적으로 심플한 디자인을 보여준다. 오로지 창의 형태와 매스 돌출만으로 디자인 됐다. 남측에서의 매스 구성은 2층에서 전면으로 열린 조망을 즐길 수 있도록 계획했다.


거실 공간에는 적정한 채광이 유입될 수 있도록 전면 돌출된 게스트룸 매스의 높이와 거리를 계획했다. 2층 돌출된 매스는 처마 역할을 한다. 다소 복잡해보이지만 각 매스는 각 방에 조망, 구성 등을 위해 치밀하게 설계했다.
가족이 즐거운 공간

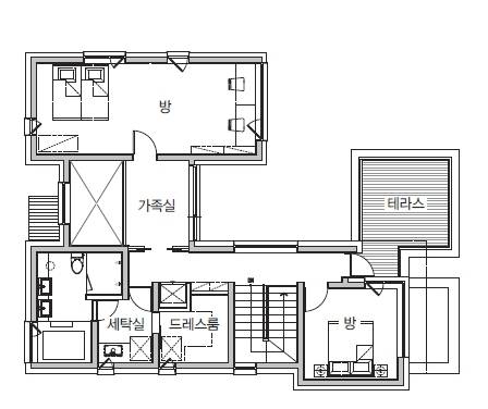
1층 거실은 안마당과 연속적인 공간 연출이 포인트다. 또 보이드를 통해 2층 가족실과 연결돼 있다.
3명이나 되는 아이들의 안전을 부모가 어디서든 확인할 수 있도록 내외부 공간이 창과 창, 공간과 공간으로 연결돼 있다는 점도 매력이다. 아이들이 안마당에서 놀이할 때 부모는 실내에서 아이들의 안전을 확인할 수 있도록 공간이 형성됐다. 거실과 바로 연결된 주방에서도 남동쪽을 조망할 수 있도록 코너 창과 테라스가 구성됐다.
2층 방들은 남쪽으로 창을 내 채광과 조망권을 확보했다. 특히, 아이방은 높은 천장으로 설계해 아이들의 창의력과 학습능력을 향상시킬 수 있도록 했다. 또 추후 다락으로도 사용할 수 있도록 했다.
가족 수가 많은 만큼 공간의 편의성도 확보했다. 세탁실과 욕실, 공용 드레스룸은 2층에 함께 배치해 동선을 최소화하고 기능적으로 연결되도록 계획했다.
