잠시 머문집 _ 경주 효우당 사랑채
평범한 일상 속 마음 한구석에 남을 새로운 경험을 안겨줄 공간. 집을 짓기 전 가볼 만한 숙소, 이번에 소개할 주인공은 경북 경주시에 위치한 ‘효우당’이다.


600년 종가 정신을 건축으로 표현한 쉼터
‘효우당 사랑채’는 600년 역사를 지닌 경주 이천서씨 양경공파 불천위 종가 안에 새로 조성된 독립형 한옥이다. 이 한옥은 조선 후기 민화인 ‘책가도’에서 강한 영감을 받았다. 책가도는 책장, 서책, 문방기물 등을 입체적으로 표현한 그림으로, 서양의 선원근법을 도입해 전통과 현대가 공존하는 독특한 이미지를 형성한다. 이러한 시각적 원리를 건축적으로 해석하여, 효우당 사랑채는 마치 ‘비어 있는 책장’처럼 다양한 이야기를 담을 수 있는 여백과 켜를 설계의 중심에 두었다.
대지는 뚜렷한 양면성을 지닌다. 남측으로는 고층 아파트와 정비되지 않은 인접 대지가 시선을 어지럽히지만, 북동측으로는 질메산 자락에서 내려오는 물안개, 사당과 본채의 기와지붕, 풍요로운 자연 풍경이 겹겹이 펼쳐진다. 이에 한옥의 전통적인 ‘ㄷ’자 배치를 변형해, 한자의 ‘책(冊)’자를 닮은 양방향 대칭 구성을 적용했다. 작은 대지 안에서도 남서·북동 양쪽에 마당을 마련하고, 마당의 크기와 방향을 조절해 좋은 풍경은 최대한 끌어들이고 피하고 싶은 시선은 자연스럽게 가리도록 하였다.
이 배치를 통해 안과 밖의 여러 마당이 길게 이어지며, 크기가 다른 아담한 칸들이 연속적으로 펼쳐진다. 남측 마당을 지나 사랑채 대청마루에 올라서면 시선은 점차 북동측 풍경과 본채의 지붕으로 이어지고, 머무는 이는 마치 시간을 거슬러 과거의 마당으로 들어온 듯한 감각을 경험하게 된다. 실내에서는 한옥의 기본 단위인 ‘칸’을 현대적으로 변주했다. 겹겹이 포개진 칸과 사선으로 꺾인 벽의 켜를 통해 책가도의 시각적 원근감을 공간 안에 다시 구현하고자 했다. 익숙한 직각 구조 속에 낯선 사선이 더해지면서, 단순한 방들의 나열을 넘어 깊이감과 긴장감이 살아난다. 이는 전통 민화의 회화적 질서를 건축 언어로 바꾸려는 시도이자, 머무는 이가 공간을 거닐며 끊임없이 다른 시선과 장면을 만나도록 만드는 장치이기도 하다.
‘효우당 사랑채’는 전통 종갓집의 공간을 그대로 보존하는 데서 한발 더 나아가, 종가의 정신을 건축 공간의 언어로 번역되길 바랐다. 과거와 현재, 기능과 상징, 정성과 편의가 교차하는 이 한옥은 단순한 숙박 공간을 넘어, 전통과 현대가 함께 숨 쉬는 새로운 종가 문화의 건축 유형이 될 가능성을 제시하고자 한다. 건축가로서도 오래된 집안의 기억과 이야기를 현재의 삶에 이어 붙이는 작업이었기에, 앞으로도 오랫동안 ‘머무는 동안, 종가의 시간이 스며드는 집’으로 기억되기를 조심스럽게 기대하고 있다.





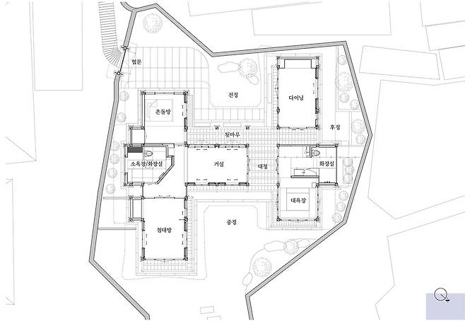
HOUSE PLAN
대지위치 : 경상북도 경주시 현곡면 소현리 632
대지면적 : 294㎡(88.93평)
건물규모 : 지상 1층
건축면적 : 95.67㎡(28.94평)
연면적 : 98.37㎡(29.75평)
건폐율 : 32.54%
용적률 : 33.46%
외부마감재 : 회벽
내부마감재 : 벽·천장 – 마이크로시멘트, 벤자민무어 SCUFF-X, 서까래 노출(천장) / 바닥 – 원목마루, 마이크로시멘트
욕실·주방 타일 : 고흥석, POLYCOR CAMBRIAN BLACK, 마이크로시멘트, 고흥석 버너 포세린타일
수전 등 욕실기기 : 성신도기(Quadro, 아메리칸스탠다드, 라우체)
가구 : AP. Design 김미애, 88가구
조명 : T5 LED 라인조명, 12lighting LED 원형 매립등
대문 : 한식 대문
방문 : 기성도어 위 마이크로시멘트
담장재 : 와편, 흙, 회벽, 포천석, 기와
창호재 : 한식 제작 창호
조경석 : 화강석(진입로)
조경 : 시즌가드닝
전기·기계·설비·구조 : 에싸에르아키텍츠
시공 : ㈜성우건설
대목수 : 제정도
브랜딩 : 브랜딩 컴퍼니 본
패브릭 : 고소미
설계·감리 : 에싸에르아키텍츠






건축가 전소현, 김형섭 : S.aer
INTERVIEW : 효우당 권순미 종부

우리는 서유(1356~1411) 할아버님을 불천위로 모시고 있는 이천 서씨 양경공파 종택입니다. 서유 할아버님은 조선 태종 때 공을 세우시고 4등 공신에 책봉되신 분입니다. 그래서 저희가 불천위 대제를 모시고 있습니다. 유교에서는 원래 4대조까지 제사를 모시고 그 이후에는 신주를 땅에 묻는데, 나라에 공을 세워 인정받으면 특별히 자손이 끊어지지 않는 한 계속 모실 수 있는 것을 이야기 합니다. 불천위도, ‘효우당’이라는 당호도 아무에게나 주어지지 않는 것이라 지금까지 자부심을 가지고 있습니다.
종가는 보수적일 것 같은데, 숙소를 지어 공개했습니다
처음에 이 땅에는 도서관이나 박물관을 지으려 했었어요. 종가가 600년 역사를 이어오면서 지킨 문헌이나 문화유산 등을 정리하고 보존하며 종가 문화를 알리기 위해서였지요. 종가는 아무래도 아무 직업이나 가지기는 어렵습니다. 이 집을 지켜야 한다는 사명감 같은 게 종손이나 종부에게는 있거든요. 한편으로는, 이 종가를 지켜나가기 위해서는 경제적인 뒷받침이 있어야 합니다. 경제적인 이유로 집을 떠나 비우면 집은 금방 쇠락해지기 마련입니다. 종가도 마찬가지입니다. 종가에 사람이 살아야 종가가 유지가 됩니다. 그래서 종가의 문화와 요리, 그리고 공간을 활용할 수 있는 일로 이 사랑채를 짓고자 했고, 지금의 모습으로 손님들을 맞이하고 있습니다. 과거 도서관 계획은 그 콘셉트가 남아 집의 형태나 인테리어 곳곳에 녹아있습니다.
효우당 사랑채는 어떻게 짓고자 했습니까
집다운 집을 짓고 싶었습니다. 숙소들이 사진을 찍어 남기기 위한 공간을 마련해놓고 보기 좋게만 만들어놓는 경우를 적지 않게 봤는데, 정작 주거 공간으로서는 불편하거나 맞지 않는 경우가 있었습니다. 잠깐 머무는 데는 크게 문제가 없겠지만, 그럼 집이라고 하긴 어렵겠지요. 당장은 아니지만 먼 미래에 이곳을 살림집으로 써도 불편함이 없도록 집다운 집을 지었다고 생각합니다.
직접 관리하고 손님을 대접하는 게 어렵지 않나요
종가에서는 늘 손님을 맞이하는 게 일상입니다. 효우당 사랑채 손님들을 위해 더 고생하는 게 아니라, 하던 대로 정성껏 준비할 뿐입니다. 예를 들면 침구를 정리하면서 풀을 먹이고 하는 일도 우리에게는 대수롭지 않은 일과지만, 손님들은 무척 인상깊어 하세요. 오히려 손님들 반응을 보면서 우리가 해오던 것이 엄청난 것이었구나를 생각하기도 합니다.
손님을 맞은지 1년 정도 되었네요. 인상적인 손님이 있었을까요
한 분 한 분 다 깊게 마음에 새겨 누구를 꼽기가 어렵습니다. 굳이 꼽자면 외국에서 오신 손님들이 생각납니다. 외국분들은 한국 문화 자체가 낯선데, 이렇게 가정 속 깊이 들어와서 대접받을 일이 잘 없으시니까 더 특별함을 느껴하시거든요. 더욱이 주인을 직접 만나 이야기를 나누고 집안의 역사를 배우고 직접 상을 받는 것에서 깊은 인상을 받는 것 같습니다. 물론, 우리나라분도 무척 좋아하세요. 연세 있으신 한 손님은 음식을 드시며 ‘돌아가신 엄마가 해준 음식인 것 같다’며 우시더군요. 음식 외에도 이 공간이 좋아서 하루 종일 대청마루에 누워 시간을 보내는 분도 계셨고, 늘 풀 먹여 정돈하는 침구에 놀라시는 분도 생각납니다.
POINT 1_FOOD

POINT 2_FABRIC

‘봉제사 접빈객’이라는 말이 있습니다. ‘조상의 제사를 정성껏 받들고, 찾아오는 손님을 극진히 대접한다’는 종가의 정신을 가리키는 말입니다. 종가 음식은 정성과 함께 재료가 아주 중요합니다. 제사 지낼 때 항상 좋은 재료를 썼기 때문에 어머님 옆에서 좋은 재료 고르는 법을 배워왔지요. 이런 재료로 정성껏 요리해 대접할 뿐인데, 그런 것을 손님들이 잡수시고 좋다고, 특별하다고 생각하시는 것 같습니다.
대외적으로도 종가 요리를 알리는 일을 해오고 계신데
저는 요리에 그렇게 관심이 많은 사람은 아니었습니다. 시집오기 전에도 학교에서 가정관리학과를 전공해서 요리 실습도 조금은 했지만요. 그러다 제가 종가로 시집을 오고 어머님이 하시는 것을 지켜봤지요. 제사가 1년에 열몇 번씩 있고, 그때마다 손님들이 오시니까 어깨너머로 많이 배웠습니다. 그렇게 한 해 두 해 지나다 보니 어머님의 맛에 혀가 익숙해지고, 어머니의 솜씨에 눈이 익더군요. 그러던 어느 날 종가를 소재로 하는 어떤 프로그램이 저희를 섭외했는데, 거기에 우연히 출연하게 되면서 ‘요리를 잘하는 사람’처럼 비춰졌습니다. 실상은 전혀 아니었는데 말이죠(웃음). 그래서 이래서는 안되겠다 싶어 본격적으로 어머님 요리와 음식을 기억을 더듬어가며 연구하기 시작했습니다.
이 겨울에 효우당을 찾는 분들은 어떤 음식을 먹게 될까요
기본적으로는 저희가 짜놓은 메뉴가 있긴 합니다만, 반찬 종류에서 달라지는 게 더러 있습니다. 예를 들면 메주를 쓸 때 나오는 메줏물을 이용한 반찬들이 있는데, 시금장이나 곤짠지, 노란 콩잎 김치 등이 있겠습니다. 그리고 가을에 말려둔 호박꼬지를 등갈비찜에 넣기도 하는 등, 겨울은 겨울대로의 맛을 즐기실 수 있습니다. 꼭 겨울이 아니더라도 저희 집에서만 맛볼 수 있는 대표적인 재료를 꼽자면 직접 담근 장과 젓갈이 있습니다.
효우당이 앞으로 하고자 하는 일은 무엇입니까
특별한 것을 준비하고 있지는 않습니다. 무탈하게 오래 여기를 지킬 수 있으면 하는 바람입니다. 한 번은 한국계 외국분을 손님으로 맞은 적이 있었습니다. 우리가 가꾸고 지켜온 종가 문화를 보면서 비로소 한국 핏줄이라는 것에 자부심이 생겼다며 고마워하셨어요. 그 후에는 책임감을 느끼게 되더군요. 고루하고 불편한 무언가가 아니라 프라이드가 되는 종가 문화를 알리고 싶은 마음이 있어요.
효우당과 함께 즐겼으면 하는 주변 관광지나 체험이 있다면
경주에는 좋은 곳이 많지만, 여기에서의 쉼 그 자체만으로 완결되는 여행이 되었으면 합니다. 효우당이 간직하고 있는 종가의 역사와 문화 이야기를 나누고, 음식으로 즐기고, 또 공간을 만끽하고 만족해 돌아가시게 되면 저희는 그것으로 좋다고 생각합니다.

취재협조 : 효우당
0507-1461-2630 │ www.instagram.com/hyowudang
인터뷰 및 구성_ 신기영 | 사진_ 변종석
ⓒ월간 전원속의 내집 2026년 1월호 / Vol. 323 www.uujj.co.kr