이천 상가주택

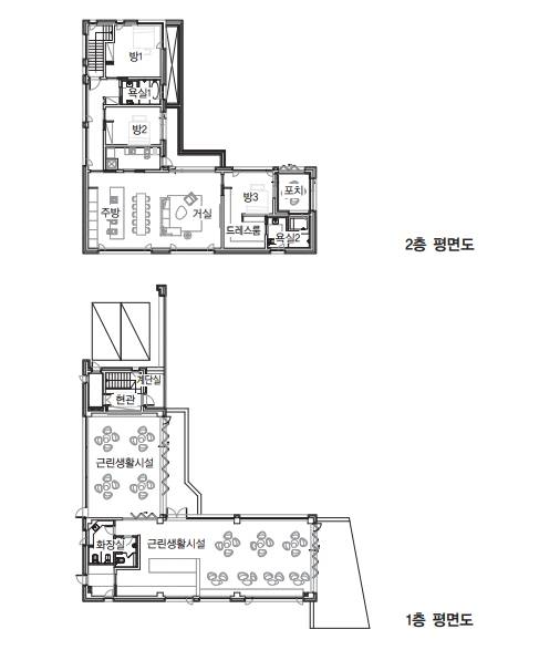
본 주택은 1층 근린생활시설과 2층 주거시설로 구성돼 별도의 입구를 마련해 가족과 방문객의 동선을 구분했다. 전체적인 볼륨은 마당을 가진 단순한 형태일 수 있지만 2층 발코니와 주택 현관에서 연장된 주차 가벽을 통해 보다 규모가 커 보이도록 디자인했다. 주거시설은 공용공간(거실, 주방)을 기준으로 전용공간(자녀방, 안방)을 나눠 배치했고 포치와 발코니를 더해 쾌적한 이용을 도모했다. 내부는 전체 도장을 적용해 깔끔한 분위기로 특히 절제된 마감재 톤을 통한 극대화된 고급스러움이 매력적이다.
진행 남두진 기자 | 자료 더존하우징 인테리어부
HOUSE NOTE
DATA
위치 경기 이천 송정동
건축구조 철근콘크리트조
연면적 432.96㎡(130.97평)
1층 216.48㎡(65.48평)
2층 216.48㎡(65.48평)
설계 및 시공 더존하우징
1644-3696
www.dujon.co.kr
MATERIAL
외부마감 지붕 - 리얼징크
외부 - 치장벽돌
내부마감 천장 - 친환경 수성도장
벽 - 친환경 수성도장, 타일, 템바보드
바닥 - 강마루, 타일
계단재 디딤판 - 오크 집성목
난간 - 오크 손스침
창호 알루미늄 창호
도어 현관문 - 편개 여닫이 도어
내부 - 영림
위생기구 대림, 아메리칸 스탠다드


01 현관
자갈돌 패턴의 그레이 톤 테라조 타일을 적용해 외부와 내부의 연결성이 느껴진다. 2층 중문까지 이르는 동안베이지 톤 계단재가 아늑한 실내로 전개될 진입의 기대를 고조시킨다.


02 전실 & 욕실1
복도는 연한 베이지 톤 강마루가 산뜻한 분위기를 연출하고 이에 맞춰 전실에도 비슷한 톤의 타일을 사용해 공간 간 자연스러운 연계를 부여했다. 짙은 베이지 톤 가구와 조명형 거울이 조합된 욕실은 마치 고급스러운 호텔처럼 보인다.

03 거실
우물형 천장을 크게 이등분해 주방과 간접적으로 공간을 분리했고 마그네틱 조명과 검은색 실링팬을 설치해 모던함을 더했다. 한쪽 벽면에는 템바보드와 박판타일을 리듬 있게 계획해 넓은 공간감에 포인트를 줬다.


4 방1 & 방2
벽과 천장은 전체에 도장 시공했고 무몰딩 걸레받이를 적용해 깔끔함을 극대화했다. 천장의 다운라이트 조명과 실링팬이 공간을 보다 고급스럽게 조성한다.

05 주방
거실과 길게 연계된 공간감에 맞춰 아일랜드 싱크대를 두고 11자형 레이아웃으로 계획했다. 아일랜드 싱크대와 마주한 벽면에는 흰색의 키 큰 수납장을 제작해 전체 분위기에 깔끔하게 어우러지도록 디자인했다.

06 다용도실
한쪽 벽면에 민트색 타일을 사용해 생동감을 주고 캐주얼한 분위기로 연출했다. 나머지 벽면에는 바닥재와 비슷한 톤 타일을 사용해 공간의 확장감을 부여하면서 포인트 벽면을 더욱 강조했다.

07 방3
헤드월은 템바보드와 박판타일로 디자인해 세련미가 느껴지고 짙은 톤 녹색 도장으로 차분한 공간에 생기를 더했다. 헤드월을 기준으로 드레스룸을 분리하고 디자인을 자연스럽게 연결시켜 감각적인 공간으로 완성했다.

08 욕실2
그레이 톤 타일을 사용한 천장에 은은한 간접조명을 더해 모던하고 무게감 있는 공간으로 연출했다. 조적 욕조를 활용한 마감재의 자연스러운 연결도 고급스러움을 더한다.

09 포치
외장재인 적벽돌을 포치에도 그대로 적용해 마치 외부에 나간 듯한 기분이 들도록 연출했다. 고풍스러운 벽등과 적삼목의 색감이 어우러져 유럽풍 분위기를 풍기며, 한여름에도 공간 이용에 불편함이 없도록 에어컨과 실링팬을 함께 마련했다.

10 근린생활시설
양쪽으로 탁 트인 개방감과 내추럴한 인테리어가 조화를 이뤄 세련미가 느껴진다. 고소한 커피향이 어우러진 감성적인 공간에서 통창을 통해 계절 따라 변하는 풍경을 감상할 수 있어 고즈넉하고 아늑하다.

