
안녕하세요, 저희는 올해로 10년차 부부입니다. 결혼하며 마련했던 약 23평의 작은 아파트에 줄곧 살고 있어요. UX디자이너로 일하고 있는 남편은 코로나 이후 거의 재택근무를 하게 되었고, 저는 웨딩플래너인데 프리랜서로 전향하면서 일정이 있을 때만 출근을 해요.
집에 있는 시간이 늘어나다 보니 그동안 애써 눈감고 지냈던 집 곳곳의 문제점들이 하루가 다르게 크게 느껴지기 시작했습니다. 이사를 고민하기도 했지만 서울을 벗어나지 않으면서 평수를 키워 가려면 인테리어는 또 포기를 해야할 것 같았어요. 아직 아이가 없기도 하고 취향을 담은 집에 살아보고 싶다는 오랜 소망을 실현하기에는 지금 집을 리모델링 하는 게 더 나은 선택이라고 생각했습니다.
그러던 차에 프랑스에 살고 있는 동생 부부가 1년 6개월 만에 한국에 들어오는 일정이 잡혔고 기왕 리모델링을 할 거면 그 전에 해서 짠 하고 보여주자는 마음에 부랴부랴 시작하게 되었어요.
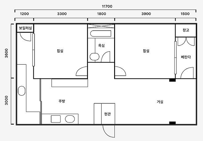
도면

저희 집은 99년도에 준공된 계단식 아파트예요. 도면에서 거실이 있는 공간에 원래는 방이 하나 더 있었어요. 전 집주인분이 이 부분을 이미 확장해 두신 상태였고요.
리모델링 하면서 가장 중요하게 생각했던 건 주어진 공간을 저희 생활 패턴에 맞게 효율적으로 사용할 방법을 찾는 것이었어요. 10년 동안 이 집에서 살면서 불편했던 점을 먼저 체크했고 더 나아가 오래 머물고 싶은 공간을 만들고자 했습니다.
인테리어 컨셉
동생이 프랑스에 살고 있고 저 또한 유럽을 좋아해서 매년 동생을 방문한다는 핑계로 유럽 곳곳을 다녔거든요. 여행을 할 때는 현지 식재료로 요리해 먹는 재미가 좋아 호텔이 아닌 에어비앤비를 선호하는데 저는 유럽 집들의 빈티지한 감성이 참 좋았어요.
그래서 이번에 리모델링 할 때도 처음에는 최대한 그런 컨셉으로 가려고 계획했었죠. 다크한 헤링본 마루, 유럽 미장, 오픈형 우드 선반, 주방 벽에 걸린 황동 냄비들. 그런 거 있잖아요.
하지만 구체적으로 시안을 그리면서 하나하나 포기하게 되더군요. 크고 긴 창이 없는 집에서 헤링본 마루는 너무 딥하고, 유럽 미장은 제가 원하는 '느낌적 느낌'을 표현할 수 있는 미장공을 찾기 어렵고, 한 그릇 요리가 아닌 제대로 된 한식을 선호하는 사람의 주방은 복잡한 조리과정을 소화할 수 있는 수납력과 동선을 갖춘 주방이 필요하니까요.
그래서 저희 집은 결과적으로 감성과 효용 사이 어딘가에 끼어있는 컨셉이 되었어요. 유러피안 빈티지가 아니라 유러피안 미드센츄리라고 해야할까요.
현관 Before

협소한 현관은 신발장으로 주방과는 경계가 있지만 거실 쪽으로는 트여있었어요. 체리색 몰딩과 세트로 맞춘 듯한 문의 시트지와 마루 색상에 비해 현관 바닥 색상이 밝아 좁은 면적이 더 도드라져요.
현관 After

바닥에는 패턴 타일을 거실 쪽까지 올려 확장감을 주고 가벽을 세웠습니다. 덕분에 키 큰 신발장을 한 칸 더 얻었네요. 앉아서 신발을 신을 일이 생각보다 많아 작게나마 벤치장도 넣었구요, 모루 유리로 창을 길게 내어 시야는 가리되 답답해 보이지 않도록 했습니다.

많은 분들이 리모델링을 하면 중문도 꼭 하라고 조언해주셨지만 어떤 형태의 중문도 결국 열고 닫을 때 공간을 필요로 하는데 여의치 않기도 했고 시각적으로도 답답해 보일 것 같아 과감하게 생략했습니다. 살아보니 소음이나 방한이 나쁘지 않아서 괜찮겠다 싶었어요.
거실 Before

기존의 알루미늄 새시는 오래되어 그런지 여닫기가 매우 뻑뻑했고 추운 날에는 웃풍도 느껴졌습니다. 게다가 불투명 유리창이라 아침 반나절 잠시 해가 들어오는 북동향 거실은 하루 종일 어두침침했고요. 창 밖으로 예쁜 벚나무와 은행나무가 있는데 사계절 내내 그림자만 보고 지낸 것이 제일 아쉬웠어요.
거실 After

우물천장은 평탄화 했고 기존 천장등은 유지했습니다. 생활의 대부분이 이루어지는 거실에 간접조명만 있으면 불편할 것 같았어요. 두꺼웠던 양쪽 날개 내력벽 마감도 최소한의 두께로 시공했고, 소파는 등받이가 낮은 걸로 골라 눈높이를 낮춤으로써 공간을 최대한 넓어보이게 했습니다. 저희 집 천장이 요즘 신축 아파트에 비해 좀 낮은 편이라고 하더라고요.

소파는 '탈로리피' 제품으로 3인용이고 모듈 소파라서 가운데 1인 좌석을 붙여 4인용으로 만들거나 암체어를 추가할 수도 있어서 나중에 더 큰 평수로 이사가면 그렇게 확장할 생각이에요.
테이블 바로 옆에 쇼파를 놓아야 해서 다리가 보이는 체어형 소파는 피하고 싶었어요. 그렇다고 바닥이 막혀 있으면 청소하기가 어려운데 이 소파는 다리 두께나 높이가 딱 적당해서 선택하게 되었습니다. 쉐잎도 너무 각지거나 둥글지 않아서 좋았고 가격까지 모든 걸 부합하는 제품이었어요.
소재는 얼룩제거가 용이한 '에코쉴드' 패브릭에 색상은 '임팔라 크림'으로 살짝 스웨이드 느낌이 드는 텍스쳐에 부드러운 그레이지 컬러입니다. 벽지와 거의 비슷한 색상이라 공간에 자연스럽게 녹아드는 느낌이에요. 대신 또렷한 패턴이 있는 러그를 깔아 시각적으로 영역을 구분하고 율동감을 더했습니다.

리모델링 이전에는 훨씬 큰 가죽소파를 사용했기 때문에 바꾼 소파가 너무 작지는 않을까 했는데 다행히 한 사람이 다리를 살짝 굽히고 비스듬히 눕기에는 충분해요. 쿠션감도 탄탄해서 오히려 허리도 덜 아프고요. 부클 소재를 좋아하지만 세탁도 걱정되고 계절감도 탈 것 같아 풋스툴만 부클 소재로 했는데 같은 라인 제품이라 그런지 소재가 달라도 잘 어울리더라고요.

거실 창은 무조건 투명으로! 해가 귀한 거실이라 굳이 자외선 차단률이 높은 유리로 하지 않았어요. 그런 창은 겹치면 푸른 빛이나 초록빛이 돌아 싫기도 했고요. 3층이긴 하지만 마주보는 건물도 없고 유동 인구가 많은 길도 아니라 걱정 없었습니다. 커튼도 보통 속커튼으로 많이 하는 폴리 소재를 선택 했는데요, 빛은 스미고 시야는 가려주는 정도의 투명도라 산뜻해요.
덕분에 올 봄에는 웬만한 벚꽃 뷰 카페보다 더 훌륭한 풍경을 내다보며 티타임을 자주 가졌어요. 지금은 초록이 가득해 싱그럽고 가을에는 단풍으로 또 다른 매력을 담아낼 액자 같은 창입니다.

나무의 결을 그대로 살린 마감이 매력적인 티크 우드 테이블은 '작은언니네가구점' 매장에서 보자마자 바로 구매를 결정한 제품이에요. 사실 테이블은 창가 쪽에 배치할 거라 시야를 가리지 않도록 다리가 하나였으면 했고 음식 사진이 잘 나오는 화이트 상판이 좋을 것 같아 임스 테이블로 거의 마음을 굳힌 상태였거든요.
그런데 이 테이블은 다리가 네 개지만 가늘어서 괜찮았고 오벌 쉐잎의 상판이 예뻐보였어요. 지금은 존재만으로도 거실의 분위기를 온화하게 만들어주는 것 같아 볼수록 마음에 들어요.
원래 매장에는 이 테이블에 다른 체어가 디피되어 있었어요. 빈티지한 나무 결에 좀 더 유럽 분위기 낭낭한 귀여운 디자인의 체어였는데요. 저는 전혀 다른 디자인의 체어를 골랐습니다. 그리고 테이블과 동일한 티크우드 소재의 작은 스툴을 추가했어요. 정면에 보이는 체어가 같은 매장에서 구매한 제품이고, 건너편에 보이는 체어는 '칼한센앤선'의 위시본 체어예요.

집 전체 무드에 어느정도 모던함이 섞여 있었기에 테이블 체어를 고를 때도 너무 빈티지한 쪽으로 치우치지 않았으면 했어요. 모노톤의 거실에서 TV 다리만 블랙인 게 좀 튀나 싶어서 체어를 블랙으로 해야겠다고 생각했는데요, 이 체어는 다리는 블랙이고 시트는 부클 소재에 등받이는 우드라 거실에 있는 다른 가구들과 일맥상통한 느낌을 주어 더할 나위 없었습니다.
하지만 하나만으로도 임팩트가 충분한 것 같았어요. 한 테이블에 모두 같은 의자인 거, 저는 재미 없더라고요. 그래서 나머지 하나는 일부러 다른 브랜드에서 골랐습니다.
테이블의 오벌 쉐잎을 돋보이게 하기 위해 등받이는 테이블보다 너무 높게 올라오지 않아야 했어요. 위시본 체어는 곡선으로 굴곡진 쉐잎이 테이블과, 라탄 시트는 집 안의 다른 가구나 소품과 어우러져요. 색상은 테이블 조명과 맞춘다고 화이트를 주문했다가 쉬핑 일정이 맞지 않아 네츄럴로 변경했는데 오히려 바닥재와 어울리면서 다이닝 공간이 차분해지고 '루이스폴센' 펜던트가 온전히 돋보이게 된 것 같아 만족해요.
테이블 위에는 조도 조절이 가능한 포터블 조명을 두었습니다. '앤트레디션' 제품이고 브론즈 컬러가 우드와 정말 잘 어울리죠. 요 작은 조명이 별 것 아닌 것 같아도 식사할 때 켜두면 레스토랑 같은 무드를 발산한답니다.

베란다 확장 부분은 열선을 연장하려고 했으나 아파트 규정상 어렵다고 하더라고요. 하지만 마루를 철거해보니 실내와의 온도차 때문에 습기가 올라와 있는 상태였습니다. 그래서 이 부분에는 타일을 깔기로 했어요.
욕실 바닥과 동일한 우드 타일을 선택했는데 발에 닿는 느낌도 괜찮고 시각적으로도 따스해 보여 좋아요. 집이 좁아보일까봐 헤링본 마루를 포기했던 것에 대한 위안도 되었구요.

테이블 옆으로 스탠드형 와인렉을 두었더니 식사하다가 여기서 와인 하나씩 골라 마시는 재미도 쏠쏠해요. 가장 윗 칸에는 이케아 냅킨꽂이가 맞춤처럼 딱 들어가서 귀여운 푸미라를 올려두어 다이닝 공간에 생기를 더했어요.


화이트 상판이 아닌 게 아쉬울 때는 이렇게 화이트 색상의 테이블 보를 깔면 되지만, 생각보다 우드 테이블 위에 어울리는 그릇들도 많아서 플레이팅이 즐거운 요즘입니다. 특히 식물과의 조화는 화이트든, 블랙이든, 우드 테이블을 못 따라오는 것 같아요.

TV 윗 부분에는 방사형 다운라이트 조명을, 커튼박스에는 매립 조명을 넣어 저녁에는 이 조명만 켜두고 생활하기도 해요. 커튼박스를 만들면서 자연스럽게 생긴 홈은 행잉플랜트를 걸기에도 좋더라고요. '이런 게 꼭 필요해?' 라고 생각했지만 의외로 분위기 갑인 시공 품목이었어요.

취미로 그림을 그리는 남편이 거실 톤에 어울리게 그려준 그림이 마음에 들어 러그와 쿠션 커버도 그에 맞춰 교체해봤어요. 집을 고치기 전에는 예쁜 소품을 봐도 어차피 우리 집에 안 어울린다며 외면 했는데 집 전체 분위기가 마음에 들게 바뀌니 그 안에서 소품이나 패브릭 등 작은 변화만으로도 기분 전환이 되네요.

가벽과 소파 사이에는 '펌리빙' 플랜트 박스를 두고 자주 보고 싶은 식물과 소품들을 두었어요. 이 플랜트박스는 꼭 갖고 싶었던 아이템이라 처음 가구 배치를 할 때부터 따로 자리를 마련해놓았죠. 실제로 집에 들여보니 생각했던 것보다 훨씬 예뻐요!
거실 폭이 좁아서 소파 테이블은 따로 두지 않고 소파 아래 틈새로 밀어 넣을 수 있는 디자인의 사이드 테이블을 배치했어요. 이미 다이닝 테이블의 티크우드가 주는 네츄럴한 감성이 강해서 우드 소재는 패스하고 자칫 투박해 보일까봐 볼륨감 있는 디자인도 피했어요. 그러다가 공간 차지를 많이 안 하면서 상판도 글라스라 산뜻해 보이는 클래시콘 제품을 알게 되었습니다.
저는 가구나 소품을 고를 때 디자인과 색상을 주변 요소들과 꼼꼼하게 대조해 보면서 전체적인 균형감을 맞추려고 해요. 캡쳐한 이미지끼리 포개어 보거나 실제로 배치한 후기 사진을 최대한 많이 찾아보면서 수도 없이 마인드맵을 그려본 후 구매하는 편이에요.

저희 집 거실이 방을 확장한 공간이다 보니 폭은 좁고 길어요. 이전에는 다이닝 공간을 따로 두지 않고 식사할 때만 교자상을 폈다 접었다 하며 생활했거든요.
지금 테이블이 놓인 공간에는 부족한 수납 공간에 시위하듯 리빙박스가 쌓여 있었어요. 이제는 그 안에 쌓여있던 물건들이 모두 제자리를 찾아 들어갔으니 이번 리모델링은 그것만 해도 큰 성과라고 할 수 있죠.

TV는 '삼성' 쉐리프 55인치입니다. TV는 거거익선이라고 하시는 분들 많던데 저는 너무 큰 TV는 좀 어지럽더라고요. 제 기준에서 저희 집에는 이 사이즈가 딱인 것 같아요.
디자인적으로는 티비장을 두기엔 답답해 보일 것 같고 벽걸이를 하자니 소파 위치를 변경할 수 없을 것 같아 스탠드형 TV 중에 고민하다가 쉐리프가 본체와 다리의 비율이 제일 안정적으로 보여서 선택했어요. 근데 막상 설치해보니 어마무시하게 무거워서 생각만큼 이동이 자유롭지는 않네요.

TV 옆에는 '스테이엠' 모듈장식장을 두었어요. USM은 배송기간이 너무 오래 걸려 포기했는데 이 제품이 컬러도 소재도 USM 못지 않아 가심비가 좋아요.
색상은 베이지로 생각했다가 살짝 그레이 컬러가 섞인 색상으로 변경했는데요, 시공이 끝난 집을 실물로 보니 벽지나 몰딩이 제가 예상했던 베이지톤이 아니더라고요. 그래서 톤을 맞춰 소파 색상과 장식장 색상을 골랐어요. 이 톤이 오히려 우드와도 더 세련되게 매치되는 것 같아 만족해요.

위에 올려둔 '아르떼미데' 알파 테이블램프의 스틸+블랙 조합이 장식장, TV와 나란히 어울리지 않나요? 이 조명은 정말 실물깡패예요. 아르떼미데 테이블 조명 중 유독 금액대가 있는 편이라 의아하면서도 너무 끌려서 구매 했는데 평생 쓸 아이템이라고 생각해요.
갓 부분은 가벽에 넣은 유리, 현관 센서등처럼 모루유리 느낌이고 스탠드 부분은 스틸, 받침은 블랙 마블이어서 지금의 저희 집 뿐만 아니라 군더더기 없이 모던한 집에도 어울릴 디자인이거든요.

TV 전선 및 셋탑박스 등은 내부가 2단으로 나누어진 서랍장 뒤로 구멍을 뚫어 정리했습니다. TV, 테이블, 장식장까지 다리가 있는 가구가 많아 일부러 다리가 없는 디자인으로 골랐고 살짝 비스듬히 놓아 가구가 벽면을 따라 일렬로 나란히 늘어선 느낌을 피하려고 했어요. 그 위에는 좋아하는 소품들을 바꾸어가며 올려놓고 있답니다.

저희 부부는 노란 빛이 도는 간접조명을 좋아해서 집에 조명이 좀 많은 편이에요. '프리츠한센'의 나이트아울을 선택할 때도 주변 가구와의 조화를 생각했어요.
조명을 올려둔 장식장과 옆에 있는 다이닝 테이블이 우드이고, 테이블 위 펜던트 조명이 화이트니까 그 두 가지 조합인 컬러로 선택했습니다. 모든 아이템에 이런 식으로 알고 보면 나름 저만의 치밀한 궁리가 녹아있어요.
주방 Before

빨간색 하부장이 시선강탈이었던 주방입니다. 입주청소로도 다 지우지 못한 전 집주인 분의 생활의 흔적에 저희가 쌓아올린 10년 간의 흔적으로 청소를 해도 완벽하게 깨끗해지지 않았던 공간이죠. 조리공간이 너무 좁아 다용도실로 나가는 문 앞으로 아일랜드 조리대를 따로 두고 활용했어요.
주방 After



1. 이케아 주방
주방 하부장과 수납장은 이케아에서 진행했습니다. 이케아 주방의 장점은 걸레받이가 낮아 수납 공간이 조금 더 넓고 하부장 높이가 높아 키 큰 저에게 오히려 편하다는 거예요. 돌출형 도기 싱크볼에 우드 상판 조합은 저와 남편 모두 주방에서의 로망이었어요. 해놓고 보니 역시나 마음에 들지만 관리는 쉽지 않아요.
싱크볼에 그릇을 놓을 때도 기스가 날까 노심초사, 우드 상판에 물이 고여 있으면 얼룩이 질까봐 바로바로 닦아내느라 다소 피곤한 주방이 되었지만 그래도 저희 눈에는 예쁘니까, 아직은 참을만 합니다.
2. 수납
싱크대 위쪽으로는 오픈형 우드 선반을 하고 싶었지만 수납을 위해 상부장을 선택했습니다. 대신 가운데 두 칸을 유리장으로 해서 시각적으로 숨통을 틔워주었어요. 이케아팀에서 내부와 하단에 조명 추가를 추천해주셨는데 장식적인 효과 뿐만 아니라 간단한 작업을 할 때는 이 조명만 켜도 충분해서 편리하더라고요. 사진으로 보니 조명의 존재가 훨씬 크게 와닿네요. 유럽 감성 주방의 필템인 하츠 침니후드는 배관을 가리기 위해 박스를 따로 제작했는데 이것도 이케아에서 시공할 때 같이 해주었습니다.
이케아 하부장 서랍은 깊이가 넉넉해서 냄비 수납도 든든하답니다. 서랍 구성을 내가 원하는대로 커스터마이징 할 수 있고 그 안에 딱 들어맞는 빌트인 소품들도 다양해서 필요에 맞게 조합하면 정말 실용적으로 사용할 수 있어요.
인덕션은 저만 느끼는 건지는 모르겠지만 삼성의 화이트는 푸른빛이, 엘지의 화이트는 크림빛이 돌아 엘지를 선택했습니다. 엘지 제품이 더 비쌌지만 친정엄마 찬스를 이용했어요.
3. 타일
주방 타일은 세로로 긴 타입의 70x280 사이즈 유광 크림톤을 사용했습니다. 무광 타일을 선호하는 편이지만 얼룩이 쉽게 지워지는 유광이 주방에는 더 적합하다고 판단했어요. 우드 상판과 색상이 비슷해도 매트한 상판과 달리 광택이 돌아 확연하게 경계가 구별 되죠.
원장 사이즈가 큰 타일이라면 몇 장 안 붙이고 끝났을 면적인데 조각 타일을 붙이기로 해서 타일 팀에서 고생을 좀 하셨어요. 그래도 저는 벽이 하나의 면인 것처럼 보이는 것보다 이런 비일률적인 빛감과 톤이 좋더라고요. 정사각형이 아닌 세로형을 선택해 상부장으로 막힌 벽면이 조금이라도 높아보이길 바랐고요.
인덕션 옆면에는 일부러 타일 높이를 보조 주방 쪽과 맞춰 거실 쪽에서 바라보았을 때 이어지는 느낌이 들도록 했어요. 이 부분에도 보조 주방처럼 민트색 몰딩을 둘렀으면 더 좋았을 텐데 놓쳤네요.

다용도실로 나가는 중문을 시원하게 유리문 두 짝 미닫이로 했더니 좁고 긴 주방에 개방감이 생겼어요. 중문 색상은 제가 좋아하는 민트 색상으로 하고 동일한 컬러로 보조주방 타일 윗 부분 몰딩 작업도 했습니다.

커피머신 위에는 쨍한 그린색상 조명으로 포인트를 주었어요. 사진에서는 보이지 않지만 시계의 테두리도 민트 색상이랍니다.
사실 다운라이트 조명으로 이미 충분히 밝은 곳이었음에도 굳이 '앤트레디션' 플라워팟 펜던트 조명을 단 이유는 컬러감 때문이기도 하지만 이 곳부터 주방이라는 인상을 주고 싶어서였어요. 테이블은 없으나 엄연히 주방으로서의 기능에 더 충실해진 공간에 대한 예우랄까요.

리모델링 전 욕실 앞에 있던 그릇장도 마침내 제 자리를 찾았습니다. 스테인레스로 된 플레이트 렉은 단순히 예뻐서 들였지만 실용성마저 좋은 아이템이에요. 자주 쓰는 그릇을 넣어두고 바로바로 꺼내어서 쓰기에 좋고 요즘 인기있는 '쇠테리어' 감성도 충만하고요.
'아르떼미데' 핀자 미니 조명은 어디에 달아도 위트 있는 느낌이라 좋아해요. 하부장 손잡이는 이케아에서 세트 느낌으로 추천해주신 화이트 색상의 도자기 손잡이 대신 스틸로 달아 커피머신이나 플레이트 렉이 주는 분위기가 우드 상판과 동 떨어지지 않도록 매치했습니다.

싱크대 맞은편에는 보조주방 개념으로 싱크대와 같은 장을 설치했는데 커피머신과 플레이트렉을 올려두면서 미니 바의 역할이 커졌어요. 이번에 새로 들인 브뢰빌 커피머신 덕에 카페 못지 않은 맛있는 커피를 매일 집에서 마실 수 있어서 행복해요.

엄마한테 물려받아 쓰던 20년 가까이 된 초기 버전 딤채는 이번 기회에 신형으로 바꾸었어요. 2인 가구에는 이 정도 사이즈도 충분합니다. 저희 주방 분위기와 톤에 딱 맞춤이죠? 집에 오신 분들은 모두 이게 정말 김치냉장고 맞냐며 귀엽다고 한마디씩 하셨어요.
다용도실 Before

생활감 적나라한 비포 사진이라 부끄럽지만 한 눈에 와 닿는 비교를 위해 올려보아요. 다용도실은 식자재부터 주방용품까지 필요한 물건을 가장 많이 보관하는 장소라 늘 정리하기가 쉽지 않았던 곳입니다.
다용도실 After

여전히 살림살이는 많지만 나름의 규칙이 생긴 모습입니다. 맞춤제작으로 장을 짰는데 지금 와서 보니 보일러실 앞까지 길게 뺄 걸 그랬다 싶어요. 결국에는 옆으로 줄줄이 수납가구를 추가하고 말았으니 말이에요. 저는 미니멀리즘과 거리가 먼 사람이라는 걸 왜 잊었을까요.

다용도실이 저희 집에서 하루종일 해가 가장 오래 들어오는 곳이라 블라인드는 필수거든요. 기존의 무거워 보였던 우드 블라인드 대신 얇은 알루미늄 블라인드로 교체 했더니 바닥 타일과도 느낌이 맞아 좀 더 깔끔해보이는 것 같아요.
맞춤장 한 쪽에 미니 개수대를 매립해 걸레를 빨거나 식물에 물을 줄 때 정말 잘 활용하고 있어요. 남편이 이 작은 집에 개수대가 왜 두개나 필요하냐고 했었지만 지금은 본인도 새하얀 도기 싱크대를 피해 여기에 물감을 버리더라고요. 이 부분은 저의 선견지명이었던 걸로. 세탁기는 빌트인처럼 장 아래 넣기 위해 10kg짜리로 바꿨는데 작지만 건조 기능까지 있어서 만족해요. 물건을 올릴 수 있는 상판이 늘어나니 소형 가전들도 모두 다용도실로 옮겨둘 수 있어 주방 수납이 훨씬 수월해졌습니다.

보일러실 문은 주방 중문과 동일한 민트색 시트지로 커버업했어요. 손잡이는 '자라홈'에서 직접 구매해서 설치를 요청드렸습니다. 어쩜 이렇게 문 색상과 찰떡으로 어울리는지 볼 때마다 흐뭇해요.
침실 Before

여기도 거실처럼 불투명 유리창이었어요. 전 집주인 분은 아마 커튼을 달고 싶지 않아서 그러셨나봐요. 하지만 저는 이게 그렇게 답답하더라고요. 창을 열어도 베란다가 삭막한 공간이었기 때문에 늘 창을 닫고 지냈습니다.
그래서 어둡고 환기도 잘 되지 않는 방이었어요. 어차피 낮 시간대에는 이 방에 거의 들어오지 않으니까 괜찮다고 생각했는데 요즘 아침에 눈을 떠서 커튼을 젖히고 창을 열어 식물들을 볼 때면 이렇게 소소하고 확실한 행복이 이 공간에 있었구나 싶어요.
저는 인테리어를 결정하고 시작하기까지 채 2주도 걸리지 않았기 때문에 사전에 고민할 시간이 많이 부족했어요. 만약 인테리어를 계획 중이시라면 시공 단계를 잘 체크하셔서 각 시공이 시작하기 전 의견을 명확히 하셔야 한다는 점 꼭 기억하세요!
그리고 하루에 너무 많은 걸 고르거나 결정하는 것도 피하는 게 좋아요. 침실 에어컨을 재설치할 때 배관 위치도 기존의 위치 그대로 잡았는데요, 사실 예전부터 배관이 너무 낮게 내려와 코끼리 코처럼 보이는 게 거슬렸거든요.
이번에 도배를 하면서 기존 구멍을 막아두어서 새로운 위치에 다시 뚫을 수 있었는데 그 생각을 미처 못했지 뭐예요. 에어컨 설치하는 날 가구 하나가 배송왔고 커튼 실측에 셋탑박스 AS도 있어서 정신이 없었어요. 적당한 스케줄 배분, 중요합니다.
침실 After

투명 창으로 바뀐 것만으로도 훨씬 화사해졌죠. 원래는 오른쪽을 통창에 가깝게 크게 내고 왼쪽을 작게 해서 2쪽으로 하려고 했는데 의견 전달의 타이밍을 놓쳐서 3쪽이 되어버렸어요.
침대 프레임과 협탁, 화장대, 붙박이장까지 침실의 모든 가구는 신혼 때 구비한 그대로입니다. 붙박이장은 뗐다가 재설치를 하면서 우여곡절이 많았는데요, 몰딩이 확 줄어들면서 기존 몰딩에 맞춰 잘라둔 부분이 텅 비어버렸어요.
그래서 인테리어 업체에 부탁해 상단 부분을 시트지로 커버 작업했습니다. 이 방에도 확연한 변화를 주고 싶어서 배치를 바꿔볼까 했지만 에어컨 위치나 붙박이장 위치는 변경하기 어렵고, 침대 헤드를 창쪽으로 두자니 창 밖의 식물들을 가릴 것 같아 결국 원래의 배치대로 유지했어요.

대신 확실하게 포인트가 되는 벽지를 추가 했는데요, 마음에 드는 패턴을 찾기까지 꽤 힘들었지만 로맨틱하면서도 너무 화려하지 않은 걸로 결국 찾아냈어요. 침구는 무늬가 없는 단색으로 세팅해 복잡해보이지 않도록 했고요. 저희 집 포인트 컬러인 민트가 이 공간의 색감과도 잘 어울리죠? 기분이나 계절에 따라 크림옐로우, 화이트 침구로 바꾸기도 해요.

침실에서 유일하게 새로 마련한 아이템은 벽에 설치한 조명과 선반, 그리고 화장대 스툴이에요. 협탁을 양쪽으로 놓을 만한 공간이 없어서 벽등과 선반을 설치했어요. 덕분에 저희 두 사람 모두 잠들기 전에 각자의 자리에 누워 책을 읽거나 핸드폰을 볼 때 더 편해졌답니다.

눕거나 일어날 때 머리에 걸리지 않는 너비의 선반을 고르는 게 정말 어려웠어요. 벽등이랑 세트냐고 물어보시는 분들이 있는데 각각 따로 구매했지만 서로의 소재와 쉐잎, 사이즈까지 고려해서 골랐기 때문에 그렇게 보이는 것 같아요. 금속 부분 색상이 브론즈라 협탁, 화장대 손잡이와도 통일감이 있죠.

화장대 스툴은 '지베누어' 제품입니다.
협탁 위 조명은 신혼 때 엄마가 선물로 주신 거예요. 마치 자개 모빌처럼 보여 오브제로서도 손색이 없지만 스틸 소재의 스탠드가 이 방에서는 조금 튀었거든요.
이제 같은 소재의 스툴 다리가 함께 어울려주어 마음이 편안합니다. 물론 시트가 부클 소재인 것도 선택의 이유예요. 부클 소재의 쿠션도 있는데 가을 쯤 다시 꺼내볼 생각입니다.
욕실 Before

보관이사 전에 짐 정리 중인 상태인데요, 감안하고 보더라도 복작복작하죠. 현관문을 열면 바로 마주 보이는 뷰였는데 갈 데 없던 그릇장이 자리를 차지하고 있었습니다. 작은 집인데도 주방을 벗어난 공간에 있다보니 이 그릇장 안에 있는 그릇은 잘 안 쓰게 되더라고요.

욕실은 전 집주인 분이 원래 있던 욕조를 없애고 유리 파티션으로 샤워부스를 만들어 둔 상태였어요. 저희가 욕조를 다시 만들려고 철거를 하고 보니 기존의 배관을 시멘트로 막아두었던 거 있죠.
게다가 저희 집이 아파트가 꺾이는 부분에 있어 작은 방부터 샤워실까지 한 쪽 벽면이 사다리꼴로 좁아지는데 그 부분의 타일을 반듯하게 재단하지 않아 군데군데 이격이 있었습니다. 집 전반적으로 마감이 엉성하고 잘못된 자재를 쓴 부분들이 많았는데 욕실이 특히 더 그랬어요.
욕실 After


욕실에는 욕조를 꼭 만들고 싶었어요. 여행 갈 때마다 숙소에 욕조가 있으면 이럴때 반신욕을 해야한다며 의무처럼 물을 받곤 하던 남편을 위해 언제든 집에서 반신욕을 할 수 있게 해주고 싶었거든요.
사다리꼴로 좁아지는 벽면은 욕조를 넣기 위해 조적선반으로 메우고 간접조명을 매립해 은은한 분위기를 연출했습니다. 덕분에 죽은공간으로 여겨질 수 있었던 부분이 홈스파를 위한 최적의 공간이 되었어요. 새롭게 생긴 욕조에서 여름에도 반신욕을 즐기는 우리. 미온수에 몸을 담그고 나오면 체온이 떨어진 게 더 오래 유지되는 것 같아요. 에어컨 바람을 너무 오래 쐬는 게 싫으신 분들은 미온수 반신욕 추천드려요!

바닥은 처음부터 욕실에 꼭 하고 싶었던 우드 타일로 깔았고 세면대 부분까지 이어지게 했어요. 나머지 벽면에는 젤리지 타일과 돌 느낌의 타일을 붙였습니다.
처음에는 변기 옆쪽 벽면까지 모두 젤리지 타일로 하려고 했는데 제가 고른 타일이 재고가 없는 상황이었어요. 그래서 거울 벽면 쪽만 겨우 채울 수 있었죠. 자그마한 욕실에 세 가지 타일을 쓰는 게 어수선해 보이지 않을까 걱정했지만 이 타일을 포기 못하겠더라고요. 시공이 끝나고 나서 보니 타일들이 서로 묘하게 어울려 자연스럽게 포인트가 되는 느낌입니다.


세면대 하부장과 수전은 이케아에서 시공했는데 넉넉한 깊이의 서랍이 두 개나 있어 욕실 수납을 책임지고 있어요. 욕조를 설치하고 남는 공간이 여유있지 않아 더 작은 세면대도 고려했지만 다른 디자인은 눈에 들어오지 않았어요.
결국 아슬아슬하게 욕조와 변기 사이에 최소한의 간격만 두고 세면대를 설치했습니다. 세면대 위 공간이 넓어 따로 선반을 설치하지 않고 칫솔과 비누 등을 놓아둘 수 있게 된 것은 뜻밖의 수혜였어요. 덕분에 벽면에는 거울과 볼 조명 두 개 외에 다른 것은 생략해 공간이 답답해 보이지 않게 되었습니다.


건식으로 사용하기 위해 욕조에는 샤워커튼을 달았습니다. 최대한 방과 같은 아늑한 느낌이 들었으면 해서 선택한 린넨 소재의 샤워커튼은 방수가 잘 안되더라고요. 그래서 안쪽에 톤을 맞춰 비닐소재의 샤워커튼을 이중으로 달았습니다. 천장은 이노솔로 마감해서 분위기를 맞췄구요.

욕조 수전은 아메리칸스텐다드 제품 중 물줄기가 넓게 나오는 디자인을 찾았어요. 평범한 디자인의 수전보다 훨씬 비쌌지만 위시리스트였던 그로헤 수전을 기다릴 수 없어서 선택했으니 되려 예산은 아꼈다며 합리화를 해봅니다. 이케아 수전이 유광이라 같은 유광으로 맞췄고요. 욕조에 물을 받을 때마다 호텔 욕실 느낌이 나게 해주는 아이템이랍니다.


욕실 앞에는 벤치를 두어 옷을 벗어두거나 갈아입을 옷을 올려두어요. 부피가 큰 샤워타올도 수납하구요. 현관에서 마주보이는 벽에 남편의 그림을 걸고 핀 조명으로 돋보이게 해주었답니다.

집에 들어설 때마다 우리의 결혼 모습을 담은 그림이 보이니 다시 신혼으로 돌아간 느낌이랄까요. 그 옆으로는 오브제 목적으로 폰드 미러를 달았는데 전신을 비추어서 오며 가며 가장 많이 보게 되는 거울이 되었어요. 저희 집의 작은 갤러리 공간이라고 소개하고 싶어요.
서재/드레스룸 Before

작은 방은 저희 부부의 서재 겸 드레스룸으로 사용했습니다. 신혼 때 남편의 로망이 나란히 책상에 앉아 공부나 업무를 하는 일상이었대요. 하지만 취미 부자인 남편은 그림도 그리고, 책도 읽고, 재택업무도 하면서 이 공간에 대한 애착이 점점 커진 반면 저는 시간이 나면 바깥에 나가 돌아다니는 스타일이고 업무도 주로 외부일정이다보니 책상에 앉을 시간이 많지 않았어요.
결국 남편은 로망과 함께 커플 의자를 버리고 오래 앉아 있어도 편한 의자를 새로 샀습니다. 컴퓨터 모니터도 큰 걸로 바꾸더니 짐도 점점 늘어 제 영역까지 침범하기에 이르렀어요. 그래서 리모델링을 하면서 책상만큼은 남편의 필요에 맞게 새로 꾸며줘야겠다고 생각했죠.

이 방에는 작게 붙박이장이 있었는데 안쪽은 욕실과 마찬가지로 사다리꼴의 공간이라 책장 뒤로도 좁고 깊게 공간이 뚫려 있어 옷이 꽤 들어갔어요. 안방에도 붙박이장이 있었지만 10년 동안 차곡차곡 모인 옷들은 이미 포화상태였기 때문에 저에게도 수납공간의 확보는 중요한 이슈였습니다.
3D 모델링

처음에 제가 요청드린 이 방의 모습은 문을 열면 창 쪽으로 옷 수납 공간이 있고 벽쪽으로 책상을 만드는 것이었어요. 그래야 붙박이장 공간을 뚫어 책장으로 만들고 책상을 길게 뺄 수 있을 거라고 생각했기 때문이에요.

그런데 인테리어업체 대표님께서 방문을 열었을 때 주렁주렁 걸려있는 옷들이 마주 보이면 답답하지 않겠냐면서 새로운 구조를 제안해주셨어요. 사실 공간의 제약 때문에 서랍이 아닌 옷장은 오픈형태로 갈 수밖에 없었거든요. 이 구조로 하면 기존 붙박이장 안쪽 빗각 공간도 선반으로 만들 수 있고 공간 분할도 더 잘 되어 보이는 것 같아 마음에 들었습니다.
최종적으로 이 시안에서 오픈장을 'ㄱ'자로 꺾어 수납력을 높이고 빗각장과의 사이에는 깨알같이 전신거울도 달았죠. 간살 가벽부터 빗각장까지는 같은 색상의 필름으로 마치 연장된 공간처럼 보이도록 해 깊이감을 주었습니다.
커다란 책상과 넉넉한 옷 수납공간. 타협하기 어려웠던 공간이 인테리어업체 대표님의 아이디어로 저희 집에서 가장 드라마틱하게 탈바꿈했는데요, 어떻게 변했을까요?
서재/드레스룸 After

완전히 다른 모습이 되었죠? 공간의 효율성을 위해 방 전체를 제작 맞춤가구로 채웠습니다. 책상과 옷장 사이는 간살 가벽을 설치해 시각적으로 공간이 구분되어 보일 수 있게 했어요.
한쪽 벽면을 모두 할애한 책상은 보기에도 시원시원하고 쓰임새도 좋아요. 책상 왼편으로 서랍장을 연장하면서 남편의 공간도 확장되었어요. 업무할 때는 모니터가 있는 책상 부분을, 그림 그릴 때는 몸만 돌려서 왼편 책상 부분을 활용할 수 있어서 효율적이에요.

레어로우를 설치하고 싶었던 벽면은 책상과 이어지게 책장을 짜넣었어요. 제가 본 이미지들에서 레어로우는 어느 정도 비워두고 오브제 전시장처럼 꾸미는 게 예쁘더라고요. 하지만 남편에게도 편하게 사용할 수납공간이 있어야 하니까요.

책상 및 가구의 필름 색상을 남편의 요청대로 최대한 어두운 우드 톤으로 골랐더니 이 방만 저희 집 다른 곳들과 다르게 차분하고 모던한 이미지가 되었습니다. 그래서 블라인드 대신 로만쉐이드 커튼을 달아 부드러운 느낌을 더해봤어요.
'아르떼미데' 톨로메오 바스큘란테 테이블 조명은 높이 조절의 폭이 크고 린넨 텍스처의 갓으로 은은한 조명이 매력적이에요. 거실에 같은 디자인의 플로어 램프를 놓고 싶었는데 스탠드형 에어컨 때문에 펜던트 등을 선택하면서 미련이 남아 미니어처 느낌의 이 조명을 골랐어요.
남편은 이 공간을 정말 좋아해요. 본인의 필요에 맞게 설계 했고 이 집에서 유일하게 본인 마음대로 꾸밀 수 있는 부분이기도 하니까요. 대표님과 머리를 맞대고 수정에 수정을 거듭하며 완성한 공간이라 저 또한 애착이 갑니다.


남편 책상의 반대편은 옷을 위한 공간입니다. 붙박이장을 철거하고 깊이 있는 공간을 따라 길게 오픈형 장을 짰구요, 붙박이장 안쪽으로 파여있던 사다리꼴 공간은 빗각장으로 만들었습니다. 사진을 보니 옷 정리는 다시 해야 할 것 같네요. 수납공간을 늘리고 옷을 많이 처분했는데도 터져나갈 것 같아요. 저만 이런 거 아니죠? (민망)
베란다 Before

베란다는 길고 좁은 형태로 바닥에는 타일이 아닌 마루가 깔려있었어요. 역시나 습기에 취약했겠죠. 좁은 공간에 진행 방향으로 버티컬이 달려있는데 한 켠에 짐을 두니 통로는 더 좁아져서 창고까지 가는 길에 몸으로 쓸어 버티컬이 뒤집히기도 했어요. 창고 안쪽은 공간이 깊고 넉넉했지만 습기가 차 곰팡이가 피었기 때문에 수납할 수 있는 물건이 한정적이었습니다.
여러모로 쓰임이 애매한 이 공간을 침실 면적도 넓힐 겸 확장을 할까 생각했으나 거실처럼 확장 부분에 열선을 못 깔면 방으로서의 활용도는 낮을 것 같더라구요. 고민 끝에 이곳을 작은 정원처럼 꾸며보기로 했습니다.
베란다 After

벌레를 너무 무서워하는 저는 집에서 식물을 키울 생각을 한 번도 해보지 않았어요. 하지만 인테리어 사진들을 보다보니 식물이 공간에 불어넣는 생동감이 매력적이더라고요. 지금은 집 곳곳 어울리는 식물을 배치하는 플랜테리어의 매력에 흠뻑 빠졌어요.
베란다 정원을 구상하고 나서 가장 먼저 고른 건 벽돌색상의 테라코타 타일이에요. 창고 문은 우드 느낌이 나는 필름지를 붙이고 손잡이도 최대한 튀지 않게 작고 슬림한 걸로 골랐어요. 대놓고 창고 문처럼 보이지 않길 원했거든요.
창고 내부는 방습코팅을 철저하게 해서 이전에 비해 훨씬 쾌적해졌어요. 캠핑 용품과 여행 캐리어 등 부피 큰 짐들과 잡동사니를 걱정 없이 넣어둘 수 있게 되어 기뻐요.
인테리어 업체에서 천장에 파이프 헹거를 서비스로 달아주셨는데 헹잉 식물을 걸었을 때 너무 내려오지 않도록 조금 높게 달았어요. 창고로 가는 길에 버티컬 대신 새로운 장애물이 생겨서는 안되었으니까요.
창에는 화이트 우드 블라인드를 달아 깨끗한 느낌을 강조했어요. 덕분에 식물들이 더 초록으로 보이게 해주는 것 같아요. 주방에 있던 접이식 테이블은 제대로 써 본 적도 없이 버리기 너무 아까워서 베란다로 옮겨 플랜트 스탠드로 사용 중이에요.

제가 처음 바랐던 모습대로 작은 정원이 된 베란다의 모습입니다. 초보 식집사 주제에 겁도 없이 식물을 늘렸어요. 베란다는 아침나절 해가 가장 먼저 들어오는 곳이라 식물들이 너무 강하지 않은 햇살을 받기에 가장 좋은 공간이에요.
그래서인지 아직은 모두 건강하고 예쁘게 잘 자라주고 있습니다. 처음 머릿속에 떠올린 그대로의 공간이 된 것 같아 요즘 저의 최애 힐링 스팟이랍니다. 가을이 되면 접이식 테이블을 펼치고 여기서 커피 한 잔 하는 여유도 가져볼까 해요.
마치며

10년의 세월이 고스란히 녹아있던 집을 리모델링하고 나니 후련했지만 한 편으로는 그립기도 했어요. 예쁘진 않았지만 오랜 시간 안온한 보금자리가 되어주었던 이 집이 참 고마웠으니까요.
이제는 우리의 바람대로 머물고 싶은 공간이 되었으니 더욱 애정하고 가꾸며 지내려고 해요. 신혼 때도 해보지 못한 집 꾸미기를 하면서 남편과 우리가 함께할 공간에 대해 상상하는 일은 그 자체로 정말 즐거운 경험이었습니다.
물론 아쉬운 점들도 있죠. 마음에 드는 스위치를 배선작업이 끝난 뒤 발견하거나 도장을 포기했을 때 페인트 느낌이 나는 벽지도 있다는 걸 미처 몰랐던 것 등이요. 인테리어 업체에서는 내가 생각한 것 이상의 제안을 해주시기도 하지만 무난하고 편리한 선택을 제안하시는 경우도 있기 때문에 취향이 확고한 편이라면 최대한 사전 검색을 많이 해보셔야 해요.
저는 모든 걸 제가 직접 찾아보고 선택하면서도 결정을 수차례 번복하기도 했는데요, 인테리어 업체 입장에서는 쉽지 않은 고객이었을 거라 생각해요. 시공과 관련해 고민되는 사항이 있을 땐 현장 경험이 풍부해 실제로 공간이 만들어졌을 때의 모습을 더 잘 알고 있는 전문가의 의견을 듣는 것도 매우 중요하다는 것을 깨달았습니다. 제 취향을 포기하지 않으면서도 인테리어 업체 대표님의 조언을 매번 구했던 것이 저희집의 완성도를 더 높여준 것 같아요. 함께 집의 모든 부분을 전체적으로 통찰하고 큰 방향을 잡아주니 더블체크가 되더라고요. 그런 면에서는 턴키보다 각 분야의 헤드 역할을 하는 인테리어 업체와 함께하는 것이 저에게는 더 맞았다고 할 수 있습니다.
저희 집 사진들을 보시면서 어디에서 본 것 같은 모습들도 있을 거에요. 저도 어떤 부분은 누군가를 따라하는 것 같다고 생각했으니까요. 하지만 막상 시공을 해보니 그 장면이 우리집 속으로 들어왔을 때는 또 다른 느낌으로 다가오더라고요.
어쨌든 내가 머물 공간이니까, 남 눈치 보지 않고 내가 좋은 것들로 채우는 게 맞는 것 같아요. 그런 의미에서 오늘의집은 서로에게 영감을 줄 수 있는 귀중한 플랫폼이라고 생각합니다. 저희 집 또한 누군가에게 새로운 영감을 주고 그의 공간을 더욱 애정할 수 있게 만드는 데 도움이 되기를 바라면서 마칠게요.

