진천 여름방학

아이의 생애 첫 여름방학과 함께 시작된 집 짓기.
두 팔을 벌린 듯 열린 집은 자연과 흙, 가득차는 햇살을 안고 빛나고 있다.
생기 넘치게 여울져 가는, 사랑스러운 네 가족의 영원한 방학이 될 집.

단층주택만의 매력, 구분된 공간들과 동선 속
풍경, 그리고 빛을 품는 생활
진천 혁신도시의 한 택지, 동측에 놓인 공원을 향해 양팔을 벌린 모양처럼 자리 잡은 주택. 깔끔하고 정갈한 외장과 동시에 평행하지 않고 오른쪽 매스를 좀 더 열어둔 모습이 장난스럽게 느껴지는 이곳은 네 가족의 보금자리이자 새로운 경험의 공간이다. 첫째 아들 세온이의 첫 방학을 위한 선물을 뜻하는 집의 이름 ‘여름방학’. 건축주인 임종헌·이화정 씨 부부는 이전에는 인근 지역에서 아파트 생활을 했다. 1층에 살았기에 그나마 창문을 열면 자연과 닿는 환경이었지만, 자라나는 아이들에게 방이 각각 필요해질 것을 절감하며 이사를 계획하던 차였다. 정돈된 주택 단지들을 바라보다 문득 ‘우리도 가능하지 않을까?’라는 생각이 스치며 전원주택의 계획과 로망이 차츰 자리 잡기 시작했다. 그러다 눈을 사로잡은 지금의 땅을 발견해 계약하면서 계획은 본격화되기 시작했다. 박람회를 다니며 관련 도서와 잡지를 찾아보고, 다양한 독채형 스테이에도 머물러보며 건축주로서 공간에 대한 안목과 취향을 키워나갔다.
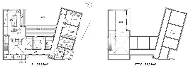
HOUSE PLAN

대지면적 : 343.2㎡(103.81평)
건물규모 : 지상 1층
거주인원 : 4명(부부, 자녀 2)
건축면적 : 155.88㎡(47.15평)
연면적 : 155.88㎡(47.15평)
건폐율 : 45.42%
용적률 : 45.42%
주차대수 : 1대
최고높이 : 6.3m
구조 : 기초 - 철근콘크리트 매트기초 / 지상 –경량목구조 벽 : 2×6 구조목, 지붕 : 2×10 구조목
단열재 : 수성연질폼 벽체 - 140mm, 지붕 - 235mm
외부마감재 : 외벽 - 모노타일 옐로우 500x40 / 지붕 - 0.5T 컬러강판 다크그레이
내부마감재 : 벽, 천장 - 친환경 삼화페인트 도장 / 바닥 - 호인우드 원목마루+강마루
욕실 및 주방 타일 : 바스디포
수전 등 욕실기기 : 스탠다드인터내셔널
주방 가구·붙박이장 : 마춤가구 우노
조명 : 3인치 매입조명, T5-LED 라인조명
아이방 가구 : 자작나무합판(현장제작)
계단재 : 애쉬 집성목 + 환봉난간
현관문 : 성우스타게이트
중문 : 아이엠메탈
방문 : 영림도어 + 도장 마감, 무늬목 마감
데크재 : 방킬라이
담장재 : 철제 난간
창호재 : 이플러스 시스템창호(THK43 삼중유리)
열회수환기장치 : 하츠 코나s(PHES-300H)
에너지원 : LPG
조경석 : 현무암판석, 화강암, 파쇄석, 백자갈
조경 : HJ조경
구조설계(내진) : SM구조엔지니어링
시공 : 맑은주택 변수웅
설계·감리 : 지점토건축사사무소 이정욱


부부의 마음속 취향은 어느새 중정을 낀, 그러나 자연을 향해 열린 ㄷ자형의 구조로 굳어졌다. 중정이 가진 고유의 프라이빗함도 중요하지만, 자연을 곁에 두고 사는 삶의 소중함을 이미 알고 있었기 때문이다. 또 공적 공간과 사적 공간을 완전히 분리해 사용하기를 원했기에, 두 개의 매스를 뚜렷하게 두는 게 더욱 중요해졌다. 많은 이들이 100평 정도의 대지가 다가구주택도 가능한 조건이라 했지만, 단독주택의 꿈을 실현하기 위해 과감하게 다락을 낀 단층주택으로 설정했다. 이 모든 과정을 지인을 통해 만난 지점토 건축사사무소와 함께했다. 설계를 맡은 이정욱 소장은 건축주 부부의 주요 요청사항이었던 공간의 배치부터 풀어나가기 시작했다. 공용 매스와 개인 매스를 평행하게 설정해 자연스럽게 중정을 확보했다. 관건은 공용 공간을 남과 북 중 어느 방향에 두는가에 있었다. 주차 진출입으로 인해 남쪽으로 형성된 현관을 따라 남쪽에 공용 공간을 두자니 중정 마당이 거실의 북측에 자리 잡게 되어 채광과 조망이 불리해지는 게 흠이었다. 결국 복도와 함께 거실까지 가는 동선이 길어지는 것을 감안하고 북쪽에 거실과 다락을 배치한 뒤, 평행한 남쪽 매스를 살짝 더 열어 보다 적극적으로 채광을 받아들이며 보다 넓은 마당을 만들게 되었다.

SECTION

DIAGRAM




완성된 집은 아늑한 각자의 방으로 흩어지고, 보다 개방적인 북측 매스로 모이는 형태이다. 또 마당의 이점을 누리기 위해 다양한 창을 적극적으로 구성했다. 이는 공용 공간과 사적 공간 사이에 설치한 부부침실에서 각 공간으로 시야의 연결성을 높여 아직 어린 두 남매가 어디에 있든 빠르게 보살필 수 있도록 한 구성이다. 핵심 공간인 북측 공용 공간은 주방과 거실, 다락이 유기적으로 연결되는 구조다. 주방 앞에는 데크형 툇마루를 둬 아이들의 놀이 공간은 물론 계절과 날씨를 즐기며 마당생활의 로망을 충실히 실현한다.


방학은 아이들을 위한 경험의 시간이다. 학교 밖에서 만나는 새로운 삶의 기회. ‘여름방학’은 이제 처음 맞는 봄을 지나, 먼 훗날 세온이와 하온이의 기억 속에 영원한 추억의 단어처럼 남을 보금자리가 될 것이다.


건축가 이정욱 : 지점토 건축사사무소

건축사 이정욱은 가천대학교 건축학과 졸업 후 2021년 지점토 건축사사무소를 개소하였다. 건축이 일반인에게 올바르게 스며드는 방법에 대한 질문을 스스로에게 끊임없이 던지며, 결과만을 위한 건축이 아닌 건축의 과정 속에서 그 답을 찾기 위해 진중하게 건축 작업을 하고 있다. 주택 및 소규모빌딩 프로젝트를 중심으로 진행하고 있으며, 전국적으로 다양하게 활동을 이어나가고 있다.
031-306-2745 | jijeomto_wook
취재_손준우 | 사진_변종석
ⓒ 월간 전원속의 내집 2023년 3월호 / Vol.289 www.uujj.co.kr

