
안녕하세요? 저는 결혼 6년 차 전업주부입니다. 동갑내기 남편과 이제 막 4살이 된 개구쟁이 아이와 함께 살고 있습니다.
저는 인테리어 전공자도, 그렇다고 디자인 전공도 아닙니다. 다만 저희의 첫 집을 저희 부부와 아이를 위한 특별한 공간으로 꾸미고 싶어서 용기 내어 마이너스 옵션 아파트로 계약했습니다.
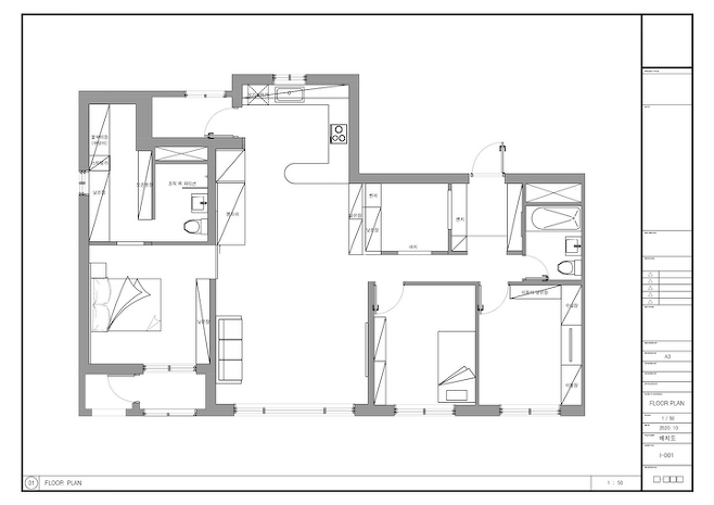
도면

계약 당시에는 몰랐는데, 아파트 사전 점검 때 가보니 정말 아무것도 없는 철근 구조물이라 좀 당황했습니다. ㅎㅎ 조명도, 화장실도, 벽도 없었어요. 그래도 원하는 집을 어떻게 실제 현장에 구현해 나갈지 고민하고 상상하고, 또 실측하며 위의 도면을 완성하였습니다.
before

원래 구조라면 현관, 팬트리룸이 있어야 할 자리예요.

이곳은 부엌, 식탁이 있어야 할 자리고요.
집의 색상을 정할 때 깔끔한 화이트와 내추럴 오크로 기본 컨셉을 잡았어요.
아직 아이가 활동성이 많고 호기심이 많은 것을 고려해 최대한 소품은 자제했습니다. 대신 수납을 많이 만들고 공간감이 들어 집을 넓어 보이게 하는 데 신경 썼습니다. 특히나 아이가 어리기 때문에 보이지 않는 곳도 좋은 자재, 안전한 자재를 쓰기 위해 신중히 고르고 고민하였습니다.
after

인테리어 마무리 후 입주 청소 전 모습이에요. 많이 바뀌었죠? 인테리어 기간은 약 3주 정도 걸렸습니다. 3주 동안 정말 매일매일 오전 9시부터 오후 3시까지 인테리어 현장에 가서 의견을 전달하고 체크했습니다. 현장에 계신 작업자분들과 서로 생각하고 이해하는 바가 달라 대화를 많이 나누고 디자인 수정도 많이 했어요.

입주 후 2개월 지난 뒤


인테리어 후 현재 모습


주방 가까이 컴퓨터를 놓아 요리 레시피를 찾는 용도로 쓰고 있어요. 그 옆에 커피머신과 토스터를 같이 두었더니 홈카페 느낌이 조금(?) 나는 것 같아요. ㅎㅎ 바라볼때 세 가전의 디자인도 잘 어울려 만족합니다. ^^
우연히 간 매장에서 루이스폴센 ph5 실물을 보고 매료되어 식탁을 정하기 전부터 조명은 정해 놓은 터라 이에 맞춰 식탁도 라운드로 찾아보았습니다.

자칫 단조로워 보일 수 있는 곳이라 식탁 테이블 위 꽃을 바꿔가며 홈카페처럼 스타일링하는 재미를 소소히 느끼고요.

팬트리룸을 만드는 대신 냉장고 옆 전면 팬트리장을 만들어서 식료품과 생필품을 전부 수납하였습니다.
밤이면 저 팬트리장에 있는 과자와 인스턴트 음식을 내어와 야식으로 먹는 탓에 부부 얼굴이 모두 둥근 보름달이 되었네요. ^^;
이제 하나씩 자세히 보여드릴게요~
거실
before

인테리어 공사 전 콘크리트된 새집이에요^^; ㅋㅋ 아파트 사전점검할 때 찍은 사진인데새집 장만 기분도 안나고, 다른 집 구경하고 오니 더 비교가 되었어요.
아..괜히 마이너스옵션 했나 싶기도 하고 막막하기도 했어요.
그렇게 공사기간을 거치고
after

변화가 드라마틱하죠?
거실 역시 악세서리와 소품을 놓는 대신, 심플하게 깔끔하게 유지중이에요.
아파트 천장이 높지 않아 조명 모두 매립등, 간접조명을 설치하여 최대한 높아보이도록 노력했어요.

좋은 자재를 사용하고 공간 그 자체를 드러내 보자는 욕심이 있었어요.
그래서 저희 집은 무몰딩, 무걸레받이, 아주 얇은 문틀, 히든 경첩이 특징인 4無 하우스입니다. ^^

아이의 상상 놀이터가 되고 제가 잠시 쉬어가는 쉼표 같은 시간을 주며, 또 저녁엔 저희 부부의 영화관이 되는 거실입니다.
현관에서 들어서면 딱 보이는 이 모습도 어떻게 하면 예쁠까하고
고민을 많이 했던 디자인 중 하나였어요. 그래서 선택한 특별한 문 !! 바로 간살도어예요.

Before

마이너스 옵션은 정말 아무것도 없기 때문에
저의 설계에 따른 대대적인 목공공사와 전기공사가 이루어졌구요.


고른 벽면을 위해 퍼티작업도 꼼꼼히 3일동안 이루어졌어요. 슬슬 집의 윤곽이 보이기 시작해서 정말 뿌듯하고 기대되는 순간이었어요.
After

복도가 긴 구조의 아파트라서 그냥 문으로 하면 답답해 보이지 않을까 하는 생각으로 시작했어요.
안방은 슬라이딩 도어로 할거야. 라고 결심했을때 모두가 걱정도 했어요.
그런데 결과는 대만족!
방문을 열어 놓으면 호텔처럼 일체감을 주는 탁트인구조로, 방문을 닫아놓아도 답답하지 않고 은은하게 비치는 모습이 예쁘기까지 ! 정말 1석2조랍니다.
도어 디자인도 여러가지 고민하다 oak원목 간살 슬라이딩 도어로 안방 문을 만들었습니다. 이전에 여행 갔던 부산 아난티 호텔의 기억이 너무 좋아 침실을 그곳처럼 꾸며보고 싶은 소망이 있었거든요. ^^
부부침실

슬라이딩 도어를 열면 이렇게 부부침실이 나와요.
주방의 템바보드와는 좀 다른 넓이가 더 넓은 템바보드로 침대 헤드를 제작했습니다. 호텔같은 분위기를 내고 싶다고 앞에서 말씀드렸었죠, 커다란 침대와 패브릭 프레임, 그리고 은은한 조명으로 호텔 느낌 조금은 나는 거 같죠? ^^
Before

After


침대를 기준으로 오른쪽 아치문을 지나면 드레스룸과 안방 화장실로 이어져요.

왼쪽 한켠에는 북선반을 두어 최근에 읽어야 할 책들을 가까이 두고요.

침대 맞은편에는 책장을 두어 평소에 좋아하는 책들을 포근한 의자에 걸터앉아 꺼내 읽기도 하고요.


드레스룸에서 바라보는 침실은 이런 모습이고요. 나중에는 드레스룸과 침실 사이에 커튼을 두고 싶은데 아직 마음에 드는 적당한 커튼을 못 찾았네요. 아직도 하나씩 고민하며 만들어가는 집이랍니다.
드레스룸 맞은 편에는 부부욕실이 있구요. 이 곳도 어떻게 변했는지 간단히 보여드릴게요^^
Before


After

안방 화장실도 화이트와 은은한 베이지를 기본으로 인테리어했습니다.
작은 크기의 타일 대신 커다란 타일을 선택하였고 건식으로 만들어서 호텔 화장실처럼 꾸미려고 노력했어요.
매립수전, 무광으로 통일한 디자인, 불규칙적인 은은한 마블무늬 타일 등 어느것하나 제가 선택하지 않은 것이 없어서 정말 뿌듯해요.
온라인 집들이를 마치며..
인테리어에 문외한이며, 평범한 주부인 저를 마이너스 옵션이라는 흔치 않은 도전으로 이끈 건 가족이 행복하게 살 집이라는 희망 때문이었습니다. 인테리어 턴키 업체에 맡기는 것도 편하고 좋았겠지만 각각 전문가를 섭외해 많은 대화를 통해 공간을 만들어나가는 재미와 보람도 있습니다. 크고 작은 저의 선택들로 만들어진 집에 더 애착도 생기고요!
집이라는 공간의 중요성이 그 어느 때보다 커지고, 가족이 함께 안전하게 소소히 행복 나눌 공간이 있음에 더더욱 감사한 요즘입니다. 겉보기에 화려하고 볼거리가 많은 것보다, 그 안을 채울 아름답고 따뜻한 이야기가 있어야 더욱 살기 좋은 집이라고 생각합니다.
감사한 이 공간에서 개구쟁이 아이와 행복한 시간으로, 남편과 다정한 시간으로, 편안하고 따뜻한 휘게 라이프 (hygge Life)로 채울 수 있도록 더 노력하겠습니다. 여러분도 무탈하게, 안전하게 집안을 행복으로 채우시길 바라며 이만 저희 집 소개를 마칠까 합니다. 부족한 글과 사진 봐주셔서 감사합니다!

