
안녕하세요! 저희는 9년 연애하고 재작년에 결혼한 맞벌이 신혼부부 @binii_home입니다:) 아직 아이가 없는 주말부부라 평일에는 혼자, 주말에는 부부가 같이 생활하고 있어요.
결혼하고 1년 반 동안은 20평 대의 아파트에서 월세로 살았었는데, 좋은 기회에 40평 대의 구축 아파트를 매매하게 되었고 10년 이상 살 생각으로 올 리모델링을 진행하게 되었습니다.
인테리어 문외한이었던 저희는 아파트 매매 이후 첫 보금자리를 꾸미기 위해 열심히 벼락치기 공부를 시작했고, 질리지 않고 오래도록 살 수 있는 집에서 살고 싶다는 결론을 내리게 되었습니다.
하자 없고 마감이 잘 된 깔끔한 레이아웃(오래 살아야 하니까 ㅎㅎ)의 집을 만들자!라고 생각했던 것 같아요. 다행히 저희와 잘 맞는 업체를 만나 약 6주간의 공사 끝에 이사 온 지 이제 막 2달이 다 되어가네요.
20평 대의 신혼부부 짐을 가지고 온 거라 아직 채워 나가야 할 공간이 많이 남아있는 집이지만, 예쁘게 봐주시면 감사하겠습니다 :) 리모델링을 준비하시는 분들께도 도움이 되길 바라며, 지금부터 리모델링 전/후로 저희 집이 얼마나 많이 바뀌었는지 보여드릴게요!
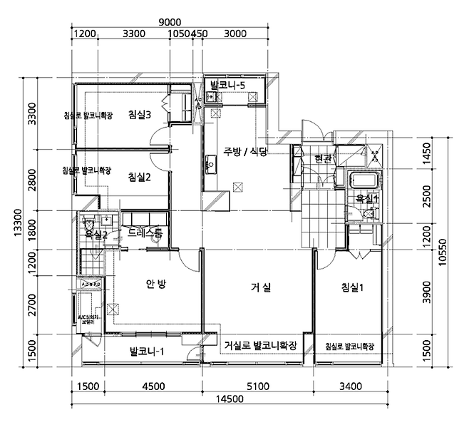
1. 도면

저희 집은 올해로 17년 된 주상복합 아파트로 방 4개, 화장실 2개로 이루어져 있어요. 안방 제외하고는 다 확장 공사가 되어 있는 상태였습니다.

턴키에서 저희의 가족계획, 라이프 스타일, 원하는 느낌, 예산 등을 바탕으로 실측 후에 주신 도면입니다. 나중에 매도할 것을 생각해 큰 구조 변경 없이 진행하였지만, 리모델링 전 가장 마음에 들지 않았던 화장실과 주방에는 작은 변화를 주어 저희 취향에 맞게 바꾸었답니다.
2. 현관 Before

처음 이 집을 봤을 때 40평대 치고 좁게 빠진 현관에 센서등 하나, 그리고 앤틱한 중문이 삼박자를 이루어 굉장히 어둡고 칙칙하게 느껴졌어요.
현관 After

현관은 집의 첫 이미지인 만큼 저희 집과 어울리게 밝고, 깔끔한 느낌으로 만들었어요. 최대한 신발을 많이 수납할 수 있도록 했고 600각의 타일을 써서 넓어 보이도록 연출했어요.

중문은 개방감 있는 비대칭 양개형 유리 중문을 사용했는데, 평소에는 메인 문만 사용하고 큰 짐 나를 때는 반대쪽도 열 수 있어 실용성까지 갖췄답니다. 손잡이가 아래쪽에 있어 더 포인트가 되는 거 같아요.
여기서 잠깐!! 현관에 밝은 무광 포세린 타일 쓰실 분들은 다시 한번 더 신중히 생각해 보시길 권해드려요. 택배 박스만 두어도 금방 지저분해진답니다. ㅎㅎ 눈이나 비가 오는 날에는... 저도 알고 싶지 않았어요. 고민 끝에 무광 코팅을 진행했고, 사진은 무광 코팅 된 상태입니다.

외출할 때 신발 뭐 신어야 하나 고민하는 거 저 뿐인가요? ^^ 옷이랑 어떤 신발이 어울리는지 꼭 거울로 확인해야 하는데 유리 도어는 싫어서 펜트리 문 안쪽에 거울을 달아주었어요.

현관 바로 앞에는 사장님께서 데일리룩 찍을 수 있는 거울과 베르몬드등을 포인트로 달아주셨어요. 조명 밑에는 밋밋하지 않도록 hay의 사이드보울과 볼타 모빌로 꾸며주었습니다.

입구 쪽에는 손님들용 신발을 구비해두었는데, tuuk에서 만든 종이 선반을 신발장으로 사용하고 있어요:) 튼튼하고 이쁜데 지구까지 생각한 가구라니, 너무 멋진 것 같아요.
3. 거실 Before

기존 거실은 여러 색감이 뒤섞여 혼란스러움 그 자체였어요. 창도 한 겹 더 설치되어 있어 넓지만 어딘가 모르게 답답하다고도 느껴졌고요. 상의 끝에 이중으로 설치되어 있는 창은 떼고, 샷시(새시) 교체를 할 수 없는 아파트라 필름 작업을 해주기로 했습니다.
거실 After

짠! 현재는 이렇게 신혼부부의 거실로 바뀌었어요:) 공용부는 도배와 필름 마감이 섞여 있는데, 디아망 퓨어 화이트와 필름 색이 조화를 잘 이루어서 이질감이 전혀 느껴지지 않아요. 바닥은 동화 마루 나투스진 그란데 사하라 라이트입니다.
혹시 디아망 고민 중이신 분들 계신다면 천장까지 꼭 디아망 하길 추천드립니다. 생각보다 시선이 천장으로 많이 가게 되고, 무엇보다 너무 이쁩니다.
소파 뒤 벽에는 스펙트럼의 페이퍼백을 달 예정이라 미리 목공 작업을 해둔 상태예요:) 인테리어 하시기 전에 어떤 가구를 어디에 배치할지 큰 틀은 꼭 미리 생각해두시는 거 추천드려요.

소파는 블랙의 모듈 소파로 골라보았어요. 집 곳곳에 블랙 포인트가 있기도 하고, 모듈이라 조합을 자유롭게 바꿀 수 있어서 고른 소파인데 매우 만족하며 사용 중이에요.
소파 테이블은 쇼룸에서 보고 반한 보컨셉의 마드리드와 세비야 테이블 두 개를 높이 다르게 하여 배치해 두었어요. 플로어 조명은 많이들 보셨을 바로 그 아르떼미데 톨로메오입니다.

요즘은 거실에 소파 배치를 이렇게 바꿔서 생활 중이에요:) 저 혼자 지내는 시간이 많아 아늑한 느낌을 주고 싶어서 바꿔봤어요! 햇살 좋은 주말 낮에 남편이랑 같이 소파에 앉아 커피 마시며 이야기 나누는 시간이 제일 행복해요:)

조명 키면 이런 느낌이에요. 주방까지 이어지는 라인 조명을 메인 등으로 하고 나머지는 다 간접 조명으로 채웠습니다. 낮에는 채광이 좋아 조명 없이 생활하고, 저녁에도 간접등과 톨로메오만 키고 생활하는데 딱 적당해요.
사실 집 전체 조명 계획을 업체 사장님께서 알아서 정해주셨는데 너무 만족스럽습니다. 저희는 그저 공용부에 동그란 다운라이트가 싫다고만 말씀드렸거든요. 잘 모를 때는 전문가 말대로 하는 것도 나쁘지 않은 것 같습니다.
우물천장도 일면화했더니 제가 원하는 깔끔 그 자체로 표현되어 만족스러워요. 시스템 에어컨 뒤에도 원하는 위치에 조명 넣을 수 있게 작업해 주셨어요. 창 쪽에도 테이블을 놓고 조명을 달 예정입니다:)

TV는 원래 가지고 있던 75인치를 반매립 시공했어요. 매립을 하면 더 깔끔하겠지만 인치 업그레이드할 것을 감안하여 반매립을 택했습니다. 라인 정리를 위해 좌측에는 가벽을 세우고 아래에는 타일로 포인트를 주었어요.

플스나 닌텐도가 TV 밑에 지저분하게 있는 게 싫다고 미팅 때 말씀드렸더니 TV 아래 좌측 콘센트에 바로 Hdmi 선만 연결해서 사용할 수 있도록 벽 안쪽으로 작업해 주셨더라고요. 이런 디테일한 부분들까지 신경 써주신 점 되게 감동이었습니다:)

공용부 스위치는 모두 융 스위치입니다. 단차 맞추기가 힘들다는 단점이 있는 제품이지만, 이쁘다는 장점이 단점을 상쇄합니다. 뭘 눌러야 어디가 켜지는지 익히는데 시간은 좀 걸렸지만요. ㅎㅎ
라인 정리를 위해 이 부분도 목공 작업이 들어갔는데, 사장님이 이 부분에 오브제를 올릴 수 있는 선반을 넣어주셨어요. 적당한 오브제를 찾지 못해서 지금은 갈 곳 잃은 결혼사진들을 액자에 넣어 올려두었어요.

저희 거실 효자템 보비 트롤리에요. 리모컨, 충전선들, 읽다 만 책들, 물티슈 등등 나와있으면 지저분해 보이는 것들을 다 이 안에 넣고 사용하고 있어요. 덕분에 거실을 깔끔하게 유지하고 있답니다.
4. 베란다 Before

베란다 After

베란다는 사실 제가 이렇게, 저렇게 해달라고 한 게 없는 공간이에요. 그냥 깔끔하게만 해달라고 했고, 다 사장님께서 알아서 해주셨습니다.

베란다 끝에는 보일러실이 있어요. 이곳은 다른 용도로 사용하고 있지는 않고, 죽어가는 저희 집 식물 1호 살리려고 노력 중인 공간입니다.
5. 주방 Before

7-8년 전 유행했던 싱크대며 거울의 방에 온듯한 다이닝 공간, 보기 싫은 분전함과 월패드까지 어느 하나 마음에 드는 것이 없었던 주방이었어요.

대면형 주방에 세라믹 아일랜드가 갖고 싶었지만, 설비를 옮기는 것에 대한 걱정스러움과 식탁을 꼭 주방에 두고 싶었기에 기존의 틀을 유지하면서 저희의 라이프 스타일에 어울리게 인테리어 하기로 했습니다.
주방 After

비포의 모습이 전혀 생각나지 않을 정도로 깔끔해진, 집에서 가장 많은 시간을 보내는 주방 겸 다이닝 공간입니다. 인테리어 전에 미리 사둔 프리츠한센 테이블과 세븐 체어인데, 마치 한 세트처럼 잘 어울리지 않나요?
사실 집에 여유 공간은 충분해서 다이닝 공간을 분리해도 됐지만, 요리해서 그걸 다시 식탁으로 옮기는 일이 노동처럼 느껴질 것 같아, 식탁은 꼭 주방에 둬야 한다는 제 강력한 의견이 반영된 공간이기도 합니다:)

주말부부라 평일에는 저 혼자 밥 먹을 때가 많고, 둘이 밥을 먹더라도 넷플릭스나 유튜브를 볼 때가 많기 때문에 벽에는 43인치 스마트 모니터를 반매립 했어요.
모니터 뒤에는 노트북을 넣어두고 pc로도 사용 중이에요! 그 아래에는 분전함을 숨겨두었습니다. 어디 있는지 세심히 봐야 보이실 거예요:) 식탁등은 사장님 픽으로 깔끔하게 블랙 색상의 비비아의 스칸 조명으로 했어요.

저희 집 포인트 컬러가 블랙이라 홈바 색도 남들 잘 안 하는 칼프 블랙 우드로 넣었어요. 집에 오시는 분들마다 생맥주 기계로 착각하시는 저 아이는 아르케의 탄산수 메이커입니다! 플라스틱 쓰레기도 안 나오고 탄산 강도도 아주 세서 만족도 10000%예요! 홈바는 앞으로 차차 채워나가려고요.

싱크대는 최대한 수납공간이 많게 만들었어요. 집이 깔끔해 보이려면 잡동사니들이 다 어디 들어가서 안 보이는 게 베스트더라고요. 저희가 가진 그릇과 냄비들 보다 더 많이 만들어놔서 아주 널널해요. 채울 일만 남은 것 같네요. ㅎㅎ
싱크대 색상도 고민이 많았는데, 고심 끝에 고른 포그 그레이 색상이 사하라 라이트와도 삼성의 코타 화이트 색과도 너무 잘 어울리네요. 지문 방지도 돼서 깔끔하게 유지하기도 좋아요.

가구 하드웨어는 모두 블럼입니다. 인티보 라인인데도 부드럽게 열고 닫히는 게 최고예요. 제값을 하는 친구입니다.

상판은 LX 하이막스 콘크리트 라인의 스노우 콘크리트입니다. 이것도 포그 그레이 색이랑 정말 잘 어울리죠? 미드웨이는 윤현상제의 이모션 화이트 900각을 썼어요. 메지 라인 보이는 게 싫어서 일부러 큰 타일 써서 세로 선만 보이게 했더니 엄청 깔끔합니다. 싱크볼은 백조 깜뽀르떼 860인데, 더 큰 거 넣었어도 될 뻔했어요.

싱크대 반대편은 냉장고와 큐커가 있어요. 냉장고는 깔끔한 라인을 위해 키친핏을 선택했습니다. 용량이 작긴 하지만 김치냉장고에도 야채와 음료를 보관할 수 있어서 아직까지 부족하다고는 느끼지 못하고 있어요. 이쁜 거 최고!
주방 휴지통은 브라반티아 36L 짜리를 쓰고 있어요. 문 닫힌 상태에선 정말 냄새가 하나도 안 나서 만족하며 쓰고 있습니다.

중문을 열면 워시 타워가 있어요.

가전을 두 번 나눠 사는 바람에 집에 엘지와 삼성이 공존한답니다.^^ 워시 타워 반대편은 기존에 있던 싱크대를 떼고 지금은 분리수거함만 두고 있는 데, 수납장을 짜 넣을까 고민 중이에요. 빈 공간이 많아 매일 여기저기에 뭘 채워 넣어야 할까 하는 행복하면서도 통장 잔고는 슬퍼하는 고민의 연속입니다.
6. 외욕실 Before

외욕실은 한 번 리모델링이 된 상태였어요. 타일 마감이 깔끔하지 않고 이미 유행이 지난 스타일이라 바꾸기로 했습니다. 견적서 받고 살짝 후회하긴 했지만(화장실 두 칸의 견적이 가장 높았어요ㅠㅠ) 한 번 하기로 마음 먹은 만큼 그대로 진행시켰습니다.
외욕실 After

제 생각보다도 더 이쁘게 나와서 만족도 최상인 외욕실입니다. 리모델링 안 했으면 큰 일날 뻔했어요!

기존의 화장실 두 곳 모두 욕조가 없었는데, 저는 잠들기 전 꼭 반신욕을 해줘야 하는 사람이라 욕조를 넣었어요.

손님들도 사용하는 곳이니 욕조가 보이지 않도록 조적 파티션을 세웠습니다. 그리고 탑볼 세면대에 무광 매립 수전, 저도 넣어봤어요:)

졸리 컷 시공했는데, 너무 깔끔하지 않나요? 줄눈도 푸가벨라 제품을 사용해 타일과 최대한 비슷한 색상으로 맞추었더니 눈이 편안합니다.
7. 안방 Before


안방 After

저희에게 침실은 정말 잠만 자는 곳입니다. 수납공간이 부족했기 때문에 무몰딩 붙박이장을 시공했고, 파우더룸으로 들어가는 문이 너무 좁아 아예 문을 없애고 벽을 허물었어요. 다들 극찬하는 실링팬은 궁금해서 안방에 시공해 보았습니다. 아직 써본 적은 없어요. ^^;

침대는 라지 킹사이즈로 이전 집에서 사용하던 걸 그대로 들고 왔는데, 다행히 잘 어울리더라고요:) 침구는 크라운 구스 제품입니다. 특히 토퍼가 폭닥폭닥한 게 제대로예요.

잠자리 예민한데 암막 커튼과 크라운 구스 조합으로 매일 꿀잠 자고 있습니다.

벽을 허물고 만든 파우더룸입니다. 인테리어 하기 전에 레퍼런스 찾는다고 인스타그램부터 핀터레스트까지 많이 뒤져봤지만 좌식인 2인용 파우더룸은 없더라고요. 그래서 사장님과 고민 끝에 만든 화장대입니다.
외출 준비할 때 남편도 시간이 꽤 걸리는 편이라, 같이 옆에 앉아 준비하기 위해 남편 자리가 필요했어요. 또 기초 케어 제품에 먼지 앉는 걸 극도로 싫어해서 상부장도 필수였습니다. 그리고 서서 화장을 하기엔 제 부실한 하체가 힘들어해서 의자도 넣어야 했습니다. 저희 요구 사항이 가장 많았던 곳이에요.

오른쪽 아래에는 보일러 분배가 있어 수납장으로 가려주고, 그 위에 그림과 조명으로 포인트를 주었습니다. 향수를 좋아하는 편이라 선반마다 향수를 올려두었는데, 어떤 향수가 있는지 한눈에 들어와서 편애하지 않고 뿌릴 수 있어요!
8. 내욕실 Before


내욕실 After

내욕실은 외욕실보다 밝은 타일을 사용했어요.

조적 파티션을 세워 변기와 세면대를 분리 시키고 조적 세면대를 만들었습니다. 공간이 좁아서 파티션을 바닥부터 끝까지 다 채워도 될까 걱정했었는데, 완성된 욕실을 보니 괜한 걱정 했다 싶었어요.

샤워부스는 타일 색상과 어울리는 색상의 유리문을 달았고, 젠다이를 만들어 위에 샤워 용품들을 올려두고 사용하고 있어요. 트렌치 유가는 매립 수전이랑 잘 어울리기도 하고 물도 잘 빠져서 만족스럽게 사용 중입니다.

내욕실에는 두 개의 환풍기가 있는데, 하나는 변기 위에 있고 또 다른 하나는 샤워부스 안에 있는 휴젠뜨입니다. 샤워부스 밖은 건식으로 사용 중인데, 샤워하고 휴젠뜨 키면 금방 뽀송해져서 물 묻힌 채로 밖으로 안 나갈 수 있어서 너무 좋아요:) 사장님 추천으로 매립한 거울은, 저보다 남편이 더 좋아하며 사용 중입니다.

화장실에서 고급스러움 느낌을 주려면 큰 사이즈의 타일만큼이나 중요한 게 졸리컷 시공인 것 같아요. 레진으로 마감까지 해서 하나도 날카롭지 않아 나중에 아이도 잘 사용할 것 같아 만족도가 큽니다.
9. 복도 Before

복도 After

기존의 안방 앞 복도가 지나치게 넓었어요. 이 부분을 활용해 행잉장과 청소기를 수납할 수 있는 키큰장을 넣었습니다. 복도 끝에는 방안에 있던 드레스룸을 터서 팬트리로 만들었어요. 약 5m 정도의 수납공간이 생겨 저희의 모든 잡동사니들을 다 꽁꽁 숨겨두었답니다:-)

문을 열면 어디에 뭐가 들어가 있는지 알아보기 쉽게 팬트리 정리함을 이용해서 정리해두었어요. 그리고 정리함마다 라벨지를 붙여두었어요. 집에 라벨기 하나 사두시면 정말 편리합니다:)

제작 가구 하실 때는, 안에 어떤 정리함을 살 건지 미리 정하면 그거에 맞게 내경을 만들 수 있어서 보다 깔끔하게 수납 가능해요. 이게 바로 제작 가구의 장점 아닌가 싶어요. 저는 가구 도면 나오고서야 정리함 정하고 알려드려서 수정을 여러 번 했었답니다. ㅎㅎ
10. 드레스룸

복도 첫 번째 방은 드레스룸입니다. 턴키 진행하면서 이미 가구 예산이 저희가 생각한 가격보다 많이 나왔기 때문에 전체를 붙박이로 두를 수가 없었어요ㅠㅠ 그래서 여러 대안을 알아보던 중 이케아의 팍스를 알게 되었습니다.
이케아 홈페이지에서 셀프 플래닝으로 내가 원하는 대로 구성할 수 있는 데다가, 추후에 문을 달 수 있단 점도 마음에 들어 바로 주문했습니다!

여러 후기를 읽어 보고 셀프 조립은 어렵다 판단되어 조립 서비스를 신청했는데, 조립도 각 제품 별로 선택이 가능해서 큰 몸통과 서랍만 신청하고 나머지 선반과 옷장 레일은 셀프로 달았습니다. 큰 몸통은 꼭 조립 서비스 맡기시고 나머지는 다 셀프로 해도 될 것 같아요.

왼쪽은 남편 옷, 오른쪽은 제 옷을 넣고 사용하고 있어요. 아직 여름 옷들은 정리 못한 상태인데, 이케아 스쿠브가 팍스 위에 딱 알맞게 들어가더라고요. 같은 이케아 제품이라 사이즈가 맞게 나와서 다른 거 고민하지 않아도 돼서 좋아요!
드레스룸에는 블라인드를 시공하고, 환기를 위해 창문 밑에는 국민 서랍장 말름을 넣었습니다. 스타일러 자리로 61cm를 남겨두었는데, 정말 딱! 맞게 들어갔어요. ㅎㅎ
11. 운동방

복도 맨 끝 방은 현재 제 운동방으로 사용하고 있어요. 마루 상할까 싶어 전지와 부직포 깔고, 그 위에 EDTC의 블랙 스퀘어를 깔아주었습니다.

홈짐 꾸미는데 매트에 돈이 제일 많이 들더라고요. ㅠㅠ 그래도 마루 상하지 않게 하려면 꼭 바닥 보강해 주시는 거 잊지 마세요. 아직 방의 절반밖에 못 깔았는데, 점차 늘려갈 예정입니다! 이제 더 이상 퇴근하고 헬스장 가려고 다시 나가지 않아도 돼서 너무 좋아요:)
12. 아이방

1명의 자녀 계획이 있어 마지막 방은 아이를 위한 방으로 남겨두었어요. 현재는 당근용 방으로 쓰고 있습니다. 이전 집에서 들고 온 소파와 당근으로 떠날 물건들이 잠시 머물고 있어요. 조만간 아이를 위한 방으로 바꾸게 되겠죠? ㅎㅎ
마치며

인테리어 감각 없는 둘이서 열심히 꾸며본 저희 집 소개 잘 보셨을까요? 아직 비워둔 공간도 많고 부족한 점도 많지만 리모델링 중에 오늘의집 집들이 글들 보며 도움받은 게 참 많아 저도 작게나마 도움이 될까 싶어 글 쓰게 되었습니다.
'인테리어는 도화지이고 그 위에 우리 취향대로 색칠해 나가자!'라는 저희의 부부의 다짐대로 시간이 지나면 또 지금과는 다른 모습의 집이 되어있을 것 같아 저희도 늘 설레며 살아가고 있어요. 긴 글 읽어 주셔서 감사합니다! 다들 건강하고 행복하세요 :-D

