직접 칠하고 다듬어 예쁘게 채운 : 평택 보물상자집
단정하고 깔끔한 하얀 집은 보물을 품고 있다. 싱싱한 초록과 빛으로 가득한 중정과 집에 대한 부부의 열정과 애정이다.


새로 지어진 빽빽한 아파트 숲을 벗어나 조금씩 도로에 여유가 생길 때쯤. 골목길로 들어서면 반듯하게 정리된 필지들 사이에 약간 아이보리 컬러가 감도는 하얀 주택을 한 채 만나게 된다. 조용진, 김미정 씨 부부가 짓고 사는 집이다.



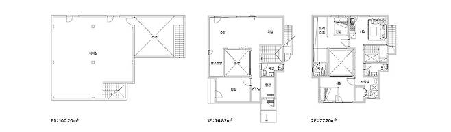
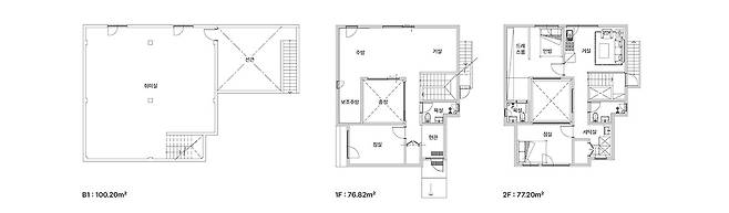
HOUSE PLAN
대지면적 : 401㎡(121.30평)
건물규모 : 지상 2층, 지하 1층
거주인원 : 2명(부부)
건축면적 : 79.9㎡(24.12평)
연면적 : 154.02㎡(46.59평)
건폐율 : 19.93%
용적률 : 38.41%
주차대수 : 2대
최고높이 : 8.8m
구조 : 일반 목구조
단열재 : 그라스울 R21 THK140-260, 비드법단열재 THK50
외부마감재 : 외벽 – 세라믹사이딩 / 지붕 – 코팅메탈징크
창호재 : 독일식 시스템창호
에너지원 : LPG
설계 : ㈜디엔에이 종합건축사사무소
시공 : 로드하우징 1577-1614 http://roadhousing.co.kr
주택은 요철이 많지 않고 반듯해 단정한 우유팩을 연상케 하고, 마감재는 오염에 강하다는 세라믹사이딩을 둘렀다. 그러면서도 부분적으로 짙은 우드 톤의 템버보드를 얹어 집은 단조롭지 않고 표정이 생겼다. 건축 골조 목수로 활동하는 용진 씨는 “화려한 디자인보다는 방수와 단열 등 하자를 최소화하는 것에 중점을 두었다”고 전했다.
PLAN & SECTION





집은 취미실로 쓰는 지하와 생활공간인 두 개 층으로 이뤄졌다. 여유롭게 구성한 현관을 지나 복도를 따라 안으로 들어서면 옆으로 놀라운 풍경을 만나게 된다. 초록으로 가득한 중정이다. 아내 미정 씨가 조금 더 안전한 환경에서 계절을 느꼈으면 하는 마음에서 만들었다는 중정은 새집으로 이사 와서 생긴 아내의 원예 취미의 산실이 되었다. 하나둘 화분이 늘더니 이제는 거실 한편과 앞·뒷마당에도 그녀가 돌보는 식물이 잘 가꿔진 마당과 함께 놓였다.


INTERIOR SOURCE
욕실·주방 타일 : 판타일링 600 포세린 타일, 모자이크 타일(안방욕실)
주방 가구 : 한솔
조명 : 라인조명, 마그네틱 조명
계단재·난간 : 자작나무 30T
방문 : 영림
데크재 : 영크리트 컬러콘크리트 위 패턴



중정 옆으로는 주방이 자리한다. 주방은 보조주방과의 역할을 분담해 콤팩트하게 갖췄고, 거실을 마주 보게끔 싱크대가 놓였다. 한편 하부장은 밝은 그레이 톤이지만, 제품 본래의 컬러가 아니다. 벽과의 컬러 매치가 아쉬웠던 미정 씨가 직접 인테리어 필름을 자르고 붙이며 마감한 것이다. 이를 위해 그녀는 필름 관련 자격증을 따기도 했다.


2층으로 들어서면 안방과 욕실, 운동실로 쓰는 거실, 세탁실 등 부부의 프라이빗한 공간들이 배치되었다. 방은 각각 다른 컬러로 인테리어가 이뤄졌는데, 한 공간에서 다양한 경험을 즐기기 바랐던 미정 씨의 바람에서 비롯한 콘셉트다. 안방에서 가장 먼 곳에는 세탁실이 자리했다. 편안한 숙면으로부터 소음원을 멀리 떨어뜨리면서도 층을 오가는 번거로움을 피하기 위한 배치다. 세탁실 또한 다른 실과 다르게 마감재가 유럽식 미장 마감이다. 이 또한 미정 씨가 손수 챙긴 작업이다.

일부분이라도 인테리어 필름부터 목공, 미장에 이르기까지 직접 나서는 게 쉽지는 않았을 터였다. 하지만, 미정 씨는 “내 집이니 없던 힘도 생겨서 할 수 있었다”며 웃어넘겼다. 그러면서 “그중 인테리어 필름은 일주일 정도 배우면 여자도 어렵지 않게 한다”며 권하기도. 약간의 기술만 있어도 주택 생활이 더 풍요로워지고 집에 대한 애정과 만족감이 커진다는 게 그녀의 지론이다. 앞으로 이 집에서 더 해보고 싶은 게 무엇이냐는 질문에 그녀는 ‘원데이클래스’를 열어보고 싶다고 한다. 다른 이들도 집을 짓고 가꿔나가는 재미를 느꼈으면 하는 게 미정 씨의 바람이다.
기획 신기영 | 사진 변종석
ⓒ 월간 전원속의 내집 2024년 11월호 / Vol.309 www.uujj.co.kr